
| 賃料 | 予想金額:235,000〜255,000円程度 | 管理費 | 予想金額:23,000〜27,000円程度 |
| 礼金/敷金 | 非公開(アーカイブ) | 平米数 | 55.12㎡ |
| 初期費用概算(参考) | 目安:326,000〜426,000 円 | みなし賃料(月額・参考) | 267,833〜287,833 円 |
| 備考 | 本ページは過去募集のアーカイブです。表示の金額は周辺相場・過去募集を踏まえた参考レンジであり、実際の契約金額・条件ではありません。 | ||
※上記みなし賃料(月額)は仲介手数料割引・無料&キャッシュバックを加味した高級賃貸バイブル限定の金額です。一般的なみなし賃料とは異なります。
【建物ページ】ザ・パークハビオ滝野川の詳細・最新空室はこちら▶▶選ばれる理由
仲介手数料無料・キャンペーン情報(毎月15名様限定)
〇引っ越しお祝い金49000円プレゼント(キャッシュバック)
〇フリーレント1か月キャンペーン
〇仲介手数料無料キャンペーン
ザ・パークハビオ滝野川 910の口コミ・レビュー
ザ・パークハビオ滝野川 910。これは、ただの住まいではなく、都会の喧騒から一歩退いた静寂のオアシス。あなたに寄り添うかのように、南西の光が優しく差し込みます。この場所は、都市の便利さを享受しつつ、心の安らぎを与えてくれる、まるで物語の一ページから抜け出したかのような特別な空間です。
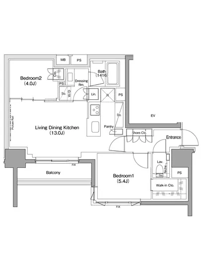
内部は、55.12㎡の広さを最大限に活かした2LDK+WICという贅沢な間取り。LDK13帖の空間に足を踏み入れ…ザ・パークハビオ滝野川 910。これは、ただの住まいではなく、都会の喧騒から一歩退いた静寂のオアシス。あなたに寄り添うかのように、南西の光が優しく差し込みます。この場所は、都市の便利さを享受しつつ、心の安らぎを与えてくれる、まるで物語の一ページから抜け出したかのような特別な空間です。
内部は、55.12㎡の広さを最大限に活かした2LDK+WICという贅沢な間取り。LDK13帖の空間に足を踏み入れると、心地よい木の香りがほのかに漂い、明るい日差しが窓から溢れ出します。その瞬間、あなたの心がふわりと軽くなるのを感じることでしょう。友人と共に囲むダイニングテーブルの上には、あつあつの料理のスチームが立ち上り、食欲をそそります。そう、ここはただの部屋ではなく、生活の舞台。あらゆる瞬間が映画のワンシーンのように色づいていくのです。
洋室5.4帖、洋室4帖は、まるでそれぞれ異なるキャラクターを持つ登場人物のよう。ひとつの部屋は穏やかな夢を見させる安息の場所、もうひとつはインスピレーションを与えるクリエイティブな空間。朝の光が差し込む中で、あなたは心地よい眠りから少しずつ目覚め、窓を開けると新鮮な空気が身体を包み込みます。近くを流れる川のせせらぎや、時折聞こえる鳥のさえずりが、心に安らぎを与えてくれるのです。
ザ・パークハビオ滝野川は、ただの住まいに留まらず、あなたの人生に寄り添う親友のような存在。管理人が心を込めて管理するこの空間は、あなたを待つ無限の可能性を秘めています。エレベーターを利用して地上へ出ると、都営地下鉄三田線 西巣鴨駅が徒歩2分の距離にあり、都会の中心地へのアクセスもスムーズ。忙しい日々でも、家に帰ることで心の安らぎを感じることができるのです。
また、オートロックや宅配ボックスといった現代的な設備が、あなたの生活を一層便利にし、安心感をもたらしてくれます。駐車場や駐輪場も完備されており、ライフスタイルに合わせた自由な移動をサポートします。まるで、この家があなたの日常を彩るアート作品の一部として、生活を美しく演出しているかのように思えます。
ザ・パークハビオ滝野川 910での生活は、まるで一冊の美しい絵本をめくるようなワクワク感に満ちています。一日の終わりに、心地よいソファに身を沈め、好きな音楽に耳を傾け、窓の外に広がる夜景を眺める。あなたの人生が、ここで輝き出す瞬間を想像してみてください。この場所は、あなたの物語を彩るために存在するのです。さあ、ザ・パークハビオ滝野川 910で、あなた自身の物語を紡ぎ始めてください。
内部は、55.12㎡の広さを最大限に活かした2LDK+WICという贅沢な間取り。LDK13帖の空間に足を踏み入れ…ザ・パークハビオ滝野川 910。これは、ただの住まいではなく、都会の喧騒から一歩退いた静寂のオアシス。あなたに寄り添うかのように、南西の光が優しく差し込みます。この場所は、都市の便利さを享受しつつ、心の安らぎを与えてくれる、まるで物語の一ページから抜け出したかのような特別な空間です。
内部は、55.12㎡の広さを最大限に活かした2LDK+WICという贅沢な間取り。LDK13帖の空間に足を踏み入れると、心地よい木の香りがほのかに漂い、明るい日差しが窓から溢れ出します。その瞬間、あなたの心がふわりと軽くなるのを感じることでしょう。友人と共に囲むダイニングテーブルの上には、あつあつの料理のスチームが立ち上り、食欲をそそります。そう、ここはただの部屋ではなく、生活の舞台。あらゆる瞬間が映画のワンシーンのように色づいていくのです。
洋室5.4帖、洋室4帖は、まるでそれぞれ異なるキャラクターを持つ登場人物のよう。ひとつの部屋は穏やかな夢を見させる安息の場所、もうひとつはインスピレーションを与えるクリエイティブな空間。朝の光が差し込む中で、あなたは心地よい眠りから少しずつ目覚め、窓を開けると新鮮な空気が身体を包み込みます。近くを流れる川のせせらぎや、時折聞こえる鳥のさえずりが、心に安らぎを与えてくれるのです。
ザ・パークハビオ滝野川は、ただの住まいに留まらず、あなたの人生に寄り添う親友のような存在。管理人が心を込めて管理するこの空間は、あなたを待つ無限の可能性を秘めています。エレベーターを利用して地上へ出ると、都営地下鉄三田線 西巣鴨駅が徒歩2分の距離にあり、都会の中心地へのアクセスもスムーズ。忙しい日々でも、家に帰ることで心の安らぎを感じることができるのです。
また、オートロックや宅配ボックスといった現代的な設備が、あなたの生活を一層便利にし、安心感をもたらしてくれます。駐車場や駐輪場も完備されており、ライフスタイルに合わせた自由な移動をサポートします。まるで、この家があなたの日常を彩るアート作品の一部として、生活を美しく演出しているかのように思えます。
ザ・パークハビオ滝野川 910での生活は、まるで一冊の美しい絵本をめくるようなワクワク感に満ちています。一日の終わりに、心地よいソファに身を沈め、好きな音楽に耳を傾け、窓の外に広がる夜景を眺める。あなたの人生が、ここで輝き出す瞬間を想像してみてください。この場所は、あなたの物語を彩るために存在するのです。さあ、ザ・パークハビオ滝野川 910で、あなた自身の物語を紡ぎ始めてください。
バイブルスコア
バイブルスコア: 42.3
条件のいい物件です、引っ越しが2か月以内の場合は仮申し込みを検討すべき物件です。
※バイブルスコア詳細はこちら
バイブルスコアとは独自のAI機械学習技術を利用した物件評価システムで、物件のおすすめ度を示します。最高得点は100点で、スコアが高いほど、よりおすすめの物件と評価されています。
写真
現在写真が登録されていません契約条件
| 賃料 | 予想金額:235,000〜255,000円程度 | 管理費 | 予想金額:23,000〜27,000円程度 |
| 礼金 | 非公開(アーカイブ) | 敷金 | 非公開(アーカイブ) |
| フリーレント | 1ヶ月 | 平米数 | 55.12㎡ |
| 間取り | 2LDK+WIC | 大型収納 | WIC |
| 契約期間 | 2年 | 方角 | 南西 |
| 更新料 | 1ヶ月 | 契約形態 | 普通賃貸借契約 |
| 取引態様 | 媒介 | 内見状況 | 入居中 |
| 入居時期 | 入居中 | SOHO・事務所 | 可 敷金1ヶ月積み増し |
| ペット | 可 敷金1ヶ月積み増し | 間取り内訳 | LDK13帖 洋室5.4帖 洋室4帖 |
| キャンペーン情報・備考 | 本情報は賃料改定交渉の資料作成、収益物件の利回り試算、周辺エリアや最寄り駅の坪単価分析、次回募集開始時期の予測などにご活用いただけます。 | ||
※「どの不動産に頼めばいいのか分からない」「信頼できる営業マンの話を聞きたい」「一番親切な会社と契約したい」とお悩みの方におすすめなのが「高級賃貸バイブル」です。
高級賃貸バイブルは業界10年以上の熟練スタッフ群がお客様ファーストで対応します。
下記ボタンから、まずは無料でご相談下さい。
※内覧をご希望の際には、どうぞ物件のエントランス前にてお待ち合わせくださいませ。ご内覧後は、同じ場所でお別れとさせていただきます。お客様のご都合に合わせたスムーズなご案内を心がけておりますので、ご質問等がございましたら何なりとお申し付けください。 物件概要
| 物件名 |
| 築年月 |
|
|---|---|---|---|
| 所在地 | |||
| 交通 | |||
| 総戸数 |
| 総階数 |
|
| 構造 |
| ||
地図
物件までの道のりは、「拡大地図を表示」をクリックしてナビ機能をご利用ください。
部屋設備













建物設備

TVモニターホン

エレベーター

オートロック

バイク置場

宅配ボックス

敷地内ゴミ置場

管理人

駐車場平置き

駐車場機械式

駐輪場
ザ・パークハビオ滝野川の現在募集中のお部屋
- ザ・パークハビオ滝野川 811 - 間取り: 2LDK+WIC+SIC - 賃料: 24万円
- ザ・パークハビオ滝野川 911 - 間取り: 2LDK+WIC+SIC - 賃料: 24.3万円
- ザ・パークハビオ滝野川 504 - 間取り: 1LDK - 賃料: 15.4万円
- ザ・パークハビオ滝野川 801 - 間取り: 2LDK+WIC - 賃料: 23.7万円
