
| 賃料 | 予想金額:235,000〜255,000円程度 | 管理費 | 予想金額:23,000〜27,000円程度 |
| 礼金/敷金 | 非公開(アーカイブ) | 平米数 | 56.61㎡ |
| 初期費用概算(参考) | 目安:326,000〜426,000 円 | みなし賃料(月額・参考) | 267,833〜287,833 円 |
| 備考 | 本ページは過去募集のアーカイブです。表示の金額は周辺相場・過去募集を踏まえた参考レンジであり、実際の契約金額・条件ではありません。 | ||
※上記みなし賃料(月額)は仲介手数料割引・無料&キャッシュバックを加味した高級賃貸バイブル限定の金額です。一般的なみなし賃料とは異なります。
【建物ページ】ザ・パークハビオ滝野川の詳細・最新空室はこちら▶▶選ばれる理由
仲介手数料無料・キャンペーン情報(毎月15名様限定)
〇引っ越しお祝い金49000円プレゼント(キャッシュバック)
〇フリーレント1か月キャンペーン
〇仲介手数料無料キャンペーン
ザ・パークハビオ滝野川 709の口コミ・レビュー
扉を開けると、まず耳に飛び込んでくるのは、心地よい静寂。まるで消え入るような音楽のように、…ザ・パークハビオ滝野川 709。この美しい名前のもとに広がる空間は、まるで都会の喧騒から解放された静謐なオアシスです。東京都北区滝野川6-1-1に位置し、北西に向かって開かれた窓からは、四季折々の風景が心を癒すごとく流れ込みます。709号室は、あなたの心の隠れ家として、日常を彩る特別な存在となるでしょう。
扉を開けると、まず耳に飛び込んでくるのは、心地よい静寂。まるで消え入るような音楽のように、都心の喧騒はどこかへ姿を消します。LDK15.4帖の広々とした空間は、朝の光を含んだ黄昏が降り注ぎ、グラデーションの美しい色合いを木のフローリングが優しく受け止めます。あなたを招き入れるこの空間は、家族や友人との思い出をつむぐための舞台であり、共に過ごす時間を特別なものへと導いてくれるでしょう。
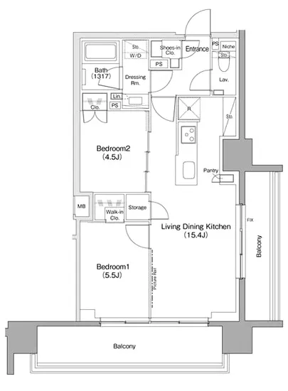
続いて訪れる洋室5.5帖と洋室4.5帖は、まるでそれぞれ異なる物語を持つキャラクターのよう。5.5帖の洋室は、柔らかな色合いのカーテンが風に揺れ、まるでほんのりとした香りを運んでくる清々しい朝を思わせます。ここでは、朝食を楽しむ幸せな時間が流れ、あなたの好きな本に囲まれて穏やかなひとときを過ごすことができます。一方、4.5帖の洋室は、リラックスしたい夜や静かな創造の時間を提供してくれる隠れ家。窓の外には星空が広がり、夜更けに訪れる静寂があなたを包み込みます。
ザ・パークハビオ滝野川 709には、生活に必要な全ての設備も備わっています。オートロックの厳重さがあなたを守り、TVモニターホンが安心感をもたらす。宅配ボックスが忙しい日常をサポートし、駐車場や駐輪場は、あなたの足元を支えてくれる存在となります。管理人が日々見守るこの場所は、単なる住まいを超え、心の拠り所となるのです。
地元の歴史や文化もまた、あなたの生活の一部として息づいています。近隣には、古くからの風情を残す街並みが広がり、訪れるたびに新たな発見をもたらしてくれるでしょう。西巣鴨駅から徒歩わずか2分の立地は、忙しい日常の中でもスムーズな移動を実現し、あなたのライフスタイルをより豊かにしてくれます。この特別な空間で、あなた自身の物語を紡ぎ始めてみませんか?ザ・パークハビオ滝野川 709は、その舞台として、いつでもあなたを迎え入れる準備が整っています。あなたの物語のページを、一緒にめくりましょう。
バイブルスコア
バイブルスコア: 60.3
かなり条件の良い物件です、即仮押さえをおすすめする物件です!
このお部屋は、現在ご入居中のため空室情報はございません。ただし、将来的に募集が開始される際、バイブルスコアにおいて非常に高い評価が期待されます。特にご興味をお持ちの方は、今のうちにブックマークやお気に入りに登録していただくと、募集開始のお知らせをすぐに受け取ることができます。是非ともご検討くださいませ。
※バイブルスコア詳細はこちら
バイブルスコアとは独自のAI機械学習技術を利用した物件評価システムで、物件のおすすめ度を示します。最高得点は100点で、スコアが高いほど、よりおすすめの物件と評価されています。
写真
現在写真が登録されていません契約条件
| 賃料 | 予想金額:235,000〜255,000円程度 | 管理費 | 予想金額:23,000〜27,000円程度 |
| 礼金 | 非公開(アーカイブ) | 敷金 | 非公開(アーカイブ) |
| フリーレント | 1ヶ月 | 平米数 | 56.61㎡ |
| 間取り | 2LDK+WIC+SIC | 大型収納 | SIC・WIC |
| 契約期間 | 2年 | 方角 | 北西 |
| 更新料 | 1ヶ月 | 契約形態 | 普通賃貸借契約 |
| 取引態様 | 媒介 | 内見状況 | 入居中 |
| 入居時期 | 入居中 | SOHO・事務所 | 可 |
| ペット | 可 | 間取り内訳 | LDK15.4帖 洋室5.5帖 洋室4.5帖 |
| キャンペーン情報・備考 | 本情報は賃料改定交渉の資料作成、収益物件の利回り試算、周辺エリアや最寄り駅の坪単価分析、次回募集開始時期の予測などにご活用いただけます。 | ||
※「どの不動産に頼めばいいのか分からない」「信頼できる営業マンの話を聞きたい」「一番親切な会社と契約したい」とお悩みの方におすすめなのが「高級賃貸バイブル」です。
高級賃貸バイブルは業界10年以上の熟練スタッフ群がお客様ファーストで対応します。
下記ボタンから、まずは無料でご相談下さい。
※内覧をご希望の際には、どうぞ物件のエントランス前にてお待ち合わせくださいませ。ご内覧後は、同じ場所でお別れとさせていただきます。お客様のご都合に合わせたスムーズなご案内を心がけておりますので、ご質問等がございましたら何なりとお申し付けください。 物件概要
| 物件名 |
| 築年月 |
|
|---|---|---|---|
| 所在地 | |||
| 交通 | |||
| 総戸数 |
| 総階数 |
|
| 構造 |
| ||
地図
物件までの道のりは、「拡大地図を表示」をクリックしてナビ機能をご利用ください。
部屋設備














建物設備

TVモニターホン

エレベーター

オートロック

バイク置場

宅配ボックス

敷地内ゴミ置場

管理人

駐車場平置き

駐車場機械式

駐輪場
ザ・パークハビオ滝野川の現在募集中のお部屋
- ザ・パークハビオ滝野川 811 - 間取り: 2LDK+WIC+SIC - 賃料: 24万円
- ザ・パークハビオ滝野川 911 - 間取り: 2LDK+WIC+SIC - 賃料: 24.3万円
- ザ・パークハビオ滝野川 504 - 間取り: 1LDK - 賃料: 15.4万円
- ザ・パークハビオ滝野川 801 - 間取り: 2LDK+WIC - 賃料: 23.7万円
