
| 賃料 | 予想金額:121,000〜141,000円程度 | 管理費 | 予想金額:8,000〜12,000円程度 |
| 礼金/敷金 | 非公開(アーカイブ) | 平米数 | 30.24㎡ |
| 初期費用概算(参考) | 目安:278,400〜378,400 円 | みなし賃料(月額・参考) | 135,113〜155,113 円 |
| 備考 | 本ページは過去募集のアーカイブです。表示の金額は周辺相場・過去募集を踏まえた参考レンジであり、実際の契約金額・条件ではありません。 | ||
※上記みなし賃料(月額)は仲介手数料割引・無料&キャッシュバックを加味した高級賃貸バイブル限定の金額です。一般的なみなし賃料とは異なります。
【建物ページ】レジディア大井町2の詳細・最新空室はこちら▶▶選ばれる理由
仲介手数料無料・キャンペーン情報(毎月15名様限定)
〇仲介手数料無料キャンペーン
レジディア大井町2 204の口コミ・レビュー
レジディア大井町2 204、ここはただの住まいではありません。この特別な空間は、あなたが日々を過ごす舞台であり、心の拠り所へと変わります。品川区大井に位置し、緑豊かな環境の中に佇むこの物件は、東向きの窓から朝日が優しく差し込み、あなたの一日を明るく照らします。まるで、美しい絵画の中にいるかのような感覚を味わえることでしょう。
レジディア大井町2 204に足を踏み入れれば、豊かな香りと共に洗練され…レジディア大井町2 204、ここはただの住まいではありません。この特別な空間は、あなたが日々を過ごす舞台であり、心の拠り所へと変わります。品川区大井に位置し、緑豊かな環境の中に佇むこの物件は、東向きの窓から朝日が優しく差し込み、あなたの一日を明るく照らします。まるで、美しい絵画の中にいるかのような感覚を味わえることでしょう。
レジディア大井町2 204に足を踏み入れれば、豊かな香りと共に洗練されたデザインが迎え入れてくれます。11帖の洋室は、広がりを持ち、あなたの想像力を刺激するような心地よい空間です。ここにいるだけで、すぐにインスピレーションを感じるかもしれません。朝のコーヒーの香りが漂う中で、窓を開けると新鮮な空気が流れ込み、都会の喧騒を一瞬忘れさせてくれます。
この物件は、まるで優れた演出家のように、あなたのライフスタイルを彩ります。例えば、午後の陽射しが部屋を包み込む頃、あなたは柔らかなカーテンを揺らしながら、心地よい音楽を流し、くつろぎの時間を過ごすことができるのです。また、宅配ボックスがあることで、忙しいあなたの生活リズムを支えてくれます。大切な荷物や贈り物が、あなたを待ち構えています。
レジディア大井町2 204は、数多くの設備によって安心感も提供します。オートロックやTVモニターホンが備えられているため、安全面でも心配無用です。管理人が常駐しているため、何かあった時もすぐに頼りにすることができ、まるで家族のように安心感を与えてくれます。駐車場やバイク置場も完備されており、車を利用するあなたにとっても理想的な環境です。
近くには、歴史ある大井町の街並みが広がり、散策するだけでも心が洗われるようです。地元のカフェやレストランでは、季節ごとの料理を楽しむことができ、舌を唸らせる美味しさに目を輝かせることでしょう。レジディア大井町2 204の生活は、単なる日常を超え、映画のワンシーンのように感じられる瞬間で溢れています。
住まいとしてのレジディア大井町2 204は、あなたに多数の物語を与える舞台。ここでの生活は、日々新たな発見と出会いに満ちています。きっとこの特別な場所が、あなたの人生の素晴らしい一幕を演出することでしょう。さあ、レジディア大井町2 204で新たな章を始めてみませんか。あなたの新しい物語が、ここから始まります。
レジディア大井町2 204に足を踏み入れれば、豊かな香りと共に洗練され…レジディア大井町2 204、ここはただの住まいではありません。この特別な空間は、あなたが日々を過ごす舞台であり、心の拠り所へと変わります。品川区大井に位置し、緑豊かな環境の中に佇むこの物件は、東向きの窓から朝日が優しく差し込み、あなたの一日を明るく照らします。まるで、美しい絵画の中にいるかのような感覚を味わえることでしょう。
レジディア大井町2 204に足を踏み入れれば、豊かな香りと共に洗練されたデザインが迎え入れてくれます。11帖の洋室は、広がりを持ち、あなたの想像力を刺激するような心地よい空間です。ここにいるだけで、すぐにインスピレーションを感じるかもしれません。朝のコーヒーの香りが漂う中で、窓を開けると新鮮な空気が流れ込み、都会の喧騒を一瞬忘れさせてくれます。
この物件は、まるで優れた演出家のように、あなたのライフスタイルを彩ります。例えば、午後の陽射しが部屋を包み込む頃、あなたは柔らかなカーテンを揺らしながら、心地よい音楽を流し、くつろぎの時間を過ごすことができるのです。また、宅配ボックスがあることで、忙しいあなたの生活リズムを支えてくれます。大切な荷物や贈り物が、あなたを待ち構えています。
レジディア大井町2 204は、数多くの設備によって安心感も提供します。オートロックやTVモニターホンが備えられているため、安全面でも心配無用です。管理人が常駐しているため、何かあった時もすぐに頼りにすることができ、まるで家族のように安心感を与えてくれます。駐車場やバイク置場も完備されており、車を利用するあなたにとっても理想的な環境です。
近くには、歴史ある大井町の街並みが広がり、散策するだけでも心が洗われるようです。地元のカフェやレストランでは、季節ごとの料理を楽しむことができ、舌を唸らせる美味しさに目を輝かせることでしょう。レジディア大井町2 204の生活は、単なる日常を超え、映画のワンシーンのように感じられる瞬間で溢れています。
住まいとしてのレジディア大井町2 204は、あなたに多数の物語を与える舞台。ここでの生活は、日々新たな発見と出会いに満ちています。きっとこの特別な場所が、あなたの人生の素晴らしい一幕を演出することでしょう。さあ、レジディア大井町2 204で新たな章を始めてみませんか。あなたの新しい物語が、ここから始まります。
写真
契約条件
| 賃料 | 予想金額:121,000〜141,000円程度 | 管理費 | 予想金額:8,000〜12,000円程度 |
| 礼金 | 非公開(アーカイブ) | 敷金 | 非公開(アーカイブ) |
| フリーレント | なし | 平米数 | 30.24㎡ |
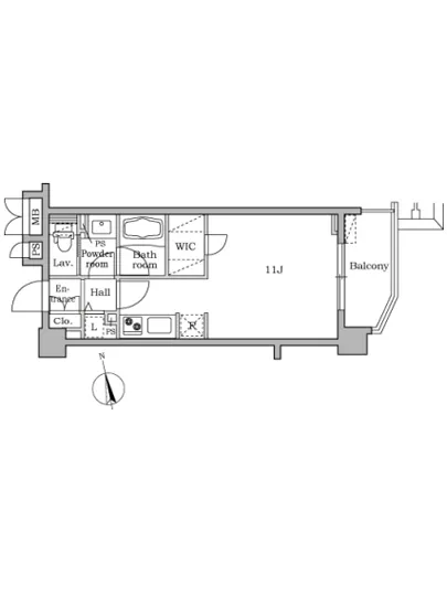
| 間取り | 1K | 大型収納 | WIC |
| 契約期間 |
| 方角 | 東 |
| 更新料 | 契約形態 | 普通賃貸借契約 | |
| 取引態様 | 媒介 | 内見状況 | 入居中 |
| 入居時期 | 入居中 | SOHO・事務所 | |
| ペット | ペット可 | 間取り内訳 | 洋:11 |
| キャンペーン情報・備考 | 本情報は賃料改定交渉の資料作成、収益物件の利回り試算、周辺エリアや最寄り駅の坪単価分析、次回募集開始時期の予測などにご活用いただけます。 | ||
※「どの不動産に頼めばいいのか分からない」「信頼できる営業マンの話を聞きたい」「一番親切な会社と契約したい」とお悩みの方におすすめなのが「高級賃貸バイブル」です。
高級賃貸バイブルは業界10年以上の熟練スタッフ群がお客様ファーストで対応します。
下記ボタンから、まずは無料でご相談下さい。
※内覧をご希望の際には、どうぞ物件のエントランス前にてお待ち合わせくださいませ。ご内覧後は、同じ場所でお別れとさせていただきます。お客様のご都合に合わせたスムーズなご案内を心がけておりますので、ご質問等がございましたら何なりとお申し付けください。 物件概要
| 物件名 |
| 築年月 |
|
|---|---|---|---|
| 所在地 | |||
| 交通 | |||
| 総戸数 |
| 総階数 |
|
| 構造 |
| ||
地図
物件までの道のりは、「拡大地図を表示」をクリックしてナビ機能をご利用ください。
部屋設備













建物設備

TVモニターホン

エレベーター

オートロック

バイク置場

宅配ボックス

敷地内ゴミ置場

管理人

駐車場平置き

駐車場機械式

駐輪場
レジディア大井町2の現在募集中のお部屋
- レジディア大井町Ⅱ 404 - 間取り: 1R+WIC - 賃料: 16.5万円


