
| 賃料 | 予想金額:139,000〜159,000円程度 | 管理費 | 予想金額:13,000〜17,000円程度 |
| 礼金/敷金 | 非公開(アーカイブ) | 平米数 | 30.25㎡ |
| 初期費用概算(参考) | 目安:202,700〜302,700 円 | みなし賃料(月額・参考) | 156,160〜176,160 円 |
| 備考 | 本ページは過去募集のアーカイブです。表示の金額は周辺相場・過去募集を踏まえた参考レンジであり、実際の契約金額・条件ではありません。 | ||
※上記みなし賃料(月額)は仲介手数料割引・無料&キャッシュバックを加味した高級賃貸バイブル限定の金額です。一般的なみなし賃料とは異なります。
【建物ページ】クオリタス秋葉原の詳細・最新空室はこちら▶▶選ばれる理由
仲介手数料無料・キャンペーン情報(毎月15名様限定)
〇引っ越しお祝い金29800円プレゼント(キャッシュバック)
〇仲介手数料無料キャンペーン
QUALITAS秋葉原 (クオリタス秋葉原) 1202の口コミ・レビュー
QUALITAS秋葉原 (クオリタス秋葉原) 1202は、まるで一篇の詩のように、美しい調和を保っています。この1202号室は、あなたを日常の喧騒から解き放ち、まるで特別な映画の主人公となるかのような優雅な空間を提供します。東京都千代田区神田佐久間町4-20に位置するこの高級賃貸物件は、心地よい風が窓から流れ込み、西を向いた居室は、夕日が柔らかく差し込み、心を和ませてくれるでしょう。
この場所で…QUALITAS秋葉原 (クオリタス秋葉原) 1202は、まるで一篇の詩のように、美しい調和を保っています。この1202号室は、あなたを日常の喧騒から解き放ち、まるで特別な映画の主人公となるかのような優雅な空間を提供します。東京都千代田区神田佐久間町4-20に位置するこの高級賃貸物件は、心地よい風が窓から流れ込み、西を向いた居室は、夕日が柔らかく差し込み、心を和ませてくれるでしょう。
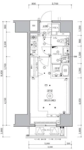
この場所で新たな生活を始めるあなたのために、QUALITAS秋葉原は優れた機能性とデザインを融合させています。洋室10帖という大きな間取りは、あなたの個性を際立たせるキャンバスです。広々とした空間では、あなたの気持ちや思考が自由に舞い踊り、クリエイティブなインスピレーションを与えてくれるはずです。専有面積30.25㎡は、まるで楽器の音色が響くように、心地よい空気感を生み出しています。
QUALITAS秋葉原は、生活の利便性を考えた設備も整っています。TVモニターホンがそっとあなたを見守り、エレベーターはまるであなたのために特別に用意された乗り物のように、上品に動いてくれます。オートロックの扉があなたを守り、まるで守護神のように安心感を与えてくれることでしょう。そして、宅配ボックスはあなたのライフスタイルに寄り添い、忙しい日々の中でも優雅さを失わせない存在となるでしょう。
周辺は歴史と文化の薫り漂う場所です。秋葉原は世界的に名の知れた電気街であり、あなたの毎日は最先端のテクノロジーと独特のサブカルチャーの交差点で彩られます。東京メトロ日比谷線秋葉原駅から徒歩6分の距離というアクセスも、まるで人生の冒険を引き寄せるかのように素晴らしいです。高級ブランドの店舗やアートギャラリー、個性的なカフェが立ち並ぶこのエリアでは、日常がまるで映画のワンシーンのように展開されることでしょう。
想像してみてください。朝の光が差し込むQUALITAS秋葉原の洋室で、コーヒーの香りが漂う中、ゆっくりと大好きな本を開く瞬間。肌に感じる心地よい風は、まるで新しい出会いの予感を運んでくれるようです。日が暮れる頃、秋葉原の街がイルミネーションに包まれ、まるで一つの大きな舞台装置のように美しく輝く様子を眺めながら、あなたの生活はまさに美術品そのものとなります。
QUALITAS秋葉原 (クオリタス秋葉原) 1202での暮らしは、瞬間瞬間が特別な記憶として刻まれていくことでしょう。あなた自身がその物語の主人公となり、日々の生活の中で、新たな幸せを見つけることができるのです。あなたを待ち受けているこの洗練された空間で、ぜひとも新たな物語を紡いでください。
この場所で…QUALITAS秋葉原 (クオリタス秋葉原) 1202は、まるで一篇の詩のように、美しい調和を保っています。この1202号室は、あなたを日常の喧騒から解き放ち、まるで特別な映画の主人公となるかのような優雅な空間を提供します。東京都千代田区神田佐久間町4-20に位置するこの高級賃貸物件は、心地よい風が窓から流れ込み、西を向いた居室は、夕日が柔らかく差し込み、心を和ませてくれるでしょう。
この場所で新たな生活を始めるあなたのために、QUALITAS秋葉原は優れた機能性とデザインを融合させています。洋室10帖という大きな間取りは、あなたの個性を際立たせるキャンバスです。広々とした空間では、あなたの気持ちや思考が自由に舞い踊り、クリエイティブなインスピレーションを与えてくれるはずです。専有面積30.25㎡は、まるで楽器の音色が響くように、心地よい空気感を生み出しています。
QUALITAS秋葉原は、生活の利便性を考えた設備も整っています。TVモニターホンがそっとあなたを見守り、エレベーターはまるであなたのために特別に用意された乗り物のように、上品に動いてくれます。オートロックの扉があなたを守り、まるで守護神のように安心感を与えてくれることでしょう。そして、宅配ボックスはあなたのライフスタイルに寄り添い、忙しい日々の中でも優雅さを失わせない存在となるでしょう。
周辺は歴史と文化の薫り漂う場所です。秋葉原は世界的に名の知れた電気街であり、あなたの毎日は最先端のテクノロジーと独特のサブカルチャーの交差点で彩られます。東京メトロ日比谷線秋葉原駅から徒歩6分の距離というアクセスも、まるで人生の冒険を引き寄せるかのように素晴らしいです。高級ブランドの店舗やアートギャラリー、個性的なカフェが立ち並ぶこのエリアでは、日常がまるで映画のワンシーンのように展開されることでしょう。
想像してみてください。朝の光が差し込むQUALITAS秋葉原の洋室で、コーヒーの香りが漂う中、ゆっくりと大好きな本を開く瞬間。肌に感じる心地よい風は、まるで新しい出会いの予感を運んでくれるようです。日が暮れる頃、秋葉原の街がイルミネーションに包まれ、まるで一つの大きな舞台装置のように美しく輝く様子を眺めながら、あなたの生活はまさに美術品そのものとなります。
QUALITAS秋葉原 (クオリタス秋葉原) 1202での暮らしは、瞬間瞬間が特別な記憶として刻まれていくことでしょう。あなた自身がその物語の主人公となり、日々の生活の中で、新たな幸せを見つけることができるのです。あなたを待ち受けているこの洗練された空間で、ぜひとも新たな物語を紡いでください。
バイブルスコア
バイブルスコア: 49.4
条件のいい物件です、引っ越しが2か月以内の場合は仮申し込みを検討すべき物件です。
※バイブルスコア詳細はこちら
バイブルスコアとは独自のAI機械学習技術を利用した物件評価システムで、物件のおすすめ度を示します。最高得点は100点で、スコアが高いほど、よりおすすめの物件と評価されています。
写真
契約条件
| 賃料 | 予想金額:139,000〜159,000円程度 | 管理費 | 予想金額:13,000〜17,000円程度 |
| 礼金 | 非公開(アーカイブ) | 敷金 | 非公開(アーカイブ) |
| フリーレント | なし | 平米数 | 30.25㎡ |
| 間取り | 1K | 大型収納 | なし |
| 契約期間 | 2年 | 方角 | 西 |
| 更新料 | 1ヶ月 | 契約形態 | 普通賃貸借契約 |
| 取引態様 | 媒介 | 内見状況 | 入居中 |
| 入居時期 | 入居中 | SOHO・事務所 | 不可 |
| ペット | 可 | 間取り内訳 | 洋室10帖 |
| キャンペーン情報・備考 | 本情報は賃料改定交渉の資料作成、収益物件の利回り試算、周辺エリアや最寄り駅の坪単価分析、次回募集開始時期の予測などにご活用いただけます。 | ||
※「どの不動産に頼めばいいのか分からない」「信頼できる営業マンの話を聞きたい」「一番親切な会社と契約したい」とお悩みの方におすすめなのが「高級賃貸バイブル」です。
高級賃貸バイブルは業界10年以上の熟練スタッフ群がお客様ファーストで対応します。
下記ボタンから、まずは無料でご相談下さい。
※内覧をご希望の際には、どうぞ物件のエントランス前にてお待ち合わせくださいませ。ご内覧後は、同じ場所でお別れとさせていただきます。お客様のご都合に合わせたスムーズなご案内を心がけておりますので、ご質問等がございましたら何なりとお申し付けください。 物件概要
| 物件名 |
| 築年月 |
|
|---|---|---|---|
| 所在地 | |||
| 交通 | |||
| 総戸数 |
| 総階数 |
|
| 構造 |
| ||
地図
物件までの道のりは、「拡大地図を表示」をクリックしてナビ機能をご利用ください。
部屋設備








建物設備

TVモニターホン

エレベーター

オートロック

バイク置場

宅配ボックス

敷地内ゴミ置場

管理人

駐輪場
クオリタス秋葉原の現在募集中のお部屋
- No rooms found for this property.
























