
| 賃料 | 予想金額:116,000〜136,000円程度 | 管理費 | 予想金額:7,000〜11,000円程度 |
| 礼金/敷金 | 非公開(アーカイブ) | 平米数 | 25.39㎡ |
| 初期費用概算(参考) | 目安:118,000〜218,000 円 | みなし賃料(月額・参考) | 128,500〜148,500 円 |
| 備考 | 本ページは過去募集のアーカイブです。表示の金額は周辺相場・過去募集を踏まえた参考レンジであり、実際の契約金額・条件ではありません。 | ||
※上記みなし賃料(月額)は仲介手数料割引・無料&キャッシュバックを加味した高級賃貸バイブル限定の金額です。一般的なみなし賃料とは異なります。
【建物ページ】オーパスレジデンス武蔵小山の詳細・最新空室はこちら▶▶選ばれる理由
仲介手数料無料・キャンペーン情報(毎月15名様限定)
〇フリーレント2か月キャンペーン
オーパスレジデンス武蔵小山 301の口コミ・レビュー
オーパスレジデンス武蔵小山 301。この名前を耳にした瞬間、心の奥に静かな期待が芽生えます。美しき街、東京都品川区荏原に佇むこの物件は、特別な物語の舞台を提供してくれる場所。301という数字は、まるであなたの新しい生活が始まることを知らせる合図。南西向きの窓からは、優しい日差しが舞い込み、街の喧騒を忘れさせる静謐な空間を作り出します。
お入りいただくと、心地よい広さを持つ25.39㎡の世界が広が…オーパスレジデンス武蔵小山 301。この名前を耳にした瞬間、心の奥に静かな期待が芽生えます。美しき街、東京都品川区荏原に佇むこの物件は、特別な物語の舞台を提供してくれる場所。301という数字は、まるであなたの新しい生活が始まることを知らせる合図。南西向きの窓からは、優しい日差しが舞い込み、街の喧騒を忘れさせる静謐な空間を作り出します。
お入りいただくと、心地よい広さを持つ25.39㎡の世界が広がります。洋室は7.1帖という贅沢な空間で、自分だけの時間を楽しむためのセーニャのような存在。ひんやりとしたフローリングは、素足で触れる度に新しい感覚が広がり、まるで自然の一部を感じているかのよう。窓からは、季節ごとに変わる自然の色彩が見え、耳を澄ませば、鳥のさえずりや街の遠くから聞こえる音楽が、あなたを包み込んでくれるでしょう。
オーパスレジデンス武蔵小山 301は、ただの住まいではありません。ここは、あなたの毎日を映し出すキャンバスなのです。忙しい日常の合間に、エレベーターで上がった先に広がる居心地のよさは、まるで心のオアシス。オートロックの安心感が、あなたのプライバシーを守り、バイク置場や駐輪場があなたのライフスタイルを支えます。宅配ボックスも完備しているので、どんなに忙しい日々でも、待ちわびた荷物があなたを迎え入れてくれます。
武蔵小山駅から徒歩5分という立地は、まるで古くからの友人が近くに住んでいるかの如く、日常の利便性を与えてくれます。近隣には歴史的な文化が息づいており、昔ながらの商店街や美味しい飲食店が点在しています。道を歩けば、地元の人々の温かな笑顔や、スパイスの香りが漂ってきて、まるで映画のワンシーンにいるかのような感覚を覚えます。
オーパスレジデンス武蔵小山 301での生活は、まるで自らの人生を映画化するような特別な体験です。朝焼けの光の中で目覚め、心地よい空気に包まれながら、一杯のコーヒーを楽しむ。日が沈む頃には、窓から見えるのは美しい夕焼け。まるで時間が止まったかのような、至福の瞬間があなたのものに。
私たちは、ここでの生活が毎日を特別にしてくれることを信じています。オーパスレジデンス武蔵小山 301で、心満たされる日々を送りませんか。まるで新しい小説が始まるように、この場所での新たな物語を紡ぎましょう。あなたの人生が、ここから新たな色彩を持つことを心より願っています。
お入りいただくと、心地よい広さを持つ25.39㎡の世界が広が…オーパスレジデンス武蔵小山 301。この名前を耳にした瞬間、心の奥に静かな期待が芽生えます。美しき街、東京都品川区荏原に佇むこの物件は、特別な物語の舞台を提供してくれる場所。301という数字は、まるであなたの新しい生活が始まることを知らせる合図。南西向きの窓からは、優しい日差しが舞い込み、街の喧騒を忘れさせる静謐な空間を作り出します。
お入りいただくと、心地よい広さを持つ25.39㎡の世界が広がります。洋室は7.1帖という贅沢な空間で、自分だけの時間を楽しむためのセーニャのような存在。ひんやりとしたフローリングは、素足で触れる度に新しい感覚が広がり、まるで自然の一部を感じているかのよう。窓からは、季節ごとに変わる自然の色彩が見え、耳を澄ませば、鳥のさえずりや街の遠くから聞こえる音楽が、あなたを包み込んでくれるでしょう。
オーパスレジデンス武蔵小山 301は、ただの住まいではありません。ここは、あなたの毎日を映し出すキャンバスなのです。忙しい日常の合間に、エレベーターで上がった先に広がる居心地のよさは、まるで心のオアシス。オートロックの安心感が、あなたのプライバシーを守り、バイク置場や駐輪場があなたのライフスタイルを支えます。宅配ボックスも完備しているので、どんなに忙しい日々でも、待ちわびた荷物があなたを迎え入れてくれます。
武蔵小山駅から徒歩5分という立地は、まるで古くからの友人が近くに住んでいるかの如く、日常の利便性を与えてくれます。近隣には歴史的な文化が息づいており、昔ながらの商店街や美味しい飲食店が点在しています。道を歩けば、地元の人々の温かな笑顔や、スパイスの香りが漂ってきて、まるで映画のワンシーンにいるかのような感覚を覚えます。
オーパスレジデンス武蔵小山 301での生活は、まるで自らの人生を映画化するような特別な体験です。朝焼けの光の中で目覚め、心地よい空気に包まれながら、一杯のコーヒーを楽しむ。日が沈む頃には、窓から見えるのは美しい夕焼け。まるで時間が止まったかのような、至福の瞬間があなたのものに。
私たちは、ここでの生活が毎日を特別にしてくれることを信じています。オーパスレジデンス武蔵小山 301で、心満たされる日々を送りませんか。まるで新しい小説が始まるように、この場所での新たな物語を紡ぎましょう。あなたの人生が、ここから新たな色彩を持つことを心より願っています。
バイブルスコア
バイブルスコア: 33.6
平均的なスコアです。
※バイブルスコア詳細はこちら
バイブルスコアとは独自のAI機械学習技術を利用した物件評価システムで、物件のおすすめ度を示します。最高得点は100点で、スコアが高いほど、よりおすすめの物件と評価されています。
写真
現在写真が登録されていません契約条件
| 賃料 | 予想金額:116,000〜136,000円程度 | 管理費 | 予想金額:7,000〜11,000円程度 |
| 礼金 | 非公開(アーカイブ) | 敷金 | 非公開(アーカイブ) |
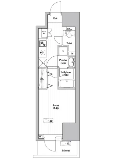
| フリーレント | 2.0ヶ月 | 平米数 | 25.39㎡ |
| 間取り | 1K | 大型収納 | |
| 契約期間 |
| 方角 | 南西 |
| 更新料 | 契約形態 | 普通賃貸借契約 | |
| 取引態様 | 媒介 | 内見状況 | 入居中 |
| 入居時期 | 入居中 | SOHO・事務所 | |
| ペット | ペット可 | 間取り内訳 | 洋:7.1 |
| キャンペーン情報・備考 | 本情報は賃料改定交渉の資料作成、収益物件の利回り試算、周辺エリアや最寄り駅の坪単価分析、次回募集開始時期の予測などにご活用いただけます。 | ||
※「どの不動産に頼めばいいのか分からない」「信頼できる営業マンの話を聞きたい」「一番親切な会社と契約したい」とお悩みの方におすすめなのが「高級賃貸バイブル」です。
高級賃貸バイブルは業界10年以上の熟練スタッフ群がお客様ファーストで対応します。
下記ボタンから、まずは無料でご相談下さい。
※内覧をご希望の際には、どうぞ物件のエントランス前にてお待ち合わせくださいませ。ご内覧後は、同じ場所でお別れとさせていただきます。お客様のご都合に合わせたスムーズなご案内を心がけておりますので、ご質問等がございましたら何なりとお申し付けください。 物件概要
| 物件名 |
| 築年月 |
|
|---|---|---|---|
| 所在地 | |||
| 交通 | |||
| 総戸数 |
| 総階数 |
|
| 構造 |
| ||
地図
物件までの道のりは、「拡大地図を表示」をクリックしてナビ機能をご利用ください。
部屋設備














建物設備

TVモニターホン

エレベーター

オートロック

バイク置場

宅配ボックス

敷地内ゴミ置場

管理人

駐車場平置き

駐車場機械式

駐輪場
オーパスレジデンス武蔵小山の現在募集中のお部屋
- オーパスレジデンス武蔵小山 307 - 間取り: 1LDK+WIC - 賃料: 26.3万円
- オーパスレジデンス武蔵小山 1401 - 間取り: 1K - 賃料: 15.1万円
