
| 賃料 | 予想金額:505,000〜525,000円程度 | 管理費 | 予想金額:23,000〜27,000円程度 |
| 礼金/敷金 | 非公開(アーカイブ) | 平米数 | 110.92㎡ |
| 初期費用概算(参考) | 目安:796,500〜896,500 円 | みなし賃料(月額・参考) | 547,635〜567,635 円 |
| 備考 | 本ページは過去募集のアーカイブです。表示の金額は周辺相場・過去募集を踏まえた参考レンジであり、実際の契約金額・条件ではありません。 | ||
※上記みなし賃料(月額)は仲介手数料割引・無料&キャッシュバックを加味した高級賃貸バイブル限定の金額です。一般的なみなし賃料とは異なります。
【建物ページ】参宮橋マンションの詳細・最新空室はこちら▶▶選ばれる理由
仲介手数料無料・キャンペーン情報(毎月15名様限定)
〇引っ越しお祝い金515000円プレゼント(キャッシュバック)
〇フリーレント2か月キャンペーン
〇仲介手数料無料キャンペーン
参宮橋マンション 315の口コミ・レビュー
参宮橋マンション 315。この名が響くその瞬間から、あなたは特別な世界への扉を開くことになります。東京都渋谷区代々木4-41-7に佇むこの高級賃貸物件は、まるで優雅な舞踏会に招かれたかのような感覚をあなたに与えます。南東に面したその窓からは、朝の柔らかな光がもたらす黄金色の夢が舞い込むことでしょう。
このマンションは、110.92㎡という広々とした専有面積を誇り、その恵みはまるで広がりを持つ美し…参宮橋マンション 315。この名が響くその瞬間から、あなたは特別な世界への扉を開くことになります。東京都渋谷区代々木4-41-7に佇むこの高級賃貸物件は、まるで優雅な舞踏会に招かれたかのような感覚をあなたに与えます。南東に面したその窓からは、朝の柔らかな光がもたらす黄金色の夢が舞い込むことでしょう。
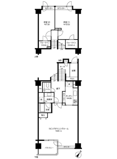
このマンションは、110.92㎡という広々とした専有面積を誇り、その恵みはまるで広がりを持つ美しい風景画のようです。2LDKの間取りでは、あなたの人生のストーリーが豊かに描かれます。LDKは23.1帖、まるで劇場の舞台のように開放感に溢れ、そこに家族や友人が集い、笑顔があふれるシーンが展開されることでしょう。洋室の10帖と7.3帖は、それぞれが心の隠れ家であり、あなたが自分だけの時間を過ごすための特別な空間となるのです。
想像してみてください。朝目覚めたあなたが、カーテンを開ける瞬間。その瞬間、優しい日差しが部屋を包み込み、どこか懐かしいような温かい空気が鼻元をくすぐります。コーヒーの香りが漂うキッチンで、朝食の準備をする音が心地よく響き渡り、家族との楽しい会話が耳に優しいBGMのように流れます。23.1帖のLDKでは、音楽が流れ、笑い声が絶えない瞬間が生まれます。そして、そのひとときを大切にするための空間が、あなたの日々を彩ります。
参宮橋マンション 315には、24時間管理という安全と安心が約束されています。オートロックやTVモニターホンなど、現代の生活に欠かせないセキュリティ設備も万全です。そして、宅配ボックスがあることで、大切な荷物がいつでも受け取れる利便性が、忙しい日常においてもゆとりを生み出します。
また、駐車場が平置きと機械式で完備されているため、車をお持ちの方にも嬉しい配慮があります。駐輪場もあるため、自転車での散策も気軽に楽しむことができるのです。近くの参宮橋は、歴史ある街並みが広がり、文化と芸術が交錯する場所。この地で過ごすことは、あなたにとっての新たなインスピレーションとなるでしょう。
参宮橋マンション 315に住むことは、ただの居住空間を越えた体験です。近隣には美味しい飲食店やカフェが点在し、昼下がりにのんびりと散策することで、新たな発見が待っています。そして、帰宅するたびにこのマンションがあなたを迎え入れてくれる、そんな心地よい感覚を味わえるのです。
この特別な場所で、あなたの人生の新しいストーリーを紡いでみませんか。参宮橋マンション 315は、まるであなたの人生の舞台装置のように、華やかさと静謐さを併せ持つ、心温まる家となることでしょう。さあ、あなたの物語がこの素晴らしいマンションで始まります。
このマンションは、110.92㎡という広々とした専有面積を誇り、その恵みはまるで広がりを持つ美し…参宮橋マンション 315。この名が響くその瞬間から、あなたは特別な世界への扉を開くことになります。東京都渋谷区代々木4-41-7に佇むこの高級賃貸物件は、まるで優雅な舞踏会に招かれたかのような感覚をあなたに与えます。南東に面したその窓からは、朝の柔らかな光がもたらす黄金色の夢が舞い込むことでしょう。
このマンションは、110.92㎡という広々とした専有面積を誇り、その恵みはまるで広がりを持つ美しい風景画のようです。2LDKの間取りでは、あなたの人生のストーリーが豊かに描かれます。LDKは23.1帖、まるで劇場の舞台のように開放感に溢れ、そこに家族や友人が集い、笑顔があふれるシーンが展開されることでしょう。洋室の10帖と7.3帖は、それぞれが心の隠れ家であり、あなたが自分だけの時間を過ごすための特別な空間となるのです。
想像してみてください。朝目覚めたあなたが、カーテンを開ける瞬間。その瞬間、優しい日差しが部屋を包み込み、どこか懐かしいような温かい空気が鼻元をくすぐります。コーヒーの香りが漂うキッチンで、朝食の準備をする音が心地よく響き渡り、家族との楽しい会話が耳に優しいBGMのように流れます。23.1帖のLDKでは、音楽が流れ、笑い声が絶えない瞬間が生まれます。そして、そのひとときを大切にするための空間が、あなたの日々を彩ります。
参宮橋マンション 315には、24時間管理という安全と安心が約束されています。オートロックやTVモニターホンなど、現代の生活に欠かせないセキュリティ設備も万全です。そして、宅配ボックスがあることで、大切な荷物がいつでも受け取れる利便性が、忙しい日常においてもゆとりを生み出します。
また、駐車場が平置きと機械式で完備されているため、車をお持ちの方にも嬉しい配慮があります。駐輪場もあるため、自転車での散策も気軽に楽しむことができるのです。近くの参宮橋は、歴史ある街並みが広がり、文化と芸術が交錯する場所。この地で過ごすことは、あなたにとっての新たなインスピレーションとなるでしょう。
参宮橋マンション 315に住むことは、ただの居住空間を越えた体験です。近隣には美味しい飲食店やカフェが点在し、昼下がりにのんびりと散策することで、新たな発見が待っています。そして、帰宅するたびにこのマンションがあなたを迎え入れてくれる、そんな心地よい感覚を味わえるのです。
この特別な場所で、あなたの人生の新しいストーリーを紡いでみませんか。参宮橋マンション 315は、まるであなたの人生の舞台装置のように、華やかさと静謐さを併せ持つ、心温まる家となることでしょう。さあ、あなたの物語がこの素晴らしいマンションで始まります。
バイブルスコア
バイブルスコア: 13.9
高級な物件でない場合は割高な物件です。。
※バイブルスコア詳細はこちら
バイブルスコアとは独自のAI機械学習技術を利用した物件評価システムで、物件のおすすめ度を示します。最高得点は100点で、スコアが高いほど、よりおすすめの物件と評価されています。
写真
契約条件
| 賃料 | 予想金額:505,000〜525,000円程度 | 管理費 | 予想金額:23,000〜27,000円程度 |
| 礼金 | 非公開(アーカイブ) | 敷金 | 非公開(アーカイブ) |
| フリーレント | 2ヶ月 | 平米数 | 110.92㎡ |
| 間取り | 2LDK | 大型収納 | 2WIC |
| 契約期間 |
| 方角 | 南東 |
| 更新料 | 契約形態 | 普通賃貸借契約 | |
| 取引態様 | 媒介 | 内見状況 | 入居中 |
| 入居時期 | 入居中 | SOHO・事務所 | |
| ペット | 間取り内訳 | 洋:10 洋:7.3 LD:23.1 K:4.6 | |
| キャンペーン情報・備考 | 本情報は賃料改定交渉の資料作成、収益物件の利回り試算、周辺エリアや最寄り駅の坪単価分析、次回募集開始時期の予測などにご活用いただけます。 | ||
※「どの不動産に頼めばいいのか分からない」「信頼できる営業マンの話を聞きたい」「一番親切な会社と契約したい」とお悩みの方におすすめなのが「高級賃貸バイブル」です。
高級賃貸バイブルは業界10年以上の熟練スタッフ群がお客様ファーストで対応します。
下記ボタンから、まずは無料でご相談下さい。
※内覧をご希望の際には、どうぞ物件のエントランス前にてお待ち合わせくださいませ。ご内覧後は、同じ場所でお別れとさせていただきます。お客様のご都合に合わせたスムーズなご案内を心がけておりますので、ご質問等がございましたら何なりとお申し付けください。 物件概要
| 物件名 |
| 築年月 |
|
|---|---|---|---|
| 所在地 | |||
| 交通 | |||
| 総戸数 |
| 総階数 |
|
| 構造 |
| ||
地図
物件までの道のりは、「拡大地図を表示」をクリックしてナビ機能をご利用ください。
部屋設備


















建物設備

24時間管理

TVモニターホン

エレベーター

オートロック

宅配ボックス

敷地内ゴミ置場

管理人

駐車場平置き

駐車場機械式

駐輪場
参宮橋マンションの現在募集中のお部屋
- No rooms found for this property.




























