
| 賃料 | 予想金額:350,000〜370,000円程度 | 管理費 | 予想金額:18,000〜22,000円程度 |
| 礼金/敷金 | 非公開(アーカイブ) | 平米数 | 93.16㎡ |
| 初期費用概算(参考) | 目安:196,500〜296,500 円 | みなし賃料(月額・参考) | 375,135〜395,135 円 |
| 備考 | 本ページは過去募集のアーカイブです。表示の金額は周辺相場・過去募集を踏まえた参考レンジであり、実際の契約金額・条件ではありません。 | ||
※上記みなし賃料(月額)は仲介手数料割引・無料&キャッシュバックを加味した高級賃貸バイブル限定の金額です。一般的なみなし賃料とは異なります。
【建物ページ】参宮橋マンションの詳細・最新空室はこちら▶▶選ばれる理由
仲介手数料無料・キャンペーン情報(毎月15名様限定)
〇引っ越しお祝い金720000円プレゼント(キャッシュバック)
〇フリーレント1か月キャンペーン
〇仲介手数料無料キャンペーン
参宮橋マンション 122の口コミ・レビュー
参宮橋マンション 122は、あなたの新しい生活の舞台となる華やかな空間を有し、優雅な風情を醸し出しています。東京都渋谷区代々木4-41-7に位置し、南東を向くその佇まいは、朝日の心地よい光であなたの一日を優しく包み込みます。この物件に足を踏み入れた瞬間、まるで異世界へと旅立つような感覚にとらわれることでしょう。
この物件の魅力の一つは、その広さを誇る93.16㎡の専有面積です。あなたのために設計…参宮橋マンション 122は、あなたの新しい生活の舞台となる華やかな空間を有し、優雅な風情を醸し出しています。東京都渋谷区代々木4-41-7に位置し、南東を向くその佇まいは、朝日の心地よい光であなたの一日を優しく包み込みます。この物件に足を踏み入れた瞬間、まるで異世界へと旅立つような感覚にとらわれることでしょう。
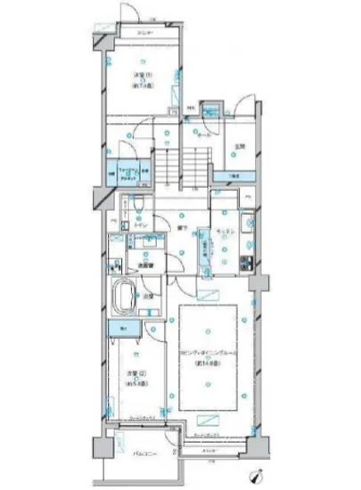
この物件の魅力の一つは、その広さを誇る93.16㎡の専有面積です。あなたのために設計されたかのように整然とした2LDKの間取りは、洋室7.8帖、洋室5.4帖、そして14.8帖の広々としたリビングダイニングが織り成す空間です。思い描くライフスタイルや家族の物語が、ここでゆっくりと紡がれていくことでしょう。リビングの窓からは広がる青空と緑の景色が、日常の喧騒から解き放ってくれる癒しのひとときをもたらします。
朝、目覚めの瞬間に感じる温もりのある光、カーテンの向こうでさわさわと揺れる葉音が、自然と心を穏やかにしてくれます。食卓に並ぶ朝食の香ばしいパンの香りが、あなたを優雅な一日の始まりへと導いてくれることでしょう。LDKでの家族団らんの時間には、幸せの音色が溢れ、笑顔が広がります。参宮橋マンション 122はそのすべてを見守っているかのようです。
この物件は、ただの住まいにとどまらず、生活の豊かさを引き出すためのシンフォニーを奏でる場所です。24時間管理の安心感や、TVモニターホン、オートロックといった安心のセキュリティ機能が、心の平穏を保ってくれるのです。宅配ボックスや敷地内のゴミ置場も、忙しい日常をサポートし、生活のクオリティを高めてくれます。
また、参宮橋マンション 122は、ただの居住空間ではなく、周辺の文化や歴史との繋がりが感じられる場所でもあります。小田急電鉄小田原線の参宮橋駅から徒歩5分という絶妙な立地は、都心の便利さと落ち着いた住環境を両立させ、四季折々の美しさを享受できるでしょう。周囲には芸術的なギャラリーや、風情溢れるカフェ、さらには歴史的な建物も点在し、まさに「文化の息吹」を感じることができる場所です。
夕暮れ時、あなたは気軽に外へ繰り出し、近隣のアートスポットを巡りながら、心に残る情景を探し出すことができます。参宮橋マンション 122での生活は、まるで一編の詩のように、感性を豊かに育て、あなたの内面を深めてくれるのです。
この場所で待っているのは、ただの暮らしではありません。人生の美しい瞬間を、共に分かち合うストーリーなのです。参宮橋マンション 122が、あなたの新しい物語の舞台となることを、心より願っています。
この物件の魅力の一つは、その広さを誇る93.16㎡の専有面積です。あなたのために設計…参宮橋マンション 122は、あなたの新しい生活の舞台となる華やかな空間を有し、優雅な風情を醸し出しています。東京都渋谷区代々木4-41-7に位置し、南東を向くその佇まいは、朝日の心地よい光であなたの一日を優しく包み込みます。この物件に足を踏み入れた瞬間、まるで異世界へと旅立つような感覚にとらわれることでしょう。
この物件の魅力の一つは、その広さを誇る93.16㎡の専有面積です。あなたのために設計されたかのように整然とした2LDKの間取りは、洋室7.8帖、洋室5.4帖、そして14.8帖の広々としたリビングダイニングが織り成す空間です。思い描くライフスタイルや家族の物語が、ここでゆっくりと紡がれていくことでしょう。リビングの窓からは広がる青空と緑の景色が、日常の喧騒から解き放ってくれる癒しのひとときをもたらします。
朝、目覚めの瞬間に感じる温もりのある光、カーテンの向こうでさわさわと揺れる葉音が、自然と心を穏やかにしてくれます。食卓に並ぶ朝食の香ばしいパンの香りが、あなたを優雅な一日の始まりへと導いてくれることでしょう。LDKでの家族団らんの時間には、幸せの音色が溢れ、笑顔が広がります。参宮橋マンション 122はそのすべてを見守っているかのようです。
この物件は、ただの住まいにとどまらず、生活の豊かさを引き出すためのシンフォニーを奏でる場所です。24時間管理の安心感や、TVモニターホン、オートロックといった安心のセキュリティ機能が、心の平穏を保ってくれるのです。宅配ボックスや敷地内のゴミ置場も、忙しい日常をサポートし、生活のクオリティを高めてくれます。
また、参宮橋マンション 122は、ただの居住空間ではなく、周辺の文化や歴史との繋がりが感じられる場所でもあります。小田急電鉄小田原線の参宮橋駅から徒歩5分という絶妙な立地は、都心の便利さと落ち着いた住環境を両立させ、四季折々の美しさを享受できるでしょう。周囲には芸術的なギャラリーや、風情溢れるカフェ、さらには歴史的な建物も点在し、まさに「文化の息吹」を感じることができる場所です。
夕暮れ時、あなたは気軽に外へ繰り出し、近隣のアートスポットを巡りながら、心に残る情景を探し出すことができます。参宮橋マンション 122での生活は、まるで一編の詩のように、感性を豊かに育て、あなたの内面を深めてくれるのです。
この場所で待っているのは、ただの暮らしではありません。人生の美しい瞬間を、共に分かち合うストーリーなのです。参宮橋マンション 122が、あなたの新しい物語の舞台となることを、心より願っています。
バイブルスコア
バイブルスコア: 34.5
平均的なスコアです。
※バイブルスコア詳細はこちら
バイブルスコアとは独自のAI機械学習技術を利用した物件評価システムで、物件のおすすめ度を示します。最高得点は100点で、スコアが高いほど、よりおすすめの物件と評価されています。
写真
契約条件
| 賃料 | 予想金額:350,000〜370,000円程度 | 管理費 | 予想金額:18,000〜22,000円程度 |
| 礼金 | 非公開(アーカイブ) | 敷金 | 非公開(アーカイブ) |
| フリーレント | 1ヶ月 | 平米数 | 93.16㎡ |
| 間取り | 2LDK | 大型収納 | WIC |
| 契約期間 |
| 方角 | 南東 |
| 更新料 | 契約形態 | 普通賃貸借契約 | |
| 取引態様 | 媒介 | 内見状況 | 入居中 |
| 入居時期 | 入居中 | SOHO・事務所 | |
| ペット | 間取り内訳 | 洋:7.8 洋:5.4 LD:14.8 | |
| キャンペーン情報・備考 | 本情報は賃料改定交渉の資料作成、収益物件の利回り試算、周辺エリアや最寄り駅の坪単価分析、次回募集開始時期の予測などにご活用いただけます。 | ||
※「どの不動産に頼めばいいのか分からない」「信頼できる営業マンの話を聞きたい」「一番親切な会社と契約したい」とお悩みの方におすすめなのが「高級賃貸バイブル」です。
高級賃貸バイブルは業界10年以上の熟練スタッフ群がお客様ファーストで対応します。
下記ボタンから、まずは無料でご相談下さい。
※内覧をご希望の際には、どうぞ物件のエントランス前にてお待ち合わせくださいませ。ご内覧後は、同じ場所でお別れとさせていただきます。お客様のご都合に合わせたスムーズなご案内を心がけておりますので、ご質問等がございましたら何なりとお申し付けください。 物件概要
| 物件名 |
| 築年月 |
|
|---|---|---|---|
| 所在地 | |||
| 交通 | |||
| 総戸数 |
| 総階数 |
|
| 構造 |
| ||
地図
物件までの道のりは、「拡大地図を表示」をクリックしてナビ機能をご利用ください。
部屋設備
















建物設備

24時間管理

TVモニターホン

エレベーター

オートロック

宅配ボックス

敷地内ゴミ置場

管理人

駐車場平置き

駐車場機械式

駐輪場
参宮橋マンションの現在募集中のお部屋
- No rooms found for this property.




























