
| 賃料 | 予想金額:140,000〜160,000円程度 | 管理費 | 予想金額:6,000〜10,000円程度 |
| 礼金/敷金 | 非公開(アーカイブ) | 平米数 | 25.03㎡ |
| 初期費用概算(参考) | 目安:493,500〜593,500 円 | みなし賃料(月額・参考) | 156,198〜176,198 円 |
| 備考 | 本ページは過去募集のアーカイブです。表示の金額は周辺相場・過去募集を踏まえた参考レンジであり、実際の契約金額・条件ではありません。 | ||
※上記みなし賃料(月額)は仲介手数料割引・無料&キャッシュバックを加味した高級賃貸バイブル限定の金額です。一般的なみなし賃料とは異なります。
【建物ページ】エスセナーリオ赤坂の詳細・最新空室はこちら▶▶選ばれる理由
仲介手数料無料・キャンペーン情報(毎月15名様限定)
〇引っ越しお祝い金30000円プレゼント(キャッシュバック)
〇仲介手数料無料キャンペーン
エスセナーリオ赤坂 E-402の口コミ・レビュー
エスセナーリオ赤坂 E-402の窓からは、南東の光が優しく差し込ん…エスセナーリオ赤坂 E-402は、あなたを特別な世界へと誘う、洗練された住まいでございます。その存在は、まるで美しい絵画の中に描かれた一筆のように、静かに、しかし力強く、赤坂の街並みに溶け込んでいます。この特別な空間は、専有面積25.03㎡というサイズにもかかわらず、心に残る豊かな体験を提供する、まさにアートのような住まいです。
エスセナーリオ赤坂 E-402の窓からは、南東の光が優しく差し込んできて、朝の目覚めを特別な瞬間に変えてくれます。陽の光がリビングの壁を優しく撫でる様子は、まるで恋人がそっと頬に触れるような、甘い安らぎを感じさせてくれます。窓の外には、赤坂の街が広がり、活気に満ちた日常の音が耳に届きます。通りを行き交う人々のざわめきや、近くのカフェから聞こえる楽しい笑い声は、この場所に命を吹き込んでいます。
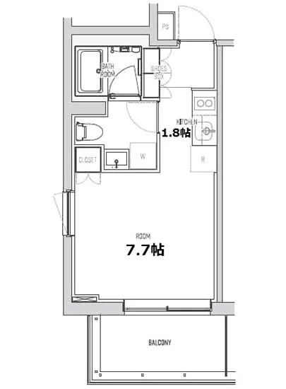
エスセナーリオ赤坂 E-402の間取りは、心地よい生活を実現するための理想的な配置です。7.7帖の洋室には、あなたの個性を表現するためのスペースが広がっており、その一角には、思い出の品々やお気に入りのアートを飾って、心の安らぎを与える空間を作り出すことができます。また、1.8帖のキッチンは、料理が好きな方には夢のような場所です。そこでは、食材の香ばしい香りが漂い、あなたの手による美しい皿が次々と生み出されていきます。友人や家族と共に楽しむディナーは、エスセナーリオ赤坂 E-402が唯一無二の舞台を提供してくれることでしょう。
さらに、エスセナーリオ赤坂 E-402には、安心して暮らせるための魅力的な設備が整っています。オートロックや宅配ボックスなど、現代の生活を便利にする技術が、優雅さの中に根付いています。これにより、忙しい日常の中でも心穏やかに過ごすことができ、まるで映画の主人公になったかのような特別な感覚に浸ることができるでしょう。
この物件は、赤坂という歴史と文化に富んだエリアに位置しています。周囲には数多のギャラリーやカフェが点在し、まるで街全体がアートの一部であるかのようです。アートに触れ、文化に浸ることで、毎日が新しい発見に満ち、心が躍動することでしょう。
エスセナーリオ赤坂 E-402での生活は、ただの居住空間ではなく、生活という名の小さな映画のワンシーン。あなた自身のストーリーを描いてください。この特別な住まいで、自分だけの詩を紡ぎ、心豊かな時間をお楽しみいただければ幸いです。どうぞ、エスセナーリオ赤坂 E-402で新しい暮らしを始めてみませんか?あなたをお待ちしています。
バイブルスコア
バイブルスコア: 52.8
条件のいい物件です、引っ越しが2か月以内の場合は仮申し込みを検討すべき物件です。
このお部屋は、現在ご入居中のため空室情報はございません。ただし、将来的に募集が開始される際、バイブルスコアにおいて非常に高い評価が期待されます。特にご興味をお持ちの方は、今のうちにブックマークやお気に入りに登録していただくと、募集開始のお知らせをすぐに受け取ることができます。是非ともご検討くださいませ。
※バイブルスコア詳細はこちら
バイブルスコアとは独自のAI機械学習技術を利用した物件評価システムで、物件のおすすめ度を示します。最高得点は100点で、スコアが高いほど、よりおすすめの物件と評価されています。
写真
契約条件
| 賃料 | 予想金額:140,000〜160,000円程度 | 管理費 | 予想金額:6,000〜10,000円程度 |
| 礼金 | 非公開(アーカイブ) | 敷金 | 非公開(アーカイブ) |
| フリーレント | なし | 平米数 | 25.03㎡ |
| 間取り | 1R | 大型収納 | なし |
| 契約期間 | 2年 | 方角 | 南東 |
| 更新料 | 1ヶ月 | 契約形態 | 普通賃貸借契約 |
| 取引態様 | 媒介 | 内見状況 | 入居中 |
| 入居時期 | 入居中 | SOHO・事務所 | 事務所(SOHO)可 |
| ペット | 不可 | 間取り内訳 | 洋:7.7 K:1.8 |
| キャンペーン情報・備考 | 本情報は賃料改定交渉の資料作成、収益物件の利回り試算、周辺エリアや最寄り駅の坪単価分析、次回募集開始時期の予測などにご活用いただけます。 | ||
※「どの不動産に頼めばいいのか分からない」「信頼できる営業マンの話を聞きたい」「一番親切な会社と契約したい」とお悩みの方におすすめなのが「高級賃貸バイブル」です。
高級賃貸バイブルは業界10年以上の熟練スタッフ群がお客様ファーストで対応します。
下記ボタンから、まずは無料でご相談下さい。
※内覧をご希望の際には、どうぞ物件のエントランス前にてお待ち合わせくださいませ。ご内覧後は、同じ場所でお別れとさせていただきます。お客様のご都合に合わせたスムーズなご案内を心がけておりますので、ご質問等がございましたら何なりとお申し付けください。 物件概要
| 物件名 |
| 築年月 |
|
|---|---|---|---|
| 所在地 | |||
| 交通 | |||
| 総戸数 |
| 総階数 |
|
| 構造 |
| ||
地図
物件までの道のりは、「拡大地図を表示」をクリックしてナビ機能をご利用ください。
部屋設備

















建物設備

TVモニターホン

エレベーター

オートロック

宅配ボックス

敷地内ゴミ置場

管理人
エスセナーリオ赤坂の現在募集中のお部屋
- No rooms found for this property.





















