
| 賃料 | 予想金額:180,000〜200,000円程度 | 管理費 | 予想金額:8,000〜12,000円程度 |
| 礼金/敷金 | 非公開(アーカイブ) | 平米数 | 34.18㎡ |
| 初期費用概算(参考) | 目安:721,500〜821,500 円 | みなし賃料(月額・参考) | 202,115〜222,115 円 |
| 備考 | 本ページは過去募集のアーカイブです。表示の金額は周辺相場・過去募集を踏まえた参考レンジであり、実際の契約金額・条件ではありません。 | ||
※上記みなし賃料(月額)は仲介手数料割引・無料&キャッシュバックを加味した高級賃貸バイブル限定の金額です。一般的なみなし賃料とは異なります。
【建物ページ】エスセナーリオ赤坂の詳細・最新空室はこちら▶▶選ばれる理由
仲介手数料無料・キャンペーン情報(毎月15名様限定)
〇仲介手数料割引キャンペーン
エスセナーリオ赤坂 E-503の口コミ・レビュー
エスセナーリオ赤坂 E-503。その名を耳にした瞬間、あなたはもうこの特別な空間の一部となる運命を感じることでしょう。東京都港区赤坂4-2-11に佇む、まるで一幅の絵画のような佇まいを持つこの物件は、心の奥底にある理想の生活を実現するための舞台です。
エスセナーリオ赤坂 E-503の扉を開けた瞬間、温かな光があなたを包み込みます。南東の方角から差し込む光は、まるで早朝の柔らかな朝露のように穏やか…エスセナーリオ赤坂 E-503。その名を耳にした瞬間、あなたはもうこの特別な空間の一部となる運命を感じることでしょう。東京都港区赤坂4-2-11に佇む、まるで一幅の絵画のような佇まいを持つこの物件は、心の奥底にある理想の生活を実現するための舞台です。
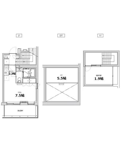
エスセナーリオ赤坂 E-503の扉を開けた瞬間、温かな光があなたを包み込みます。南東の方角から差し込む光は、まるで早朝の柔らかな朝露のように穏やかで、心を洗い清めてくれるでしょう。広さ34.18㎡の中に広がる世界は、7.5帖の洋室と2.3帖のキッチンスペース、さらには5.5帖のロフトが調和を生み出し、あなたの生活に独自のリズムを与えてくれます。
この空間は、ただの「住まい」ではありません。そこは、まるで映画のワンシーンのように、日常の中に特別な瞬間を生み出す場所。朝食を作る2.3帖のキッチンから漂ってくる香ばしいパンの香り、そして焼きたてのコーヒーのアロマ。音楽が響くロフトのスペースでは、心弾むメロディーが流れ、あなたの心をより豊かにしてくれることでしょう。
エスセナーリオ赤坂 E-503では、友人を招いての楽しいディナーや、一人静かに過ごす読書の時間も、どちらも満喫できるのです。トロピカルな気分を味わいながら、窓の外に広がる景色を楽しむことができるのも、この素敵な物件ならでは。近隣には、歴史ある赤坂の街並みが広がり、まるで時が止まったような美しい景色が、あなたの日常に彩りを添えてくれます。
さらに、エスセナーリオ赤坂 E-503には安心感を与えてくれる設備も充実しています。エレベーターやオートロック、宅配ボックスの設置により、あなたのプライバシーが守られ、管理人の存在が日常の安心を育んでくれます。心地よい生活は、ここから始まります。
そして、赤坂駅から徒歩4分という立地は、繁華街の喧騒を感じることもなく、静けさと利便性の両方を享受する贅沢を実現しています。エスセナーリオ赤坂 E-503があなたに語りかけるのは、ただの居住空間としてではなく、人生を豊かにする舞台としての存在。その日常を過ごすたびに、あなたの心に響く映画のようなストーリーが紡がれていくでしょう。
エスセナーリオ赤坂 E-503で、貴方自身の物語を創り上げてみませんか?最良の瞬間が、ここから始まるのです。
エスセナーリオ赤坂 E-503の扉を開けた瞬間、温かな光があなたを包み込みます。南東の方角から差し込む光は、まるで早朝の柔らかな朝露のように穏やか…エスセナーリオ赤坂 E-503。その名を耳にした瞬間、あなたはもうこの特別な空間の一部となる運命を感じることでしょう。東京都港区赤坂4-2-11に佇む、まるで一幅の絵画のような佇まいを持つこの物件は、心の奥底にある理想の生活を実現するための舞台です。
エスセナーリオ赤坂 E-503の扉を開けた瞬間、温かな光があなたを包み込みます。南東の方角から差し込む光は、まるで早朝の柔らかな朝露のように穏やかで、心を洗い清めてくれるでしょう。広さ34.18㎡の中に広がる世界は、7.5帖の洋室と2.3帖のキッチンスペース、さらには5.5帖のロフトが調和を生み出し、あなたの生活に独自のリズムを与えてくれます。
この空間は、ただの「住まい」ではありません。そこは、まるで映画のワンシーンのように、日常の中に特別な瞬間を生み出す場所。朝食を作る2.3帖のキッチンから漂ってくる香ばしいパンの香り、そして焼きたてのコーヒーのアロマ。音楽が響くロフトのスペースでは、心弾むメロディーが流れ、あなたの心をより豊かにしてくれることでしょう。
エスセナーリオ赤坂 E-503では、友人を招いての楽しいディナーや、一人静かに過ごす読書の時間も、どちらも満喫できるのです。トロピカルな気分を味わいながら、窓の外に広がる景色を楽しむことができるのも、この素敵な物件ならでは。近隣には、歴史ある赤坂の街並みが広がり、まるで時が止まったような美しい景色が、あなたの日常に彩りを添えてくれます。
さらに、エスセナーリオ赤坂 E-503には安心感を与えてくれる設備も充実しています。エレベーターやオートロック、宅配ボックスの設置により、あなたのプライバシーが守られ、管理人の存在が日常の安心を育んでくれます。心地よい生活は、ここから始まります。
そして、赤坂駅から徒歩4分という立地は、繁華街の喧騒を感じることもなく、静けさと利便性の両方を享受する贅沢を実現しています。エスセナーリオ赤坂 E-503があなたに語りかけるのは、ただの居住空間としてではなく、人生を豊かにする舞台としての存在。その日常を過ごすたびに、あなたの心に響く映画のようなストーリーが紡がれていくでしょう。
エスセナーリオ赤坂 E-503で、貴方自身の物語を創り上げてみませんか?最良の瞬間が、ここから始まるのです。
バイブルスコア
バイブルスコア: 36.8
平均的なスコアです。
※バイブルスコア詳細はこちら
バイブルスコアとは独自のAI機械学習技術を利用した物件評価システムで、物件のおすすめ度を示します。最高得点は100点で、スコアが高いほど、よりおすすめの物件と評価されています。
写真
契約条件
| 賃料 | 予想金額:180,000〜200,000円程度 | 管理費 | 予想金額:8,000〜12,000円程度 |
| 礼金 | 非公開(アーカイブ) | 敷金 | 非公開(アーカイブ) |
| フリーレント | なし | 平米数 | 34.18㎡ |
| 間取り | 1R | 大型収納 | LOFT |
| 契約期間 |
| 方角 | 南東 |
| 更新料 | 契約形態 | 普通賃貸借契約 | |
| 取引態様 | 媒介 | 内見状況 | 入居中 |
| 入居時期 | 入居中 | SOHO・事務所 | 事務所(SOHO)可 |
| ペット | 間取り内訳 | 洋:7.5 K:2.3 LOFT:5.5 | |
| キャンペーン情報・備考 | 本情報は賃料改定交渉の資料作成、収益物件の利回り試算、周辺エリアや最寄り駅の坪単価分析、次回募集開始時期の予測などにご活用いただけます。 | ||
※「どの不動産に頼めばいいのか分からない」「信頼できる営業マンの話を聞きたい」「一番親切な会社と契約したい」とお悩みの方におすすめなのが「高級賃貸バイブル」です。
高級賃貸バイブルは業界10年以上の熟練スタッフ群がお客様ファーストで対応します。
下記ボタンから、まずは無料でご相談下さい。
※内覧をご希望の際には、どうぞ物件のエントランス前にてお待ち合わせくださいませ。ご内覧後は、同じ場所でお別れとさせていただきます。お客様のご都合に合わせたスムーズなご案内を心がけておりますので、ご質問等がございましたら何なりとお申し付けください。 物件概要
| 物件名 |
| 築年月 |
|
|---|---|---|---|
| 所在地 | |||
| 交通 | |||
| 総戸数 |
| 総階数 |
|
| 構造 |
| ||
地図
物件までの道のりは、「拡大地図を表示」をクリックしてナビ機能をご利用ください。
部屋設備


















建物設備

TVモニターホン

エレベーター

オートロック

宅配ボックス

敷地内ゴミ置場

管理人
エスセナーリオ赤坂の現在募集中のお部屋
- No rooms found for this property.





















