
| 賃料 | 予想金額:285,000〜305,000円程度 | 管理費 | 予想金額:13,000〜17,000円程度 |
| 礼金/敷金 | 非公開(アーカイブ) | 平米数 | 49.35㎡ |
| 初期費用概算(参考) | 目安:1,096,500〜1,196,500 円 | みなし賃料(月額・参考) | 317,740〜337,740 円 |
| 備考 | 本ページは過去募集のアーカイブです。表示の金額は周辺相場・過去募集を踏まえた参考レンジであり、実際の契約金額・条件ではありません。 | ||
※上記みなし賃料(月額)は仲介手数料割引・無料&キャッシュバックを加味した高級賃貸バイブル限定の金額です。一般的なみなし賃料とは異なります。
【建物ページ】エスセナーリオ赤坂の詳細・最新空室はこちら▶▶選ばれる理由
仲介手数料無料・キャンペーン情報(毎月15名様限定)
〇仲介手数料割引キャンペーン
エスセナーリオ赤坂 W-413の口コミ・レビュー
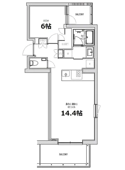
エスセナーリオ赤坂 W-413は、都会の喧騒から一歩離れた特別な空間で、まるで夢の中にいるかのような心地よさを与えてくれます。この美しい物件は、東京都港区赤坂4-2-11に位置し、南東に面した窓からは朝日の優しい光が差し込みます。エスセナーリオ赤坂 W-413は、49.35㎡という広がりを持つ1LDKの贅沢な住まいで、洋室は6帖、LDKは14.4帖という絶妙な配置が、あなたの生活に余裕と温かみをも…エスセナーリオ赤坂 W-413は、都会の喧騒から一歩離れた特別な空間で、まるで夢の中にいるかのような心地よさを与えてくれます。この美しい物件は、東京都港区赤坂4-2-11に位置し、南東に面した窓からは朝日の優しい光が差し込みます。エスセナーリオ赤坂 W-413は、49.35㎡という広がりを持つ1LDKの贅沢な住まいで、洋室は6帖、LDKは14.4帖という絶妙な配置が、あなたの生活に余裕と温かみをもたらしてくれることでしょう。
この物件に足を踏み入れた瞬間、あなたはまるで時を超えた夢の世界に迷い込んだ感覚に包まれます。エレベーターでの移動も、まるで自分が主人公の映画のワンシーンを演じているかのように感じられ、日常の中に非日常を感じることができる特別な体験です。オートロック機能が施されたエントランスは、自分だけの隠れ家に招かれる感覚を強調し、安心感を与えてくれます。
居心地の良いLDKに足を運ぶと、陽光が柔らかく広がり、真新しいフローリングに足を踏み入れた瞬間の心地よさが広がります。どこを見渡しても、洗練されたデザインが施されており、まるでアートギャラリーにいるかのような感覚を味わえます。ここでの朝食は、ふんわりと焼き上げたトーストと香り高いコーヒーと共に、自然光と共鳴しながら心に残る瞬間となるでしょう。窓の外では、赤坂の街の息遣いが聞こえ、心地よい音楽のような調和を奏でています。
エスセナーリオ赤坂 W-413の周囲には、歴史的な名所や文化的なスポットが点在しています。赤坂は、かつて江戸時代から続く風情ある街並みを持ち、現代的な洗練と古き良き文化が融合しています。季節ごとに変わる風景が、あなたの心を豊かに彩り、訪れるたびに新しい発見があるでしょう。
赤坂駅から徒歩4分の距離も、ちょうど良い散策の時間を提供してくれます。通り沿いには、おしゃれなカフェやブティックが並び、街歩きが楽しみになります。足元に優しく触れる舗装や、耳に心地よい風のささやきが、新しい日々の物語を紡いでくれることでしょう。
ここでの生活は、ただの居住空間ではなく、心が満たされる特別な時間を意味します。あなたがこの場所で新たな生活を始めることで、エスセナーリオ赤坂 W-413は、まさに夢の舞台となり、日々の暮らしに彩りを添えることでしょう。どうぞ、この魅力的な住まいであなた自身の物語を紡いでいってください。
この物件に足を踏み入れた瞬間、あなたはまるで時を超えた夢の世界に迷い込んだ感覚に包まれます。エレベーターでの移動も、まるで自分が主人公の映画のワンシーンを演じているかのように感じられ、日常の中に非日常を感じることができる特別な体験です。オートロック機能が施されたエントランスは、自分だけの隠れ家に招かれる感覚を強調し、安心感を与えてくれます。
居心地の良いLDKに足を運ぶと、陽光が柔らかく広がり、真新しいフローリングに足を踏み入れた瞬間の心地よさが広がります。どこを見渡しても、洗練されたデザインが施されており、まるでアートギャラリーにいるかのような感覚を味わえます。ここでの朝食は、ふんわりと焼き上げたトーストと香り高いコーヒーと共に、自然光と共鳴しながら心に残る瞬間となるでしょう。窓の外では、赤坂の街の息遣いが聞こえ、心地よい音楽のような調和を奏でています。
エスセナーリオ赤坂 W-413の周囲には、歴史的な名所や文化的なスポットが点在しています。赤坂は、かつて江戸時代から続く風情ある街並みを持ち、現代的な洗練と古き良き文化が融合しています。季節ごとに変わる風景が、あなたの心を豊かに彩り、訪れるたびに新しい発見があるでしょう。
赤坂駅から徒歩4分の距離も、ちょうど良い散策の時間を提供してくれます。通り沿いには、おしゃれなカフェやブティックが並び、街歩きが楽しみになります。足元に優しく触れる舗装や、耳に心地よい風のささやきが、新しい日々の物語を紡いでくれることでしょう。
ここでの生活は、ただの居住空間ではなく、心が満たされる特別な時間を意味します。あなたがこの場所で新たな生活を始めることで、エスセナーリオ赤坂 W-413は、まさに夢の舞台となり、日々の暮らしに彩りを添えることでしょう。どうぞ、この魅力的な住まいであなた自身の物語を紡いでいってください。
バイブルスコア
バイブルスコア: 23.9
平均的なスコアです。
※バイブルスコア詳細はこちら
バイブルスコアとは独自のAI機械学習技術を利用した物件評価システムで、物件のおすすめ度を示します。最高得点は100点で、スコアが高いほど、よりおすすめの物件と評価されています。
写真
契約条件
| 賃料 | 予想金額:285,000〜305,000円程度 | 管理費 | 予想金額:13,000〜17,000円程度 |
| 礼金 | 非公開(アーカイブ) | 敷金 | 非公開(アーカイブ) |
| フリーレント | なし | 平米数 | 49.35㎡ |
| 間取り | 1LDK | 大型収納 | |
| 契約期間 |
| 方角 | 南東 |
| 更新料 | 契約形態 | 普通賃貸借契約 | |
| 取引態様 | 媒介 | 内見状況 | 入居中 |
| 入居時期 | 入居中 | SOHO・事務所 | 事務所(SOHO)可 |
| ペット | 間取り内訳 | 洋:6 LDK:14.4 | |
| キャンペーン情報・備考 | 本情報は賃料改定交渉の資料作成、収益物件の利回り試算、周辺エリアや最寄り駅の坪単価分析、次回募集開始時期の予測などにご活用いただけます。 | ||
※「どの不動産に頼めばいいのか分からない」「信頼できる営業マンの話を聞きたい」「一番親切な会社と契約したい」とお悩みの方におすすめなのが「高級賃貸バイブル」です。
高級賃貸バイブルは業界10年以上の熟練スタッフ群がお客様ファーストで対応します。
下記ボタンから、まずは無料でご相談下さい。
※内覧をご希望の際には、どうぞ物件のエントランス前にてお待ち合わせくださいませ。ご内覧後は、同じ場所でお別れとさせていただきます。お客様のご都合に合わせたスムーズなご案内を心がけておりますので、ご質問等がございましたら何なりとお申し付けください。 物件概要
| 物件名 |
| 築年月 |
|
|---|---|---|---|
| 所在地 | |||
| 交通 | |||
| 総戸数 |
| 総階数 |
|
| 構造 |
| ||
地図
物件までの道のりは、「拡大地図を表示」をクリックしてナビ機能をご利用ください。
部屋設備


















建物設備

TVモニターホン

エレベーター

オートロック

宅配ボックス

敷地内ゴミ置場

管理人
エスセナーリオ赤坂の現在募集中のお部屋
- No rooms found for this property.





















