
| 賃料 | 予想金額:275,000〜295,000円程度 | 管理費 | 予想金額:13,000〜17,000円程度 |
| 礼金/敷金 | 非公開(アーカイブ) | 平米数 | 45.37㎡ |
| 初期費用概算(参考) | 目安:1,061,500〜1,161,500 円 | みなし賃料(月額・参考) | 307,219〜327,219 円 |
| 備考 | 本ページは過去募集のアーカイブです。表示の金額は周辺相場・過去募集を踏まえた参考レンジであり、実際の契約金額・条件ではありません。 | ||
※上記みなし賃料(月額)は仲介手数料割引・無料&キャッシュバックを加味した高級賃貸バイブル限定の金額です。一般的なみなし賃料とは異なります。
【建物ページ】エスセナーリオ赤坂の詳細・最新空室はこちら▶▶選ばれる理由
仲介手数料無料・キャンペーン情報(毎月15名様限定)
〇仲介手数料割引キャンペーン
エスセナーリオ赤坂 E-202の口コミ・レビュー
エスセナーリオ赤坂 E-202――ここは、都会の喧騒から一歩足を踏み入れた瞬間、まるで映画の一コマが展開されるような、美しい安息の地です。この素晴らしい1LDKは、専有面積45.37㎡の中に、洗練された美しさと穏やかな生活が融合しており、まるでアーティストによって描かれたキャンバスのように、あなたを包み込んでくれます。
南東に面した窓からは、朝日が優しく差し込み、まるで金色の羽衣をまとった天使が…エスセナーリオ赤坂 E-202――ここは、都会の喧騒から一歩足を踏み入れた瞬間、まるで映画の一コマが展開されるような、美しい安息の地です。この素晴らしい1LDKは、専有面積45.37㎡の中に、洗練された美しさと穏やかな生活が融合しており、まるでアーティストによって描かれたキャンバスのように、あなたを包み込んでくれます。
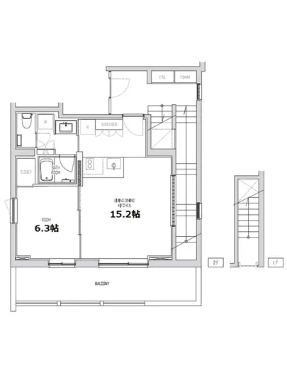
南東に面した窓からは、朝日が優しく差し込み、まるで金色の羽衣をまとった天使が微笑むかのように、穏やかな光が室内を照らします。LDK15.2帖は、広々とした空間を誇り、あなたの想像力をかきたてると同時に、心地よいコミュニケーションの場を提供してくれます。そこで、友人たちと共にワインを楽しんだり、愛する人との静かな時間を過ごしたり、時には一人で本を読み、心の奥を探る旅に出たりすることができるのです。
そして、6.3帖の洋室は、心安らぐプライベート空間。薄いカーテン越しに、シンフォニーのように響く街の音が静かに耳に届くのを感じながら、柔らかなベッドに身を委ねてください。そよ風に乗って運ばれてくるのは、近くのカフェから漂う焼き立てのクロワッサンの香り。これが毎朝の目覚ましとなり、一日を優雅にスタートさせてくれます。
エスセナーリオ赤坂 E-202はまた、セキュリティ面にも細心の配慮が施されています。オートロックや宅配ボックスの存在が、あなたの日常に安心をもたらします。まるで、貴族の館に住まうかのような特権を享受しながら、周囲の歴史と文化が優雅に織り交ぜられた環境に身を置く喜びを実感できるのです。
周囲には赤坂の歴史的な名所も点在し、文化と芸術が息づいています。例えば、歩いて数分の距離には、東京の歴史を語る赤坂神社があります。古き良き日本の心に触れながら、現代の文化とも融合するその立地は、まるで時の狭間にいるかのよう。芸術的なインスピレーションが溢れ出す環境で、あなたのクリエイティビティも引き出されることでしょう。
エスセナーリオ赤坂 E-202に住むことは、単なる賃貸生活ではありません。それは、あなた自身のライフスタイルを表現するための舞台であり、毎日が映画の主人公として生きるためのシナリオなのです。ここでの生活は、五感を刺激し、あなたの心に美しい余韻を残してくれることでしょう。さあ、あなたもこの素敵な空間に身を置き、心潤う毎日を始めてみませんか。
南東に面した窓からは、朝日が優しく差し込み、まるで金色の羽衣をまとった天使が…エスセナーリオ赤坂 E-202――ここは、都会の喧騒から一歩足を踏み入れた瞬間、まるで映画の一コマが展開されるような、美しい安息の地です。この素晴らしい1LDKは、専有面積45.37㎡の中に、洗練された美しさと穏やかな生活が融合しており、まるでアーティストによって描かれたキャンバスのように、あなたを包み込んでくれます。
南東に面した窓からは、朝日が優しく差し込み、まるで金色の羽衣をまとった天使が微笑むかのように、穏やかな光が室内を照らします。LDK15.2帖は、広々とした空間を誇り、あなたの想像力をかきたてると同時に、心地よいコミュニケーションの場を提供してくれます。そこで、友人たちと共にワインを楽しんだり、愛する人との静かな時間を過ごしたり、時には一人で本を読み、心の奥を探る旅に出たりすることができるのです。
そして、6.3帖の洋室は、心安らぐプライベート空間。薄いカーテン越しに、シンフォニーのように響く街の音が静かに耳に届くのを感じながら、柔らかなベッドに身を委ねてください。そよ風に乗って運ばれてくるのは、近くのカフェから漂う焼き立てのクロワッサンの香り。これが毎朝の目覚ましとなり、一日を優雅にスタートさせてくれます。
エスセナーリオ赤坂 E-202はまた、セキュリティ面にも細心の配慮が施されています。オートロックや宅配ボックスの存在が、あなたの日常に安心をもたらします。まるで、貴族の館に住まうかのような特権を享受しながら、周囲の歴史と文化が優雅に織り交ぜられた環境に身を置く喜びを実感できるのです。
周囲には赤坂の歴史的な名所も点在し、文化と芸術が息づいています。例えば、歩いて数分の距離には、東京の歴史を語る赤坂神社があります。古き良き日本の心に触れながら、現代の文化とも融合するその立地は、まるで時の狭間にいるかのよう。芸術的なインスピレーションが溢れ出す環境で、あなたのクリエイティビティも引き出されることでしょう。
エスセナーリオ赤坂 E-202に住むことは、単なる賃貸生活ではありません。それは、あなた自身のライフスタイルを表現するための舞台であり、毎日が映画の主人公として生きるためのシナリオなのです。ここでの生活は、五感を刺激し、あなたの心に美しい余韻を残してくれることでしょう。さあ、あなたもこの素敵な空間に身を置き、心潤う毎日を始めてみませんか。
バイブルスコア
バイブルスコア: 19.5
高級な物件でない場合は割高な物件です。。
※バイブルスコア詳細はこちら
バイブルスコアとは独自のAI機械学習技術を利用した物件評価システムで、物件のおすすめ度を示します。最高得点は100点で、スコアが高いほど、よりおすすめの物件と評価されています。
写真
契約条件
| 賃料 | 予想金額:275,000〜295,000円程度 | 管理費 | 予想金額:13,000〜17,000円程度 |
| 礼金 | 非公開(アーカイブ) | 敷金 | 非公開(アーカイブ) |
| フリーレント | なし | 平米数 | 45.37㎡ |
| 間取り | 1LDK | 大型収納 | |
| 契約期間 |
| 方角 | 南東 |
| 更新料 | 契約形態 | 普通賃貸借契約 | |
| 取引態様 | 媒介 | 内見状況 | 入居中 |
| 入居時期 | 入居中 | SOHO・事務所 | 事務所(SOHO)可 |
| ペット | 間取り内訳 | 洋:6.3 LDK:15.2 | |
| キャンペーン情報・備考 | 本情報は賃料改定交渉の資料作成、収益物件の利回り試算、周辺エリアや最寄り駅の坪単価分析、次回募集開始時期の予測などにご活用いただけます。 | ||
※「どの不動産に頼めばいいのか分からない」「信頼できる営業マンの話を聞きたい」「一番親切な会社と契約したい」とお悩みの方におすすめなのが「高級賃貸バイブル」です。
高級賃貸バイブルは業界10年以上の熟練スタッフ群がお客様ファーストで対応します。
下記ボタンから、まずは無料でご相談下さい。
※内覧をご希望の際には、どうぞ物件のエントランス前にてお待ち合わせくださいませ。ご内覧後は、同じ場所でお別れとさせていただきます。お客様のご都合に合わせたスムーズなご案内を心がけておりますので、ご質問等がございましたら何なりとお申し付けください。 物件概要
| 物件名 |
| 築年月 |
|
|---|---|---|---|
| 所在地 | |||
| 交通 | |||
| 総戸数 |
| 総階数 |
|
| 構造 |
| ||
地図
物件までの道のりは、「拡大地図を表示」をクリックしてナビ機能をご利用ください。
部屋設備


















建物設備

TVモニターホン

エレベーター

オートロック

宅配ボックス

敷地内ゴミ置場

管理人
エスセナーリオ赤坂の現在募集中のお部屋
- No rooms found for this property.





















