
| 賃料 | 予想金額:194,000〜214,000円程度 | 管理費 | 予想金額:13,000〜17,000円程度 |
| 礼金/敷金 | 非公開(アーカイブ) | 平米数 | 42.34㎡ |
| 初期費用概算(参考) | 目安:221,000〜321,000 円 | みなし賃料(月額・参考) | 214,646〜234,646 円 |
| 備考 | 本ページは過去募集のアーカイブです。表示の金額は周辺相場・過去募集を踏まえた参考レンジであり、実際の契約金額・条件ではありません。 | ||
※上記みなし賃料(月額)は仲介手数料割引・無料&キャッシュバックを加味した高級賃貸バイブル限定の金額です。一般的なみなし賃料とは異なります。
【建物ページ】ザ・パークハビオ日本橋馬喰町の詳細・最新空室はこちら▶▶選ばれる理由
仲介手数料無料・キャンペーン情報(毎月15名様限定)
〇引っ越しお祝い金94000円プレゼント(キャッシュバック)
〇フリーレント1か月キャンペーン
〇仲介手数料無料キャンペーン
ザ・パークハビオ日本橋馬喰町 602の口コミ・レビュー
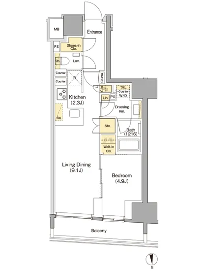
まず…ザ・パークハビオ日本橋馬喰町 602。この場所は、ただのマンションではありません。まるで都会の喧騒から一歩引いた、秘密の隠れ家のように、あなたを待っています。602号室は、34階建ての中で6階に位置し、窓の向こうには北の空が広がり、四季折々の美しい光景を楽しむことができるのです。専有面積42.34㎡には、LDK11.4帖と洋室4.9帖が優雅に広がり、あなたの生活スタイルを上品に演出します。
まず、扉を開けると、やわらかな光があなたを包み込みます。床に足を踏み入れた瞬間、温もりのあるフローリングが心地よく、まるで大地に抱かれているかのような感覚に浸ります。LDKは、家族や友人と語らう時間を豊かにするためのスペース。明るい光が差し込む窓辺で、朝のコーヒーの香ばしい香りが漂い、サクサクとしたトーストのバターの香りが心を満たします。やがて、リビングに広がる食卓を囲んで、笑い声が響き渡る光景が目に浮かびます。
次に、洋室4.9帖は、あなたのプライベートな空間。心地よい布団に身を沈めれば、静かな時間が流れ、穏やかな夢の世界へと誘われるでしょう。ここで、読書の時間を楽しんだり、趣味に没頭したりすることができるんです。そして、ウォークインクローゼット(WIC)とシューズインクローゼット(SIC)があるため、あなたのライフスタイルを美しく保つことができます。まさに、この空間はあなたの物語を彩るキャンバスです。
ザ・パークハビオ日本橋馬喰町 602という特別な住まいには、便利な設備が整っています。エレベーター、オートロック、宅配ボックスなど、現代の生活を支える機能が満載です。外に出れば、JR総武本線馬喰町駅まで徒歩4分。日本橋の活気あふれる街並みが、あなたの生活を一層魅力的にしてくれます。
日本橋は歴史と文化が交差する場所。隣には、伝統的な商業施設やアートスペースが点在し、日常の中で多彩な刺激を求めることができます。アートギャラリーでのひとときや、昔ながらの和菓子屋での甘美な味わいが、生活に潤いを与えてくれます。時には、近くの公園で自然と触れ合い、心のリフレッシュを図ることもできるでしょう。
ザ・パークハビオ日本橋馬喰町 602。この部屋は、ただの住まいではなく、あなたの人生の物語を紡ぐ舞台です。ここでの日常が、まるで映画のワンシーンのように素晴らしく、心に残る思い出を作ることでしょう。さあ、あなたもこの素晴らしい空間で、新たなストーリーを始めてみませんか。
バイブルスコア
バイブルスコア: 67.8
かなり条件の良い物件です、即仮押さえをおすすめする物件です!
このお部屋は、現在ご入居中のため空室情報はございません。ただし、将来的に募集が開始される際、バイブルスコアにおいて非常に高い評価が期待されます。特にご興味をお持ちの方は、今のうちにブックマークやお気に入りに登録していただくと、募集開始のお知らせをすぐに受け取ることができます。是非ともご検討くださいませ。
※バイブルスコア詳細はこちら
バイブルスコアとは独自のAI機械学習技術を利用した物件評価システムで、物件のおすすめ度を示します。最高得点は100点で、スコアが高いほど、よりおすすめの物件と評価されています。
写真
契約条件
| 賃料 | 予想金額:194,000〜214,000円程度 | 管理費 | 予想金額:13,000〜17,000円程度 |
| 礼金 | 非公開(アーカイブ) | 敷金 | 非公開(アーカイブ) |
| フリーレント | 1ヶ月 | 平米数 | 42.34㎡ |
| 間取り | 1LDK+WIC+SIC | 大型収納 | SIC・WIC |
| 契約期間 | 2年 | 方角 | 北 |
| 更新料 | 1ヶ月 | 契約形態 | 普通賃貸借契約 |
| 取引態様 | 媒介 | 内見状況 | 入居中 |
| 入居時期 | 入居中 | SOHO・事務所 | 相談 |
| ペット | 相談 | 間取り内訳 | LDK11.4帖 洋室4.9帖 |
| キャンペーン情報・備考 | 本情報は賃料改定交渉の資料作成、収益物件の利回り試算、周辺エリアや最寄り駅の坪単価分析、次回募集開始時期の予測などにご活用いただけます。 | ||
※「どの不動産に頼めばいいのか分からない」「信頼できる営業マンの話を聞きたい」「一番親切な会社と契約したい」とお悩みの方におすすめなのが「高級賃貸バイブル」です。
高級賃貸バイブルは業界10年以上の熟練スタッフ群がお客様ファーストで対応します。
下記ボタンから、まずは無料でご相談下さい。
※内覧をご希望の際には、どうぞ物件のエントランス前にてお待ち合わせくださいませ。ご内覧後は、同じ場所でお別れとさせていただきます。お客様のご都合に合わせたスムーズなご案内を心がけておりますので、ご質問等がございましたら何なりとお申し付けください。 物件概要
| 物件名 |
| 築年月 |
|
|---|---|---|---|
| 所在地 | |||
| 交通 | |||
| 総戸数 |
| 総階数 |
|
| 構造 |
| ||
地図
物件までの道のりは、「拡大地図を表示」をクリックしてナビ機能をご利用ください。
部屋設備













建物設備

TVモニターホン

エレベーター

オートロック

宅配ボックス

敷地内ゴミ置場

管理人

駐車場平置き

駐車場機械式

駐輪場
ザ・パークハビオ日本橋馬喰町の現在募集中のお部屋
- No rooms found for this property.





























