
| 賃料 | 予想金額:96,000〜116,000円程度 | 管理費 | 予想金額:7,000〜11,000円程度 |
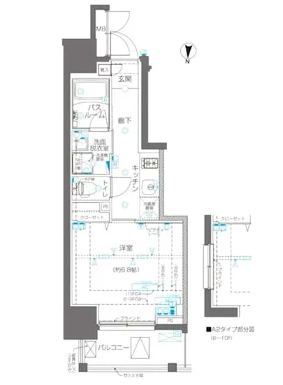
| 礼金/敷金 | 非公開(アーカイブ) | 平米数 | 25.48㎡ |
| 初期費用概算(参考) | 目安:426,000〜526,000 円 | みなし賃料(月額・参考) | 112,708〜132,708 円 |
| 備考 | 本ページは過去募集のアーカイブです。表示の金額は周辺相場・過去募集を踏まえた参考レンジであり、実際の契約金額・条件ではありません。 | ||
※上記みなし賃料(月額)は仲介手数料割引・無料&キャッシュバックを加味した高級賃貸バイブル限定の金額です。一般的なみなし賃料とは異なります。
【建物ページ】ズーム錦糸町の詳細・最新空室はこちら▶▶選ばれる理由
仲介手数料無料・キャンペーン情報(毎月15名様限定)
〇仲介手数料割引キャンペーン
ズーム錦糸町 201の口コミ・レビュー
ズーム錦糸町 201、その名はまるで一つのアート作品のように、あなたの人生に新たな色彩を添える空間です。この美しい1Kのエレガントな住まいは、専有面積25.48㎡というアトリエとして、あなたのライフスタイルを見事に描き出します。北向きの窓からは、柔らかな自然光が心地よく差し込み、静かな朝の目覚めを迎えることができるでしょう。
ズーム錦糸町 201は、まるで友人のように優しい間取り、洋室6.8帖は…ズーム錦糸町 201、その名はまるで一つのアート作品のように、あなたの人生に新たな色彩を添える空間です。この美しい1Kのエレガントな住まいは、専有面積25.48㎡というアトリエとして、あなたのライフスタイルを見事に描き出します。北向きの窓からは、柔らかな自然光が心地よく差し込み、静かな朝の目覚めを迎えることができるでしょう。
ズーム錦糸町 201は、まるで友人のように優しい間取り、洋室6.8帖はあなたの想像力を広げるキャンバスです。ここに身を置くことで、あなたは日々の生活を映画のように彩ることができるでしょう。朝食を作るためにキッチンに立つと、優しい香ばしい香りが漂い、トーストが焼ける音が静けさを破ります。コーヒーは香り高く、苦みと共に、あなたの心を温めてくれるでしょう。
さて、ズーム錦糸町 201は、ただの住まいではなく、生活そのものを豊かにするための舞台です。エレベーターを上がる瞬間、まるで自分が映画の主人公になったかのような錯覚に陥ります。オートロックで守られた空間は、安心感を与え、まるでこの特別な場所があなたを独り占めしているかのような感覚を生み出します。
周辺の環境もまた、ズーム錦糸町 201の魅力を引き立てる重要な要素です。東京メトロ半蔵門線 錦糸町駅までわずか4分の距離に位置し、渋谷や新宿へのアクセスも申し分ありません。街を歩けば、歴史と文化が交差する道を感じることができ、繁華街の賑わいと静謐な住宅街のコントラストが、まるで一幅の絵画のように目の前に広がります。
ズーム錦糸町 201の暮らしは、毎日が特別な映画のワンシーンのように感じられることでしょう。夕暮れ時、窓から見える街の灯りが一つまた一つと点灯していく様子は、まるで星が夜空に輝くように、あなたの心を奪います。自宅で過ごす静かな時間の中に、自分だけのストーリーを織り込むことができるのです。
駐輪場やバイク置場、さらには宅配ボックスまで完備されており、日常の便利さも手に入れることができます。管理人が常駐し、安心と快適を提供してくれる、この場はまさに住むための理想的なキャンバスです。
ズーム錦糸町 201、あなたの物語が始まる場所。ここで紡ぎ出す日々は、心と身体を豊かにし、精緻な生活のクオリティを引き上げてくれることでしょう。さぁ、新しい生活の幕が上がる瞬間に、誇り高く自分を迎え入れてください。あなたの人生に新たな章を刻むために、ズーム錦糸町 201は、いつでもあなたを待っています。
ズーム錦糸町 201は、まるで友人のように優しい間取り、洋室6.8帖は…ズーム錦糸町 201、その名はまるで一つのアート作品のように、あなたの人生に新たな色彩を添える空間です。この美しい1Kのエレガントな住まいは、専有面積25.48㎡というアトリエとして、あなたのライフスタイルを見事に描き出します。北向きの窓からは、柔らかな自然光が心地よく差し込み、静かな朝の目覚めを迎えることができるでしょう。
ズーム錦糸町 201は、まるで友人のように優しい間取り、洋室6.8帖はあなたの想像力を広げるキャンバスです。ここに身を置くことで、あなたは日々の生活を映画のように彩ることができるでしょう。朝食を作るためにキッチンに立つと、優しい香ばしい香りが漂い、トーストが焼ける音が静けさを破ります。コーヒーは香り高く、苦みと共に、あなたの心を温めてくれるでしょう。
さて、ズーム錦糸町 201は、ただの住まいではなく、生活そのものを豊かにするための舞台です。エレベーターを上がる瞬間、まるで自分が映画の主人公になったかのような錯覚に陥ります。オートロックで守られた空間は、安心感を与え、まるでこの特別な場所があなたを独り占めしているかのような感覚を生み出します。
周辺の環境もまた、ズーム錦糸町 201の魅力を引き立てる重要な要素です。東京メトロ半蔵門線 錦糸町駅までわずか4分の距離に位置し、渋谷や新宿へのアクセスも申し分ありません。街を歩けば、歴史と文化が交差する道を感じることができ、繁華街の賑わいと静謐な住宅街のコントラストが、まるで一幅の絵画のように目の前に広がります。
ズーム錦糸町 201の暮らしは、毎日が特別な映画のワンシーンのように感じられることでしょう。夕暮れ時、窓から見える街の灯りが一つまた一つと点灯していく様子は、まるで星が夜空に輝くように、あなたの心を奪います。自宅で過ごす静かな時間の中に、自分だけのストーリーを織り込むことができるのです。
駐輪場やバイク置場、さらには宅配ボックスまで完備されており、日常の便利さも手に入れることができます。管理人が常駐し、安心と快適を提供してくれる、この場はまさに住むための理想的なキャンバスです。
ズーム錦糸町 201、あなたの物語が始まる場所。ここで紡ぎ出す日々は、心と身体を豊かにし、精緻な生活のクオリティを引き上げてくれることでしょう。さぁ、新しい生活の幕が上がる瞬間に、誇り高く自分を迎え入れてください。あなたの人生に新たな章を刻むために、ズーム錦糸町 201は、いつでもあなたを待っています。
バイブルスコア
バイブルスコア: 31.4
平均的なスコアです。
※バイブルスコア詳細はこちら
バイブルスコアとは独自のAI機械学習技術を利用した物件評価システムで、物件のおすすめ度を示します。最高得点は100点で、スコアが高いほど、よりおすすめの物件と評価されています。
写真
現在写真が登録されていません契約条件
| 賃料 | 予想金額:96,000〜116,000円程度 | 管理費 | 予想金額:7,000〜11,000円程度 |
| 礼金 | 非公開(アーカイブ) | 敷金 | 非公開(アーカイブ) |
| フリーレント | なし | 平米数 | 25.48㎡ |
| 間取り | 1K | 大型収納 | |
| 契約期間 |
| 方角 | 北 |
| 更新料 | 契約形態 | 普通賃貸借契約 | |
| 取引態様 | 媒介 | 内見状況 | 入居中 |
| 入居時期 | 入居中 | SOHO・事務所 | |
| ペット | ペット可 | 間取り内訳 | 洋:6.8 |
| キャンペーン情報・備考 | 本情報は賃料改定交渉の資料作成、収益物件の利回り試算、周辺エリアや最寄り駅の坪単価分析、次回募集開始時期の予測などにご活用いただけます。 | ||
※「どの不動産に頼めばいいのか分からない」「信頼できる営業マンの話を聞きたい」「一番親切な会社と契約したい」とお悩みの方におすすめなのが「高級賃貸バイブル」です。
高級賃貸バイブルは業界10年以上の熟練スタッフ群がお客様ファーストで対応します。
下記ボタンから、まずは無料でご相談下さい。
※内覧をご希望の際には、どうぞ物件のエントランス前にてお待ち合わせくださいませ。ご内覧後は、同じ場所でお別れとさせていただきます。お客様のご都合に合わせたスムーズなご案内を心がけておりますので、ご質問等がございましたら何なりとお申し付けください。 物件概要
| 物件名 |
| 築年月 |
|
|---|---|---|---|
| 所在地 | |||
| 交通 | |||
| 総戸数 |
| 総階数 |
|
| 構造 |
| ||
地図
物件までの道のりは、「拡大地図を表示」をクリックしてナビ機能をご利用ください。
部屋設備













建物設備

TVモニターホン

エレベーター

オートロック

バイク置場

宅配ボックス

敷地内ゴミ置場

管理人

駐輪場
ズーム錦糸町の現在募集中のお部屋
- No rooms found for this property.
