
| 賃料 | 予想金額:91,000〜111,000円程度 | 管理費 | 予想金額:7,000〜11,000円程度 |
| 礼金/敷金 | 非公開(アーカイブ) | 平米数 | 25.48㎡ |
| 初期費用概算(参考) | 目安:105,500〜205,500 円 | みなし賃料(月額・参考) | 103,240〜123,240 円 |
| 備考 | 本ページは過去募集のアーカイブです。表示の金額は周辺相場・過去募集を踏まえた参考レンジであり、実際の契約金額・条件ではありません。 | ||
※上記みなし賃料(月額)は仲介手数料割引・無料&キャッシュバックを加味した高級賃貸バイブル限定の金額です。一般的なみなし賃料とは異なります。
【建物ページ】ズーム錦糸町の詳細・最新空室はこちら▶▶選ばれる理由
仲介手数料無料・キャンペーン情報(毎月15名様限定)
〇フリーレント1か月キャンペーン
ズーム錦糸町 601の口コミ・レビュー
ズーム錦糸町 601。ここは、都市の喧騒から一歩離れた特別な隠れ家。東京都墨田区江東橋2-13-15、北を向いたその窓からは、流れるような街の風景が望まれ、まるで映画のワンシーンのように心を奪います。この素晴らしい場所で、あなたの日常はまるで別次元の物語に変わるのです。
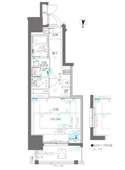
このお部屋は、専有面積25.48㎡、1Kというコンパクトながらも機能性に優れた空間です。ぴったりとした6.8帖の洋室は、柔らか…ズーム錦糸町 601。ここは、都市の喧騒から一歩離れた特別な隠れ家。東京都墨田区江東橋2-13-15、北を向いたその窓からは、流れるような街の風景が望まれ、まるで映画のワンシーンのように心を奪います。この素晴らしい場所で、あなたの日常はまるで別次元の物語に変わるのです。
このお部屋は、専有面積25.48㎡、1Kというコンパクトながらも機能性に優れた空間です。ぴったりとした6.8帖の洋室は、柔らかな光が差し込み、まるで朝の陽ざしがあなたを優しく包み込むかのよう。ここにいると、まるで自分自身が主人公のように感じ、毎朝が新たな冒険の始まりだと教えてくれます。優雅に起床し、あたたかなカフェの香りが漂うキッチンで、手作りのブランチを楽しむひととき。その瞬間、味わう朝食は、既に特別なジュエリーのように感じられるでしょう。
宙を舞う音楽のように響くエレベーターの音が、あなたをこの特別な住処から外の世界へと誘います。東京メトロ半蔵門線 錦糸町駅まで徒歩4分。街の中心にいながら、いつでも逃げ出せる自由な感覚。オートロックの扉が、外界の喧騒を遮り、静かな安息の地へと導きます。あなたの生活は、洒脱なインテリアと共に、緑豊かな周辺環境に溶け込むように流れ出します。
ズーム錦糸町 601では、宅配ボックスや駐輪場、バイク置場といった利便性も確保されており、生活に必要なすべてが整っています。それはまるで、頼りにしている友人が常にそばにいてくれるかのような安心感。ここでの生活は、あなたに多彩な経験を提供し、日々の小さな喜びを大切にすることを教えてくれるでしょう。
周辺には、墨田区の歴史ある文化やアートの息吹が感じられます。隅田川の流れとともに、古き良き日本の美が息づいています。夜空に煌めくスカイツリーの影を楽しみながら、心地よい風が吹くバルコニーで、親しい友人とのひとときを過ごす。そんなシーンが目に浮かびます。
ズーム錦糸町 601、あなたにとっての特別な場所。この場所での一瞬一瞬が、かけがえのない思い出となり、心に深く刻まれることでしょう。ここから始まる新たな物語を、どうぞ心ゆくまで楽しんでください。あなたの新しい生活が、まるで美しい映画のように展開していくのを、心から願っております。
このお部屋は、専有面積25.48㎡、1Kというコンパクトながらも機能性に優れた空間です。ぴったりとした6.8帖の洋室は、柔らか…ズーム錦糸町 601。ここは、都市の喧騒から一歩離れた特別な隠れ家。東京都墨田区江東橋2-13-15、北を向いたその窓からは、流れるような街の風景が望まれ、まるで映画のワンシーンのように心を奪います。この素晴らしい場所で、あなたの日常はまるで別次元の物語に変わるのです。
このお部屋は、専有面積25.48㎡、1Kというコンパクトながらも機能性に優れた空間です。ぴったりとした6.8帖の洋室は、柔らかな光が差し込み、まるで朝の陽ざしがあなたを優しく包み込むかのよう。ここにいると、まるで自分自身が主人公のように感じ、毎朝が新たな冒険の始まりだと教えてくれます。優雅に起床し、あたたかなカフェの香りが漂うキッチンで、手作りのブランチを楽しむひととき。その瞬間、味わう朝食は、既に特別なジュエリーのように感じられるでしょう。
宙を舞う音楽のように響くエレベーターの音が、あなたをこの特別な住処から外の世界へと誘います。東京メトロ半蔵門線 錦糸町駅まで徒歩4分。街の中心にいながら、いつでも逃げ出せる自由な感覚。オートロックの扉が、外界の喧騒を遮り、静かな安息の地へと導きます。あなたの生活は、洒脱なインテリアと共に、緑豊かな周辺環境に溶け込むように流れ出します。
ズーム錦糸町 601では、宅配ボックスや駐輪場、バイク置場といった利便性も確保されており、生活に必要なすべてが整っています。それはまるで、頼りにしている友人が常にそばにいてくれるかのような安心感。ここでの生活は、あなたに多彩な経験を提供し、日々の小さな喜びを大切にすることを教えてくれるでしょう。
周辺には、墨田区の歴史ある文化やアートの息吹が感じられます。隅田川の流れとともに、古き良き日本の美が息づいています。夜空に煌めくスカイツリーの影を楽しみながら、心地よい風が吹くバルコニーで、親しい友人とのひとときを過ごす。そんなシーンが目に浮かびます。
ズーム錦糸町 601、あなたにとっての特別な場所。この場所での一瞬一瞬が、かけがえのない思い出となり、心に深く刻まれることでしょう。ここから始まる新たな物語を、どうぞ心ゆくまで楽しんでください。あなたの新しい生活が、まるで美しい映画のように展開していくのを、心から願っております。
バイブルスコア
バイブルスコア: 40.1
条件のいい物件です、引っ越しが2か月以内の場合は仮申し込みを検討すべき物件です。
※バイブルスコア詳細はこちら
バイブルスコアとは独自のAI機械学習技術を利用した物件評価システムで、物件のおすすめ度を示します。最高得点は100点で、スコアが高いほど、よりおすすめの物件と評価されています。
写真
現在写真が登録されていません契約条件
| 賃料 | 予想金額:91,000〜111,000円程度 | 管理費 | 予想金額:7,000〜11,000円程度 |
| 礼金 | 非公開(アーカイブ) | 敷金 | 非公開(アーカイブ) |
| フリーレント | 1ヶ月 | 平米数 | 25.48㎡ |
| 間取り | 1K | 大型収納 | |
| 契約期間 |
| 方角 | 北 |
| 更新料 | 契約形態 | 普通賃貸借契約 | |
| 取引態様 | 媒介 | 内見状況 | 入居中 |
| 入居時期 | 入居中 | SOHO・事務所 | |
| ペット | ペット可 | 間取り内訳 | 洋:6.8 |
| キャンペーン情報・備考 | 本情報は賃料改定交渉の資料作成、収益物件の利回り試算、周辺エリアや最寄り駅の坪単価分析、次回募集開始時期の予測などにご活用いただけます。 | ||
※「どの不動産に頼めばいいのか分からない」「信頼できる営業マンの話を聞きたい」「一番親切な会社と契約したい」とお悩みの方におすすめなのが「高級賃貸バイブル」です。
高級賃貸バイブルは業界10年以上の熟練スタッフ群がお客様ファーストで対応します。
下記ボタンから、まずは無料でご相談下さい。
※内覧をご希望の際には、どうぞ物件のエントランス前にてお待ち合わせくださいませ。ご内覧後は、同じ場所でお別れとさせていただきます。お客様のご都合に合わせたスムーズなご案内を心がけておりますので、ご質問等がございましたら何なりとお申し付けください。 物件概要
| 物件名 |
| 築年月 |
|
|---|---|---|---|
| 所在地 | |||
| 交通 | |||
| 総戸数 |
| 総階数 |
|
| 構造 |
| ||
地図
物件までの道のりは、「拡大地図を表示」をクリックしてナビ機能をご利用ください。
部屋設備













建物設備

TVモニターホン

エレベーター

オートロック

バイク置場

宅配ボックス

敷地内ゴミ置場

管理人

駐輪場
ズーム錦糸町の現在募集中のお部屋
- No rooms found for this property.
