
| 賃料 | 予想金額:125,000〜145,000円程度 | 管理費 | 予想金額:16,000〜20,000円程度 |
| 礼金/敷金 | 非公開(アーカイブ) | 平米数 | 31.65㎡ |
| 初期費用概算(参考) | 目安:136,000〜236,000 円 | みなし賃料(月額・参考) | 146,875〜166,875 円 |
| 備考 | 本ページは過去募集のアーカイブです。表示の金額は周辺相場・過去募集を踏まえた参考レンジであり、実際の契約金額・条件ではありません。 | ||
※上記みなし賃料(月額)は仲介手数料割引・無料&キャッシュバックを加味した高級賃貸バイブル限定の金額です。一般的なみなし賃料とは異なります。
【建物ページ】WORVE東京木場の詳細・最新空室はこちら▶▶選ばれる理由
仲介手数料無料・キャンペーン情報(毎月15名様限定)
〇フリーレント1か月キャンペーン
WORVE東京木場 1010の口コミ・レビュー
WORVE東京木場 1010。この素晴らしい住処は、まるで都会の真ん中に佇む一粒の真珠のようです。東京都江東区塩浜に位置し、温もりに包まれた南向きの窓からは、やわらかな日差しが差し込み、心地よい風が心を癒してくれます。あなたがこの物件の扉を開けた瞬間、洗練されたデザインが迎えてくれ、その空間には独自の物語が息づいていることに気がつくでしょう。
このWORVE東京木場 1010は、31.65㎡の広…WORVE東京木場 1010。この素晴らしい住処は、まるで都会の真ん中に佇む一粒の真珠のようです。東京都江東区塩浜に位置し、温もりに包まれた南向きの窓からは、やわらかな日差しが差し込み、心地よい風が心を癒してくれます。あなたがこの物件の扉を開けた瞬間、洗練されたデザインが迎えてくれ、その空間には独自の物語が息づいていることに気がつくでしょう。
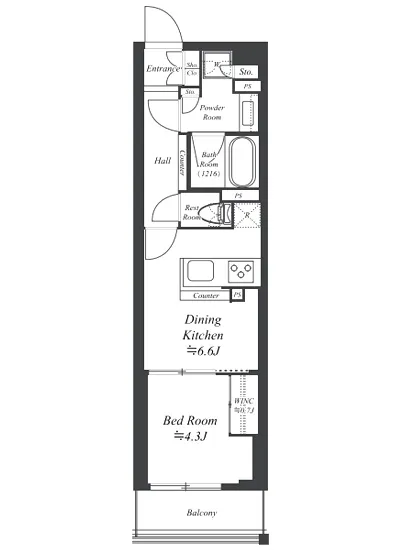
このWORVE東京木場 1010は、31.65㎡の広さに巧みに配置された1DKの間取りが、住む人を優しく包み込みます。リビングの6.6帖は、あなたの大切な時間を凝縮するための舞台です。日々の疲れを癒すソファには、静かな午後、あなた自身を見つめ直すための居場所を提供してくれます。そこから望む窓の外は、やわらかな緑と優しい風景が心に安らぎをもたらし、自然との調和を感じることができるでしょう。
そして、4.3帖の洋室は、あなたの情熱を映し出すキャンバスです。毎朝目覚めるたびに、カーテンを開けると、光が差し込み、心の中に新たな希望を与えてくれます。そこに佇むと、静かに流れる時間に身を委ね、優雅な気分に浸ることができるのです。
WORVE東京木場 1010には、エレガントな設備が揃い、TVモニターホンやオートロックの安心感が、生活を華やかに彩ります。宅配ボックスや敷地内のゴミ置場も、現代生活の必需品として、あなたの時間を大切にしてくれます。あなたの愛車を見守るバイク置場や、駐輪場、平置きの駐車場も完備されており、都会の喧騒から逃れ、自由な移動を可能にします。
生活はここから始まります。近隣には歴史を紡ぐ風情のある街並みが広がり、地元のグルメや文化があなたを待っています。東京メトロ東西線木場駅まで徒歩11分という立地は、ビジネスからレジャーまで、あらゆるシーンにおいて快適さを保ちます。周囲の喧騒から離れ、静けさと安らぎを感じながら、人生の豊かさを再発見することができるのです。
WORVE東京木場 1010。その一歩を踏み出せば、あなた自身が映画の主人公となり、日々の暮らしがアートのように彩られることでしょう。あなたの感性を大切にし、この特別な空間で心の豊かさを見つけ出してください。新しい生活の幕が今、静かに開かれようとしています。
このWORVE東京木場 1010は、31.65㎡の広…WORVE東京木場 1010。この素晴らしい住処は、まるで都会の真ん中に佇む一粒の真珠のようです。東京都江東区塩浜に位置し、温もりに包まれた南向きの窓からは、やわらかな日差しが差し込み、心地よい風が心を癒してくれます。あなたがこの物件の扉を開けた瞬間、洗練されたデザインが迎えてくれ、その空間には独自の物語が息づいていることに気がつくでしょう。
このWORVE東京木場 1010は、31.65㎡の広さに巧みに配置された1DKの間取りが、住む人を優しく包み込みます。リビングの6.6帖は、あなたの大切な時間を凝縮するための舞台です。日々の疲れを癒すソファには、静かな午後、あなた自身を見つめ直すための居場所を提供してくれます。そこから望む窓の外は、やわらかな緑と優しい風景が心に安らぎをもたらし、自然との調和を感じることができるでしょう。
そして、4.3帖の洋室は、あなたの情熱を映し出すキャンバスです。毎朝目覚めるたびに、カーテンを開けると、光が差し込み、心の中に新たな希望を与えてくれます。そこに佇むと、静かに流れる時間に身を委ね、優雅な気分に浸ることができるのです。
WORVE東京木場 1010には、エレガントな設備が揃い、TVモニターホンやオートロックの安心感が、生活を華やかに彩ります。宅配ボックスや敷地内のゴミ置場も、現代生活の必需品として、あなたの時間を大切にしてくれます。あなたの愛車を見守るバイク置場や、駐輪場、平置きの駐車場も完備されており、都会の喧騒から逃れ、自由な移動を可能にします。
生活はここから始まります。近隣には歴史を紡ぐ風情のある街並みが広がり、地元のグルメや文化があなたを待っています。東京メトロ東西線木場駅まで徒歩11分という立地は、ビジネスからレジャーまで、あらゆるシーンにおいて快適さを保ちます。周囲の喧騒から離れ、静けさと安らぎを感じながら、人生の豊かさを再発見することができるのです。
WORVE東京木場 1010。その一歩を踏み出せば、あなた自身が映画の主人公となり、日々の暮らしがアートのように彩られることでしょう。あなたの感性を大切にし、この特別な空間で心の豊かさを見つけ出してください。新しい生活の幕が今、静かに開かれようとしています。
バイブルスコア
バイブルスコア: 27.3
平均的なスコアです。
※バイブルスコア詳細はこちら
バイブルスコアとは独自のAI機械学習技術を利用した物件評価システムで、物件のおすすめ度を示します。最高得点は100点で、スコアが高いほど、よりおすすめの物件と評価されています。
写真
契約条件
| 賃料 | 予想金額:125,000〜145,000円程度 | 管理費 | 予想金額:16,000〜20,000円程度 |
| 礼金 | 非公開(アーカイブ) | 敷金 | 非公開(アーカイブ) |
| フリーレント | 1.0ヶ月 | 平米数 | 31.65㎡ |
| 間取り | 1DK | 大型収納 | |
| 契約期間 |
| 方角 | 南 |
| 更新料 | 契約形態 | 普通賃貸借契約 | |
| 取引態様 | 媒介 | 内見状況 | 入居中 |
| 入居時期 | 入居中 | SOHO・事務所 | |
| ペット | 間取り内訳 | 洋:4.3 DK:6.6 | |
| キャンペーン情報・備考 | 本情報は賃料改定交渉の資料作成、収益物件の利回り試算、周辺エリアや最寄り駅の坪単価分析、次回募集開始時期の予測などにご活用いただけます。 | ||
※「どの不動産に頼めばいいのか分からない」「信頼できる営業マンの話を聞きたい」「一番親切な会社と契約したい」とお悩みの方におすすめなのが「高級賃貸バイブル」です。
高級賃貸バイブルは業界10年以上の熟練スタッフ群がお客様ファーストで対応します。
下記ボタンから、まずは無料でご相談下さい。
※内覧をご希望の際には、どうぞ物件のエントランス前にてお待ち合わせくださいませ。ご内覧後は、同じ場所でお別れとさせていただきます。お客様のご都合に合わせたスムーズなご案内を心がけておりますので、ご質問等がございましたら何なりとお申し付けください。 物件概要
| 物件名 |
| 築年月 |
|
|---|---|---|---|
| 所在地 | |||
| 交通 | |||
| 総戸数 |
| 総階数 |
|
| 構造 |
| ||
地図
物件までの道のりは、「拡大地図を表示」をクリックしてナビ機能をご利用ください。
部屋設備
















建物設備

TVモニターホン

エレベーター

オートロック

バイク置場

宅配ボックス

敷地内ゴミ置場

管理人

駐車場平置き

駐輪場
WORVE東京木場の現在募集中のお部屋
- No rooms found for this property.


























