
| 賃料 | 予想金額:117,000〜137,000円程度 | 管理費 | 予想金額:13,000〜17,000円程度 |
| 礼金/敷金 | 非公開(アーカイブ) | 平米数 | 35.51㎡ |
| 初期費用概算(参考) | 目安:254,500〜354,500 円 | みなし賃料(月額・参考) | 138,344〜158,344 円 |
| 備考 | 本ページは過去募集のアーカイブです。表示の金額は周辺相場・過去募集を踏まえた参考レンジであり、実際の契約金額・条件ではありません。 | ||
※上記みなし賃料(月額)は仲介手数料割引・無料&キャッシュバックを加味した高級賃貸バイブル限定の金額です。一般的なみなし賃料とは異なります。
【建物ページ】ルフレプレミアム押上ノルドの詳細・最新空室はこちら▶▶選ばれる理由
仲介手数料無料・キャンペーン情報(毎月15名様限定)
〇フリーレント1か月キャンペーン
ルフレプレミアム押上ノルド 701の口コミ・レビュー
ルフレプレミアム押上ノルド 701。この名前には、静謐な空間と優雅な生活が約束されています。703の高層に位置するこの住まいは、まるで都心の喧騒から逃れた高嶺の花のように、洗練された隠れ家を提供します。専有面積35.51㎡のこの空間は、あなた自身の物語を紡ぐためのキャンバスとなることでしょう。
この物件の扉を開けると、まずは温かみのある光が優しく迎え入れてくれます。北向きの窓から差し込む柔らかな…ルフレプレミアム押上ノルド 701。この名前には、静謐な空間と優雅な生活が約束されています。703の高層に位置するこの住まいは、まるで都心の喧騒から逃れた高嶺の花のように、洗練された隠れ家を提供します。専有面積35.51㎡のこの空間は、あなた自身の物語を紡ぐためのキャンバスとなることでしょう。
この物件の扉を開けると、まずは温かみのある光が優しく迎え入れてくれます。北向きの窓から差し込む柔らかな光は、家の中を穏やかな明るさで満たし、まるで新しい一日の始まりを象徴するかのようです。和やかな空気感と共に、あなたの毎日は映画のワンシーンのように、心躍るものになるでしょう。
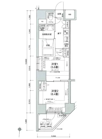
ルフレプレミアム押上ノルド 701は、間取りが2Kで設計されており、洋室は6.4帖と5.6帖の心地よいスペースに分かれています。それぞれの部屋は、異なる感情や生活シーンを表現できるようにデザインされており、友人を招いての食事会や、静かなひと時を過ごす読書タイムにも最適です。想像してみてください。6.4帖のリビングでは、あたたかな香りのコーヒーを淹れながら、お気に入りの音楽を流す。窓の向こうには、四季折々の風景が広がり、都会の真ん中にいることを忘れさせてくれるのです。
生活の便利さを考慮した設備も整っています。TVモニターホンやオートロック、さらには宅配ボックスまで完備されており、安全で快適な暮らしを実現します。エレベーターを利用して、瞬時に701へアクセスできるのも嬉しいポイントです。住む人のニーズに合わせた細やかな配慮がされているため、生活の質が自然と向上します。
周辺の歴史や文化も、この物件を特別なものにしています。押上という地名は、多くの文化の交差点であり、歴史的な背景を持っています。墨田区は、伝統的な工芸品やアートの発信地としても知られ、近隣には数多のギャラリーやショップが点在しています。この街の豊かな文化に触れながら、日々の生活を彩ることができるのです。まるで美術館の中にあるかのような感覚に浸ることができるでしょう。
そして、最後にこのルフレプレミアム押上ノルド 701の魅力を語る上で忘れてはならないのが、その利便性です。最寄りの東武伊勢崎線・曳舟駅まで徒歩5分という立地は、驚くべき便利さを提供します。あらゆる都市の利便を享受しながら、静寂な生活環境へと戻れるという贅沢を感じてみてください。
ルフレプレミアム押上ノルド 701は、あなたの新しい物語を紡ぐための舞台となります。ここで過ごすことで、あなたの生活がより豊かに、より彩り豊かに展開されることでしょう。どうぞこの空間に身を委ね、心の底からの幸せを感じてください。あなたの新しい人生の第一歩が、ここでスタートするのです。
この物件の扉を開けると、まずは温かみのある光が優しく迎え入れてくれます。北向きの窓から差し込む柔らかな…ルフレプレミアム押上ノルド 701。この名前には、静謐な空間と優雅な生活が約束されています。703の高層に位置するこの住まいは、まるで都心の喧騒から逃れた高嶺の花のように、洗練された隠れ家を提供します。専有面積35.51㎡のこの空間は、あなた自身の物語を紡ぐためのキャンバスとなることでしょう。
この物件の扉を開けると、まずは温かみのある光が優しく迎え入れてくれます。北向きの窓から差し込む柔らかな光は、家の中を穏やかな明るさで満たし、まるで新しい一日の始まりを象徴するかのようです。和やかな空気感と共に、あなたの毎日は映画のワンシーンのように、心躍るものになるでしょう。
ルフレプレミアム押上ノルド 701は、間取りが2Kで設計されており、洋室は6.4帖と5.6帖の心地よいスペースに分かれています。それぞれの部屋は、異なる感情や生活シーンを表現できるようにデザインされており、友人を招いての食事会や、静かなひと時を過ごす読書タイムにも最適です。想像してみてください。6.4帖のリビングでは、あたたかな香りのコーヒーを淹れながら、お気に入りの音楽を流す。窓の向こうには、四季折々の風景が広がり、都会の真ん中にいることを忘れさせてくれるのです。
生活の便利さを考慮した設備も整っています。TVモニターホンやオートロック、さらには宅配ボックスまで完備されており、安全で快適な暮らしを実現します。エレベーターを利用して、瞬時に701へアクセスできるのも嬉しいポイントです。住む人のニーズに合わせた細やかな配慮がされているため、生活の質が自然と向上します。
周辺の歴史や文化も、この物件を特別なものにしています。押上という地名は、多くの文化の交差点であり、歴史的な背景を持っています。墨田区は、伝統的な工芸品やアートの発信地としても知られ、近隣には数多のギャラリーやショップが点在しています。この街の豊かな文化に触れながら、日々の生活を彩ることができるのです。まるで美術館の中にあるかのような感覚に浸ることができるでしょう。
そして、最後にこのルフレプレミアム押上ノルド 701の魅力を語る上で忘れてはならないのが、その利便性です。最寄りの東武伊勢崎線・曳舟駅まで徒歩5分という立地は、驚くべき便利さを提供します。あらゆる都市の利便を享受しながら、静寂な生活環境へと戻れるという贅沢を感じてみてください。
ルフレプレミアム押上ノルド 701は、あなたの新しい物語を紡ぐための舞台となります。ここで過ごすことで、あなたの生活がより豊かに、より彩り豊かに展開されることでしょう。どうぞこの空間に身を委ね、心の底からの幸せを感じてください。あなたの新しい人生の第一歩が、ここでスタートするのです。
バイブルスコア
バイブルスコア: 28.5
平均的なスコアです。
※バイブルスコア詳細はこちら
バイブルスコアとは独自のAI機械学習技術を利用した物件評価システムで、物件のおすすめ度を示します。最高得点は100点で、スコアが高いほど、よりおすすめの物件と評価されています。
写真
現在写真が登録されていません契約条件
| 賃料 | 予想金額:117,000〜137,000円程度 | 管理費 | 予想金額:13,000〜17,000円程度 |
| 礼金 | 非公開(アーカイブ) | 敷金 | 非公開(アーカイブ) |
| フリーレント | 1.0ヶ月 | 平米数 | 35.51㎡ |
| 間取り | 2K | 大型収納 | |
| 契約期間 |
| 方角 | 北 |
| 更新料 | 契約形態 | 普通賃貸借契約 | |
| 取引態様 | 媒介 | 内見状況 | 入居中 |
| 入居時期 | 入居中 | SOHO・事務所 | |
| ペット | ペット可 | 間取り内訳 | 洋:6.4 洋:5.6 |
| キャンペーン情報・備考 | 本情報は賃料改定交渉の資料作成、収益物件の利回り試算、周辺エリアや最寄り駅の坪単価分析、次回募集開始時期の予測などにご活用いただけます。 | ||
※「どの不動産に頼めばいいのか分からない」「信頼できる営業マンの話を聞きたい」「一番親切な会社と契約したい」とお悩みの方におすすめなのが「高級賃貸バイブル」です。
高級賃貸バイブルは業界10年以上の熟練スタッフ群がお客様ファーストで対応します。
下記ボタンから、まずは無料でご相談下さい。
※内覧をご希望の際には、どうぞ物件のエントランス前にてお待ち合わせくださいませ。ご内覧後は、同じ場所でお別れとさせていただきます。お客様のご都合に合わせたスムーズなご案内を心がけておりますので、ご質問等がございましたら何なりとお申し付けください。 物件概要
| 物件名 |
| 築年月 |
|
|---|---|---|---|
| 所在地 | |||
| 交通 |
| ||
| 総戸数 |
| 総階数 |
|
| 構造 |
| ||
地図
物件までの道のりは、「拡大地図を表示」をクリックしてナビ機能をご利用ください。
部屋設備














建物設備

TVモニターホン

エレベーター

オートロック

バイク置場

宅配ボックス

敷地内ゴミ置場

管理人

駐輪場
ルフレプレミアム押上ノルドの現在募集中のお部屋
- No rooms found for this property.
