
| 賃料 | 予想金額:146,000〜166,000円程度 | 管理費 | 予想金額:14,000〜18,000円程度 |
| 礼金/敷金 | 非公開(アーカイブ) | 平米数 | 43.97㎡ |
| 初期費用概算(参考) | 目安:689,500〜789,500 円 | みなし賃料(月額・参考) | 174,156〜194,156 円 |
| 備考 | 本ページは過去募集のアーカイブです。表示の金額は周辺相場・過去募集を踏まえた参考レンジであり、実際の契約金額・条件ではありません。 | ||
※上記みなし賃料(月額)は仲介手数料割引・無料&キャッシュバックを加味した高級賃貸バイブル限定の金額です。一般的なみなし賃料とは異なります。
【建物ページ】ブレシア日本橋蛎殻町の詳細・最新空室はこちら▶▶選ばれる理由
仲介手数料無料・キャンペーン情報(毎月15名様限定)
〇仲介手数料割引キャンペーン
ブレシア日本橋蛎殻町 902の口コミ・レビュー
ブレシア日本橋蛎殻町 902。この詩的な名前を耳にした瞬間、あなたの心は静かに高鳴り、目の前に広がる新たな生活の舞台を想像することでしょう。43.97㎡の専有面積に、あなたの物語が息づくこの素晴らしい空間は、まるで生活のアートを創造するために設計されたキャンバスのようです。
902号室は、まるで優雅に微笑む貴婦人のように、穏やかな北東と北西の光が心地よく差し込みます。日々の生活は、まるで映画のワ…ブレシア日本橋蛎殻町 902。この詩的な名前を耳にした瞬間、あなたの心は静かに高鳴り、目の前に広がる新たな生活の舞台を想像することでしょう。43.97㎡の専有面積に、あなたの物語が息づくこの素晴らしい空間は、まるで生活のアートを創造するために設計されたキャンバスのようです。
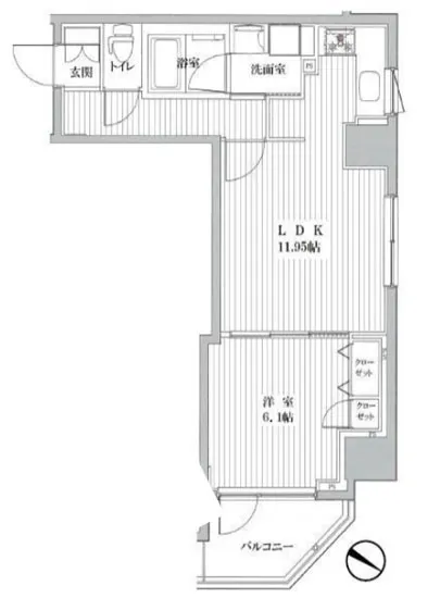
902号室は、まるで優雅に微笑む貴婦人のように、穏やかな北東と北西の光が心地よく差し込みます。日々の生活は、まるで映画のワンシーンのように美しく展開されることでしょう。リビングダイニングキッチン(LDK)の広さ11.95帖は、洗練された日々を過ごすための贅沢な空間を提供し、あなたのクリエイティブな活動を全力で支えます。窓から差し込む光が、温かみのある木材の床を照らし、柔らかな影を作り出します。その瞬間、まるで陽だまりの中にいるような感覚が広がります。
そして、6.1帖の洋室は、あなたのプライベート空間として、心と体をリフレッシュさせるオアシスとなることでしょう。やわらかなカーテン越しに、外の風景を楽しむことができ、朝の光を浴びながらベッドから起き上がる喜びは、まさにこの物件でしか味わえない特権です。コーヒーの香りが漂うキッチンで、あなたの手から生まれる料理は、五感を刺激し、食卓を囲む人々との絆を深めていきます。食材の色とりどりの美しさ、香ばしい焼き上がるパンの匂い、そしてその味わいが、幸せな瞬間を織り成します。
ブレシア日本橋蛎殻町 902は、単なる住まいではなく、日本橋という文化と歴史の深いエリアに位置することで、地元の魅力を存分に楽しむことができます。徒歩3分のところには水天宮前駅があり、東京の喧騒を避けながらも、便利さは手に入れるという理想的な立地です。周辺の歴史や文化を背負った街並みを散策すれば、アートギャラリーやオシャレなカフェが次々と現れ、あなたの感性を磨く絶好のチャンスがあります。
また、24時間管理の快適さ、オートロックの安全性、宅配ボックスの利便性など、現代的なライフスタイルをサポートする充実した設備も充実しています。それらはまるで、あなたの生活をより豊かに彩る優雅な楽団のように、静かに調和しているのです。
ブレシア日本橋蛎殻町 902での暮らしは、単に物理的な空間を超え、心の豊かさをもたらします。あなたの毎日が特別な瞬間で満たされ、幸福を感じることができるこの場所は、まさに新たな人生の舞台なのです。さあ、あなたもこの素晴らしい物件で、心躍る物語を紡いでいきませんか。
902号室は、まるで優雅に微笑む貴婦人のように、穏やかな北東と北西の光が心地よく差し込みます。日々の生活は、まるで映画のワ…ブレシア日本橋蛎殻町 902。この詩的な名前を耳にした瞬間、あなたの心は静かに高鳴り、目の前に広がる新たな生活の舞台を想像することでしょう。43.97㎡の専有面積に、あなたの物語が息づくこの素晴らしい空間は、まるで生活のアートを創造するために設計されたキャンバスのようです。
902号室は、まるで優雅に微笑む貴婦人のように、穏やかな北東と北西の光が心地よく差し込みます。日々の生活は、まるで映画のワンシーンのように美しく展開されることでしょう。リビングダイニングキッチン(LDK)の広さ11.95帖は、洗練された日々を過ごすための贅沢な空間を提供し、あなたのクリエイティブな活動を全力で支えます。窓から差し込む光が、温かみのある木材の床を照らし、柔らかな影を作り出します。その瞬間、まるで陽だまりの中にいるような感覚が広がります。
そして、6.1帖の洋室は、あなたのプライベート空間として、心と体をリフレッシュさせるオアシスとなることでしょう。やわらかなカーテン越しに、外の風景を楽しむことができ、朝の光を浴びながらベッドから起き上がる喜びは、まさにこの物件でしか味わえない特権です。コーヒーの香りが漂うキッチンで、あなたの手から生まれる料理は、五感を刺激し、食卓を囲む人々との絆を深めていきます。食材の色とりどりの美しさ、香ばしい焼き上がるパンの匂い、そしてその味わいが、幸せな瞬間を織り成します。
ブレシア日本橋蛎殻町 902は、単なる住まいではなく、日本橋という文化と歴史の深いエリアに位置することで、地元の魅力を存分に楽しむことができます。徒歩3分のところには水天宮前駅があり、東京の喧騒を避けながらも、便利さは手に入れるという理想的な立地です。周辺の歴史や文化を背負った街並みを散策すれば、アートギャラリーやオシャレなカフェが次々と現れ、あなたの感性を磨く絶好のチャンスがあります。
また、24時間管理の快適さ、オートロックの安全性、宅配ボックスの利便性など、現代的なライフスタイルをサポートする充実した設備も充実しています。それらはまるで、あなたの生活をより豊かに彩る優雅な楽団のように、静かに調和しているのです。
ブレシア日本橋蛎殻町 902での暮らしは、単に物理的な空間を超え、心の豊かさをもたらします。あなたの毎日が特別な瞬間で満たされ、幸福を感じることができるこの場所は、まさに新たな人生の舞台なのです。さあ、あなたもこの素晴らしい物件で、心躍る物語を紡いでいきませんか。
バイブルスコア
バイブルスコア: 48
条件のいい物件です、引っ越しが2か月以内の場合は仮申し込みを検討すべき物件です。
※バイブルスコア詳細はこちら
バイブルスコアとは独自のAI機械学習技術を利用した物件評価システムで、物件のおすすめ度を示します。最高得点は100点で、スコアが高いほど、よりおすすめの物件と評価されています。
写真
契約条件
| 賃料 | 予想金額:146,000〜166,000円程度 | 管理費 | 予想金額:14,000〜18,000円程度 |
| 礼金 | 非公開(アーカイブ) | 敷金 | 非公開(アーカイブ) |
| フリーレント | なし | 平米数 | 43.97㎡ |
| 間取り | 1LDK | 大型収納 | |
| 契約期間 |
| 方角 | 北東 / 北西 |
| 更新料 | 契約形態 | 普通賃貸借契約 | |
| 取引態様 | 媒介 | 内見状況 | 入居中 |
| 入居時期 | 入居中 | SOHO・事務所 | |
| ペット | ペット可 | 間取り内訳 | 洋:6.1 LDK:11.95 |
| キャンペーン情報・備考 | 本情報は賃料改定交渉の資料作成、収益物件の利回り試算、周辺エリアや最寄り駅の坪単価分析、次回募集開始時期の予測などにご活用いただけます。 | ||
※「どの不動産に頼めばいいのか分からない」「信頼できる営業マンの話を聞きたい」「一番親切な会社と契約したい」とお悩みの方におすすめなのが「高級賃貸バイブル」です。
高級賃貸バイブルは業界10年以上の熟練スタッフ群がお客様ファーストで対応します。
下記ボタンから、まずは無料でご相談下さい。
※内覧をご希望の際には、どうぞ物件のエントランス前にてお待ち合わせくださいませ。ご内覧後は、同じ場所でお別れとさせていただきます。お客様のご都合に合わせたスムーズなご案内を心がけておりますので、ご質問等がございましたら何なりとお申し付けください。 物件概要
| 物件名 |
| 築年月 |
|
|---|---|---|---|
| 所在地 | |||
| 交通 | |||
| 総戸数 |
| 総階数 |
|
| 構造 |
| ||
地図
物件までの道のりは、「拡大地図を表示」をクリックしてナビ機能をご利用ください。
部屋設備
















建物設備

24時間管理

TVモニターホン

エレベーター

オートロック

バイク置場

宅配ボックス

敷地内ゴミ置場

管理人

駐輪場
ブレシア日本橋蛎殻町の現在募集中のお部屋
- No rooms found for this property.









