
| 賃料 | 予想金額:230,000〜250,000円程度 | 管理費 | 予想金額:10,000〜14,000円程度 |
| 礼金/敷金 | 非公開(アーカイブ) | 平米数 | 57.96㎡ |
| 初期費用概算(参考) | 目安:782,800〜882,800 円 | みなし賃料(月額・参考) | 254,350〜274,350 円 |
| 備考 | 本ページは過去募集のアーカイブです。表示の金額は周辺相場・過去募集を踏まえた参考レンジであり、実際の契約金額・条件ではありません。 | ||
※上記みなし賃料(月額)は仲介手数料割引・無料&キャッシュバックを加味した高級賃貸バイブル限定の金額です。一般的なみなし賃料とは異なります。
【建物ページ】レジディア水道橋の詳細・最新空室はこちら▶▶選ばれる理由
仲介手数料無料・キャンペーン情報(毎月15名様限定)
〇仲介手数料無料キャンペーン
レジディア水道橋 1001の口コミ・レビュー
レジディア水道橋 1001。この魅惑の扉を開けると、まるで宝石箱の中に足を踏み入れるような感覚が広がります。東京都千代田区神田三崎町3-2-6に位置するこの高級賃貸物件は、まるであなたを甘やかすために生まれたかのような存在感を放っています。1001という番号は、ただの部屋番号ではありません。これは、あなたの新たな人生の幕開けを象徴する特別な数字です。
この物件は、広さ57.96㎡の空間に、12.…レジディア水道橋 1001。この魅惑の扉を開けると、まるで宝石箱の中に足を踏み入れるような感覚が広がります。東京都千代田区神田三崎町3-2-6に位置するこの高級賃貸物件は、まるであなたを甘やかすために生まれたかのような存在感を放っています。1001という番号は、ただの部屋番号ではありません。これは、あなたの新たな人生の幕開けを象徴する特別な数字です。
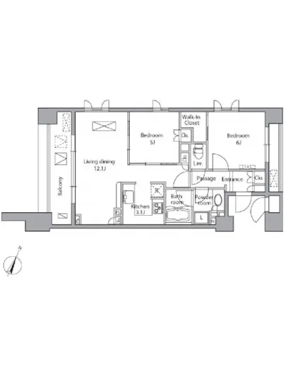
この物件は、広さ57.96㎡の空間に、12.1帖のLDK、3.1帖のキッチン、そしてそれぞれ6帖と5帖の洋室を持つ1LDKの設計になっています。ドアを開けた瞬間、ふわりと香る木の温もりと塗装された壁の清々しさが、まるで新しい生活のスタートを歓迎しているかのようです。光が溢れる西向きの窓から射し込む午後の陽射しは、空間を柔らかく包み込み、まるで昼下がりのティータイムを演出しています。
レジディア水道橋 1001の中に足を踏み入れたあなたは、毎日が映画のワンシーンであるかのような錯覚を覚えます。朝食はキッチンで手作りのオムレツを焼き、香ばしい匂いに誘われてふと目を覚ましたその瞬間、あなたの心は幸せで満たされていくでしょう。そして、LDの広々とした空間で、大切な人と共に過ごす時間は、まるで永遠に続くかのように感じられます。窓の外には、都会の喧騒を包み込む静寂が漂い、まるで街の中に浮かぶ小宇宙のようです。
夜になると、レジディア水道橋 1001はまるで星座のように、あなたを包み込みます。オートロックやTVモニターホンは、安心して生活するための頼もしいパートナーです。深い静けさの中で、宅配ボックスから届けられた美味しいワインを開けて、優雅なひとときを楽しむことができます。この空間は、あなたを特別な存在にしてくれる、まさに夢のような場所なのです。
周辺には、東京の歴史的な文化や芸術が息づいています。水道橋駅から徒歩4分という好立地は、文化の香りが漂う都会の中心地。近くの博物館や美術館では、様々な表現が交わる場を経験でき、生活する中で自然と感性が磨かれていくことでしょう。近隣の名店での食事や、隠れ家的なカフェでのひと休みは、日常の忙しさを忘れさせてくれる特別な時間となります。
レジディア水道橋 1001は、ただの住まいではなく、あなたの人生を彩る舞台装置です。この特別な空間で、心豊かな生活をシェアし、毎日を大切に紡いでいく。そう、あなたの新たな物語がここから始まるのです。どうぞその一歩を踏み出し、レジディア水道橋 1001で新しい生活のページを開いてください。あなたの、そしてあなたの愛する人々の人生が、まるで絵画のように美しく描かれていくことでしょう。
この物件は、広さ57.96㎡の空間に、12.…レジディア水道橋 1001。この魅惑の扉を開けると、まるで宝石箱の中に足を踏み入れるような感覚が広がります。東京都千代田区神田三崎町3-2-6に位置するこの高級賃貸物件は、まるであなたを甘やかすために生まれたかのような存在感を放っています。1001という番号は、ただの部屋番号ではありません。これは、あなたの新たな人生の幕開けを象徴する特別な数字です。
この物件は、広さ57.96㎡の空間に、12.1帖のLDK、3.1帖のキッチン、そしてそれぞれ6帖と5帖の洋室を持つ1LDKの設計になっています。ドアを開けた瞬間、ふわりと香る木の温もりと塗装された壁の清々しさが、まるで新しい生活のスタートを歓迎しているかのようです。光が溢れる西向きの窓から射し込む午後の陽射しは、空間を柔らかく包み込み、まるで昼下がりのティータイムを演出しています。
レジディア水道橋 1001の中に足を踏み入れたあなたは、毎日が映画のワンシーンであるかのような錯覚を覚えます。朝食はキッチンで手作りのオムレツを焼き、香ばしい匂いに誘われてふと目を覚ましたその瞬間、あなたの心は幸せで満たされていくでしょう。そして、LDの広々とした空間で、大切な人と共に過ごす時間は、まるで永遠に続くかのように感じられます。窓の外には、都会の喧騒を包み込む静寂が漂い、まるで街の中に浮かぶ小宇宙のようです。
夜になると、レジディア水道橋 1001はまるで星座のように、あなたを包み込みます。オートロックやTVモニターホンは、安心して生活するための頼もしいパートナーです。深い静けさの中で、宅配ボックスから届けられた美味しいワインを開けて、優雅なひとときを楽しむことができます。この空間は、あなたを特別な存在にしてくれる、まさに夢のような場所なのです。
周辺には、東京の歴史的な文化や芸術が息づいています。水道橋駅から徒歩4分という好立地は、文化の香りが漂う都会の中心地。近くの博物館や美術館では、様々な表現が交わる場を経験でき、生活する中で自然と感性が磨かれていくことでしょう。近隣の名店での食事や、隠れ家的なカフェでのひと休みは、日常の忙しさを忘れさせてくれる特別な時間となります。
レジディア水道橋 1001は、ただの住まいではなく、あなたの人生を彩る舞台装置です。この特別な空間で、心豊かな生活をシェアし、毎日を大切に紡いでいく。そう、あなたの新たな物語がここから始まるのです。どうぞその一歩を踏み出し、レジディア水道橋 1001で新しい生活のページを開いてください。あなたの、そしてあなたの愛する人々の人生が、まるで絵画のように美しく描かれていくことでしょう。
写真
契約条件
| 賃料 | 予想金額:230,000〜250,000円程度 | 管理費 | 予想金額:10,000〜14,000円程度 |
| 礼金 | 非公開(アーカイブ) | 敷金 | 非公開(アーカイブ) |
| フリーレント | なし | 平米数 | 57.96㎡ |
| 間取り | 1LDK | 大型収納 | WIC |
| 契約期間 |
| 方角 | 西 |
| 更新料 | 契約形態 | 普通賃貸借契約 | |
| 取引態様 | 媒介 | 内見状況 | 入居中 |
| 入居時期 | 入居中 | SOHO・事務所 | |
| ペット | ペット可 | 間取り内訳 | LD12.1J / K3.1J / 洋6J / 洋5J |
| キャンペーン情報・備考 | 本情報は賃料改定交渉の資料作成、収益物件の利回り試算、周辺エリアや最寄り駅の坪単価分析、次回募集開始時期の予測などにご活用いただけます。 | ||
※「どの不動産に頼めばいいのか分からない」「信頼できる営業マンの話を聞きたい」「一番親切な会社と契約したい」とお悩みの方におすすめなのが「高級賃貸バイブル」です。
高級賃貸バイブルは業界10年以上の熟練スタッフ群がお客様ファーストで対応します。
下記ボタンから、まずは無料でご相談下さい。
※内覧をご希望の際には、どうぞ物件のエントランス前にてお待ち合わせくださいませ。ご内覧後は、同じ場所でお別れとさせていただきます。お客様のご都合に合わせたスムーズなご案内を心がけておりますので、ご質問等がございましたら何なりとお申し付けください。 物件概要
| 物件名 |
| 築年月 |
|
|---|---|---|---|
| 所在地 | |||
| 交通 | |||
| 総戸数 |
| 総階数 |
|
| 構造 |
| ||
地図
物件までの道のりは、「拡大地図を表示」をクリックしてナビ機能をご利用ください。
部屋設備

















建物設備

24時間管理

TVモニターホン

エレベーター

オートロック

宅配ボックス

敷地内ゴミ置場

駐車場機械式

駐輪場
レジディア水道橋の現在募集中のお部屋
- レジディア水道橋 1205 - 間取り: 2LDK+WIC - 賃料: 31.7万円
- レジディア水道橋 1303 - 間取り: 1K - 賃料: 17.5万円
- レジディア水道橋 504 - 間取り: 1LDK+WIC - 賃料: 19.7万円






























