
| 賃料 | 予想金額:290,000〜310,000円程度 | 管理費 | 予想金額:13,000〜17,000円程度 |
| 礼金/敷金 | 非公開(アーカイブ) | 平米数 | 57.96㎡ |
| 初期費用概算(参考) | 目安:1,312,500〜1,412,500 円 | みなし賃料(月額・参考) | 327,135〜347,135 円 |
| 備考 | 本ページは過去募集のアーカイブです。表示の金額は周辺相場・過去募集を踏まえた参考レンジであり、実際の契約金額・条件ではありません。 | ||
※上記みなし賃料(月額)は仲介手数料割引・無料&キャッシュバックを加味した高級賃貸バイブル限定の金額です。一般的なみなし賃料とは異なります。
【建物ページ】レジディア水道橋の詳細・最新空室はこちら▶▶選ばれる理由
仲介手数料無料・キャンペーン情報(毎月15名様限定)
〇引っ越しお祝い金30000円プレゼント(キャッシュバック)
〇仲介手数料無料キャンペーン
レジディア水道橋 401の口コミ・レビュー
レジディア水道橋 401。この名は、ただの住所ではありません。ここは、あなたが日常から解放され、心の奥底にある夢を叶えるための特別な舞台です。東京都千代田区神田三崎町3-2-6に位置するこの物件は、まるで現代のアートが息づくギャラリーのよう。お部屋に一歩足を踏み入れれば、その空間はまさにあなたのためだけにデザインされた、独自の物語を紡ぎます。
このレジディア水道橋 401の広さ、57.96㎡は、…レジディア水道橋 401。この名は、ただの住所ではありません。ここは、あなたが日常から解放され、心の奥底にある夢を叶えるための特別な舞台です。東京都千代田区神田三崎町3-2-6に位置するこの物件は、まるで現代のアートが息づくギャラリーのよう。お部屋に一歩足を踏み入れれば、その空間はまさにあなたのためだけにデザインされた、独自の物語を紡ぎます。
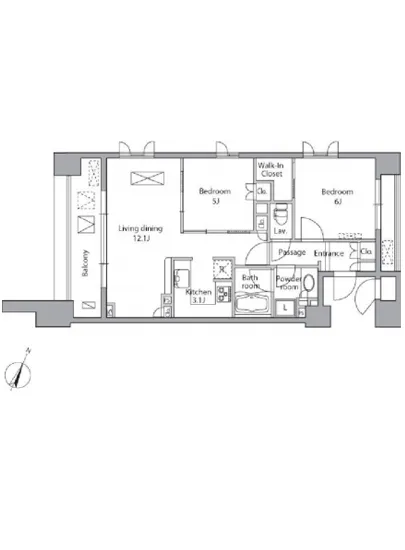
このレジディア水道橋 401の広さ、57.96㎡は、まるで柔らかな布が広がるように、あなたに解放感と安らぎをもたらします。12.1帖のリビングダイニングは、穏やかな西日が優しく射し込み、夕暮れ時にはその光がまるで絵画のようにお部屋を彩ります。心地よい風がカーテンをそっと揺らし、ふんわりとした香りが漂う。その瞬間、あなたはこの空間が持つ魔法に包まれるのです。
台所の3.1帖は、料理が娯楽に変わる場所。新鮮な食材の香りを感じながら、あなたのオリジナルレシピを実現することができるのです。そして、洋室6帖、洋室5帖は、あなたの心の拠り所。そこはただ寝るためだけの部屋ではなく、心を休め、夢を育む特別な空間。窓の外から聞こえる街のざわめきや、夜空に広がる星々の輝きに心を奪われることでしょう。
レジディア水道橋 401は、ただの住まいではなく、あなたと共に生きる存在です。エレベーターの音が静かに響き、オートロックの施錠音が安全を約束します。24時間管理の安心感が、あなたの日常に寄り添い、宅配ボックスが便利さを提供することで、まるで親しい友人のようにその存在を感じます。
この地、千代田区は、歴史と文化が息づく場所。周囲には古き良き日本の面影が残りながらも、現代の洗練された文化が共存しています。それはまるで、時代を超えたコラージュのように、あなたの生活に色とりどりのストーリーをもたらすでしょう。水道橋駅から徒歩4分という立地は、都市の中心にいながら、静寂と調和の中で生活を享受できる特権を与えてくれます。
レジディア水道橋 401での生活は、まるで映画のワンシーンのような美しい瞬間の連続です。お気に入りの本を手に取り、ふんわりとしたソファに身を委ねる。窓際に座り、穏やかな風を感じながら、心の旅に出かける。友人を招いて、笑い声が絶えず溢れる食卓を囲む。感情が交錯するこの空間は、あなたの人生の舞台です。
レジディア水道橋 401で新たな物語を紡ぎませんか。その扉を開けることで、あなたの想像を超えた日常が待っていることでしょう。
このレジディア水道橋 401の広さ、57.96㎡は、…レジディア水道橋 401。この名は、ただの住所ではありません。ここは、あなたが日常から解放され、心の奥底にある夢を叶えるための特別な舞台です。東京都千代田区神田三崎町3-2-6に位置するこの物件は、まるで現代のアートが息づくギャラリーのよう。お部屋に一歩足を踏み入れれば、その空間はまさにあなたのためだけにデザインされた、独自の物語を紡ぎます。
このレジディア水道橋 401の広さ、57.96㎡は、まるで柔らかな布が広がるように、あなたに解放感と安らぎをもたらします。12.1帖のリビングダイニングは、穏やかな西日が優しく射し込み、夕暮れ時にはその光がまるで絵画のようにお部屋を彩ります。心地よい風がカーテンをそっと揺らし、ふんわりとした香りが漂う。その瞬間、あなたはこの空間が持つ魔法に包まれるのです。
台所の3.1帖は、料理が娯楽に変わる場所。新鮮な食材の香りを感じながら、あなたのオリジナルレシピを実現することができるのです。そして、洋室6帖、洋室5帖は、あなたの心の拠り所。そこはただ寝るためだけの部屋ではなく、心を休め、夢を育む特別な空間。窓の外から聞こえる街のざわめきや、夜空に広がる星々の輝きに心を奪われることでしょう。
レジディア水道橋 401は、ただの住まいではなく、あなたと共に生きる存在です。エレベーターの音が静かに響き、オートロックの施錠音が安全を約束します。24時間管理の安心感が、あなたの日常に寄り添い、宅配ボックスが便利さを提供することで、まるで親しい友人のようにその存在を感じます。
この地、千代田区は、歴史と文化が息づく場所。周囲には古き良き日本の面影が残りながらも、現代の洗練された文化が共存しています。それはまるで、時代を超えたコラージュのように、あなたの生活に色とりどりのストーリーをもたらすでしょう。水道橋駅から徒歩4分という立地は、都市の中心にいながら、静寂と調和の中で生活を享受できる特権を与えてくれます。
レジディア水道橋 401での生活は、まるで映画のワンシーンのような美しい瞬間の連続です。お気に入りの本を手に取り、ふんわりとしたソファに身を委ねる。窓際に座り、穏やかな風を感じながら、心の旅に出かける。友人を招いて、笑い声が絶えず溢れる食卓を囲む。感情が交錯するこの空間は、あなたの人生の舞台です。
レジディア水道橋 401で新たな物語を紡ぎませんか。その扉を開けることで、あなたの想像を超えた日常が待っていることでしょう。
バイブルスコア
バイブルスコア: 23.5
平均的なスコアです。
※バイブルスコア詳細はこちら
バイブルスコアとは独自のAI機械学習技術を利用した物件評価システムで、物件のおすすめ度を示します。最高得点は100点で、スコアが高いほど、よりおすすめの物件と評価されています。
写真
契約条件
| 賃料 | 予想金額:290,000〜310,000円程度 | 管理費 | 予想金額:13,000〜17,000円程度 |
| 礼金 | 非公開(アーカイブ) | 敷金 | 非公開(アーカイブ) |
| フリーレント | なし | 平米数 | 57.96㎡ |
| 間取り | 1LDK | 大型収納 | WIC |
| 契約期間 |
| 方角 | 西 |
| 更新料 | 契約形態 | 普通賃貸借契約 | |
| 取引態様 | 媒介 | 内見状況 | 入居中 |
| 入居時期 | 入居中 | SOHO・事務所 | |
| ペット | ペット可 | 間取り内訳 | LD12.1J / K3.1J / 洋6J / 洋5J |
| キャンペーン情報・備考 | 本情報は賃料改定交渉の資料作成、収益物件の利回り試算、周辺エリアや最寄り駅の坪単価分析、次回募集開始時期の予測などにご活用いただけます。 | ||
※「どの不動産に頼めばいいのか分からない」「信頼できる営業マンの話を聞きたい」「一番親切な会社と契約したい」とお悩みの方におすすめなのが「高級賃貸バイブル」です。
高級賃貸バイブルは業界10年以上の熟練スタッフ群がお客様ファーストで対応します。
下記ボタンから、まずは無料でご相談下さい。
※内覧をご希望の際には、どうぞ物件のエントランス前にてお待ち合わせくださいませ。ご内覧後は、同じ場所でお別れとさせていただきます。お客様のご都合に合わせたスムーズなご案内を心がけておりますので、ご質問等がございましたら何なりとお申し付けください。 物件概要
| 物件名 |
| 築年月 |
|
|---|---|---|---|
| 所在地 | |||
| 交通 | |||
| 総戸数 |
| 総階数 |
|
| 構造 |
| ||
地図
物件までの道のりは、「拡大地図を表示」をクリックしてナビ機能をご利用ください。
部屋設備

















建物設備

24時間管理

TVモニターホン

エレベーター

オートロック

宅配ボックス

敷地内ゴミ置場

駐車場機械式

駐輪場
レジディア水道橋の現在募集中のお部屋
- レジディア水道橋 1205 - 間取り: 2LDK+WIC - 賃料: 31.7万円
- レジディア水道橋 1303 - 間取り: 1K - 賃料: 17.5万円
- レジディア水道橋 504 - 間取り: 1LDK+WIC - 賃料: 19.7万円






























