
| 賃料 | 予想金額:89,000〜109,000円程度 | 管理費 | 予想金額:8,000〜12,000円程度 |
| 礼金/敷金 | 非公開(アーカイブ) | 平米数 | 27.04㎡ |
| 初期費用概算(参考) | 目安:326,220〜426,220 円 | みなし賃料(月額・参考) | 104,775〜124,775 円 |
| 備考 | 本ページは過去募集のアーカイブです。表示の金額は周辺相場・過去募集を踏まえた参考レンジであり、実際の契約金額・条件ではありません。 | ||
※上記みなし賃料(月額)は仲介手数料割引・無料&キャッシュバックを加味した高級賃貸バイブル限定の金額です。一般的なみなし賃料とは異なります。
【建物ページ】パークアクシス東蒲田の詳細・最新空室はこちら▶▶選ばれる理由
仲介手数料無料・キャンペーン情報(毎月15名様限定)
〇引っ越しお祝い金21780円プレゼント(キャッシュバック)
〇仲介手数料無料キャンペーン
パークアクシス東蒲田 521の口コミ・レビュー
パークアクシス東蒲田 521。都会の喧騒の中に佇むこの物件は、まるで洗練されたアートのように存在感を放っています。ここに足を踏み入れると、あなたを深い安らぎの世界へと誘うような独特の雰囲気が広がります。521号室は5階に位置し、専有面積は27.04㎡。窓から入る光は、朝の黄金色に輝き、日々の生活に柔らかな温もりを与えます。
このお部屋は、洋室3.8帖とキッチンを兼ね備えたダイニングキッチン6.5…パークアクシス東蒲田 521。都会の喧騒の中に佇むこの物件は、まるで洗練されたアートのように存在感を放っています。ここに足を踏み入れると、あなたを深い安らぎの世界へと誘うような独特の雰囲気が広がります。521号室は5階に位置し、専有面積は27.04㎡。窓から入る光は、朝の黄金色に輝き、日々の生活に柔らかな温もりを与えます。
このお部屋は、洋室3.8帖とキッチンを兼ね備えたダイニングキッチン6.5帖から成り、まさに心弾む生活が広がる舞台です。想像してみてください。日差しが差し込む洋室で、あなたは心地よい大きなソファに体を沈め、静かな午後のひとときを楽しんでいます。カフェの香り漂うコーヒーを手に、窓から見える街の風景に目を奪われる。すると、外から軽やかな風が吹き込み、時折聞こえる子供たちの笑い声が、日常の温かさを感じさせます。
キッチンでは、愛情を込めて料理をしている自分の姿が目に浮かびます。ここで、旬の野菜や新鮮な魚を使った料理を作ることが、全ての感覚を刺激します。香ばしい匂いが立ち込め、ナイフが食材を切る音がキッチンに響き渡ります。その瞬間、あなたはまるでシェフになったかのように感じることでしょう。
パークアクシス東蒲田 521は、ただの住まいではありません。それは、日々の生活を彩る舞台であり、あなた自身のストーリーを描くためのキャンバスなのです。エレベーターでの上昇はまるで人生の高みを目指しているかのように感じさせ、オートロックで安心を得ることで、心に安らぎをもたらします。管理人が常駐し、バイク置場や駐輪場も完備されており、あなたのライフスタイルをしっかりとサポートしてくれる存在です。
周辺の蒲田地区は、歴史と文化が息づく場所です。江戸時代から続く飲食店やアートギャラリーが点在し、散歩するだけでも心が躍ります。京急本線梅屋敷駅まで徒歩5分という便利な立地にありながら、静けさに包まれたこのエリアは、まさに都会のオアシスです。歴史的な風情漂う街並みを背景に、あなたの新しい生活が始まることを考えると、期待に胸が高まります。
パークアクシス東蒲田 521での生活は、あなたに贅沢で豊かな時間を提供します。ここに住むことで、毎日が映画のワンシーンのようにドラマチックで、毎瞬が心に響く大切な体験になることでしょう。この物件が、あなたの人生に新たな色を添え、あなた自身の物語を紡いでいく手助けをすることを心より願っています。あなたの訪れを、心からお待ち申し上げております。
このお部屋は、洋室3.8帖とキッチンを兼ね備えたダイニングキッチン6.5…パークアクシス東蒲田 521。都会の喧騒の中に佇むこの物件は、まるで洗練されたアートのように存在感を放っています。ここに足を踏み入れると、あなたを深い安らぎの世界へと誘うような独特の雰囲気が広がります。521号室は5階に位置し、専有面積は27.04㎡。窓から入る光は、朝の黄金色に輝き、日々の生活に柔らかな温もりを与えます。
このお部屋は、洋室3.8帖とキッチンを兼ね備えたダイニングキッチン6.5帖から成り、まさに心弾む生活が広がる舞台です。想像してみてください。日差しが差し込む洋室で、あなたは心地よい大きなソファに体を沈め、静かな午後のひとときを楽しんでいます。カフェの香り漂うコーヒーを手に、窓から見える街の風景に目を奪われる。すると、外から軽やかな風が吹き込み、時折聞こえる子供たちの笑い声が、日常の温かさを感じさせます。
キッチンでは、愛情を込めて料理をしている自分の姿が目に浮かびます。ここで、旬の野菜や新鮮な魚を使った料理を作ることが、全ての感覚を刺激します。香ばしい匂いが立ち込め、ナイフが食材を切る音がキッチンに響き渡ります。その瞬間、あなたはまるでシェフになったかのように感じることでしょう。
パークアクシス東蒲田 521は、ただの住まいではありません。それは、日々の生活を彩る舞台であり、あなた自身のストーリーを描くためのキャンバスなのです。エレベーターでの上昇はまるで人生の高みを目指しているかのように感じさせ、オートロックで安心を得ることで、心に安らぎをもたらします。管理人が常駐し、バイク置場や駐輪場も完備されており、あなたのライフスタイルをしっかりとサポートしてくれる存在です。
周辺の蒲田地区は、歴史と文化が息づく場所です。江戸時代から続く飲食店やアートギャラリーが点在し、散歩するだけでも心が躍ります。京急本線梅屋敷駅まで徒歩5分という便利な立地にありながら、静けさに包まれたこのエリアは、まさに都会のオアシスです。歴史的な風情漂う街並みを背景に、あなたの新しい生活が始まることを考えると、期待に胸が高まります。
パークアクシス東蒲田 521での生活は、あなたに贅沢で豊かな時間を提供します。ここに住むことで、毎日が映画のワンシーンのようにドラマチックで、毎瞬が心に響く大切な体験になることでしょう。この物件が、あなたの人生に新たな色を添え、あなた自身の物語を紡いでいく手助けをすることを心より願っています。あなたの訪れを、心からお待ち申し上げております。
バイブルスコア
バイブルスコア: 35.4
平均的なスコアです。
※バイブルスコア詳細はこちら
バイブルスコアとは独自のAI機械学習技術を利用した物件評価システムで、物件のおすすめ度を示します。最高得点は100点で、スコアが高いほど、よりおすすめの物件と評価されています。
写真
現在写真が登録されていません契約条件
| 賃料 | 予想金額:89,000〜109,000円程度 | 管理費 | 予想金額:8,000〜12,000円程度 |
| 礼金 | 非公開(アーカイブ) | 敷金 | 非公開(アーカイブ) |
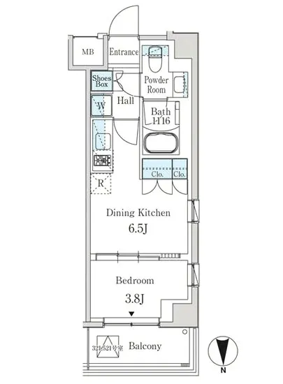
| フリーレント | なし | 平米数 | 27.04㎡ |
| 間取り | 1DK | 大型収納 | |
| 契約期間 |
| 方角 | 北 |
| 更新料 | 契約形態 | 普通賃貸借契約 | |
| 取引態様 | 媒介 | 内見状況 | 入居中 |
| 入居時期 | 入居中 | SOHO・事務所 | |
| ペット | 間取り内訳 | 洋:3.8 DK:6.5 | |
| キャンペーン情報・備考 | 本情報は賃料改定交渉の資料作成、収益物件の利回り試算、周辺エリアや最寄り駅の坪単価分析、次回募集開始時期の予測などにご活用いただけます。 | ||
※「どの不動産に頼めばいいのか分からない」「信頼できる営業マンの話を聞きたい」「一番親切な会社と契約したい」とお悩みの方におすすめなのが「高級賃貸バイブル」です。
高級賃貸バイブルは業界10年以上の熟練スタッフ群がお客様ファーストで対応します。
下記ボタンから、まずは無料でご相談下さい。
※内覧をご希望の際には、どうぞ物件のエントランス前にてお待ち合わせくださいませ。ご内覧後は、同じ場所でお別れとさせていただきます。お客様のご都合に合わせたスムーズなご案内を心がけておりますので、ご質問等がございましたら何なりとお申し付けください。 物件概要
| 物件名 |
| 築年月 |
|
|---|---|---|---|
| 所在地 | |||
| 交通 | |||
| 総戸数 |
| 総階数 |
|
| 構造 |
| ||
地図
物件までの道のりは、「拡大地図を表示」をクリックしてナビ機能をご利用ください。
部屋設備














建物設備

TVモニターホン

エレベーター

オートロック

バイク置場

宅配ボックス

敷地内ゴミ置場

管理人

駐輪場
パークアクシス東蒲田の現在募集中のお部屋
- No rooms found for this property.
