
| 賃料 | 予想金額:115,000〜135,000円程度 | 管理費 | 予想金額:13,000〜17,000円程度 |
| 礼金/敷金 | 非公開(アーカイブ) | 平米数 | 25.38㎡ |
| 初期費用概算(参考) | 目安:355,000〜455,000 円 | みなし賃料(月額・参考) | 135,833〜155,833 円 |
| 備考 | 本ページは過去募集のアーカイブです。表示の金額は周辺相場・過去募集を踏まえた参考レンジであり、実際の契約金額・条件ではありません。 | ||
※上記みなし賃料(月額)は仲介手数料割引・無料&キャッシュバックを加味した高級賃貸バイブル限定の金額です。一般的なみなし賃料とは異なります。
【建物ページ】ルフォンプログレ蔵前プレミアの詳細・最新空室はこちら▶▶選ばれる理由
仲介手数料無料・キャンペーン情報(毎月15名様限定)
〇引っ越しお祝い金75000円プレゼント(キャッシュバック)
〇仲介手数料無料キャンペーン
ルフォンプログレ蔵前プレミア 1008の口コミ・レビュー
ルフォンプログレ蔵前プレミア 1008。あなたの新しい物語がここから始まります。この特別な空間は、東京の活気に包まれた台東区で静かに佇み、北西を向いて心地よい風を感じる場所です。新しい家が、まるで古代の詩の一節のように、あなたに語りかけてくるのです。
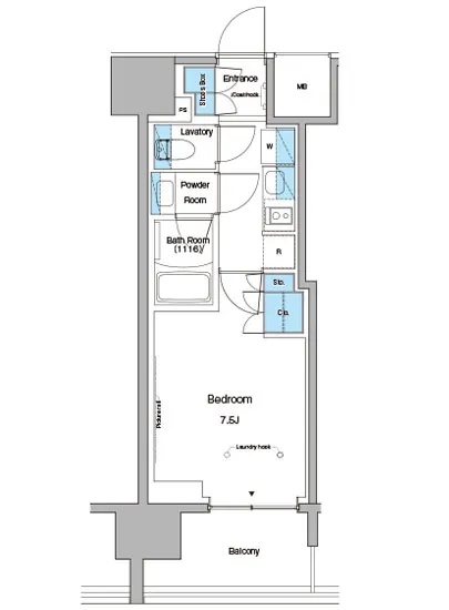
この物件は、まさに贅沢の象徴ともいえる一室、1Kの間取りを持ち、洋室は7.5帖の広さです。入った瞬間に感じる、空気の優雅さと解放感が心を打ちます。…ルフォンプログレ蔵前プレミア 1008。あなたの新しい物語がここから始まります。この特別な空間は、東京の活気に包まれた台東区で静かに佇み、北西を向いて心地よい風を感じる場所です。新しい家が、まるで古代の詩の一節のように、あなたに語りかけてくるのです。
この物件は、まさに贅沢の象徴ともいえる一室、1Kの間取りを持ち、洋室は7.5帖の広さです。入った瞬間に感じる、空気の優雅さと解放感が心を打ちます。25.38㎡の広大な空間には、まるでひと時のアートギャラリーが広がっているかのよう。明るい日差しが窓から差し込み、室内を温かく包み込む様子は、まさに生活の舞台設定そのものです。
ルフォンプログレ蔵前プレミア 1008では、シンプルでありながらも洗練されたデザインの中に、生活の豊かさを見い出すことができます。エレベーターで優雅に上がり、オートロックの安心感があなたを迎え入れます。ラウンジでは、静寂なひとときを楽しむことができ、宅配ボックスの便利さが、忙しい日常を支えてくれます。さらに、駐車場や駐輪場、バイク置き場も完備され、出かける際のストレスが軽減されるのです。
周辺には、歴史の香りが漂う浅草橋や、近くには文化的なスポットが点在しており、その全てがあなたの生活を豊かに彩ります。蔵前駅まで徒歩3分というアクセスの良さも、あなたの生活にさらなる利便性をもたらします。まるで映画の中の主人公のように、日々の生活を送るあなたの姿が目に浮かぶようです。
さあ、ルフォンプログレ蔵前プレミア 1008での新たな生活が待っています。五感を刺激する日常が、目の前に広がっているのです。朝の光が差し込むキッチンで、香ばしいコーヒーの香りに包まれながら、心地よい音楽を流し、ゆったりとした時間を過ごす。そんなシーンが、あなたを待っています。
この物件は、単なる住まいではなく、あなた自身を映し出すキャンバスです。ルフォンプログレ蔵前プレミア 1008での生活が、心満たされる特別な瞬間の連続となることを、私たちは心より願っています。あなたの人生を一緒に彩る、この特別な空間に、ぜひ足を踏み入れてみてください。
この物件は、まさに贅沢の象徴ともいえる一室、1Kの間取りを持ち、洋室は7.5帖の広さです。入った瞬間に感じる、空気の優雅さと解放感が心を打ちます。…ルフォンプログレ蔵前プレミア 1008。あなたの新しい物語がここから始まります。この特別な空間は、東京の活気に包まれた台東区で静かに佇み、北西を向いて心地よい風を感じる場所です。新しい家が、まるで古代の詩の一節のように、あなたに語りかけてくるのです。
この物件は、まさに贅沢の象徴ともいえる一室、1Kの間取りを持ち、洋室は7.5帖の広さです。入った瞬間に感じる、空気の優雅さと解放感が心を打ちます。25.38㎡の広大な空間には、まるでひと時のアートギャラリーが広がっているかのよう。明るい日差しが窓から差し込み、室内を温かく包み込む様子は、まさに生活の舞台設定そのものです。
ルフォンプログレ蔵前プレミア 1008では、シンプルでありながらも洗練されたデザインの中に、生活の豊かさを見い出すことができます。エレベーターで優雅に上がり、オートロックの安心感があなたを迎え入れます。ラウンジでは、静寂なひとときを楽しむことができ、宅配ボックスの便利さが、忙しい日常を支えてくれます。さらに、駐車場や駐輪場、バイク置き場も完備され、出かける際のストレスが軽減されるのです。
周辺には、歴史の香りが漂う浅草橋や、近くには文化的なスポットが点在しており、その全てがあなたの生活を豊かに彩ります。蔵前駅まで徒歩3分というアクセスの良さも、あなたの生活にさらなる利便性をもたらします。まるで映画の中の主人公のように、日々の生活を送るあなたの姿が目に浮かぶようです。
さあ、ルフォンプログレ蔵前プレミア 1008での新たな生活が待っています。五感を刺激する日常が、目の前に広がっているのです。朝の光が差し込むキッチンで、香ばしいコーヒーの香りに包まれながら、心地よい音楽を流し、ゆったりとした時間を過ごす。そんなシーンが、あなたを待っています。
この物件は、単なる住まいではなく、あなた自身を映し出すキャンバスです。ルフォンプログレ蔵前プレミア 1008での生活が、心満たされる特別な瞬間の連続となることを、私たちは心より願っています。あなたの人生を一緒に彩る、この特別な空間に、ぜひ足を踏み入れてみてください。
写真
現在写真が登録されていません契約条件
| 賃料 | 予想金額:115,000〜135,000円程度 | 管理費 | 予想金額:13,000〜17,000円程度 |
| 礼金 | 非公開(アーカイブ) | 敷金 | 非公開(アーカイブ) |
| フリーレント | なし | 平米数 | 25.38㎡ |
| 間取り | 1K | 大型収納 | なし |
| 契約期間 | 2年 | 方角 | 北西 |
| 更新料 | 1ヶ月 | 契約形態 | 普通賃貸借契約 |
| 取引態様 | 媒介 | 内見状況 | 入居中 |
| 入居時期 | 入居中 | SOHO・事務所 | 不可 |
| ペット | ペット可 | 間取り内訳 | 洋:7.5 |
| キャンペーン情報・備考 | 本情報は賃料改定交渉の資料作成、収益物件の利回り試算、周辺エリアや最寄り駅の坪単価分析、次回募集開始時期の予測などにご活用いただけます。 | ||
※「どの不動産に頼めばいいのか分からない」「信頼できる営業マンの話を聞きたい」「一番親切な会社と契約したい」とお悩みの方におすすめなのが「高級賃貸バイブル」です。
高級賃貸バイブルは業界10年以上の熟練スタッフ群がお客様ファーストで対応します。
下記ボタンから、まずは無料でご相談下さい。
※内覧をご希望の際には、どうぞ物件のエントランス前にてお待ち合わせくださいませ。ご内覧後は、同じ場所でお別れとさせていただきます。お客様のご都合に合わせたスムーズなご案内を心がけておりますので、ご質問等がございましたら何なりとお申し付けください。 物件概要
| 物件名 |
| 築年月 |
|
|---|---|---|---|
| 所在地 | |||
| 交通 | |||
| 総戸数 |
| 総階数 |
|
| 構造 |
| ||
地図
物件までの道のりは、「拡大地図を表示」をクリックしてナビ機能をご利用ください。
部屋設備













建物設備

TVモニターホン

エレベーター

オートロック

バイク置場

ラウンジ

宅配ボックス

敷地内ゴミ置場

管理人

駐車場平置き

駐車場機械式

駐輪場
ルフォンプログレ蔵前プレミアの現在募集中のお部屋
- ルフォンプログレ蔵前プレミア 1005 - 間取り: 1LDK+WIC+SIC - 賃料: 21.3万円
