
| 賃料 | 予想金額:170,000〜190,000円程度 | 管理費 | 予想金額:10,000〜14,000円程度 |
| 礼金/敷金 | 非公開(アーカイブ) | 平米数 | 42.14㎡ |
| 初期費用概算(参考) | 目安:869,500〜969,500 円 | みなし賃料(月額・参考) | 197,406〜217,406 円 |
| 備考 | 本ページは過去募集のアーカイブです。表示の金額は周辺相場・過去募集を踏まえた参考レンジであり、実際の契約金額・条件ではありません。 | ||
※上記みなし賃料(月額)は仲介手数料割引・無料&キャッシュバックを加味した高級賃貸バイブル限定の金額です。一般的なみなし賃料とは異なります。
【建物ページ】パークアクシス上野・稲荷町の詳細・最新空室はこちら▶▶選ばれる理由
仲介手数料無料・キャンペーン情報(毎月15名様限定)
〇仲介手数料割引キャンペーン
パークアクシス上野・稲荷町 1205の口コミ・レビュー
「パークアクシス上野・稲荷町 1205」という名のこの洗練された空間は、都心の喧騒からほんの少し離れた場所に、静かに佇んでいます。まるで一つの小宇宙のように、日常から別の次元へあなたを誘うこの物件は、42.14㎡の広さの中に、心の豊かさをもたらすストーリーが秘められています。1205号室のドアを開けた瞬間、あなたはまるで新しい物語の主人公になったかのような感覚に包まれることでしょう。
南と東の光…「パークアクシス上野・稲荷町 1205」という名のこの洗練された空間は、都心の喧騒からほんの少し離れた場所に、静かに佇んでいます。まるで一つの小宇宙のように、日常から別の次元へあなたを誘うこの物件は、42.14㎡の広さの中に、心の豊かさをもたらすストーリーが秘められています。1205号室のドアを開けた瞬間、あなたはまるで新しい物語の主人公になったかのような感覚に包まれることでしょう。
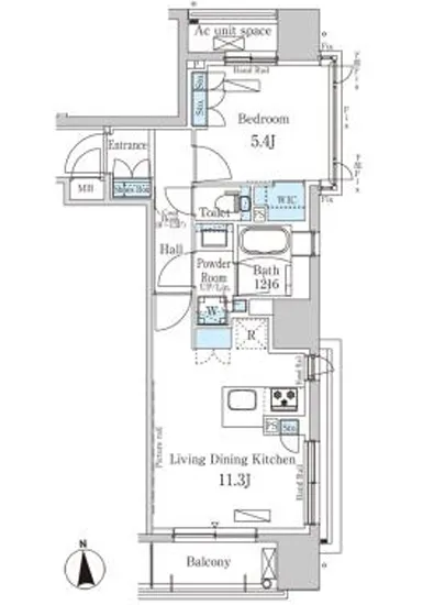
南と東の光が優しく降り注ぐリビングダイニングは、11.3帖の広さを誇り、あたたかい日差しがあなたの心を穏やかにし、窓の外からは四季折々の景色が目に飛び込んできます。風が通り抜けるたびに、季節ごとの香りが漂い、あなたの感覚を刺激します。秋の夜には、ほのかに漂う金木犀の香りが、まるで貴族の庭園に迷い込んだような錯覚を与えてくれるでしょう。
洋室5.4帖は、まるで個室の小さな図書館のように、多くの物語を育んできた静謐な空間です。読書に耽りながら、大切な瞬間を過ごすことができるこの室は、リラックスしたいときにぴったりの隠れ家となります。触れたときに滑らかさを感じる壁面は、あなたの心に安らぎをもたらし、その心の内にある感情を解放させてくれるでしょう。
「パークアクシス上野・稲荷町 1205」には、利便性も兼ね備えた多彩な設備が整っています。オートロックや宅配ボックスは、現代の生活に欠かせない安心感を提供し、エレベーターから降りる時の期待感は、まるで映画のワンシーンのようです。自宅の一部に感じるデザイナーズ仕様は、まるで芸術作品の中にいるかのような喜びを与えてくれます。
周囲には、古き良き日本文化を感じることのできる街並みが広がり、特に稲荷町の静けさは、まるで時を超えて流れているかのようです。近くには、歴史的な寺社やアートギャラリーも点在し、心の豊かさを育む場が揃っております。週末には散策を楽しみながら、地元の人々と触れ合い、さまざまな体験を重ねることができるでしょう。
この「パークアクシス上野・稲荷町 1205」での生活は、ただの住まいではなく、日々を彩るためのキャンバスです。心豊かな時間を過ごし、毎日がまるで映画の一場面のように感じられる、そんな特別な場所をあなたにご提案いたします。心と身体を癒すための隠れ家として、ぜひ一度ご覧いただくことをお勧めいたします。ここには、ただの生活を超えた、あなたの新しい物語が待っているのです。
南と東の光…「パークアクシス上野・稲荷町 1205」という名のこの洗練された空間は、都心の喧騒からほんの少し離れた場所に、静かに佇んでいます。まるで一つの小宇宙のように、日常から別の次元へあなたを誘うこの物件は、42.14㎡の広さの中に、心の豊かさをもたらすストーリーが秘められています。1205号室のドアを開けた瞬間、あなたはまるで新しい物語の主人公になったかのような感覚に包まれることでしょう。
南と東の光が優しく降り注ぐリビングダイニングは、11.3帖の広さを誇り、あたたかい日差しがあなたの心を穏やかにし、窓の外からは四季折々の景色が目に飛び込んできます。風が通り抜けるたびに、季節ごとの香りが漂い、あなたの感覚を刺激します。秋の夜には、ほのかに漂う金木犀の香りが、まるで貴族の庭園に迷い込んだような錯覚を与えてくれるでしょう。
洋室5.4帖は、まるで個室の小さな図書館のように、多くの物語を育んできた静謐な空間です。読書に耽りながら、大切な瞬間を過ごすことができるこの室は、リラックスしたいときにぴったりの隠れ家となります。触れたときに滑らかさを感じる壁面は、あなたの心に安らぎをもたらし、その心の内にある感情を解放させてくれるでしょう。
「パークアクシス上野・稲荷町 1205」には、利便性も兼ね備えた多彩な設備が整っています。オートロックや宅配ボックスは、現代の生活に欠かせない安心感を提供し、エレベーターから降りる時の期待感は、まるで映画のワンシーンのようです。自宅の一部に感じるデザイナーズ仕様は、まるで芸術作品の中にいるかのような喜びを与えてくれます。
周囲には、古き良き日本文化を感じることのできる街並みが広がり、特に稲荷町の静けさは、まるで時を超えて流れているかのようです。近くには、歴史的な寺社やアートギャラリーも点在し、心の豊かさを育む場が揃っております。週末には散策を楽しみながら、地元の人々と触れ合い、さまざまな体験を重ねることができるでしょう。
この「パークアクシス上野・稲荷町 1205」での生活は、ただの住まいではなく、日々を彩るためのキャンバスです。心豊かな時間を過ごし、毎日がまるで映画の一場面のように感じられる、そんな特別な場所をあなたにご提案いたします。心と身体を癒すための隠れ家として、ぜひ一度ご覧いただくことをお勧めいたします。ここには、ただの生活を超えた、あなたの新しい物語が待っているのです。
バイブルスコア
バイブルスコア: 23.5
平均的なスコアです。
※バイブルスコア詳細はこちら
バイブルスコアとは独自のAI機械学習技術を利用した物件評価システムで、物件のおすすめ度を示します。最高得点は100点で、スコアが高いほど、よりおすすめの物件と評価されています。
写真
契約条件
| 賃料 | 予想金額:170,000〜190,000円程度 | 管理費 | 予想金額:10,000〜14,000円程度 |
| 礼金 | 非公開(アーカイブ) | 敷金 | 非公開(アーカイブ) |
| フリーレント | なし | 平米数 | 42.14㎡ |
| 間取り | 1LDK | 大型収納 | WIC |
| 契約期間 |
| 方角 | 南 / 東 |
| 更新料 | 契約形態 | 普通賃貸借契約 | |
| 取引態様 | 媒介 | 内見状況 | 入居中 |
| 入居時期 | 入居中 | SOHO・事務所 | |
| ペット | ペット可 | 間取り内訳 | 洋:5.4 LDK:11.3 |
| キャンペーン情報・備考 | 本情報は賃料改定交渉の資料作成、収益物件の利回り試算、周辺エリアや最寄り駅の坪単価分析、次回募集開始時期の予測などにご活用いただけます。 | ||
※「どの不動産に頼めばいいのか分からない」「信頼できる営業マンの話を聞きたい」「一番親切な会社と契約したい」とお悩みの方におすすめなのが「高級賃貸バイブル」です。
高級賃貸バイブルは業界10年以上の熟練スタッフ群がお客様ファーストで対応します。
下記ボタンから、まずは無料でご相談下さい。
※内覧をご希望の際には、どうぞ物件のエントランス前にてお待ち合わせくださいませ。ご内覧後は、同じ場所でお別れとさせていただきます。お客様のご都合に合わせたスムーズなご案内を心がけておりますので、ご質問等がございましたら何なりとお申し付けください。 物件概要
| 物件名 |
| 築年月 |
|
|---|---|---|---|
| 所在地 | |||
| 交通 | |||
| 総戸数 |
| 総階数 |
|
| 構造 |
| ||
地図
物件までの道のりは、「拡大地図を表示」をクリックしてナビ機能をご利用ください。
部屋設備

















建物設備

TVモニターホン

エレベーター

オートロック

バイク置場

宅配ボックス

敷地内ゴミ置場

管理人

駐車場平置き

駐車場機械式

駐輪場
パークアクシス上野・稲荷町の現在募集中のお部屋
- No rooms found for this property.









