
| 賃料 | 予想金額:92,000〜112,000円程度 | 管理費 | 予想金額:6,000〜10,000円程度 |
| 礼金/敷金 | 非公開(アーカイブ) | 平米数 | 25.84㎡ |
| 初期費用概算(参考) | 目安:333,060〜433,060 円 | みなし賃料(月額・参考) | 105,855〜125,855 円 |
| 備考 | 本ページは過去募集のアーカイブです。表示の金額は周辺相場・過去募集を踏まえた参考レンジであり、実際の契約金額・条件ではありません。 | ||
※上記みなし賃料(月額)は仲介手数料割引・無料&キャッシュバックを加味した高級賃貸バイブル限定の金額です。一般的なみなし賃料とは異なります。
【建物ページ】パークアクシス新御徒町Eastの詳細・最新空室はこちら▶▶選ばれる理由
仲介手数料無料・キャンペーン情報(毎月15名様限定)
〇引っ越しお祝い金22440円プレゼント(キャッシュバック)
〇仲介手数料無料キャンペーン
パークアクシス新御徒町East 501の口コミ・レビュー
パークアクシス新御徒町East 501。この名は、東京の喧騒の中に佇む、隠れ家のような存在を示しています。5階に位置するこの住まいからは、北と東の両方を見渡せる美しい眺望が広がり、朝の光が優しくあなたを迎え入れます。専有面積は25.84㎡、その空間に息づくのは、まるでアート作品のような洗練されたデザインです。
想像してみてください。あなたがこのアパートの扉を開ける瞬間、心地よい風が室内に流れ込ん…パークアクシス新御徒町East 501。この名は、東京の喧騒の中に佇む、隠れ家のような存在を示しています。5階に位置するこの住まいからは、北と東の両方を見渡せる美しい眺望が広がり、朝の光が優しくあなたを迎え入れます。専有面積は25.84㎡、その空間に息づくのは、まるでアート作品のような洗練されたデザインです。
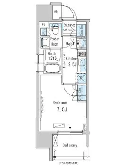
想像してみてください。あなたがこのアパートの扉を開ける瞬間、心地よい風が室内に流れ込んでくると同時に、深い木の香りとともに新しい生活が始まるのです。洋室は7帖の広さを持ち、その空間は自由にあなたのスタイルに彩られます。デザイナーズの内装は、洗練された都会の生活と、アートの息吹を同時に感じさせてくれます。Kは2.5帖、ここでの料理は、まるで映画のワンシーンのように心踊る体験です。豊かな香りが広がるキッチンでのひと時、あなたの手の中で生まれる特別なレシピが、仲間との共演を彩ります。
パークアクシス新御徒町East 501には、単なる設備を超えた心配りが詰まっています。24時間管理の体制が整い、安心して過ごせる環境が、まるで温かな抱擁のようにあなたを包み込みます。TVモニターホンやオートロックなど、最新のセキュリティが、安心を提供しつつも、隣人とのコミュニケーションを温かく促進します。
周囲には蔵前駅が徒歩9分の距離にあり、都市の利便性を享受しながらも、台東区の文化と歴史を味わうことができるのです。商業の中心にありながら、静寂で落ち着いた雰囲気が漂うこの場所で、毎日が新しい発見に満ちています。近所のアートギャラリーや歴史的な建物が、あなたのインスピレーションを引き出し、生活をより豊かに彩ります。
自然と触れ合うことも忘れないでください。近くの公園では、心地よい風に吹かれながら、リフレッシュした時間を過ごすことができます。日々の喧騒から解放される一瞬が、あなたを新たな自分へと導いてくれるのです。
このパークアクシス新御徒町East 501は、あなたを待っています。その小さな世界の中で、五感が刺激され、心豊かな生活が広がっていく様子を想像してみてください。ここでの生活は、ただの暮らしではなく、人生の一篇の詩のようなものです。あなたの物語が、ここから始まるのです。
想像してみてください。あなたがこのアパートの扉を開ける瞬間、心地よい風が室内に流れ込ん…パークアクシス新御徒町East 501。この名は、東京の喧騒の中に佇む、隠れ家のような存在を示しています。5階に位置するこの住まいからは、北と東の両方を見渡せる美しい眺望が広がり、朝の光が優しくあなたを迎え入れます。専有面積は25.84㎡、その空間に息づくのは、まるでアート作品のような洗練されたデザインです。
想像してみてください。あなたがこのアパートの扉を開ける瞬間、心地よい風が室内に流れ込んでくると同時に、深い木の香りとともに新しい生活が始まるのです。洋室は7帖の広さを持ち、その空間は自由にあなたのスタイルに彩られます。デザイナーズの内装は、洗練された都会の生活と、アートの息吹を同時に感じさせてくれます。Kは2.5帖、ここでの料理は、まるで映画のワンシーンのように心踊る体験です。豊かな香りが広がるキッチンでのひと時、あなたの手の中で生まれる特別なレシピが、仲間との共演を彩ります。
パークアクシス新御徒町East 501には、単なる設備を超えた心配りが詰まっています。24時間管理の体制が整い、安心して過ごせる環境が、まるで温かな抱擁のようにあなたを包み込みます。TVモニターホンやオートロックなど、最新のセキュリティが、安心を提供しつつも、隣人とのコミュニケーションを温かく促進します。
周囲には蔵前駅が徒歩9分の距離にあり、都市の利便性を享受しながらも、台東区の文化と歴史を味わうことができるのです。商業の中心にありながら、静寂で落ち着いた雰囲気が漂うこの場所で、毎日が新しい発見に満ちています。近所のアートギャラリーや歴史的な建物が、あなたのインスピレーションを引き出し、生活をより豊かに彩ります。
自然と触れ合うことも忘れないでください。近くの公園では、心地よい風に吹かれながら、リフレッシュした時間を過ごすことができます。日々の喧騒から解放される一瞬が、あなたを新たな自分へと導いてくれるのです。
このパークアクシス新御徒町East 501は、あなたを待っています。その小さな世界の中で、五感が刺激され、心豊かな生活が広がっていく様子を想像してみてください。ここでの生活は、ただの暮らしではなく、人生の一篇の詩のようなものです。あなたの物語が、ここから始まるのです。
バイブルスコア
バイブルスコア: 27.3
平均的なスコアです。
※バイブルスコア詳細はこちら
バイブルスコアとは独自のAI機械学習技術を利用した物件評価システムで、物件のおすすめ度を示します。最高得点は100点で、スコアが高いほど、よりおすすめの物件と評価されています。
写真
契約条件
| 賃料 | 予想金額:92,000〜112,000円程度 | 管理費 | 予想金額:6,000〜10,000円程度 |
| 礼金 | 非公開(アーカイブ) | 敷金 | 非公開(アーカイブ) |
| フリーレント | なし | 平米数 | 25.84㎡ |
| 間取り | 1K | 大型収納 | |
| 契約期間 |
| 方角 | 北 / 東 |
| 更新料 | 契約形態 | 普通賃貸借契約 | |
| 取引態様 | 媒介 | 内見状況 | 入居中 |
| 入居時期 | 入居中 | SOHO・事務所 | |
| ペット | ペット可 | 間取り内訳 | 洋:7 K:2.5 |
| キャンペーン情報・備考 | 本情報は賃料改定交渉の資料作成、収益物件の利回り試算、周辺エリアや最寄り駅の坪単価分析、次回募集開始時期の予測などにご活用いただけます。 | ||
※「どの不動産に頼めばいいのか分からない」「信頼できる営業マンの話を聞きたい」「一番親切な会社と契約したい」とお悩みの方におすすめなのが「高級賃貸バイブル」です。
高級賃貸バイブルは業界10年以上の熟練スタッフ群がお客様ファーストで対応します。
下記ボタンから、まずは無料でご相談下さい。
※内覧をご希望の際には、どうぞ物件のエントランス前にてお待ち合わせくださいませ。ご内覧後は、同じ場所でお別れとさせていただきます。お客様のご都合に合わせたスムーズなご案内を心がけておりますので、ご質問等がございましたら何なりとお申し付けください。 物件概要
| 物件名 |
| 築年月 |
|
|---|---|---|---|
| 所在地 | |||
| 交通 | |||
| 総戸数 |
| 総階数 |
|
| 構造 |
| ||
地図
物件までの道のりは、「拡大地図を表示」をクリックしてナビ機能をご利用ください。
部屋設備
















建物設備

24時間管理

TVモニターホン

エレベーター

オートロック

バイク置場

宅配ボックス

敷地内ゴミ置場

管理人

駐車場平置き

駐車場機械式

駐輪場
パークアクシス新御徒町Eastの現在募集中のお部屋
- パークアクシス新御徒町East 802 - 間取り: 1LDK+WIC - 賃料: 19.5万円
- パークアクシス新御徒町East 403 - 間取り: 2DK - 賃料: 24.2万円
- パークアクシス新御徒町East 402 - 間取り: 1LDK+WIC - 賃料: 19.6万円



























