
| 賃料 | 予想金額:188,000〜208,000円程度 | 管理費 | 予想金額:13,000〜17,000円程度 |
| 礼金/敷金 | 非公開(アーカイブ) | 平米数 | 50.58㎡ |
| 初期費用概算(参考) | 目安:757,000〜857,000 円 | みなし賃料(月額・参考) | 215,688〜235,688 円 |
| 備考 | 本ページは過去募集のアーカイブです。表示の金額は周辺相場・過去募集を踏まえた参考レンジであり、実際の契約金額・条件ではありません。 | ||
※上記みなし賃料(月額)は仲介手数料割引・無料&キャッシュバックを加味した高級賃貸バイブル限定の金額です。一般的なみなし賃料とは異なります。
【建物ページ】パークアクシス新御徒町Eastの詳細・最新空室はこちら▶▶選ばれる理由
仲介手数料無料・キャンペーン情報(毎月15名様限定)
〇仲介手数料割引キャンペーン
パークアクシス新御徒町East 503の口コミ・レビュー
パークアクシス新御徒町East 503。この名前を耳にした瞬間、まるで新たな舞台が目の前に広がるような感覚に包まれることでしょう。東京都台東区三筋の地に佇むこの高級賃貸物件は、単なる住まいを超え、貴方の生活に芸術性と独自のストーリーをもたらす存在です。
エレベーターで503号室に足を踏み入れると、まず感じるのは、心地よい光の洪水です。南向きの窓から射し込む光が、空間を優しく包み込み、洋室6.2帖…パークアクシス新御徒町East 503。この名前を耳にした瞬間、まるで新たな舞台が目の前に広がるような感覚に包まれることでしょう。東京都台東区三筋の地に佇むこの高級賃貸物件は、単なる住まいを超え、貴方の生活に芸術性と独自のストーリーをもたらす存在です。
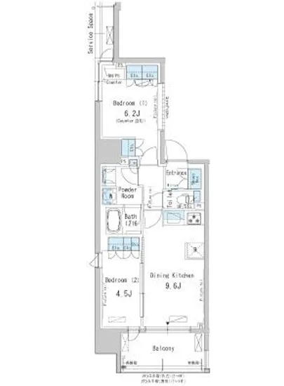
エレベーターで503号室に足を踏み入れると、まず感じるのは、心地よい光の洪水です。南向きの窓から射し込む光が、空間を優しく包み込み、洋室6.2帖と洋室4.5帖のそれぞれが持つ個性を際立たせます。あたかも、朝焼けが窓辺に踊るようなその光景は、日常を特別なものにする魔法の瞬間です。
キッチンがあるダイニングキッチン9.6帖では、料理の匂いが空気を満たし、甘い香ばしさが漂います。大切な人との会話が弾む中で、ふわりと香るスパイスやハーブが、食卓を彩る料理へと変貌を遂げていくのです。ここでは日常の食事が、まるで高級レストランでの一品のように、心に残る思い出を生み出します。
パークアクシス新御徒町East 503では、五感を刺激するライフスタイルが待っています。優雅な時間を共にするために、管理人の温かいおもてなしがいつでもあなたを見守っており、24時間の管理体制が生活の安心を提供します。オートロックやTVモニターホンを通じて、外との安全な距離感を保ちながらも、心の中では新しい出会いや発見に胸を躍らせることができるでしょう。
また、周辺には歴史と文化が息づいています。蔵前駅へはわずか徒歩9分、そして近隣には東京の伝統と現代が交錯する場所が点在しています。日々の散策はまるで映画のワンシーン、その一歩一歩が新たな発見に満ち、貴方自身が物語の主人公となっていくのです。
手に取るように感じることができるこの空間、パークアクシス新御徒町East 503での生活は、ただの暮らしではなく、アートとしての世界を描き出します。思い描く理想の生活が、ここでは現実のものとなり、毎日が映画の一コマのような華やかさを纏うことでしょう。どうぞ、貴方の新しい物語をこの場所からスタートさせてください。
エレベーターで503号室に足を踏み入れると、まず感じるのは、心地よい光の洪水です。南向きの窓から射し込む光が、空間を優しく包み込み、洋室6.2帖…パークアクシス新御徒町East 503。この名前を耳にした瞬間、まるで新たな舞台が目の前に広がるような感覚に包まれることでしょう。東京都台東区三筋の地に佇むこの高級賃貸物件は、単なる住まいを超え、貴方の生活に芸術性と独自のストーリーをもたらす存在です。
エレベーターで503号室に足を踏み入れると、まず感じるのは、心地よい光の洪水です。南向きの窓から射し込む光が、空間を優しく包み込み、洋室6.2帖と洋室4.5帖のそれぞれが持つ個性を際立たせます。あたかも、朝焼けが窓辺に踊るようなその光景は、日常を特別なものにする魔法の瞬間です。
キッチンがあるダイニングキッチン9.6帖では、料理の匂いが空気を満たし、甘い香ばしさが漂います。大切な人との会話が弾む中で、ふわりと香るスパイスやハーブが、食卓を彩る料理へと変貌を遂げていくのです。ここでは日常の食事が、まるで高級レストランでの一品のように、心に残る思い出を生み出します。
パークアクシス新御徒町East 503では、五感を刺激するライフスタイルが待っています。優雅な時間を共にするために、管理人の温かいおもてなしがいつでもあなたを見守っており、24時間の管理体制が生活の安心を提供します。オートロックやTVモニターホンを通じて、外との安全な距離感を保ちながらも、心の中では新しい出会いや発見に胸を躍らせることができるでしょう。
また、周辺には歴史と文化が息づいています。蔵前駅へはわずか徒歩9分、そして近隣には東京の伝統と現代が交錯する場所が点在しています。日々の散策はまるで映画のワンシーン、その一歩一歩が新たな発見に満ち、貴方自身が物語の主人公となっていくのです。
手に取るように感じることができるこの空間、パークアクシス新御徒町East 503での生活は、ただの暮らしではなく、アートとしての世界を描き出します。思い描く理想の生活が、ここでは現実のものとなり、毎日が映画の一コマのような華やかさを纏うことでしょう。どうぞ、貴方の新しい物語をこの場所からスタートさせてください。
バイブルスコア
バイブルスコア: 22.8
平均的なスコアです。
※バイブルスコア詳細はこちら
バイブルスコアとは独自のAI機械学習技術を利用した物件評価システムで、物件のおすすめ度を示します。最高得点は100点で、スコアが高いほど、よりおすすめの物件と評価されています。
写真
契約条件
| 賃料 | 予想金額:188,000〜208,000円程度 | 管理費 | 予想金額:13,000〜17,000円程度 |
| 礼金 | 非公開(アーカイブ) | 敷金 | 非公開(アーカイブ) |
| フリーレント | なし | 平米数 | 50.58㎡ |
| 間取り | 2DK | 大型収納 | |
| 契約期間 |
| 方角 | 南 |
| 更新料 | 契約形態 | 普通賃貸借契約 | |
| 取引態様 | 媒介 | 内見状況 | 入居中 |
| 入居時期 | 入居中 | SOHO・事務所 | |
| ペット | ペット可 | 間取り内訳 | 洋:6.2 洋:4.5 DK:9.6 |
| キャンペーン情報・備考 | 本情報は賃料改定交渉の資料作成、収益物件の利回り試算、周辺エリアや最寄り駅の坪単価分析、次回募集開始時期の予測などにご活用いただけます。 | ||
※「どの不動産に頼めばいいのか分からない」「信頼できる営業マンの話を聞きたい」「一番親切な会社と契約したい」とお悩みの方におすすめなのが「高級賃貸バイブル」です。
高級賃貸バイブルは業界10年以上の熟練スタッフ群がお客様ファーストで対応します。
下記ボタンから、まずは無料でご相談下さい。
※内覧をご希望の際には、どうぞ物件のエントランス前にてお待ち合わせくださいませ。ご内覧後は、同じ場所でお別れとさせていただきます。お客様のご都合に合わせたスムーズなご案内を心がけておりますので、ご質問等がございましたら何なりとお申し付けください。 物件概要
| 物件名 |
| 築年月 |
|
|---|---|---|---|
| 所在地 | |||
| 交通 | |||
| 総戸数 |
| 総階数 |
|
| 構造 |
| ||
地図
物件までの道のりは、「拡大地図を表示」をクリックしてナビ機能をご利用ください。
部屋設備


















建物設備

24時間管理

TVモニターホン

エレベーター

オートロック

バイク置場

宅配ボックス

敷地内ゴミ置場

管理人

駐車場平置き

駐車場機械式

駐輪場
パークアクシス新御徒町Eastの現在募集中のお部屋
- パークアクシス新御徒町East 802 - 間取り: 1LDK+WIC - 賃料: 19.5万円
- パークアクシス新御徒町East 403 - 間取り: 2DK - 賃料: 24.2万円
- パークアクシス新御徒町East 402 - 間取り: 1LDK+WIC - 賃料: 19.6万円



























