
| 賃料 | 予想金額:160,000〜180,000円程度 | 管理費 | 予想金額:13,000〜17,000円程度 |
| 礼金/敷金 | 非公開(アーカイブ) | 平米数 | 40.16㎡ |
| 初期費用概算(参考) | 目安:0〜-13,400 円 | みなし賃料(月額・参考) | 173,679〜193,679 円 |
| 備考 | 本ページは過去募集のアーカイブです。表示の金額は周辺相場・過去募集を踏まえた参考レンジであり、実際の契約金額・条件ではありません。 | ||
※上記みなし賃料(月額)は仲介手数料割引・無料&キャッシュバックを加味した高級賃貸バイブル限定の金額です。一般的なみなし賃料とは異なります。
【建物ページ】プライマル上野・稲荷町の詳細・最新空室はこちら▶▶選ばれる理由
仲介手数料無料・キャンペーン情報(毎月15名様限定)
〇引っ越しお祝い金207400円プレゼント(キャッシュバック)
〇フリーレント1か月キャンペーン
〇仲介手数料無料キャンペーン
プライマル上野・稲荷町 1203の口コミ・レビュー
プライマル上野・稲荷町 1203は、まるで夢の中に迷い込んだかのような空間を提供する特別な場所です。この1203号室は、東京都台東区松が谷2-6-5の南と東に面し、穏やかな光が優しく差し込む、心安らぐ住まいとなっております。専有面積は40.16㎡という、居住空間が持つ本来の魅力を十分に感じられる広さです。
あなたがこの扉を開けた瞬間、静寂を破るかのように、心地よい日差しが部屋全体を包み込み、まる…プライマル上野・稲荷町 1203は、まるで夢の中に迷い込んだかのような空間を提供する特別な場所です。この1203号室は、東京都台東区松が谷2-6-5の南と東に面し、穏やかな光が優しく差し込む、心安らぐ住まいとなっております。専有面積は40.16㎡という、居住空間が持つ本来の魅力を十分に感じられる広さです。
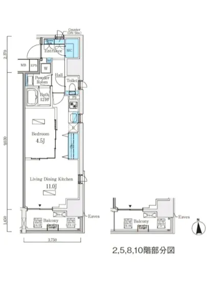
あなたがこの扉を開けた瞬間、静寂を破るかのように、心地よい日差しが部屋全体を包み込み、まるで自然の中にいるかのような爽快感を与えてくれるでしょう。リビングダイニングキッチンは11帖という広さを誇り、ゆったりとした時を過ごすための広がりを与えてくれます。ここであなたは、良き友人たちと過ごす豊かなひとときや、愛する人との穏やかな夕食を楽しむことができるでしょう。幸せに満ちたひと時が、まるで映画のワンシーンのように鮮明に思い描けます。
そのすぐ隣に広がる洋室4.5帖は、居心地の良い隠れ家のようです。柔らかな寝具に身を委ねると、ひんやりとした朝の光が窓を通して優しくあなたを迎えます。思わず深呼吸したくなる空気には、朝の新鮮な香りが漂い、心の底からリフレッシュできることでしょう。ここでは、ひとりの時間も、特別な贈り物のように感じられます。
そして、この物件に備わった数々の最新設備も見逃せません。TVモニターホンやオートロックは、まるであなたを大切に守る鎧のよう。安心感とともに都会生活を楽しむための味方となってくれます。エレベーターや駐車場、宅配ボックスといった便利な設備は、まるであなたの日常をサポートする小さな精霊たちのように、スムーズな生活を提供してくれます。
周辺には、歴史と文化が息づくエリアが広がっており、まるで美術館のように散策が楽しめます。アートを愛するあなたには、地元のギャラリーやカフェが心を惹きつけてやまないでしょう。歴史的な街並みと現代の文化が交差し、時間が止まったかのような独特の雰囲気が漂います。東京メトロ銀座線稲荷町駅から徒歩6分というアクセスも、日常の生活を非日常的なアートに変えてくれるのです。
プライマル上野・稲荷町 1203での生活は、五感を喜ばせる豊かな体験で溢れています。ここでの毎日は、あなた自身のストーリーを描き、新たな章を刻む舞台となるでしょう。都会の喧騒から一歩離れ、心を休め、感覚を研ぎ澄ませることができる、この素晴らしい住まいで、あなたの生活が豊かに色彩を増すことを保証します。
あなたがこの扉を開けた瞬間、静寂を破るかのように、心地よい日差しが部屋全体を包み込み、まる…プライマル上野・稲荷町 1203は、まるで夢の中に迷い込んだかのような空間を提供する特別な場所です。この1203号室は、東京都台東区松が谷2-6-5の南と東に面し、穏やかな光が優しく差し込む、心安らぐ住まいとなっております。専有面積は40.16㎡という、居住空間が持つ本来の魅力を十分に感じられる広さです。
あなたがこの扉を開けた瞬間、静寂を破るかのように、心地よい日差しが部屋全体を包み込み、まるで自然の中にいるかのような爽快感を与えてくれるでしょう。リビングダイニングキッチンは11帖という広さを誇り、ゆったりとした時を過ごすための広がりを与えてくれます。ここであなたは、良き友人たちと過ごす豊かなひとときや、愛する人との穏やかな夕食を楽しむことができるでしょう。幸せに満ちたひと時が、まるで映画のワンシーンのように鮮明に思い描けます。
そのすぐ隣に広がる洋室4.5帖は、居心地の良い隠れ家のようです。柔らかな寝具に身を委ねると、ひんやりとした朝の光が窓を通して優しくあなたを迎えます。思わず深呼吸したくなる空気には、朝の新鮮な香りが漂い、心の底からリフレッシュできることでしょう。ここでは、ひとりの時間も、特別な贈り物のように感じられます。
そして、この物件に備わった数々の最新設備も見逃せません。TVモニターホンやオートロックは、まるであなたを大切に守る鎧のよう。安心感とともに都会生活を楽しむための味方となってくれます。エレベーターや駐車場、宅配ボックスといった便利な設備は、まるであなたの日常をサポートする小さな精霊たちのように、スムーズな生活を提供してくれます。
周辺には、歴史と文化が息づくエリアが広がっており、まるで美術館のように散策が楽しめます。アートを愛するあなたには、地元のギャラリーやカフェが心を惹きつけてやまないでしょう。歴史的な街並みと現代の文化が交差し、時間が止まったかのような独特の雰囲気が漂います。東京メトロ銀座線稲荷町駅から徒歩6分というアクセスも、日常の生活を非日常的なアートに変えてくれるのです。
プライマル上野・稲荷町 1203での生活は、五感を喜ばせる豊かな体験で溢れています。ここでの毎日は、あなた自身のストーリーを描き、新たな章を刻む舞台となるでしょう。都会の喧騒から一歩離れ、心を休め、感覚を研ぎ澄ませることができる、この素晴らしい住まいで、あなたの生活が豊かに色彩を増すことを保証します。
バイブルスコア
バイブルスコア: 23.9
平均的なスコアです。
※バイブルスコア詳細はこちら
バイブルスコアとは独自のAI機械学習技術を利用した物件評価システムで、物件のおすすめ度を示します。最高得点は100点で、スコアが高いほど、よりおすすめの物件と評価されています。
写真
契約条件
| 賃料 | 予想金額:160,000〜180,000円程度 | 管理費 | 予想金額:13,000〜17,000円程度 |
| 礼金 | 非公開(アーカイブ) | 敷金 | 非公開(アーカイブ) |
| フリーレント | 1.0ヶ月 | 平米数 | 40.16㎡ |
| 間取り | 1LDK | 大型収納 | SIC |
| 契約期間 |
| 方角 | 南 / 東 |
| 更新料 | 契約形態 | 普通賃貸借契約 | |
| 取引態様 | 媒介 | 内見状況 | 入居中 |
| 入居時期 | 入居中 | SOHO・事務所 | |
| ペット | 間取り内訳 | 洋:4.5 LDK:11 | |
| キャンペーン情報・備考 | 本情報は賃料改定交渉の資料作成、収益物件の利回り試算、周辺エリアや最寄り駅の坪単価分析、次回募集開始時期の予測などにご活用いただけます。 | ||
※「どの不動産に頼めばいいのか分からない」「信頼できる営業マンの話を聞きたい」「一番親切な会社と契約したい」とお悩みの方におすすめなのが「高級賃貸バイブル」です。
高級賃貸バイブルは業界10年以上の熟練スタッフ群がお客様ファーストで対応します。
下記ボタンから、まずは無料でご相談下さい。
※内覧をご希望の際には、どうぞ物件のエントランス前にてお待ち合わせくださいませ。ご内覧後は、同じ場所でお別れとさせていただきます。お客様のご都合に合わせたスムーズなご案内を心がけておりますので、ご質問等がございましたら何なりとお申し付けください。 物件概要
| 物件名 |
| 築年月 |
|
|---|---|---|---|
| 所在地 | |||
| 交通 | |||
| 総戸数 |
| 総階数 |
|
| 構造 |
| ||
地図
物件までの道のりは、「拡大地図を表示」をクリックしてナビ機能をご利用ください。
部屋設備














建物設備

TVモニターホン

エレベーター

オートロック

バイク置場

宅配ボックス

敷地内ゴミ置場

管理人

駐車場平置き

駐輪場
プライマル上野・稲荷町の現在募集中のお部屋
- プライマル上野・稲荷町 1101 - 間取り: 1LDK - 賃料: 19.8万円


























