
| 賃料 | 予想金額:158,000〜178,000円程度 | 管理費 | 予想金額:13,000〜17,000円程度 |
| 礼金/敷金 | 非公開(アーカイブ) | 平米数 | 40.92㎡ |
| 初期費用概算(参考) | 目安:316,000〜416,000 円 | みなし賃料(月額・参考) | 180,625〜200,625 円 |
| 備考 | 本ページは過去募集のアーカイブです。表示の金額は周辺相場・過去募集を踏まえた参考レンジであり、実際の契約金額・条件ではありません。 | ||
※上記みなし賃料(月額)は仲介手数料割引・無料&キャッシュバックを加味した高級賃貸バイブル限定の金額です。一般的なみなし賃料とは異なります。
【建物ページ】アーバネックス浅草の詳細・最新空室はこちら▶▶選ばれる理由
仲介手数料無料・キャンペーン情報(毎月15名様限定)
〇フリーレント1か月キャンペーン
アーバネックス浅草 401の口コミ・レビュー
アーバネックス浅草 401、聞くだけで心が躍るような響きを持つこの場所は、まるで都心の喧騒から一歩引いた安らぎのオアシスのようです。南と西の二方向から差し込む太陽の光を浴びながら、優雅にあなたの日常を彩る空間がここには広がっています。広さ40.92㎡の世界は、あなただけの特別な舞台であり、日常の暮らしを映画のワンシーンに変えてくれるのです。
一歩足を踏み入れると、洋室4.5帖の空間が出迎えてくれ…アーバネックス浅草 401、聞くだけで心が躍るような響きを持つこの場所は、まるで都心の喧騒から一歩引いた安らぎのオアシスのようです。南と西の二方向から差し込む太陽の光を浴びながら、優雅にあなたの日常を彩る空間がここには広がっています。広さ40.92㎡の世界は、あなただけの特別な舞台であり、日常の暮らしを映画のワンシーンに変えてくれるのです。
一歩足を踏み入れると、洋室4.5帖の空間が出迎えてくれます。柔らかな光が床を滑り、まるで優しい手があなたを包むよう。窓を開けると、墨田区の風がそよぎ、街の香りが鼻をくすぐります。近隣に広がる隅田川のほとりでは、時折観光船の汽笛が聞こえ、江戸の風情が漂います。この場所は、ただの住まいではなく、推理小説の主人公になったかのように心躍る日々を約束してくれるのです。
次に目を引くのが、LDK11帖のリビングダイニングキッチン。あなたの想像力をかきたてるこのスペースは、友人を招いての楽しい夕食や、静かな夜に読書を楽しむための完璧な場所です。キッチンからはおいしい料理の香りが立ち上り、心地よい音楽が流れたなら、まるで映画の中の主人公になったかのような優雅な時間が訪れることでしょう。美しい調理器具が整えられ、料理を楽しむための舞台がここに広がっています。
アーバネックス浅草 401には、便利な設備も整っています。TVモニターホンやオートロック、バイク置場に宅配ボックス、そして駐輪場も完備。これらの設備は、あなたの日常をスムーズにし、さらに安心感を与えてくれます。まるで親友がいつもそばにいてくれるかのように、生活を支えてくれる存在です。
この場所はまた、あなたの創造性を刺激する環境でもあります。周辺には、伝統のある浅草寺や賑やかな仲見世通り、さらに現代アートが楽しめるスポットも点在しており、歴史と文化が息づく場所。アーバネックス浅草 401に住むことで、あなたもこの豊かな歴史の一部となり、新たなストーリーを紡ぐことができるのです。
さあ、アーバネックス浅草 401での生活を想像してみてください。朝、ゆっくりと起きて窓を開けると、清々しい空気が流れ込み、心が晴れやかになります。仕事から帰ると、にぎやかな街の喧騒から離れた静かな空間が待っており、つかの間の安らぎを味わえることができるのです。この場所こそ、日常を特別なものに変える力を持っているのです。あなたの新しい生活が、ここアーバネックス浅草 401で始まる瞬間を、心からお待ちしております。
一歩足を踏み入れると、洋室4.5帖の空間が出迎えてくれ…アーバネックス浅草 401、聞くだけで心が躍るような響きを持つこの場所は、まるで都心の喧騒から一歩引いた安らぎのオアシスのようです。南と西の二方向から差し込む太陽の光を浴びながら、優雅にあなたの日常を彩る空間がここには広がっています。広さ40.92㎡の世界は、あなただけの特別な舞台であり、日常の暮らしを映画のワンシーンに変えてくれるのです。
一歩足を踏み入れると、洋室4.5帖の空間が出迎えてくれます。柔らかな光が床を滑り、まるで優しい手があなたを包むよう。窓を開けると、墨田区の風がそよぎ、街の香りが鼻をくすぐります。近隣に広がる隅田川のほとりでは、時折観光船の汽笛が聞こえ、江戸の風情が漂います。この場所は、ただの住まいではなく、推理小説の主人公になったかのように心躍る日々を約束してくれるのです。
次に目を引くのが、LDK11帖のリビングダイニングキッチン。あなたの想像力をかきたてるこのスペースは、友人を招いての楽しい夕食や、静かな夜に読書を楽しむための完璧な場所です。キッチンからはおいしい料理の香りが立ち上り、心地よい音楽が流れたなら、まるで映画の中の主人公になったかのような優雅な時間が訪れることでしょう。美しい調理器具が整えられ、料理を楽しむための舞台がここに広がっています。
アーバネックス浅草 401には、便利な設備も整っています。TVモニターホンやオートロック、バイク置場に宅配ボックス、そして駐輪場も完備。これらの設備は、あなたの日常をスムーズにし、さらに安心感を与えてくれます。まるで親友がいつもそばにいてくれるかのように、生活を支えてくれる存在です。
この場所はまた、あなたの創造性を刺激する環境でもあります。周辺には、伝統のある浅草寺や賑やかな仲見世通り、さらに現代アートが楽しめるスポットも点在しており、歴史と文化が息づく場所。アーバネックス浅草 401に住むことで、あなたもこの豊かな歴史の一部となり、新たなストーリーを紡ぐことができるのです。
さあ、アーバネックス浅草 401での生活を想像してみてください。朝、ゆっくりと起きて窓を開けると、清々しい空気が流れ込み、心が晴れやかになります。仕事から帰ると、にぎやかな街の喧騒から離れた静かな空間が待っており、つかの間の安らぎを味わえることができるのです。この場所こそ、日常を特別なものに変える力を持っているのです。あなたの新しい生活が、ここアーバネックス浅草 401で始まる瞬間を、心からお待ちしております。
バイブルスコア
バイブルスコア: 36.8
平均的なスコアです。
※バイブルスコア詳細はこちら
バイブルスコアとは独自のAI機械学習技術を利用した物件評価システムで、物件のおすすめ度を示します。最高得点は100点で、スコアが高いほど、よりおすすめの物件と評価されています。
写真
契約条件
| 賃料 | 予想金額:158,000〜178,000円程度 | 管理費 | 予想金額:13,000〜17,000円程度 |
| 礼金 | 非公開(アーカイブ) | 敷金 | 非公開(アーカイブ) |
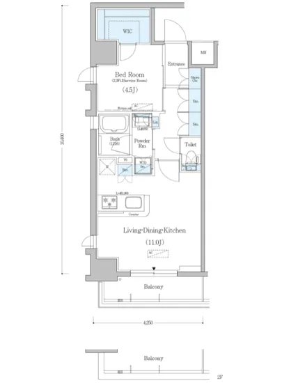
| フリーレント | 1ヶ月 | 平米数 | 40.92㎡ |
| 間取り | 1LDK | 大型収納 | WIC |
| 契約期間 |
| 方角 | 南 / 西 |
| 更新料 | 契約形態 | 普通賃貸借契約 | |
| 取引態様 | 媒介 | 内見状況 | 入居中 |
| 入居時期 | 入居中 | SOHO・事務所 | |
| ペット | 間取り内訳 | 洋:4.5 LDK:11 | |
| キャンペーン情報・備考 | 本情報は賃料改定交渉の資料作成、収益物件の利回り試算、周辺エリアや最寄り駅の坪単価分析、次回募集開始時期の予測などにご活用いただけます。 | ||
※「どの不動産に頼めばいいのか分からない」「信頼できる営業マンの話を聞きたい」「一番親切な会社と契約したい」とお悩みの方におすすめなのが「高級賃貸バイブル」です。
高級賃貸バイブルは業界10年以上の熟練スタッフ群がお客様ファーストで対応します。
下記ボタンから、まずは無料でご相談下さい。
※内覧をご希望の際には、どうぞ物件のエントランス前にてお待ち合わせくださいませ。ご内覧後は、同じ場所でお別れとさせていただきます。お客様のご都合に合わせたスムーズなご案内を心がけておりますので、ご質問等がございましたら何なりとお申し付けください。 物件概要
| 物件名 |
| 築年月 |
|
|---|---|---|---|
| 所在地 | |||
| 交通 | |||
| 総戸数 |
| 総階数 |
|
| 構造 |
| ||
地図
物件までの道のりは、「拡大地図を表示」をクリックしてナビ機能をご利用ください。
部屋設備

















建物設備

TVモニターホン

エレベーター

オートロック

バイク置場

宅配ボックス

敷地内ゴミ置場

管理人

駐輪場
アーバネックス浅草の現在募集中のお部屋
- アーバネックス浅草 901 - 間取り: 1LDK+WIC - 賃料: 19.1万円

























