
| 賃料 | 予想金額:107,000〜127,000円程度 | 管理費 | 予想金額:8,000〜12,000円程度 |
| 礼金/敷金 | 非公開(アーカイブ) | 平米数 | 26.14㎡ |
| 初期費用概算(参考) | 目安:270,600〜370,600 円 | みなし賃料(月額・参考) | 121,242〜141,242 円 |
| 備考 | 本ページは過去募集のアーカイブです。表示の金額は周辺相場・過去募集を踏まえた参考レンジであり、実際の契約金額・条件ではありません。 | ||
※上記みなし賃料(月額)は仲介手数料割引・無料&キャッシュバックを加味した高級賃貸バイブル限定の金額です。一般的なみなし賃料とは異なります。
【建物ページ】アーバネックス菊川の詳細・最新空室はこちら▶▶選ばれる理由
仲介手数料無料・キャンペーン情報(毎月15名様限定)
〇引っ越しお祝い金23400円プレゼント(キャッシュバック)
〇仲介手数料無料キャンペーン
アーバネックス菊川 305の口コミ・レビュー
アーバネックス菊川 305へようこそ。南向きの窓から差し込む光は、まるで朝の優しいハグのように、あなたの日常を包み込みます。この305号室は、26.14㎡の空間に、あなたの物語を描くためのキャンバスが広がっています。訪れる客が思わず息を飲むその瞬間、アーバネックス菊川はただの住まいではなく、あなたの心の拠り所となるのです。
さあ、ドアを開けると、まず出迎えてくれるのは、洗練されたデザインのダイニ…アーバネックス菊川 305へようこそ。南向きの窓から差し込む光は、まるで朝の優しいハグのように、あなたの日常を包み込みます。この305号室は、26.14㎡の空間に、あなたの物語を描くためのキャンバスが広がっています。訪れる客が思わず息を飲むその瞬間、アーバネックス菊川はただの住まいではなく、あなたの心の拠り所となるのです。
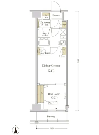
さあ、ドアを開けると、まず出迎えてくれるのは、洗練されたデザインのダイニングキッチン、DK 7.1帖。ここでは、夕暮れ時のオレンジ色の光が溢れ、あなたの料理の腕前を引き立ててくれることでしょう。食材の香りが漂い、スパイスの香りが心を揺さぶる、そんな温かいひとときを演出します。この空間で、友人たちとの楽しい会話が響き渡る様子が目に浮かびます。
続いて、洋室 3.2帖の空間へと足を踏み入れると、柔らかな色合いの壁があなたを迎え入れ、心地よい静寂が広がります。昼下がりの穏やかな陽射しがカーテン越しに降り注ぎ、まるであなた自身が優雅な映画の主人公になったかのような気持ちにさせてくれます。ここは、日々の疲れを癒し、心の安らぎを与えてくれる特別な場所です。
アーバネックス菊川 305には、現代生活に欠かせない設備が整っています。安全で便利なオートロックのエントランスを通り抜けると、あなたはまるで特別な世界に足を踏み入れたかのような感覚を覚えるでしょう。エレベーターで上がるたびに、愛しいこの空間に近づいているという高揚感を感じるのです。また、宅配ボックスや駐輪場といった便利な設備も、日常のストレスを軽減します。
この物件の周辺には、墨田区の歴史や文化が息づいています。小さなカフェやアートギャラリーが点在し、散策するたびに新たな発見があるでしょう。菊川駅からのアクセスも良好で、都会の喧騒に身を委ねながら、静かな生活を謳歌することができます。
そして、アーバネックス菊川 305に住むことは、あなたの人生のスパイスを加えることに他なりません。朝の光の中で目覚め、優雅なブランチを楽しむ。昼下がりには読書に没頭し、夜は友人と共に楽しいひとときを過ごす。そんな、映画のワンシーンのような日常がここには待っています。
アーバネックス菊川 305。あなたの物語の舞台として、この場所が心に残ることでしょう。新しい生活の幕が開く瞬間を、心から楽しみにしています。
さあ、ドアを開けると、まず出迎えてくれるのは、洗練されたデザインのダイニ…アーバネックス菊川 305へようこそ。南向きの窓から差し込む光は、まるで朝の優しいハグのように、あなたの日常を包み込みます。この305号室は、26.14㎡の空間に、あなたの物語を描くためのキャンバスが広がっています。訪れる客が思わず息を飲むその瞬間、アーバネックス菊川はただの住まいではなく、あなたの心の拠り所となるのです。
さあ、ドアを開けると、まず出迎えてくれるのは、洗練されたデザインのダイニングキッチン、DK 7.1帖。ここでは、夕暮れ時のオレンジ色の光が溢れ、あなたの料理の腕前を引き立ててくれることでしょう。食材の香りが漂い、スパイスの香りが心を揺さぶる、そんな温かいひとときを演出します。この空間で、友人たちとの楽しい会話が響き渡る様子が目に浮かびます。
続いて、洋室 3.2帖の空間へと足を踏み入れると、柔らかな色合いの壁があなたを迎え入れ、心地よい静寂が広がります。昼下がりの穏やかな陽射しがカーテン越しに降り注ぎ、まるであなた自身が優雅な映画の主人公になったかのような気持ちにさせてくれます。ここは、日々の疲れを癒し、心の安らぎを与えてくれる特別な場所です。
アーバネックス菊川 305には、現代生活に欠かせない設備が整っています。安全で便利なオートロックのエントランスを通り抜けると、あなたはまるで特別な世界に足を踏み入れたかのような感覚を覚えるでしょう。エレベーターで上がるたびに、愛しいこの空間に近づいているという高揚感を感じるのです。また、宅配ボックスや駐輪場といった便利な設備も、日常のストレスを軽減します。
この物件の周辺には、墨田区の歴史や文化が息づいています。小さなカフェやアートギャラリーが点在し、散策するたびに新たな発見があるでしょう。菊川駅からのアクセスも良好で、都会の喧騒に身を委ねながら、静かな生活を謳歌することができます。
そして、アーバネックス菊川 305に住むことは、あなたの人生のスパイスを加えることに他なりません。朝の光の中で目覚め、優雅なブランチを楽しむ。昼下がりには読書に没頭し、夜は友人と共に楽しいひとときを過ごす。そんな、映画のワンシーンのような日常がここには待っています。
アーバネックス菊川 305。あなたの物語の舞台として、この場所が心に残ることでしょう。新しい生活の幕が開く瞬間を、心から楽しみにしています。
バイブルスコア
バイブルスコア: 47.4
条件のいい物件です、引っ越しが2か月以内の場合は仮申し込みを検討すべき物件です。
※バイブルスコア詳細はこちら
バイブルスコアとは独自のAI機械学習技術を利用した物件評価システムで、物件のおすすめ度を示します。最高得点は100点で、スコアが高いほど、よりおすすめの物件と評価されています。
写真
現在写真が登録されていません契約条件
| 賃料 | 予想金額:107,000〜127,000円程度 | 管理費 | 予想金額:8,000〜12,000円程度 |
| 礼金 | 非公開(アーカイブ) | 敷金 | 非公開(アーカイブ) |
| フリーレント | なし | 平米数 | 26.14㎡ |
| 間取り | 1DK | 大型収納 | なし |
| 契約期間 | 2年 | 方角 | 南 |
| 更新料 | 1ヶ月 | 契約形態 | 普通賃貸借契約 |
| 取引態様 | 媒介 | 内見状況 | 入居中 |
| 入居時期 | 入居中 | SOHO・事務所 | 不可 |
| ペット | 不可 | 間取り内訳 | 洋:3.2 DK:7.1 |
| キャンペーン情報・備考 | 本情報は賃料改定交渉の資料作成、収益物件の利回り試算、周辺エリアや最寄り駅の坪単価分析、次回募集開始時期の予測などにご活用いただけます。 | ||
※「どの不動産に頼めばいいのか分からない」「信頼できる営業マンの話を聞きたい」「一番親切な会社と契約したい」とお悩みの方におすすめなのが「高級賃貸バイブル」です。
高級賃貸バイブルは業界10年以上の熟練スタッフ群がお客様ファーストで対応します。
下記ボタンから、まずは無料でご相談下さい。
※内覧をご希望の際には、どうぞ物件のエントランス前にてお待ち合わせくださいませ。ご内覧後は、同じ場所でお別れとさせていただきます。お客様のご都合に合わせたスムーズなご案内を心がけておりますので、ご質問等がございましたら何なりとお申し付けください。 物件概要
| 物件名 |
| 築年月 |
|
|---|---|---|---|
| 所在地 | |||
| 交通 | |||
| 総戸数 |
| 総階数 |
|
| 構造 |
| ||
地図
物件までの道のりは、「拡大地図を表示」をクリックしてナビ機能をご利用ください。
部屋設備














建物設備

TVモニターホン

エレベーター

オートロック

バイク置場

宅配ボックス

敷地内ゴミ置場

管理人

駐車場平置き

駐車場機械式

駐輪場
アーバネックス菊川の現在募集中のお部屋
- アーバネックス菊川 301 - 間取り: 2LDK - 賃料: 20.9万円
- アーバネックス菊川 506 - 間取り: 2LDK - 賃料: 20万円
