
| 賃料 | 予想金額:168,000〜188,000円程度 | 管理費 | 予想金額:13,000〜17,000円程度 |
| 礼金/敷金 | 非公開(アーカイブ) | 平米数 | 41.27㎡ |
| 初期費用概算(参考) | 目安:58,840〜158,840 円 | みなし賃料(月額・参考) | 185,268〜205,268 円 |
| 備考 | 本ページは過去募集のアーカイブです。表示の金額は周辺相場・過去募集を踏まえた参考レンジであり、実際の契約金額・条件ではありません。 | ||
※上記みなし賃料(月額)は仲介手数料割引・無料&キャッシュバックを加味した高級賃貸バイブル限定の金額です。一般的なみなし賃料とは異なります。
【建物ページ】アーバネックス菊川の詳細・最新空室はこちら▶▶選ばれる理由
仲介手数料無料・キャンペーン情報(毎月15名様限定)
〇引っ越しお祝い金217160円プレゼント(キャッシュバック)
〇フリーレント1か月キャンペーン
〇仲介手数料無料キャンペーン
アーバネックス菊川 406の口コミ・レビュー
アーバネックス菊川 406。この名を耳にした瞬間、心の中に広がるのは、まるで映画の一幕のように美しい日常の景色です。東京都墨田区立川3-18-11というその地で、406の扉を開けると、穏やかな光が差し込み、柔らかな空気が私を迎えます。南と東の方角から注がれる陽光は、朝のコーヒーの香りとともに、心を解きほぐしてくれる特別な恩恵です。
アーバネックス菊川 406は、ただの住まいではありません。ここは…アーバネックス菊川 406。この名を耳にした瞬間、心の中に広がるのは、まるで映画の一幕のように美しい日常の景色です。東京都墨田区立川3-18-11というその地で、406の扉を開けると、穏やかな光が差し込み、柔らかな空気が私を迎えます。南と東の方角から注がれる陽光は、朝のコーヒーの香りとともに、心を解きほぐしてくれる特別な恩恵です。
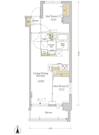
アーバネックス菊川 406は、ただの住まいではありません。ここは、夢が現実となる舞台であり、あなたの生活の物語を紡ぐための魅惑的な空間です。間取りは2LDK、洋室は5帖と3.1帖、そしてLDKは10.9帖という贅沢な広さを持ち、心が豊かになるような居心地の良さを提供します。まるで美術館のような空間で、アートのように美しく配置された家具たちが、心のこもった毎日を演出します。
廊下に足を踏み入れた瞬間、目の前には広がるLDKの景色が待っています。広々とした空間では、家族や友人たちとともに食卓を囲み、笑い声が響き渡ることでしょう。キッチンからは、口いっぱいに広がる美味しい食事の香りが漂い、日々の生活がまるでシェフの腕にかかっているかのように感じられます。あなたの料理の腕前が、一層際立つことでしょう。この空間は、ただの「住む場所」ではなく、物語が生まれる場所なのです。
アーバネックス菊川 406には、現代的な設備が整っており、日々の生活をさらに快適にしてくれます。エレベーター、オートロック、TVモニターホンなど、先進の機能が、あなたの安全と便利さを共に支えてくれます。宅配ボックスが設置されているため、忙しい日常でも大切な荷物を受け取ることができ、ストレスが軽減されることでしょう。
周辺には墨田区の歴史的な魅力が息づいており、散策をするたびに新たな発見が待っています。伝統的な街並みと現代的な文化の交差点に位置するアーバネックス菊川 406は、まるで時を超えた美術品のように、あなたを魅了し続けます。
あなたの生活が映画のワンシーンに変わる場所、アーバネックス菊川 406で、心に浮かぶ夢を実現させてください。心地よい風が吹き抜け、豊かな毎日が待っていることでしょう。ここでの生活は、まさにアートです。あなたの感性が映し出され、日々が色鮮やかなキャンバスに変わることでしょう。出かけるときも、帰るときも、あなたの心を満たすこの特別な場所、アーバネックス菊川 406が、あなたを待っています。
アーバネックス菊川 406は、ただの住まいではありません。ここは…アーバネックス菊川 406。この名を耳にした瞬間、心の中に広がるのは、まるで映画の一幕のように美しい日常の景色です。東京都墨田区立川3-18-11というその地で、406の扉を開けると、穏やかな光が差し込み、柔らかな空気が私を迎えます。南と東の方角から注がれる陽光は、朝のコーヒーの香りとともに、心を解きほぐしてくれる特別な恩恵です。
アーバネックス菊川 406は、ただの住まいではありません。ここは、夢が現実となる舞台であり、あなたの生活の物語を紡ぐための魅惑的な空間です。間取りは2LDK、洋室は5帖と3.1帖、そしてLDKは10.9帖という贅沢な広さを持ち、心が豊かになるような居心地の良さを提供します。まるで美術館のような空間で、アートのように美しく配置された家具たちが、心のこもった毎日を演出します。
廊下に足を踏み入れた瞬間、目の前には広がるLDKの景色が待っています。広々とした空間では、家族や友人たちとともに食卓を囲み、笑い声が響き渡ることでしょう。キッチンからは、口いっぱいに広がる美味しい食事の香りが漂い、日々の生活がまるでシェフの腕にかかっているかのように感じられます。あなたの料理の腕前が、一層際立つことでしょう。この空間は、ただの「住む場所」ではなく、物語が生まれる場所なのです。
アーバネックス菊川 406には、現代的な設備が整っており、日々の生活をさらに快適にしてくれます。エレベーター、オートロック、TVモニターホンなど、先進の機能が、あなたの安全と便利さを共に支えてくれます。宅配ボックスが設置されているため、忙しい日常でも大切な荷物を受け取ることができ、ストレスが軽減されることでしょう。
周辺には墨田区の歴史的な魅力が息づいており、散策をするたびに新たな発見が待っています。伝統的な街並みと現代的な文化の交差点に位置するアーバネックス菊川 406は、まるで時を超えた美術品のように、あなたを魅了し続けます。
あなたの生活が映画のワンシーンに変わる場所、アーバネックス菊川 406で、心に浮かぶ夢を実現させてください。心地よい風が吹き抜け、豊かな毎日が待っていることでしょう。ここでの生活は、まさにアートです。あなたの感性が映し出され、日々が色鮮やかなキャンバスに変わることでしょう。出かけるときも、帰るときも、あなたの心を満たすこの特別な場所、アーバネックス菊川 406が、あなたを待っています。
バイブルスコア
バイブルスコア: 25
平均的なスコアです。
※バイブルスコア詳細はこちら
バイブルスコアとは独自のAI機械学習技術を利用した物件評価システムで、物件のおすすめ度を示します。最高得点は100点で、スコアが高いほど、よりおすすめの物件と評価されています。
写真
現在写真が登録されていません契約条件
| 賃料 | 予想金額:168,000〜188,000円程度 | 管理費 | 予想金額:13,000〜17,000円程度 |
| 礼金 | 非公開(アーカイブ) | 敷金 | 非公開(アーカイブ) |
| フリーレント | 1ヶ月 | 平米数 | 41.27㎡ |
| 間取り | 2LDK | 大型収納 | |
| 契約期間 |
| 方角 | 南 / 東 |
| 更新料 | 契約形態 | 普通賃貸借契約 | |
| 取引態様 | 媒介 | 内見状況 | 入居中 |
| 入居時期 | 入居中 | SOHO・事務所 | |
| ペット | 間取り内訳 | 洋:5 洋:3.1 LDK:10.9 | |
| キャンペーン情報・備考 | 本情報は賃料改定交渉の資料作成、収益物件の利回り試算、周辺エリアや最寄り駅の坪単価分析、次回募集開始時期の予測などにご活用いただけます。 | ||
※「どの不動産に頼めばいいのか分からない」「信頼できる営業マンの話を聞きたい」「一番親切な会社と契約したい」とお悩みの方におすすめなのが「高級賃貸バイブル」です。
高級賃貸バイブルは業界10年以上の熟練スタッフ群がお客様ファーストで対応します。
下記ボタンから、まずは無料でご相談下さい。
※内覧をご希望の際には、どうぞ物件のエントランス前にてお待ち合わせくださいませ。ご内覧後は、同じ場所でお別れとさせていただきます。お客様のご都合に合わせたスムーズなご案内を心がけておりますので、ご質問等がございましたら何なりとお申し付けください。 物件概要
| 物件名 |
| 築年月 |
|
|---|---|---|---|
| 所在地 | |||
| 交通 | |||
| 総戸数 |
| 総階数 |
|
| 構造 |
| ||
地図
物件までの道のりは、「拡大地図を表示」をクリックしてナビ機能をご利用ください。
部屋設備















建物設備

TVモニターホン

エレベーター

オートロック

バイク置場

宅配ボックス

敷地内ゴミ置場

管理人

駐車場平置き

駐車場機械式

駐輪場
アーバネックス菊川の現在募集中のお部屋
- アーバネックス菊川 301 - 間取り: 2LDK - 賃料: 20.9万円
- アーバネックス菊川 506 - 間取り: 2LDK - 賃料: 20万円
