
| 賃料 | 予想金額:170,000〜190,000円程度 | 管理費 | 予想金額:18,000〜22,000円程度 |
| 礼金/敷金 | 非公開(アーカイブ) | 平米数 | 41.27㎡ |
| 初期費用概算(参考) | 目安:268,500〜368,500 円 | みなし賃料(月額・参考) | 192,885〜212,885 円 |
| 備考 | 本ページは過去募集のアーカイブです。表示の金額は周辺相場・過去募集を踏まえた参考レンジであり、実際の契約金額・条件ではありません。 | ||
※上記みなし賃料(月額)は仲介手数料割引・無料&キャッシュバックを加味した高級賃貸バイブル限定の金額です。一般的なみなし賃料とは異なります。
【建物ページ】アーバネックス菊川の詳細・最新空室はこちら▶▶選ばれる理由
仲介手数料無料・キャンペーン情報(毎月15名様限定)
〇引っ越しお祝い金198000円プレゼント(キャッシュバック)
〇仲介手数料無料キャンペーン
アーバネックス菊川 606の口コミ・レビュー
アーバネックス菊川 606は、あなたの人生の新しい幕開けを飾る特別な場所です。この606号室は、芸術に彩られた墨田区の心の中で、静かに安らぎを求めるあなたを待っています。この地は、ただの住まいではなく、あなたの感性を豊かにする舞台となります。
その扉を開けると、まるで映画のワンシーンに迷い込んだかのように、南と東の光が優しく室内に舞い込んできます。恵まれた方角からの陽射しが、まるで黄金の粉を振り…アーバネックス菊川 606は、あなたの人生の新しい幕開けを飾る特別な場所です。この606号室は、芸術に彩られた墨田区の心の中で、静かに安らぎを求めるあなたを待っています。この地は、ただの住まいではなく、あなたの感性を豊かにする舞台となります。
その扉を開けると、まるで映画のワンシーンに迷い込んだかのように、南と東の光が優しく室内に舞い込んできます。恵まれた方角からの陽射しが、まるで黄金の粉を振り撒くように、LDK 10.9帖のスペースを包み込みます。その瞬間、あなたの心は温かさと喜びに満たされ、静寂の中にある穏やかな美しさに触れることでしょう。窓からの風は、墨田川のささやきと共に、さわやかな香りを運んできます。そこには、この街の歴史が息づいています。
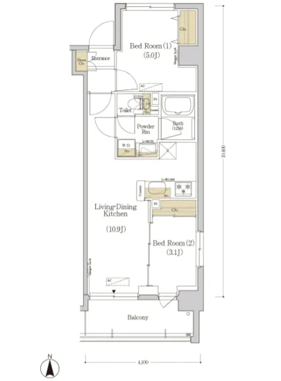
アーバネックス菊川 606の間取りは、洋室5帖と洋室3.1帖を有する2LDK。家族や友人たちとの楽しい時間を共に過ごすための空間が広がっています。洋室5帖には、心地よい布団の感触と温かい木材の香り、そして、朝のコーヒーの香ばしさが融合したひとときを想像してみてください。朝日が昇ると共に、あなたは新たなエネルギーを吸収し、一日の始まりを喜びで迎えることでしょう。
そして、この住まいに住むことで訪れる日常は、まるで絵画のような風景です。都営地下鉄新宿線 菊川駅から徒歩7分の距離にあり、この便利さは、まるで時代の最前線を駆けるあなたにふさわしい特権と言えるでしょう。近隣には、静謐な街並みと伝統の文化が調和し、散歩するたびに新たな発見が待ち受けています。地元の美術館や歴史的な名所を訪れ、五感を刺激するアートや歴史に触れてみてください。
アーバネックス菊川 606は、快適な生活を支えるための設備も整っています。オートロックで守られた空間、エレベーターの便利さ、宅配ボックスの存在は、あなたの日常をよりスムーズに、ストレスフリーにしてくれます。駐車場や駐輪場も完備されており、バイクでの冒険も楽しむことができます。
この空間には、ただの部屋以上の価値が存在します。それは、あなた自身のストーリーを紡ぐためのキャンバスなのです。アーバネックス菊川 606での生活は、あなたにとって特別なものとなり、毎日が新たな物語の始まりとなることでしょう。あなたの新しい日常が、ここでしか得られない幸せと共に広がることを、私たちは心から願っています。
その扉を開けると、まるで映画のワンシーンに迷い込んだかのように、南と東の光が優しく室内に舞い込んできます。恵まれた方角からの陽射しが、まるで黄金の粉を振り…アーバネックス菊川 606は、あなたの人生の新しい幕開けを飾る特別な場所です。この606号室は、芸術に彩られた墨田区の心の中で、静かに安らぎを求めるあなたを待っています。この地は、ただの住まいではなく、あなたの感性を豊かにする舞台となります。
その扉を開けると、まるで映画のワンシーンに迷い込んだかのように、南と東の光が優しく室内に舞い込んできます。恵まれた方角からの陽射しが、まるで黄金の粉を振り撒くように、LDK 10.9帖のスペースを包み込みます。その瞬間、あなたの心は温かさと喜びに満たされ、静寂の中にある穏やかな美しさに触れることでしょう。窓からの風は、墨田川のささやきと共に、さわやかな香りを運んできます。そこには、この街の歴史が息づいています。
アーバネックス菊川 606の間取りは、洋室5帖と洋室3.1帖を有する2LDK。家族や友人たちとの楽しい時間を共に過ごすための空間が広がっています。洋室5帖には、心地よい布団の感触と温かい木材の香り、そして、朝のコーヒーの香ばしさが融合したひとときを想像してみてください。朝日が昇ると共に、あなたは新たなエネルギーを吸収し、一日の始まりを喜びで迎えることでしょう。
そして、この住まいに住むことで訪れる日常は、まるで絵画のような風景です。都営地下鉄新宿線 菊川駅から徒歩7分の距離にあり、この便利さは、まるで時代の最前線を駆けるあなたにふさわしい特権と言えるでしょう。近隣には、静謐な街並みと伝統の文化が調和し、散歩するたびに新たな発見が待ち受けています。地元の美術館や歴史的な名所を訪れ、五感を刺激するアートや歴史に触れてみてください。
アーバネックス菊川 606は、快適な生活を支えるための設備も整っています。オートロックで守られた空間、エレベーターの便利さ、宅配ボックスの存在は、あなたの日常をよりスムーズに、ストレスフリーにしてくれます。駐車場や駐輪場も完備されており、バイクでの冒険も楽しむことができます。
この空間には、ただの部屋以上の価値が存在します。それは、あなた自身のストーリーを紡ぐためのキャンバスなのです。アーバネックス菊川 606での生活は、あなたにとって特別なものとなり、毎日が新たな物語の始まりとなることでしょう。あなたの新しい日常が、ここでしか得られない幸せと共に広がることを、私たちは心から願っています。
バイブルスコア
バイブルスコア: 33.9
平均的なスコアです。
※バイブルスコア詳細はこちら
バイブルスコアとは独自のAI機械学習技術を利用した物件評価システムで、物件のおすすめ度を示します。最高得点は100点で、スコアが高いほど、よりおすすめの物件と評価されています。
写真
現在写真が登録されていません契約条件
| 賃料 | 予想金額:170,000〜190,000円程度 | 管理費 | 予想金額:18,000〜22,000円程度 |
| 礼金 | 非公開(アーカイブ) | 敷金 | 非公開(アーカイブ) |
| フリーレント | なし | 平米数 | 41.27㎡ |
| 間取り | 2LDK | 大型収納 | なし |
| 契約期間 | 2年 | 方角 | 南 / 東 |
| 更新料 | 1ヶ月 | 契約形態 | 普通賃貸借契約 |
| 取引態様 | 媒介 | 内見状況 | 入居中 |
| 入居時期 | 入居中 | SOHO・事務所 | 不可 |
| ペット | 不可 | 間取り内訳 | 洋:5 洋:3.1 LDK:10.9 |
| キャンペーン情報・備考 | 本情報は賃料改定交渉の資料作成、収益物件の利回り試算、周辺エリアや最寄り駅の坪単価分析、次回募集開始時期の予測などにご活用いただけます。 | ||
※「どの不動産に頼めばいいのか分からない」「信頼できる営業マンの話を聞きたい」「一番親切な会社と契約したい」とお悩みの方におすすめなのが「高級賃貸バイブル」です。
高級賃貸バイブルは業界10年以上の熟練スタッフ群がお客様ファーストで対応します。
下記ボタンから、まずは無料でご相談下さい。
※内覧をご希望の際には、どうぞ物件のエントランス前にてお待ち合わせくださいませ。ご内覧後は、同じ場所でお別れとさせていただきます。お客様のご都合に合わせたスムーズなご案内を心がけておりますので、ご質問等がございましたら何なりとお申し付けください。 物件概要
| 物件名 |
| 築年月 |
|
|---|---|---|---|
| 所在地 | |||
| 交通 | |||
| 総戸数 |
| 総階数 |
|
| 構造 |
| ||
地図
物件までの道のりは、「拡大地図を表示」をクリックしてナビ機能をご利用ください。
部屋設備















建物設備

TVモニターホン

エレベーター

オートロック

バイク置場

宅配ボックス

敷地内ゴミ置場

管理人

駐車場平置き

駐車場機械式

駐輪場
アーバネックス菊川の現在募集中のお部屋
- アーバネックス菊川 301 - 間取り: 2LDK - 賃料: 20.9万円
- アーバネックス菊川 506 - 間取り: 2LDK - 賃料: 20万円
