
| 賃料 | 予想金額:97,000〜117,000円程度 | 管理費 | 予想金額:8,000〜12,000円程度 |
| 礼金/敷金 | 非公開(アーカイブ) | 平米数 | 25.2㎡ |
| 初期費用概算(参考) | 目安:0〜-82,540 円 | みなし賃料(月額・参考) | 104,239〜124,239 円 |
| 備考 | 本ページは過去募集のアーカイブです。表示の金額は周辺相場・過去募集を踏まえた参考レンジであり、実際の契約金額・条件ではありません。 | ||
※上記みなし賃料(月額)は仲介手数料割引・無料&キャッシュバックを加味した高級賃貸バイブル限定の金額です。一般的なみなし賃料とは異なります。
【建物ページ】クオリタス浅草の詳細・最新空室はこちら▶▶選ばれる理由
仲介手数料無料・キャンペーン情報(毎月15名様限定)
〇引っ越しお祝い金237540円プレゼント(キャッシュバック)
〇フリーレント2か月キャンペーン
〇仲介手数料無料キャンペーン
クオリタス浅草 704の口コミ・レビュー
クオリタス浅草 704という名の物件が、貴方に語りかけています。この特別な空間は、東京都墨田区東駒形1-13-6に佇み、東に向かって開かれた窓からは、朝日が優しく差し込み、毎日を新たに迎える準備が整っています。私の心地よい存在は、ただの部屋に留まらず、貴方の日常を豊かにしてくれる、特別な舞台なのです。
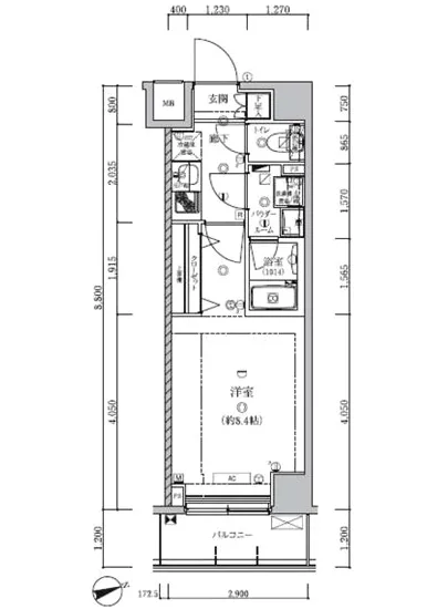
この美しいクオリタス浅草 704は、1Kという間取りで、洋室は8.4帖の広さを誇ります。その空…クオリタス浅草 704という名の物件が、貴方に語りかけています。この特別な空間は、東京都墨田区東駒形1-13-6に佇み、東に向かって開かれた窓からは、朝日が優しく差し込み、毎日を新たに迎える準備が整っています。私の心地よい存在は、ただの部屋に留まらず、貴方の日常を豊かにしてくれる、特別な舞台なのです。
この美しいクオリタス浅草 704は、1Kという間取りで、洋室は8.4帖の広さを誇ります。その空間に足を運ぶと、まず感じるのは、瞬間的に広がる自由な空気感。さまざまなインテリアやアートと共に、自分だけのスタイルを見つける楽しさを味わえるでしょう。やわらかな肌触りのカーテンを開け放つと、東の空に朝焼けが広がる瞬間、まるで映画のワンシーンのようなコントラストが目の前に広がります。朝の静寂の中で、コーヒーの豊かな香りが漂い、心地よいリズムで日常がスタートします。
さらに、クオリタス浅草 704には、最新の設備が整っています。TVモニターホンは、安心感を与え、エレベーターでの静かな上昇は、心の高鳴りを伴います。オートロックや宅配ボックスは、貴方の暮らしに安心をもたらし、管理人の存在は、まるで心強い友のように不安を和らげてくれるでしょう。敷地内に設けられたゴミ置き場は、毎日の生活をサポートし、駐車場や駐輪場は、移動の自由を約束します。
この場所は、歴史を感じる街、浅草の中でも特に文化的な香りを漂わせています。近くには雷門や仲見世通りがあり、和の文化と伝統が生き続けています。これらのスポットは、まるで過去の物語を語りかけるかのように、貴方を迎えてくれることでしょう。浅草の魅力は、観光客だけでなく、地域に住む人々にとっても、日常の一部となっているのです。
クオリタス浅草 704に住まうことは、世代を超えた文化に包まれた日常を演出することでもあります。静かな朝、優雅な午後、友人との賑やかな会話の中で、五感を刺激する豊かな生活が広がります。肌で感じる穏やかな風、耳に心地よく響く街の音、目に映る美しい景色、そして、心から味わう食文化。すべてが貴方の生活に彩りを加えるのです。
このクオリタス浅草 704で、貴方の物語を紡いでみませんか?ここでの毎日が、特別な瞬間へと変わり、人生の一部となることでしょう。高級賃貸物件としての魅力が満載のこの場所で、貴方自身の新たな章を始めることができるのです。貴方を待っています。
この美しいクオリタス浅草 704は、1Kという間取りで、洋室は8.4帖の広さを誇ります。その空…クオリタス浅草 704という名の物件が、貴方に語りかけています。この特別な空間は、東京都墨田区東駒形1-13-6に佇み、東に向かって開かれた窓からは、朝日が優しく差し込み、毎日を新たに迎える準備が整っています。私の心地よい存在は、ただの部屋に留まらず、貴方の日常を豊かにしてくれる、特別な舞台なのです。
この美しいクオリタス浅草 704は、1Kという間取りで、洋室は8.4帖の広さを誇ります。その空間に足を運ぶと、まず感じるのは、瞬間的に広がる自由な空気感。さまざまなインテリアやアートと共に、自分だけのスタイルを見つける楽しさを味わえるでしょう。やわらかな肌触りのカーテンを開け放つと、東の空に朝焼けが広がる瞬間、まるで映画のワンシーンのようなコントラストが目の前に広がります。朝の静寂の中で、コーヒーの豊かな香りが漂い、心地よいリズムで日常がスタートします。
さらに、クオリタス浅草 704には、最新の設備が整っています。TVモニターホンは、安心感を与え、エレベーターでの静かな上昇は、心の高鳴りを伴います。オートロックや宅配ボックスは、貴方の暮らしに安心をもたらし、管理人の存在は、まるで心強い友のように不安を和らげてくれるでしょう。敷地内に設けられたゴミ置き場は、毎日の生活をサポートし、駐車場や駐輪場は、移動の自由を約束します。
この場所は、歴史を感じる街、浅草の中でも特に文化的な香りを漂わせています。近くには雷門や仲見世通りがあり、和の文化と伝統が生き続けています。これらのスポットは、まるで過去の物語を語りかけるかのように、貴方を迎えてくれることでしょう。浅草の魅力は、観光客だけでなく、地域に住む人々にとっても、日常の一部となっているのです。
クオリタス浅草 704に住まうことは、世代を超えた文化に包まれた日常を演出することでもあります。静かな朝、優雅な午後、友人との賑やかな会話の中で、五感を刺激する豊かな生活が広がります。肌で感じる穏やかな風、耳に心地よく響く街の音、目に映る美しい景色、そして、心から味わう食文化。すべてが貴方の生活に彩りを加えるのです。
このクオリタス浅草 704で、貴方の物語を紡いでみませんか?ここでの毎日が、特別な瞬間へと変わり、人生の一部となることでしょう。高級賃貸物件としての魅力が満載のこの場所で、貴方自身の新たな章を始めることができるのです。貴方を待っています。
バイブルスコア
バイブルスコア: 24.2
平均的なスコアです。
※バイブルスコア詳細はこちら
バイブルスコアとは独自のAI機械学習技術を利用した物件評価システムで、物件のおすすめ度を示します。最高得点は100点で、スコアが高いほど、よりおすすめの物件と評価されています。
写真
契約条件
| 賃料 | 予想金額:97,000〜117,000円程度 | 管理費 | 予想金額:8,000〜12,000円程度 |
| 礼金 | 非公開(アーカイブ) | 敷金 | 非公開(アーカイブ) |
| フリーレント | 2.0ヶ月 | 平米数 | 25.2㎡ |
| 間取り | 1K | 大型収納 | |
| 契約期間 |
| 方角 | 東 |
| 更新料 | 契約形態 | 普通賃貸借契約 | |
| 取引態様 | 媒介 | 内見状況 | 入居中 |
| 入居時期 | 入居中 | SOHO・事務所 | |
| ペット | ペット可 | 間取り内訳 | 洋:8.4 |
| キャンペーン情報・備考 | 本情報は賃料改定交渉の資料作成、収益物件の利回り試算、周辺エリアや最寄り駅の坪単価分析、次回募集開始時期の予測などにご活用いただけます。 | ||
※「どの不動産に頼めばいいのか分からない」「信頼できる営業マンの話を聞きたい」「一番親切な会社と契約したい」とお悩みの方におすすめなのが「高級賃貸バイブル」です。
高級賃貸バイブルは業界10年以上の熟練スタッフ群がお客様ファーストで対応します。
下記ボタンから、まずは無料でご相談下さい。
※内覧をご希望の際には、どうぞ物件のエントランス前にてお待ち合わせくださいませ。ご内覧後は、同じ場所でお別れとさせていただきます。お客様のご都合に合わせたスムーズなご案内を心がけておりますので、ご質問等がございましたら何なりとお申し付けください。 物件概要
| 物件名 |
| 築年月 |
|
|---|---|---|---|
| 所在地 | |||
| 交通 | |||
| 総戸数 |
| 総階数 |
|
| 構造 |
| ||
地図
物件までの道のりは、「拡大地図を表示」をクリックしてナビ機能をご利用ください。
部屋設備













建物設備

TVモニターホン

エレベーター

オートロック

宅配ボックス

敷地内ゴミ置場

管理人

駐車場平置き

駐輪場
クオリタス浅草の現在募集中のお部屋
- QUALITAS浅草 (クオリタス浅草) 402 - 間取り: 1LDK+WIC+SIC - 賃料: 18.3万円



