
| 賃料 | 予想金額:98,000〜118,000円程度 | 管理費 | 予想金額:8,000〜12,000円程度 |
| 礼金/敷金 | 非公開(アーカイブ) | 平米数 | 25.15㎡ |
| 初期費用概算(参考) | 目安:142,000〜242,000 円 | みなし賃料(月額・参考) | 109,750〜129,750 円 |
| 備考 | 本ページは過去募集のアーカイブです。表示の金額は周辺相場・過去募集を踏まえた参考レンジであり、実際の契約金額・条件ではありません。 | ||
※上記みなし賃料(月額)は仲介手数料割引・無料&キャッシュバックを加味した高級賃貸バイブル限定の金額です。一般的なみなし賃料とは異なります。
【建物ページ】クオリタス浅草の詳細・最新空室はこちら▶▶選ばれる理由
仲介手数料無料・キャンペーン情報(毎月15名様限定)
〇引っ越しお祝い金5000円プレゼント(キャッシュバック)
〇仲介手数料無料キャンペーン
QUALITAS浅草 (クオリタス浅草) 401の口コミ・レビュー
玄関を入ると、まず触れることのできる感触は、滑らかなフローリングの心地よさです…QUALITAS浅草 (クオリタス浅草) 401の扉を開けると、まるで別世界への入り口が現れます。この美しい物件は、東京都墨田区東駒形1-13-6に位置し、南向きの窓からは柔らかな日差しが差し込み、居住空間を温かい光で包み込むかのようです。401号室の中は、まるで珍しいアート作品のように、あなたを迎え入れてくれます。
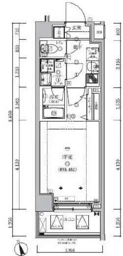
玄関を入ると、まず触れることのできる感触は、滑らかなフローリングの心地よさです。足元からじわじわと広がる温かみを感じながら、空間を進むと、広がるのは心が解き放たれるような、洋室8.41帖の優雅な空間です。天井高く広がるこの部屋は、一瞬であなたを別世界へと誘います。ここには、あなた自身の物語が息づくのです。
窓の外からは、浅草の街の息遣いが感じられ、歴史と文化が共存するこの地域の豊かな香りが漂ってきます。東京メトロ銀座線浅草駅から徒歩7分という立地は、訪れる人々にその醍醐味を伝え、活気あふれる街の中心にいながら、静かな居場所を提供してくれます。
QUALITAS浅草 (クオリタス浅草) 401では、住むことがひとつのアートとなります。TVモニターホンやオートロック、宅配ボックスなど、現代の生活に欠かせない便利な設備が整っていますが、それ以上に心を豊かにするものがここにはあります。管理人の温かいまなざしや、エレベーターで上がった先の美しい眺望が、日常を特別なものに変えてくれるのです。
この家では、朝の光と共に新しい一日が始まります。お気に入りのコーヒーを淹れ、香り高い蒸気が漂うキッチンで料理を楽しむ。洋室の広々とした空間に、あなたのセンスで飾られたインテリアが映え、心地よい音楽が空間を満たす。その瞬間、まさに映画のワンシーンのように、日常が愛おしく感じられます。
また、周辺の文化や芸術との密接な繋がりも、この地の魅力の一部です。伝統的な浅草寺や、現代的なアートが感じられるスポットまで、徒歩圏内で楽しめるのは、まさに都会の利便性と自然の和みを同時に味わえる特権です。夕暮れ時、街の灯りがともり始めた頃、堅実な日常を背負いながらも、その背後には美しい景色が広がり、感慨深い瞬間をもたらしてくれるでしょう。
QUALITAS浅草 (クオリタス浅草) 401は、ただの住まいではありません。それは、あなたの人生の舞台であり、新たなストーリーを紡ぐための空間です。ここでの生活は、まさに住み心地の良さと、美しい景色が織り成す、あなたの特別な日常を描くキャンパスとなるのです。この物件に宿ることは、ただの生活ではなく、芸術であり、感動の連続をもたらす素敵な体験となることでしょう。あなたの新しい物語を、ここから始めてみませんか。
バイブルスコア
バイブルスコア: 55.6
条件のいい物件です、引っ越しが2か月以内の場合は仮申し込みを検討すべき物件です。
このお部屋は、現在ご入居中のため空室情報はございません。ただし、将来的に募集が開始される際、バイブルスコアにおいて非常に高い評価が期待されます。特にご興味をお持ちの方は、今のうちにブックマークやお気に入りに登録していただくと、募集開始のお知らせをすぐに受け取ることができます。是非ともご検討くださいませ。
※バイブルスコア詳細はこちら
バイブルスコアとは独自のAI機械学習技術を利用した物件評価システムで、物件のおすすめ度を示します。最高得点は100点で、スコアが高いほど、よりおすすめの物件と評価されています。
写真
契約条件
| 賃料 | 予想金額:98,000〜118,000円程度 | 管理費 | 予想金額:8,000〜12,000円程度 |
| 礼金 | 非公開(アーカイブ) | 敷金 | 非公開(アーカイブ) |
| フリーレント | なし | 平米数 | 25.15㎡ |
| 間取り | 1K | 大型収納 | なし |
| 契約期間 | 2年 | 方角 | 南 |
| 更新料 | 1ヶ月 | 契約形態 | 普通賃貸借契約 |
| 取引態様 | 媒介 | 内見状況 | 入居中 |
| 入居時期 | 入居中 | SOHO・事務所 | 不可 |
| ペット | 可 | 間取り内訳 | 洋室8.41帖 |
| キャンペーン情報・備考 | 本情報は賃料改定交渉の資料作成、収益物件の利回り試算、周辺エリアや最寄り駅の坪単価分析、次回募集開始時期の予測などにご活用いただけます。 | ||
※「どの不動産に頼めばいいのか分からない」「信頼できる営業マンの話を聞きたい」「一番親切な会社と契約したい」とお悩みの方におすすめなのが「高級賃貸バイブル」です。
高級賃貸バイブルは業界10年以上の熟練スタッフ群がお客様ファーストで対応します。
下記ボタンから、まずは無料でご相談下さい。
※内覧をご希望の際には、どうぞ物件のエントランス前にてお待ち合わせくださいませ。ご内覧後は、同じ場所でお別れとさせていただきます。お客様のご都合に合わせたスムーズなご案内を心がけておりますので、ご質問等がございましたら何なりとお申し付けください。 物件概要
| 物件名 |
| 築年月 |
|
|---|---|---|---|
| 所在地 | |||
| 交通 | |||
| 総戸数 |
| 総階数 |
|
| 構造 |
| ||
地図
物件までの道のりは、「拡大地図を表示」をクリックしてナビ機能をご利用ください。
部屋設備









建物設備

TVモニターホン

エレベーター

オートロック

宅配ボックス

敷地内ゴミ置場

管理人

駐車場平置き

駐輪場
クオリタス浅草の現在募集中のお部屋
- QUALITAS浅草 (クオリタス浅草) 402 - 間取り: 1LDK+WIC+SIC - 賃料: 18.3万円



