
| 賃料 | 予想金額:155,000〜175,000円程度 | 管理費 | 予想金額:13,000〜17,000円程度 |
| 礼金/敷金 | 非公開(アーカイブ) | 平米数 | 45.75㎡ |
| 初期費用概算(参考) | 目安:641,500〜741,500 円 | みなし賃料(月額・参考) | 180,969〜200,969 円 |
| 備考 | 本ページは過去募集のアーカイブです。表示の金額は周辺相場・過去募集を踏まえた参考レンジであり、実際の契約金額・条件ではありません。 | ||
※上記みなし賃料(月額)は仲介手数料割引・無料&キャッシュバックを加味した高級賃貸バイブル限定の金額です。一般的なみなし賃料とは異なります。
【建物ページ】パークアクシス押上レジデンスの詳細・最新空室はこちら▶▶選ばれる理由
仲介手数料無料・キャンペーン情報(毎月15名様限定)
〇仲介手数料割引キャンペーン
パークアクシス押上レジデンス 405の口コミ・レビュー
パークアクシス押上レジデンス 405。この美しい名を持つ住まいは、東京都墨田区向島に佇み、あなたの新しい物語の舞台を提供いたします。405という数字は、まるで特別なセレモニーの始まりを告げるように、上層階からの眺望が運ぶ感動の瞬間を予感させます。南西と北西の2つの方角から、朝の日差しや夕焼けが優しく室内を包み込み、日々の何気ない一瞬を特別なものへと変えてくれることでしょう。
この2DKの間取りは…パークアクシス押上レジデンス 405。この美しい名を持つ住まいは、東京都墨田区向島に佇み、あなたの新しい物語の舞台を提供いたします。405という数字は、まるで特別なセレモニーの始まりを告げるように、上層階からの眺望が運ぶ感動の瞬間を予感させます。南西と北西の2つの方角から、朝の日差しや夕焼けが優しく室内を包み込み、日々の何気ない一瞬を特別なものへと変えてくれることでしょう。
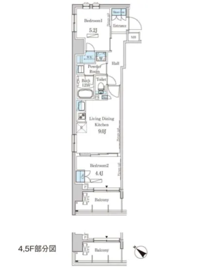
この2DKの間取りは、まるで二つの心が寄り添うかのように、洋室5.2帖と洋室4.4帖がそれぞれの個性を大切にしながら、共に心地よい住空間を形成しています。どちらの部屋も、あなたの感性を刺激するアートと同じように、自然光を取り込んで生き生きとしています。特に、DK9帖のスペースは、料理の煙がふわりと漂い、あなたの手から生まれる料理の香りが、まるでハーモニーを奏でるように広がります。この場所では、友人たちを招いて共に食卓を囲む楽しみや、静かな午後に一人で読書を楽しむ時間が、映画のワンシーンのように色彩豊かに広がります。
パークアクシス押上レジデンス 405は、まさに五感の宝庫です。耳を澄ませば、周囲の街の活気や、時折感じる風のざわめき、そして遠くから聞こえるカラスの鳴き声が、自然との調和を感じさせます。鼻をくすぐる夕暮れ時の空気は、近くの公園や歴史的な名所から漂う香りと交じり合い、まさにこの地に根差した生活が息づいていることを実感させてくれます。また、パークアクシス押上レジデンス 405の窓から見える景色は、日々のストーリーに彩りを添えてくれることでしょう。
歴史と文化が交錯する墨田区での生活は、ただの賃貸生活ではありません。歩を進めれば、隅田川の流れやスカイツリーの壮大な姿が目に飛び込み、周囲にはアートの香りが漂うギャラリーや、心温まる地元の食材を使った飲食店が点在しています。まるで名画のように、生活の中で自然と触れ合い、新しい発見を楽しむ。それがパークアクシス押上レジデンス 405での暮らしの魅力なのです。
この高級賃貸物件は、あなたのライフスタイルを豊かにするための舞台装置であり、毎日を特別なものにするためのパートナーです。日々の生活を振り返りながら、パークアクシス押上レジデンス 405で、心の中に眠るアーティスティックな感性を引き出してみませんか?あなたの暮らしが、まるで一篇の詩のように美しく、記憶に残るものとなることでしょう。
この2DKの間取りは…パークアクシス押上レジデンス 405。この美しい名を持つ住まいは、東京都墨田区向島に佇み、あなたの新しい物語の舞台を提供いたします。405という数字は、まるで特別なセレモニーの始まりを告げるように、上層階からの眺望が運ぶ感動の瞬間を予感させます。南西と北西の2つの方角から、朝の日差しや夕焼けが優しく室内を包み込み、日々の何気ない一瞬を特別なものへと変えてくれることでしょう。
この2DKの間取りは、まるで二つの心が寄り添うかのように、洋室5.2帖と洋室4.4帖がそれぞれの個性を大切にしながら、共に心地よい住空間を形成しています。どちらの部屋も、あなたの感性を刺激するアートと同じように、自然光を取り込んで生き生きとしています。特に、DK9帖のスペースは、料理の煙がふわりと漂い、あなたの手から生まれる料理の香りが、まるでハーモニーを奏でるように広がります。この場所では、友人たちを招いて共に食卓を囲む楽しみや、静かな午後に一人で読書を楽しむ時間が、映画のワンシーンのように色彩豊かに広がります。
パークアクシス押上レジデンス 405は、まさに五感の宝庫です。耳を澄ませば、周囲の街の活気や、時折感じる風のざわめき、そして遠くから聞こえるカラスの鳴き声が、自然との調和を感じさせます。鼻をくすぐる夕暮れ時の空気は、近くの公園や歴史的な名所から漂う香りと交じり合い、まさにこの地に根差した生活が息づいていることを実感させてくれます。また、パークアクシス押上レジデンス 405の窓から見える景色は、日々のストーリーに彩りを添えてくれることでしょう。
歴史と文化が交錯する墨田区での生活は、ただの賃貸生活ではありません。歩を進めれば、隅田川の流れやスカイツリーの壮大な姿が目に飛び込み、周囲にはアートの香りが漂うギャラリーや、心温まる地元の食材を使った飲食店が点在しています。まるで名画のように、生活の中で自然と触れ合い、新しい発見を楽しむ。それがパークアクシス押上レジデンス 405での暮らしの魅力なのです。
この高級賃貸物件は、あなたのライフスタイルを豊かにするための舞台装置であり、毎日を特別なものにするためのパートナーです。日々の生活を振り返りながら、パークアクシス押上レジデンス 405で、心の中に眠るアーティスティックな感性を引き出してみませんか?あなたの暮らしが、まるで一篇の詩のように美しく、記憶に残るものとなることでしょう。
バイブルスコア
バイブルスコア: 36.8
平均的なスコアです。
※バイブルスコア詳細はこちら
バイブルスコアとは独自のAI機械学習技術を利用した物件評価システムで、物件のおすすめ度を示します。最高得点は100点で、スコアが高いほど、よりおすすめの物件と評価されています。
写真
契約条件
| 賃料 | 予想金額:155,000〜175,000円程度 | 管理費 | 予想金額:13,000〜17,000円程度 |
| 礼金 | 非公開(アーカイブ) | 敷金 | 非公開(アーカイブ) |
| フリーレント | なし | 平米数 | 45.75㎡ |
| 間取り | 2DK | 大型収納 | WIC |
| 契約期間 |
| 方角 | 南西 / 北西 |
| 更新料 | 契約形態 | 普通賃貸借契約 | |
| 取引態様 | 媒介 | 内見状況 | 入居中 |
| 入居時期 | 入居中 | SOHO・事務所 | |
| ペット | ペット可 | 間取り内訳 | 洋:5.2 洋:4.4 DK:9 |
| キャンペーン情報・備考 | 本情報は賃料改定交渉の資料作成、収益物件の利回り試算、周辺エリアや最寄り駅の坪単価分析、次回募集開始時期の予測などにご活用いただけます。 | ||
※「どの不動産に頼めばいいのか分からない」「信頼できる営業マンの話を聞きたい」「一番親切な会社と契約したい」とお悩みの方におすすめなのが「高級賃貸バイブル」です。
高級賃貸バイブルは業界10年以上の熟練スタッフ群がお客様ファーストで対応します。
下記ボタンから、まずは無料でご相談下さい。
※内覧をご希望の際には、どうぞ物件のエントランス前にてお待ち合わせくださいませ。ご内覧後は、同じ場所でお別れとさせていただきます。お客様のご都合に合わせたスムーズなご案内を心がけておりますので、ご質問等がございましたら何なりとお申し付けください。 物件概要
| 物件名 |
| 築年月 |
|
|---|---|---|---|
| 所在地 | |||
| 交通 |
| ||
| 総戸数 |
| 総階数 |
|
| 構造 |
| ||
地図
物件までの道のりは、「拡大地図を表示」をクリックしてナビ機能をご利用ください。
部屋設備


















建物設備

TVモニターホン

エレベーター

オートロック

バイク置場

宅配ボックス

敷地内ゴミ置場

管理人

駐車場平置き

駐車場機械式

駐輪場
パークアクシス押上レジデンスの現在募集中のお部屋
- No rooms found for this property.






