
| 賃料 | 予想金額:155,000〜175,000円程度 | 管理費 | 予想金額:13,000〜17,000円程度 |
| 礼金/敷金 | 非公開(アーカイブ) | 平米数 | 45.75㎡ |
| 初期費用概算(参考) | 目安:220,200〜320,200 円 | みなし賃料(月額・参考) | 175,629〜195,629 円 |
| 備考 | 本ページは過去募集のアーカイブです。表示の金額は周辺相場・過去募集を踏まえた参考レンジであり、実際の契約金額・条件ではありません。 | ||
※上記みなし賃料(月額)は仲介手数料割引・無料&キャッシュバックを加味した高級賃貸バイブル限定の金額です。一般的なみなし賃料とは異なります。
【建物ページ】パークアクシス押上レジデンスの詳細・最新空室はこちら▶▶選ばれる理由
仲介手数料無料・キャンペーン情報(毎月15名様限定)
〇引っ越しお祝い金201300円プレゼント(キャッシュバック)
〇フリーレント1か月キャンペーン
〇仲介手数料無料キャンペーン
パークアクシス押上レジデンス 605の口コミ・レビュー
パークアクシス押上レジデンス 605。この名を呼ぶだけで、心が高揚する感覚を覚える方も多いのではないでしょうか。東京の中心で、静寂と活気が交錯する場所に生まれたこの住まいは、まさにあなたの日常を芸術作品へと昇華させるための舞台です。
605号室は、まるで時代を超越した美術館の一角のように、洗練されたデザインと機能性が調和しています。専有面積は45.75㎡。その空間は、思わず触れたくなるような温か…パークアクシス押上レジデンス 605。この名を呼ぶだけで、心が高揚する感覚を覚える方も多いのではないでしょうか。東京の中心で、静寂と活気が交錯する場所に生まれたこの住まいは、まさにあなたの日常を芸術作品へと昇華させるための舞台です。
605号室は、まるで時代を超越した美術館の一角のように、洗練されたデザインと機能性が調和しています。専有面積は45.75㎡。その空間は、思わず触れたくなるような温かみを持ち、あなたの大切な時間を大切に育んでくれることでしょう。陽の光が南西と北西の両方から優しく差し込む様は、朝の目覚めを祝福し、夜には幻想的な景色を演出します。
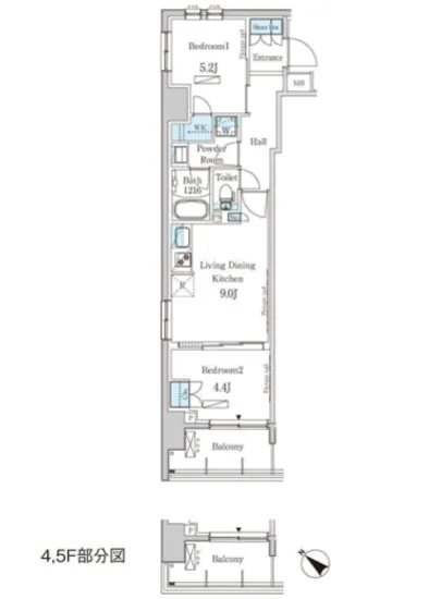
住まう人に媚びることなく、その存在感を誇るパークアクシス押上レジデンス 605は、おしゃれなインテリアと共に、まるで人生の映画の主人公になったかのような感覚を味わわせてくれることでしょう。心を落ち着ける洋室5.2帖、親しみやすい洋室4.4帖、そして創造力を羽ばたかせるDK9帖のすべてが、あなたのインスピレーションの源となります。
毎朝、窓を開ければ、香ばしいコーヒーの香りが漂い、城下町の風情ある街並みが目の前に広がります。美しい墨田川のせせらぎに耳を澄ませば、その音はまるでシンフォニーのように心を和ませ、日々の疲れを癒してくれることでしょう。また、周辺には伝統的な文化が息づく場所が点在し、歴史的な趣を感じながら散策するのも一つの楽しみです。押上の町が誇るスカイツリーを見上げる時には、未来の希望が満ち溢れているように感じられることでしょう。
この高級賃貸物件は、ただの住まいではありません。ここに暮らすということは、まるで自分自身の物語を紡いでいくようなもの。毎日の生活が、まるで映画のワンシーンのように楽しめる環境が整っています。オートロックシステムや宅配ボックス、バイク置場など、現代の生活に必要不可欠な設備も完備されており、利便性に長けた環境があなたの生活をサポートします。
パークアクシス押上レジデンス 605での生活は、ただの快適さを越え、あなた自身が創造するライフスタイルを豊かに彩るためのキャンバスとなるでしょう。この住まいが、あなたの心の拠り所となり、未来へと続く旅路の始まりを告げることを、心より願っております。あなたの訪れを、心からお待ちしています。
605号室は、まるで時代を超越した美術館の一角のように、洗練されたデザインと機能性が調和しています。専有面積は45.75㎡。その空間は、思わず触れたくなるような温か…パークアクシス押上レジデンス 605。この名を呼ぶだけで、心が高揚する感覚を覚える方も多いのではないでしょうか。東京の中心で、静寂と活気が交錯する場所に生まれたこの住まいは、まさにあなたの日常を芸術作品へと昇華させるための舞台です。
605号室は、まるで時代を超越した美術館の一角のように、洗練されたデザインと機能性が調和しています。専有面積は45.75㎡。その空間は、思わず触れたくなるような温かみを持ち、あなたの大切な時間を大切に育んでくれることでしょう。陽の光が南西と北西の両方から優しく差し込む様は、朝の目覚めを祝福し、夜には幻想的な景色を演出します。
住まう人に媚びることなく、その存在感を誇るパークアクシス押上レジデンス 605は、おしゃれなインテリアと共に、まるで人生の映画の主人公になったかのような感覚を味わわせてくれることでしょう。心を落ち着ける洋室5.2帖、親しみやすい洋室4.4帖、そして創造力を羽ばたかせるDK9帖のすべてが、あなたのインスピレーションの源となります。
毎朝、窓を開ければ、香ばしいコーヒーの香りが漂い、城下町の風情ある街並みが目の前に広がります。美しい墨田川のせせらぎに耳を澄ませば、その音はまるでシンフォニーのように心を和ませ、日々の疲れを癒してくれることでしょう。また、周辺には伝統的な文化が息づく場所が点在し、歴史的な趣を感じながら散策するのも一つの楽しみです。押上の町が誇るスカイツリーを見上げる時には、未来の希望が満ち溢れているように感じられることでしょう。
この高級賃貸物件は、ただの住まいではありません。ここに暮らすということは、まるで自分自身の物語を紡いでいくようなもの。毎日の生活が、まるで映画のワンシーンのように楽しめる環境が整っています。オートロックシステムや宅配ボックス、バイク置場など、現代の生活に必要不可欠な設備も完備されており、利便性に長けた環境があなたの生活をサポートします。
パークアクシス押上レジデンス 605での生活は、ただの快適さを越え、あなた自身が創造するライフスタイルを豊かに彩るためのキャンバスとなるでしょう。この住まいが、あなたの心の拠り所となり、未来へと続く旅路の始まりを告げることを、心より願っております。あなたの訪れを、心からお待ちしています。
バイブルスコア
バイブルスコア: 36.8
平均的なスコアです。
※バイブルスコア詳細はこちら
バイブルスコアとは独自のAI機械学習技術を利用した物件評価システムで、物件のおすすめ度を示します。最高得点は100点で、スコアが高いほど、よりおすすめの物件と評価されています。
写真
契約条件
| 賃料 | 予想金額:155,000〜175,000円程度 | 管理費 | 予想金額:13,000〜17,000円程度 |
| 礼金 | 非公開(アーカイブ) | 敷金 | 非公開(アーカイブ) |
| フリーレント | 1ヶ月 | 平米数 | 45.75㎡ |
| 間取り | 2DK | 大型収納 | WIC |
| 契約期間 |
| 方角 | 南西 / 北西 |
| 更新料 | 契約形態 | 普通賃貸借契約 | |
| 取引態様 | 媒介 | 内見状況 | 入居中 |
| 入居時期 | 入居中 | SOHO・事務所 | |
| ペット | ペット可 | 間取り内訳 | 洋:5.2 洋:4.4 DK:9 |
| キャンペーン情報・備考 | 本情報は賃料改定交渉の資料作成、収益物件の利回り試算、周辺エリアや最寄り駅の坪単価分析、次回募集開始時期の予測などにご活用いただけます。 | ||
※「どの不動産に頼めばいいのか分からない」「信頼できる営業マンの話を聞きたい」「一番親切な会社と契約したい」とお悩みの方におすすめなのが「高級賃貸バイブル」です。
高級賃貸バイブルは業界10年以上の熟練スタッフ群がお客様ファーストで対応します。
下記ボタンから、まずは無料でご相談下さい。
※内覧をご希望の際には、どうぞ物件のエントランス前にてお待ち合わせくださいませ。ご内覧後は、同じ場所でお別れとさせていただきます。お客様のご都合に合わせたスムーズなご案内を心がけておりますので、ご質問等がございましたら何なりとお申し付けください。 物件概要
| 物件名 |
| 築年月 |
|
|---|---|---|---|
| 所在地 | |||
| 交通 |
| ||
| 総戸数 |
| 総階数 |
|
| 構造 |
| ||
地図
物件までの道のりは、「拡大地図を表示」をクリックしてナビ機能をご利用ください。
部屋設備


















建物設備

TVモニターホン

エレベーター

オートロック

バイク置場

宅配ボックス

敷地内ゴミ置場

管理人

駐車場平置き

駐車場機械式

駐輪場
パークアクシス押上レジデンスの現在募集中のお部屋
- No rooms found for this property.






