
| 賃料 | 予想金額:185,000〜205,000円程度 | 管理費 | 予想金額:13,000〜17,000円程度 |
| 礼金/敷金 | 非公開(アーカイブ) | 平米数 | 50.34㎡ |
| 初期費用概算(参考) | 目安:562,800〜662,800 円 | みなし賃料(月額・参考) | 208,704〜228,704 円 |
| 備考 | 本ページは過去募集のアーカイブです。表示の金額は周辺相場・過去募集を踏まえた参考レンジであり、実際の契約金額・条件ではありません。 | ||
※上記みなし賃料(月額)は仲介手数料割引・無料&キャッシュバックを加味した高級賃貸バイブル限定の金額です。一般的なみなし賃料とは異なります。
【建物ページ】パークアクシス押上レジデンスの詳細・最新空室はこちら▶▶選ばれる理由
仲介手数料無料・キャンペーン情報(毎月15名様限定)
〇引っ越しお祝い金128700円プレゼント(キャッシュバック)
〇仲介手数料無料キャンペーン
パークアクシス押上レジデンス 708の口コミ・レビュー
南西に向かうこの住まいは、日々の暮らしに光をもたらす太…パークアクシス押上レジデンス 708。この名前はただの物件を超え、生活の舞台となる素敵な場所を意味しています。ここに息づくのは、洗練されたデザインと心地よい空間、そしてあなたの新しい物語の始まりです。708号室の扉を開けるその瞬間、広がるのは贅沢な50.34㎡の世界。まるで貴族の館に足を踏み入れたかのような心地よさが、あなたを包み込みます。
南西に向かうこの住まいは、日々の暮らしに光をもたらす太陽の恩恵を受けています。それぞれの部屋、特にLDK11.2帖は、穏やかな陽射しを受け止め、あなたを優しく迎えてくれることでしょう。特に、朝の光が窓から差し込む瞬間、コーヒーの香りに包まれながら、心地よい音楽が響くそのシーンは、まるで映画のワンシーンのようです。
この物件の魅力は、居住空間だけに留まりません。エレベーターでスムーズにアクセスでき、オートロックが施された安心感は、まるで堅牢な城のよう。宅配ボックスの存在は、あなたの生活に更なる利便性をもたらし、バイク置場や駐車場も完備されているため、自由で快適な移動が約束された生活が待っています。
周囲の環境もまた、あなたの五感を刺激することでしょう。墨田区向島は、歴史と文化の香り立つ場所。近くにはアートの息吹を感じさせる施設や、江戸時代の風情を残した街並みが広がり、散策をするだけで心が豊かになります。特に、押上からはスカイツリーを仰ぎ見ながら、心を高揚させることができるスポットが多く存在します。日の出や夕暮れ時の美しい景色は、あなたの心をときめかせることでしょう。
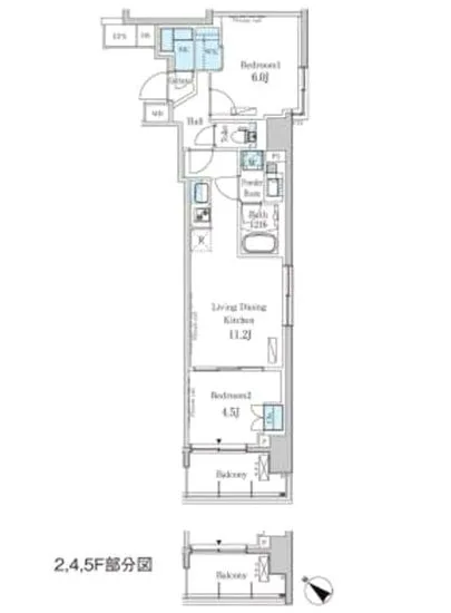
各部屋はそれぞれ異なる個性を持つ、まるで家族のように寄り添っています。洋室6帖は、あなたのプライベート空間を大切に守り、洋室4.5帖は、ゲストルームや書斎としての役割を果たします。どちらも安らぎと静寂を提供してくれる大切な場所です。あなたの手で彩られていく、そんな未来が描かれることでしょう。
住まいでの生活は、ただの居住空間を超え、心の豊かさを追求するための舞台であるべきです。パークアクシス押上レジデンス 708での暮らしは、自分自身を探求し、自分だけの物語を紡いでいくことができる特別な場所です。ここに住むことで、あなたの日常がどれだけ特別なものになるか、一度想像してみてください。美しい生活が、ここから始まるのです。
バイブルスコア
バイブルスコア: 51.7
条件のいい物件です、引っ越しが2か月以内の場合は仮申し込みを検討すべき物件です。
このお部屋は、現在ご入居中のため空室情報はございません。ただし、将来的に募集が開始される際、バイブルスコアにおいて非常に高い評価が期待されます。特にご興味をお持ちの方は、今のうちにブックマークやお気に入りに登録していただくと、募集開始のお知らせをすぐに受け取ることができます。是非ともご検討くださいませ。
※バイブルスコア詳細はこちら
バイブルスコアとは独自のAI機械学習技術を利用した物件評価システムで、物件のおすすめ度を示します。最高得点は100点で、スコアが高いほど、よりおすすめの物件と評価されています。
写真
契約条件
| 賃料 | 予想金額:185,000〜205,000円程度 | 管理費 | 予想金額:13,000〜17,000円程度 |
| 礼金 | 非公開(アーカイブ) | 敷金 | 非公開(アーカイブ) |
| フリーレント | なし | 平米数 | 50.34㎡ |
| 間取り | 2LDK | 大型収納 | WIC+SIC |
| 契約期間 | 2年 | 方角 | 南西 |
| 更新料 | 1ヶ月 | 契約形態 | 普通賃貸借契約 |
| 取引態様 | 媒介 | 内見状況 | 入居中 |
| 入居時期 | 入居中 | SOHO・事務所 | |
| ペット | ペット可 | 間取り内訳 | 洋:6 洋:4.5 LDK:11.2 |
| キャンペーン情報・備考 | 本情報は賃料改定交渉の資料作成、収益物件の利回り試算、周辺エリアや最寄り駅の坪単価分析、次回募集開始時期の予測などにご活用いただけます。 | ||
※「どの不動産に頼めばいいのか分からない」「信頼できる営業マンの話を聞きたい」「一番親切な会社と契約したい」とお悩みの方におすすめなのが「高級賃貸バイブル」です。
高級賃貸バイブルは業界10年以上の熟練スタッフ群がお客様ファーストで対応します。
下記ボタンから、まずは無料でご相談下さい。
※内覧をご希望の際には、どうぞ物件のエントランス前にてお待ち合わせくださいませ。ご内覧後は、同じ場所でお別れとさせていただきます。お客様のご都合に合わせたスムーズなご案内を心がけておりますので、ご質問等がございましたら何なりとお申し付けください。 物件概要
| 物件名 |
| 築年月 |
|
|---|---|---|---|
| 所在地 | |||
| 交通 |
| ||
| 総戸数 |
| 総階数 |
|
| 構造 |
| ||
地図
物件までの道のりは、「拡大地図を表示」をクリックしてナビ機能をご利用ください。
部屋設備



















建物設備

TVモニターホン

エレベーター

オートロック

バイク置場

宅配ボックス

敷地内ゴミ置場

管理人

駐車場平置き

駐車場機械式

駐輪場
パークアクシス押上レジデンスの現在募集中のお部屋
- No rooms found for this property.






