
| 賃料 | 予想金額:167,000〜187,000円程度 | 管理費 | 予想金額:13,000〜17,000円程度 |
| 礼金/敷金 | 非公開(アーカイブ) | 平米数 | 45.08㎡ |
| 初期費用概算(参考) | 目安:506,500〜606,500 円 | みなし賃料(月額・参考) | 189,906〜209,906 円 |
| 備考 | 本ページは過去募集のアーカイブです。表示の金額は周辺相場・過去募集を踏まえた参考レンジであり、実際の契約金額・条件ではありません。 | ||
※上記みなし賃料(月額)は仲介手数料割引・無料&キャッシュバックを加味した高級賃貸バイブル限定の金額です。一般的なみなし賃料とは異なります。
【建物ページ】パークアクシス錦糸町ウエストの詳細・最新空室はこちら▶▶選ばれる理由
仲介手数料無料・キャンペーン情報(毎月15名様限定)
〇仲介手数料割引キャンペーン
パークアクシス錦糸町ウエスト 301の口コミ・レビュー
パークアクシス錦糸町ウエスト 301、私の名を聞いたその瞬間から、あなたの生活は一変することでしょう。301号室は、まるで都会の喧騒から一歩離れたオアシスのように、穏やかな安らぎを提供する空間です。東京都墨田区緑4-4-5という恵まれたロケーションに位置するこの物件は、あなたを包み込むような温かさに満ちています。
南と西の陽射しが降り注ぎ、朝は柔らかな光で目覚め、夕暮れには黄金色に染まる窓の外、…パークアクシス錦糸町ウエスト 301、私の名を聞いたその瞬間から、あなたの生活は一変することでしょう。301号室は、まるで都会の喧騒から一歩離れたオアシスのように、穏やかな安らぎを提供する空間です。東京都墨田区緑4-4-5という恵まれたロケーションに位置するこの物件は、あなたを包み込むような温かさに満ちています。
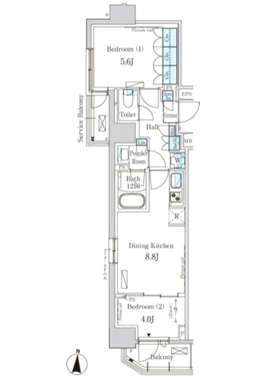
南と西の陽射しが降り注ぎ、朝は柔らかな光で目覚め、夕暮れには黄金色に染まる窓の外、あなたの心と体が自然とリフレッシュされていくのを感じることでしょう。専有面積は45.08㎡、この広さは質の高い生活を約束します。2DKの間取りは、あなたのライフスタイルに応じて自由にデザインできる空間を提供してくれます。広々としたDK(8.8帖)は、家族や友人との楽しいひとときを演出する場所となり、料理の香ばしい香りが漂い始めると、まるで映画のシーンの一部のように時間が止まります。
私の心臓ともいうべき洋室(5.6帖と4帖)は、穏やかなプライベート空間を創り出します。ここに身を置くことで、安らぎに包まれ、柔らかい布団に身を沈める瞬間が至福のひとときへと変わります。ヘルシーな朝食を楽しむためのダイニングテーブルの上には、フレッシュなフルーツの香りが漂い、まるで太陽の恵みを受けたような幸せを感じるでしょう。
パークアクシス錦糸町ウエスト 301は、ただの住まいではなく、アートと文化の交差点でもあります。都営地下鉄新宿線 菊川駅から徒歩8分の距離には、墨田区の歴史が息づいており、古き良き日本の面影を感じながら現代的な利便性を享受することができます。地元の文化や芸術に触れながら、あなたの感性を磨き、毎日を色鮮やかに彩ることができるのです。
私の中にあるエレガンスと機能性、そして安心感は、TVモニターホンやオートロックで保たれています。さらに、宅配ボックスや駐輪場、バイク置場も完備されており、生活の隅々にまで配慮された設計が施されています。あなたの新しい門出を、私と共に迎え入れていただければ幸いです。周囲の喧噪を忘れさせる静寂の中で、心地よい風を感じながら生活を楽しんでいただけることでしょう。
さあ、パークアクシス錦糸町ウエスト 301で、あなた自身の物語を紡いでみてはいかがですか。あなたのセンスと共鳴し、毎日を特別な日に変えてくれるこの空間が、あなたの心を奪うことでしょう。生活の一瞬一瞬が、まるで映画のワンシーンのように美しく映る、その瞬間を楽しんでください。ここに新たな生活の扉が開かれます。お待ちしております。
南と西の陽射しが降り注ぎ、朝は柔らかな光で目覚め、夕暮れには黄金色に染まる窓の外、…パークアクシス錦糸町ウエスト 301、私の名を聞いたその瞬間から、あなたの生活は一変することでしょう。301号室は、まるで都会の喧騒から一歩離れたオアシスのように、穏やかな安らぎを提供する空間です。東京都墨田区緑4-4-5という恵まれたロケーションに位置するこの物件は、あなたを包み込むような温かさに満ちています。
南と西の陽射しが降り注ぎ、朝は柔らかな光で目覚め、夕暮れには黄金色に染まる窓の外、あなたの心と体が自然とリフレッシュされていくのを感じることでしょう。専有面積は45.08㎡、この広さは質の高い生活を約束します。2DKの間取りは、あなたのライフスタイルに応じて自由にデザインできる空間を提供してくれます。広々としたDK(8.8帖)は、家族や友人との楽しいひとときを演出する場所となり、料理の香ばしい香りが漂い始めると、まるで映画のシーンの一部のように時間が止まります。
私の心臓ともいうべき洋室(5.6帖と4帖)は、穏やかなプライベート空間を創り出します。ここに身を置くことで、安らぎに包まれ、柔らかい布団に身を沈める瞬間が至福のひとときへと変わります。ヘルシーな朝食を楽しむためのダイニングテーブルの上には、フレッシュなフルーツの香りが漂い、まるで太陽の恵みを受けたような幸せを感じるでしょう。
パークアクシス錦糸町ウエスト 301は、ただの住まいではなく、アートと文化の交差点でもあります。都営地下鉄新宿線 菊川駅から徒歩8分の距離には、墨田区の歴史が息づいており、古き良き日本の面影を感じながら現代的な利便性を享受することができます。地元の文化や芸術に触れながら、あなたの感性を磨き、毎日を色鮮やかに彩ることができるのです。
私の中にあるエレガンスと機能性、そして安心感は、TVモニターホンやオートロックで保たれています。さらに、宅配ボックスや駐輪場、バイク置場も完備されており、生活の隅々にまで配慮された設計が施されています。あなたの新しい門出を、私と共に迎え入れていただければ幸いです。周囲の喧噪を忘れさせる静寂の中で、心地よい風を感じながら生活を楽しんでいただけることでしょう。
さあ、パークアクシス錦糸町ウエスト 301で、あなた自身の物語を紡いでみてはいかがですか。あなたのセンスと共鳴し、毎日を特別な日に変えてくれるこの空間が、あなたの心を奪うことでしょう。生活の一瞬一瞬が、まるで映画のワンシーンのように美しく映る、その瞬間を楽しんでください。ここに新たな生活の扉が開かれます。お待ちしております。
バイブルスコア
バイブルスコア: 25.7
平均的なスコアです。
※バイブルスコア詳細はこちら
バイブルスコアとは独自のAI機械学習技術を利用した物件評価システムで、物件のおすすめ度を示します。最高得点は100点で、スコアが高いほど、よりおすすめの物件と評価されています。
写真
契約条件
| 賃料 | 予想金額:167,000〜187,000円程度 | 管理費 | 予想金額:13,000〜17,000円程度 |
| 礼金 | 非公開(アーカイブ) | 敷金 | 非公開(アーカイブ) |
| フリーレント | なし | 平米数 | 45.08㎡ |
| 間取り | 2DK | 大型収納 | |
| 契約期間 |
| 方角 | 南 / 西 |
| 更新料 | 契約形態 | 普通賃貸借契約 | |
| 取引態様 | 媒介 | 内見状況 | 入居中 |
| 入居時期 | 入居中 | SOHO・事務所 | |
| ペット | ペット可 | 間取り内訳 | 洋:5.6 洋:4 DK:8.8 |
| キャンペーン情報・備考 | 本情報は賃料改定交渉の資料作成、収益物件の利回り試算、周辺エリアや最寄り駅の坪単価分析、次回募集開始時期の予測などにご活用いただけます。 | ||
※「どの不動産に頼めばいいのか分からない」「信頼できる営業マンの話を聞きたい」「一番親切な会社と契約したい」とお悩みの方におすすめなのが「高級賃貸バイブル」です。
高級賃貸バイブルは業界10年以上の熟練スタッフ群がお客様ファーストで対応します。
下記ボタンから、まずは無料でご相談下さい。
※内覧をご希望の際には、どうぞ物件のエントランス前にてお待ち合わせくださいませ。ご内覧後は、同じ場所でお別れとさせていただきます。お客様のご都合に合わせたスムーズなご案内を心がけておりますので、ご質問等がございましたら何なりとお申し付けください。 物件概要
| 物件名 |
| 築年月 |
|
|---|---|---|---|
| 所在地 | |||
| 交通 | |||
| 総戸数 |
| 総階数 |
|
| 構造 |
| ||
地図
物件までの道のりは、「拡大地図を表示」をクリックしてナビ機能をご利用ください。
部屋設備

















建物設備

TVモニターホン

エレベーター

オートロック

バイク置場

宅配ボックス

敷地内ゴミ置場

管理人

駐車場平置き

駐車場機械式

駐輪場
パークアクシス錦糸町ウエストの現在募集中のお部屋
- No rooms found for this property.



















