
| 賃料 | 予想金額:181,000〜201,000円程度 | 管理費 | 予想金額:13,000〜17,000円程度 |
| 礼金/敷金 | 非公開(アーカイブ) | 平米数 | 45.08㎡ |
| 初期費用概算(参考) | 目安:429,400〜529,400 円 | みなし賃料(月額・参考) | 205,988〜225,988 円 |
| 備考 | 本ページは過去募集のアーカイブです。表示の金額は周辺相場・過去募集を踏まえた参考レンジであり、実際の契約金額・条件ではありません。 | ||
※上記みなし賃料(月額)は仲介手数料割引・無料&キャッシュバックを加味した高級賃貸バイブル限定の金額です。一般的なみなし賃料とは異なります。
【建物ページ】パークアクシス錦糸町ウエストの詳細・最新空室はこちら▶▶選ばれる理由
仲介手数料無料・キャンペーン情報(毎月15名様限定)
〇フリーレント2か月キャンペーン
〇仲介手数料無料キャンペーン
パークアクシス錦糸町ウエスト 901の口コミ・レビュー
パークアクシス錦糸町ウエスト 901。それは、まるで絵画のように美しい生活の舞台であり、あなたの心の拠り所になることでしょう。この高級賃貸物件は、東京都墨田区緑4-4-5に位置し、南と西の二方角から注がれる陽光が、あなたの新たな生活を優しく包み込みます。901号室は、まるでその空間の中で優美な舞踏を繰り広げるかのように、45.08㎡の広大なスペースを誇ります。
この部屋に一歩足を踏み入れると、ま…パークアクシス錦糸町ウエスト 901。それは、まるで絵画のように美しい生活の舞台であり、あなたの心の拠り所になることでしょう。この高級賃貸物件は、東京都墨田区緑4-4-5に位置し、南と西の二方角から注がれる陽光が、あなたの新たな生活を優しく包み込みます。901号室は、まるでその空間の中で優美な舞踏を繰り広げるかのように、45.08㎡の広大なスペースを誇ります。
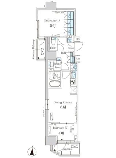
この部屋に一歩足を踏み入れると、まず感じるのはその温かい光。8.8帖のダイニングキッチンでは、豊かな食材の香りが漂ってきそうです。まるで、レストランのように繊細な料理を創り出す手元を見つめ、友人や家族との楽しい会話の中で、心が躍るひとときを過ごせます。5.6帖の洋室は、穏やかな眠りを約束する空間であり、静けさに包まれながら夢の世界へと誘います。4帖の洋室は、あなたの個性を映し出す隠れ家。アートや本で飾った素敵な空間に、友人を招いて語らいの時を過ごす姿が目に浮かびます。
パークアクシス錦糸町ウエスト 901は、ただの住居ではありません。まるで親友が語りかけるように、あなたの生活を鮮やかに彩る存在です。この物件にはオートロックやTVモニターホンといった先進的なセキュリティシステムも備わり、安心感の中で心豊かな暮らしが実現します。宅配ボックスや駐輪場、バイク置場も完備されており、日常の小さな便利さが積み重なり、ライフスタイルをより良いものにしてくれるでしょう。
周辺には歴史と文化が息づいています。墨田区の魅力あふれる街並みを散策しながら、江戸時代の風情を感じることができます。近隣の隅田川のほとりで花火を楽しむ姿や、アートギャラリーでの感動的な出会いを思い描くと、日常の中に非日常があることを再認識します。あなたがこの地に根を下ろすことで、まるで映画のワンシーンのような人生の物語が紡がれていくことでしょう。
さて、パークアクシス錦糸町ウエスト 901は、あなたを待っています。その扉を開けるのは、あなた自身。さあ、新たな生活の幕を上げ、素晴らしい瞬間を一緒に創り出しましょう。あなたの心の中に、この物件が描く美しい生活の情景が息づくことを願っています。
この部屋に一歩足を踏み入れると、ま…パークアクシス錦糸町ウエスト 901。それは、まるで絵画のように美しい生活の舞台であり、あなたの心の拠り所になることでしょう。この高級賃貸物件は、東京都墨田区緑4-4-5に位置し、南と西の二方角から注がれる陽光が、あなたの新たな生活を優しく包み込みます。901号室は、まるでその空間の中で優美な舞踏を繰り広げるかのように、45.08㎡の広大なスペースを誇ります。
この部屋に一歩足を踏み入れると、まず感じるのはその温かい光。8.8帖のダイニングキッチンでは、豊かな食材の香りが漂ってきそうです。まるで、レストランのように繊細な料理を創り出す手元を見つめ、友人や家族との楽しい会話の中で、心が躍るひとときを過ごせます。5.6帖の洋室は、穏やかな眠りを約束する空間であり、静けさに包まれながら夢の世界へと誘います。4帖の洋室は、あなたの個性を映し出す隠れ家。アートや本で飾った素敵な空間に、友人を招いて語らいの時を過ごす姿が目に浮かびます。
パークアクシス錦糸町ウエスト 901は、ただの住居ではありません。まるで親友が語りかけるように、あなたの生活を鮮やかに彩る存在です。この物件にはオートロックやTVモニターホンといった先進的なセキュリティシステムも備わり、安心感の中で心豊かな暮らしが実現します。宅配ボックスや駐輪場、バイク置場も完備されており、日常の小さな便利さが積み重なり、ライフスタイルをより良いものにしてくれるでしょう。
周辺には歴史と文化が息づいています。墨田区の魅力あふれる街並みを散策しながら、江戸時代の風情を感じることができます。近隣の隅田川のほとりで花火を楽しむ姿や、アートギャラリーでの感動的な出会いを思い描くと、日常の中に非日常があることを再認識します。あなたがこの地に根を下ろすことで、まるで映画のワンシーンのような人生の物語が紡がれていくことでしょう。
さて、パークアクシス錦糸町ウエスト 901は、あなたを待っています。その扉を開けるのは、あなた自身。さあ、新たな生活の幕を上げ、素晴らしい瞬間を一緒に創り出しましょう。あなたの心の中に、この物件が描く美しい生活の情景が息づくことを願っています。
写真
契約条件
| 賃料 | 予想金額:181,000〜201,000円程度 | 管理費 | 予想金額:13,000〜17,000円程度 |
| 礼金 | 非公開(アーカイブ) | 敷金 | 非公開(アーカイブ) |
| フリーレント | 2.0ヶ月 | 平米数 | 45.08㎡ |
| 間取り | 2DK | 大型収納 | |
| 契約期間 |
| 方角 | 南 / 西 |
| 更新料 | 契約形態 | 普通賃貸借契約 | |
| 取引態様 | 媒介 | 内見状況 | 入居中 |
| 入居時期 | 入居中 | SOHO・事務所 | |
| ペット | ペット可 | 間取り内訳 | 洋:5.6 洋:4 DK:8.8 |
| キャンペーン情報・備考 | 本情報は賃料改定交渉の資料作成、収益物件の利回り試算、周辺エリアや最寄り駅の坪単価分析、次回募集開始時期の予測などにご活用いただけます。 | ||
※「どの不動産に頼めばいいのか分からない」「信頼できる営業マンの話を聞きたい」「一番親切な会社と契約したい」とお悩みの方におすすめなのが「高級賃貸バイブル」です。
高級賃貸バイブルは業界10年以上の熟練スタッフ群がお客様ファーストで対応します。
下記ボタンから、まずは無料でご相談下さい。
※内覧をご希望の際には、どうぞ物件のエントランス前にてお待ち合わせくださいませ。ご内覧後は、同じ場所でお別れとさせていただきます。お客様のご都合に合わせたスムーズなご案内を心がけておりますので、ご質問等がございましたら何なりとお申し付けください。 物件概要
| 物件名 |
| 築年月 |
|
|---|---|---|---|
| 所在地 | |||
| 交通 | |||
| 総戸数 |
| 総階数 |
|
| 構造 |
| ||
地図
物件までの道のりは、「拡大地図を表示」をクリックしてナビ機能をご利用ください。
部屋設備

















建物設備

TVモニターホン

エレベーター

オートロック

バイク置場

宅配ボックス

敷地内ゴミ置場

管理人

駐車場平置き

駐車場機械式

駐輪場
パークアクシス錦糸町ウエストの現在募集中のお部屋
- No rooms found for this property.



















