
| 賃料 | 予想金額:88,000〜108,000円程度 | 管理費 | 予想金額:6,000〜10,000円程度 |
| 礼金/敷金 | 非公開(アーカイブ) | 平米数 | 27.05㎡ |
| 初期費用概算(参考) | 目安:321,900〜421,900 円 | みなし賃料(月額・参考) | 101,706〜121,706 円 |
| 備考 | 本ページは過去募集のアーカイブです。表示の金額は周辺相場・過去募集を踏まえた参考レンジであり、実際の契約金額・条件ではありません。 | ||
※上記みなし賃料(月額)は仲介手数料割引・無料&キャッシュバックを加味した高級賃貸バイブル限定の金額です。一般的なみなし賃料とは異なります。
【建物ページ】パークアクシス清澄白河の詳細・最新空室はこちら▶▶選ばれる理由
仲介手数料無料・キャンペーン情報(毎月15名様限定)
〇引っ越しお祝い金19600円プレゼント(キャッシュバック)
〇仲介手数料無料キャンペーン
パークアクシス清澄白河 203の口コミ・レビュー
パークアクシス清澄白河 203。ここは、ただの住まいではなく、まるで主人公が静かに息づく映画の舞台のような特別な空間です。南に面したその部屋は、朝日が穏やかに差し込む場所。新しい一日が始まる度に、あなたを優しく迎えてくれることでしょう。柔らかな光が部屋を包み込み、心地よい風がその光と共に舞い込んできます。パークアクシス清澄白河 203は、27.05㎡の専有面積に、あなたの人生の一部としてのストーリ…パークアクシス清澄白河 203。ここは、ただの住まいではなく、まるで主人公が静かに息づく映画の舞台のような特別な空間です。南に面したその部屋は、朝日が穏やかに差し込む場所。新しい一日が始まる度に、あなたを優しく迎えてくれることでしょう。柔らかな光が部屋を包み込み、心地よい風がその光と共に舞い込んできます。パークアクシス清澄白河 203は、27.05㎡の専有面積に、あなたの人生の一部としてのストーリーを紡ぐための舞台装置が整っています。
この物件はまさに、デザイナーズ住宅ならではの洗練された情緒を感じさせる空間です。心ゆくまでリラックスできる洋室は8.2帖の広さを誇り、シンプルでありながらも、独自のアートが感じられるデザインが、まるであなたの心を語りかけてくるかのようです。この部屋にいる時間は、まるで一杯の香り豊かなコーヒーを味わうように、心と体をほぐしてくれる至福のひとときになるでしょう。
そして、2.2帖のキッチンは、贅沢な料理の舞台。美味しい香りが漂い、鍋の中で食材が奏でる音楽が、あなたの料理の創造力を引き立てます。友人を招いてのディナーパーティーでは、まるで映画のワンシーンのように、笑い声とフレッシュな食材の香りが交差し、心温まる時間を演出することでしょう。南向きの窓からは、青空が一望でき、まるであなたの夢を映し出しているかのようなダイナミックな景色が広がります。
パークアクシス清澄白河 203の魅力は、ただの住居に留まりません。24時間の管理サービスが、あなたの生活をしっかりと支え、その安心感がとても心地よいものとなります。オートロックやTVモニターホンが、プライバシーをしっかりと守る一方で、日常生活をスムーズにサポートしてくれる仕組みが整っています。まるで、あなたを優しく包み込むセキュリティの甲冑のようです。
また、周囲には歴史と文化が息づいており、江東区扇橋の地は、かつて多くの文化人たちに愛されてきました。清澄白河駅から歩く11分の道のりには、昔ながらの街並みや静かな公園も点在し、散策することで心が洗われる時間が約束されています。芸術的な感性を刺激される街の中で、日々新しいインスピレーションが生まれるでしょう。
この特別な空間、パークアクシス清澄白河 203での生活は、まるで名作映画のワンシーンのように、あなたの日常を輝かせてくれることでしょう。あなたがこの地に住み、物語を紡いでいくことを心から楽しみにしています。ここで、新たな人生のページを開いてみませんか。
この物件はまさに、デザイナーズ住宅ならではの洗練された情緒を感じさせる空間です。心ゆくまでリラックスできる洋室は8.2帖の広さを誇り、シンプルでありながらも、独自のアートが感じられるデザインが、まるであなたの心を語りかけてくるかのようです。この部屋にいる時間は、まるで一杯の香り豊かなコーヒーを味わうように、心と体をほぐしてくれる至福のひとときになるでしょう。
そして、2.2帖のキッチンは、贅沢な料理の舞台。美味しい香りが漂い、鍋の中で食材が奏でる音楽が、あなたの料理の創造力を引き立てます。友人を招いてのディナーパーティーでは、まるで映画のワンシーンのように、笑い声とフレッシュな食材の香りが交差し、心温まる時間を演出することでしょう。南向きの窓からは、青空が一望でき、まるであなたの夢を映し出しているかのようなダイナミックな景色が広がります。
パークアクシス清澄白河 203の魅力は、ただの住居に留まりません。24時間の管理サービスが、あなたの生活をしっかりと支え、その安心感がとても心地よいものとなります。オートロックやTVモニターホンが、プライバシーをしっかりと守る一方で、日常生活をスムーズにサポートしてくれる仕組みが整っています。まるで、あなたを優しく包み込むセキュリティの甲冑のようです。
また、周囲には歴史と文化が息づいており、江東区扇橋の地は、かつて多くの文化人たちに愛されてきました。清澄白河駅から歩く11分の道のりには、昔ながらの街並みや静かな公園も点在し、散策することで心が洗われる時間が約束されています。芸術的な感性を刺激される街の中で、日々新しいインスピレーションが生まれるでしょう。
この特別な空間、パークアクシス清澄白河 203での生活は、まるで名作映画のワンシーンのように、あなたの日常を輝かせてくれることでしょう。あなたがこの地に住み、物語を紡いでいくことを心から楽しみにしています。ここで、新たな人生のページを開いてみませんか。
バイブルスコア
バイブルスコア: 99.2
レア物件です、すぐ仮押さえしましょう!
このお部屋は、現在ご入居中のため空室情報はございません。ただし、将来的に募集が開始される際、バイブルスコアにおいて非常に高い評価が期待されます。特にご興味をお持ちの方は、今のうちにブックマークやお気に入りに登録していただくと、募集開始のお知らせをすぐに受け取ることができます。是非ともご検討くださいませ。
※バイブルスコア詳細はこちら
バイブルスコアとは独自のAI機械学習技術を利用した物件評価システムで、物件のおすすめ度を示します。最高得点は100点で、スコアが高いほど、よりおすすめの物件と評価されています。
写真
契約条件
| 賃料 | 予想金額:88,000〜108,000円程度 | 管理費 | 予想金額:6,000〜10,000円程度 |
| 礼金 | 非公開(アーカイブ) | 敷金 | 非公開(アーカイブ) |
| フリーレント | なし | 平米数 | 27.05㎡ |
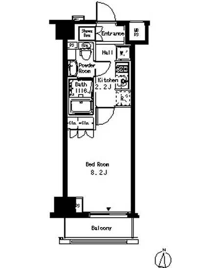
| 間取り | 1K | 大型収納 | |
| 契約期間 | 2年 | 方角 | 南 |
| 更新料 | 1ヶ月 | 契約形態 | 普通賃貸借契約 |
| 取引態様 | 媒介 | 内見状況 | 入居中 |
| 入居時期 | 入居中 | SOHO・事務所 | |
| ペット | ペット可 | 間取り内訳 | 洋:8.2 K:2.2 |
| キャンペーン情報・備考 | 本情報は賃料改定交渉の資料作成、収益物件の利回り試算、周辺エリアや最寄り駅の坪単価分析、次回募集開始時期の予測などにご活用いただけます。 | ||
※「どの不動産に頼めばいいのか分からない」「信頼できる営業マンの話を聞きたい」「一番親切な会社と契約したい」とお悩みの方におすすめなのが「高級賃貸バイブル」です。
高級賃貸バイブルは業界10年以上の熟練スタッフ群がお客様ファーストで対応します。
下記ボタンから、まずは無料でご相談下さい。
※内覧をご希望の際には、どうぞ物件のエントランス前にてお待ち合わせくださいませ。ご内覧後は、同じ場所でお別れとさせていただきます。お客様のご都合に合わせたスムーズなご案内を心がけておりますので、ご質問等がございましたら何なりとお申し付けください。 物件概要
| 物件名 |
| 築年月 |
|
|---|---|---|---|
| 所在地 | |||
| 交通 | |||
| 総戸数 |
| 総階数 |
|
| 構造 |
| ||
地図
物件までの道のりは、「拡大地図を表示」をクリックしてナビ機能をご利用ください。
部屋設備
建物設備

24時間管理

TVモニターホン

エレベーター

オートロック

バイク置場

宅配ボックス

敷地内ゴミ置場

管理人

駐車場平置き

駐車場機械式

駐輪場
パークアクシス清澄白河の現在募集中のお部屋
- No rooms found for this property.






























