
| 賃料 | 予想金額:90,000〜110,000円程度 | 管理費 | 予想金額:6,000〜10,000円程度 |
| 礼金/敷金 | 非公開(アーカイブ) | 平米数 | 28.7㎡ |
| 初期費用概算(参考) | 目安:326,500〜426,500 円 | みなし賃料(月額・参考) | 103,760〜123,760 円 |
| 備考 | 本ページは過去募集のアーカイブです。表示の金額は周辺相場・過去募集を踏まえた参考レンジであり、実際の契約金額・条件ではありません。 | ||
※上記みなし賃料(月額)は仲介手数料割引・無料&キャッシュバックを加味した高級賃貸バイブル限定の金額です。一般的なみなし賃料とは異なります。
【建物ページ】パークキューブ亀戸の詳細・最新空室はこちら▶▶選ばれる理由
仲介手数料無料・キャンペーン情報(毎月15名様限定)
〇引っ越しお祝い金22000円プレゼント(キャッシュバック)
〇仲介手数料無料キャンペーン
パークキューブ亀戸 1111の口コミ・レビュー
パークキューブ亀戸 1111。ここに足を運ぶと、まるで映画の幕が上がるように、一瞬で心が躍る体験が待っています。1111という特別な番号が、あたかも魔法の合言葉のように、あなたを魅了します。この物件は、東京都江東区亀戸の静寂な路地に佇み、周囲の賑わいから少し離れていることで、都会の喧騒を忘れさせてくれます。
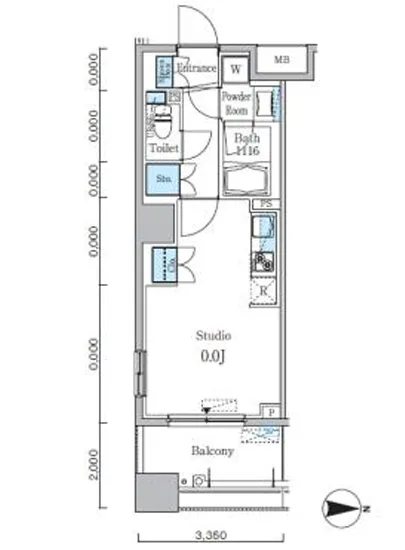
この洗練された空間は、全体で28.7㎡の広さを誇り、1Rの間取りはあなたの無限の想像力を…パークキューブ亀戸 1111。ここに足を運ぶと、まるで映画の幕が上がるように、一瞬で心が躍る体験が待っています。1111という特別な番号が、あたかも魔法の合言葉のように、あなたを魅了します。この物件は、東京都江東区亀戸の静寂な路地に佇み、周囲の賑わいから少し離れていることで、都会の喧騒を忘れさせてくれます。
この洗練された空間は、全体で28.7㎡の広さを誇り、1Rの間取りはあなたの無限の想像力を刺激します。おしゃれなデザイナーズ物件であるパークキューブ亀戸 1111は、何百もの物語を秘めた美しいキャンバスです。あなたの生活の一部になり、日々の営みを豊かに彩ります。朝日が東の窓から差し込むと、柔らかな光に包まれながら、目覚めのコーヒーを香ばしい豆の香りとともに淹れるあなたが想像に浮かびます。その後、窓の外では小鳥のさえずりが響く中、日常の喧騒を心地よく感じながら、出かける準備を進めるのです。
パークキューブ亀戸 1111の内部は、あなたの感覚を刺激するデザインで満たされています。美しい素材で仕立てられた内装に触れれば、その手触りはまるで熟練の職人が紡いだ芸術品のようです。わずかな音を立てて開くドアは、あなたを新たな世界へ導いてくれる扉であり、その瞬間、遊び心を感じさせる空間の主人公となるのです。
この場所には、24時間管理体制が整っており、安心して生活することができる環境が提供されています。エレベーターの扉が静かに開くたび、あなたは新たな冒険の舞台に立つワクワク感を覚えることでしょう。オートロックも完備しているため、あなたのプライベートが大切に守られています。
日々の暮らしに便利な設備が揃っており、バイク置場や駐輪場、さらには宅配ボックスも完備されています。これらの機能が、忙しいあなたの生活を支え、もっと豊かにしてくれるのです。
また、最寄りのJR総武線亀戸駅までのアクセスはわずか徒歩5分。ここからの出発は、まるで旅の始まりを告げる鐘の音のように、いつでも自由な冒険が待っていることを思わせます。亀戸の街は、歴史と文化が交差する素晴らしいエリアで、アートに触れる機会もたくさん。周囲のカフェやレストランに足を運べば、その土地の風情を五感で楽しむことができます。
さあ、パークキューブ亀戸 1111であなたの物語を始めませんか。ここでの日々は、まるで新しい章の幕開けのように、色鮮やかで刺激に満ちたエピソードとなるでしょう。あなたの生活が、どこか特別であってほしい—その思いが実現する場所が、ここにあります。
この洗練された空間は、全体で28.7㎡の広さを誇り、1Rの間取りはあなたの無限の想像力を…パークキューブ亀戸 1111。ここに足を運ぶと、まるで映画の幕が上がるように、一瞬で心が躍る体験が待っています。1111という特別な番号が、あたかも魔法の合言葉のように、あなたを魅了します。この物件は、東京都江東区亀戸の静寂な路地に佇み、周囲の賑わいから少し離れていることで、都会の喧騒を忘れさせてくれます。
この洗練された空間は、全体で28.7㎡の広さを誇り、1Rの間取りはあなたの無限の想像力を刺激します。おしゃれなデザイナーズ物件であるパークキューブ亀戸 1111は、何百もの物語を秘めた美しいキャンバスです。あなたの生活の一部になり、日々の営みを豊かに彩ります。朝日が東の窓から差し込むと、柔らかな光に包まれながら、目覚めのコーヒーを香ばしい豆の香りとともに淹れるあなたが想像に浮かびます。その後、窓の外では小鳥のさえずりが響く中、日常の喧騒を心地よく感じながら、出かける準備を進めるのです。
パークキューブ亀戸 1111の内部は、あなたの感覚を刺激するデザインで満たされています。美しい素材で仕立てられた内装に触れれば、その手触りはまるで熟練の職人が紡いだ芸術品のようです。わずかな音を立てて開くドアは、あなたを新たな世界へ導いてくれる扉であり、その瞬間、遊び心を感じさせる空間の主人公となるのです。
この場所には、24時間管理体制が整っており、安心して生活することができる環境が提供されています。エレベーターの扉が静かに開くたび、あなたは新たな冒険の舞台に立つワクワク感を覚えることでしょう。オートロックも完備しているため、あなたのプライベートが大切に守られています。
日々の暮らしに便利な設備が揃っており、バイク置場や駐輪場、さらには宅配ボックスも完備されています。これらの機能が、忙しいあなたの生活を支え、もっと豊かにしてくれるのです。
また、最寄りのJR総武線亀戸駅までのアクセスはわずか徒歩5分。ここからの出発は、まるで旅の始まりを告げる鐘の音のように、いつでも自由な冒険が待っていることを思わせます。亀戸の街は、歴史と文化が交差する素晴らしいエリアで、アートに触れる機会もたくさん。周囲のカフェやレストランに足を運べば、その土地の風情を五感で楽しむことができます。
さあ、パークキューブ亀戸 1111であなたの物語を始めませんか。ここでの日々は、まるで新しい章の幕開けのように、色鮮やかで刺激に満ちたエピソードとなるでしょう。あなたの生活が、どこか特別であってほしい—その思いが実現する場所が、ここにあります。
バイブルスコア
バイブルスコア: 22.8
平均的なスコアです。
※バイブルスコア詳細はこちら
バイブルスコアとは独自のAI機械学習技術を利用した物件評価システムで、物件のおすすめ度を示します。最高得点は100点で、スコアが高いほど、よりおすすめの物件と評価されています。
写真
契約条件
| 賃料 | 予想金額:90,000〜110,000円程度 | 管理費 | 予想金額:6,000〜10,000円程度 |
| 礼金 | 非公開(アーカイブ) | 敷金 | 非公開(アーカイブ) |
| フリーレント | なし | 平米数 | 28.7㎡ |
| 間取り | 1R | 大型収納 | |
| 契約期間 |
| 方角 | 東 |
| 更新料 | 契約形態 | 普通賃貸借契約 | |
| 取引態様 | 媒介 | 内見状況 | 入居中 |
| 入居時期 | 入居中 | SOHO・事務所 | |
| ペット | ペット可 | 間取り内訳 | 洋: |
| キャンペーン情報・備考 | 本情報は賃料改定交渉の資料作成、収益物件の利回り試算、周辺エリアや最寄り駅の坪単価分析、次回募集開始時期の予測などにご活用いただけます。 | ||
※「どの不動産に頼めばいいのか分からない」「信頼できる営業マンの話を聞きたい」「一番親切な会社と契約したい」とお悩みの方におすすめなのが「高級賃貸バイブル」です。
高級賃貸バイブルは業界10年以上の熟練スタッフ群がお客様ファーストで対応します。
下記ボタンから、まずは無料でご相談下さい。
※内覧をご希望の際には、どうぞ物件のエントランス前にてお待ち合わせくださいませ。ご内覧後は、同じ場所でお別れとさせていただきます。お客様のご都合に合わせたスムーズなご案内を心がけておりますので、ご質問等がございましたら何なりとお申し付けください。 物件概要
| 物件名 |
| 築年月 |
|
|---|---|---|---|
| 所在地 | |||
| 交通 | |||
| 総戸数 |
| 総階数 |
|
| 構造 |
| ||
地図
物件までの道のりは、「拡大地図を表示」をクリックしてナビ機能をご利用ください。
部屋設備














建物設備

24時間管理

TVモニターホン

エレベーター

オートロック

バイク置場

宅配ボックス

敷地内ゴミ置場

管理人

駐車場平置き

駐車場機械式

駐輪場
パークキューブ亀戸の現在募集中のお部屋
- No rooms found for this property.























