
| 賃料 | 予想金額:126,000〜146,000円程度 | 管理費 | 予想金額:6,000〜10,000円程度 |
| 礼金/敷金 | 非公開(アーカイブ) | 平米数 | 38.25㎡ |
| 初期費用概算(参考) | 目安:529,500〜629,500 円 | みなし賃料(月額・参考) | 143,240〜163,240 円 |
| 備考 | 本ページは過去募集のアーカイブです。表示の金額は周辺相場・過去募集を踏まえた参考レンジであり、実際の契約金額・条件ではありません。 | ||
※上記みなし賃料(月額)は仲介手数料割引・無料&キャッシュバックを加味した高級賃貸バイブル限定の金額です。一般的なみなし賃料とは異なります。
【建物ページ】パークアクシス東陽町の詳細・最新空室はこちら▶▶選ばれる理由
仲介手数料無料・キャンペーン情報(毎月15名様限定)
〇仲介手数料割引キャンペーン
パークアクシス東陽町 806の口コミ・レビュー
パークアクシス東陽町 806は、あなたのライフスタイルに洗練された美を添える、まるで一篇の詩のような住まいです。この特別な空間は、806という数字の持つ神秘的な響きを纏い、日々の生活がまるで映画のワンシーンに変わる瞬間を提供いたします。
東京都江東区塩浜2-29-10の地に位置するこの物件は、北の風を感じることができる心地よい環境に恵まれています。周囲に広がる静かな街並みは、歴史と文化が織りなす…パークアクシス東陽町 806は、あなたのライフスタイルに洗練された美を添える、まるで一篇の詩のような住まいです。この特別な空間は、806という数字の持つ神秘的な響きを纏い、日々の生活がまるで映画のワンシーンに変わる瞬間を提供いたします。
東京都江東区塩浜2-29-10の地に位置するこの物件は、北の風を感じることができる心地よい環境に恵まれています。周囲に広がる静かな街並みは、歴史と文化が織りなす独特のムードを醸し出し、訪れる人々を魅了します。落ち着いた雰囲気を纏い、まるで時が止まったかのような体験ができることでしょう。
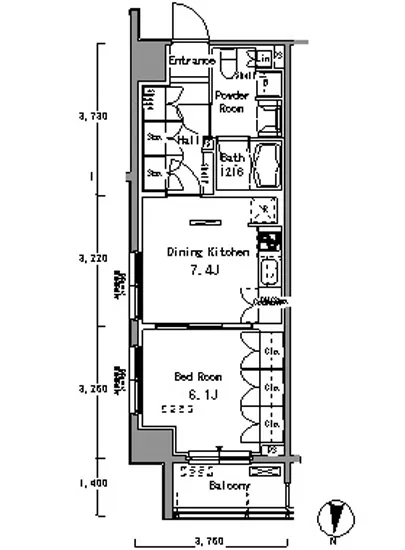
専有面積38.25㎡の空間には、すべてが精巧に設計された間取りが広がっています。6.1帖の洋室は、やわらかな光が優しく差し込み、昼下がりにはまどろみの世界へと誘います。あなたの好きな色合いのカーテンを揺らしながら、穏やかな午後のひと時を楽しむ姿が目に浮かびます。続いて、7.4帖のダイニングキッチンは、料理の香りで満ち、あなたの大切な人たちとの思い出を紡ぐ舞台です。美味しい料理を共に楽しむ時間は、まるで星空の下で乾杯するかのように、特別な思い出として心に留まります。
パークアクシス東陽町 806は、24時間管理のもとで、安心と安全をその身に宿しています。オートロックやTVモニターホンがあなたのプライバシーを守り、まるで優れたガーディアンのように活動してくれます。共用施設も充実しており、宅配ボックスやバイク置場、駐輪場がその利便性を高め、一歩外に出れば、人生を彩る発見が待っています。エレベーターで軽やかに移動し、日々の忙しさを優雅に切り離す感覚は、まるで空を飛ぶ雲のようです。
また、この地域は東京メトロ東西線東陽町駅から徒歩8分という好立地にあります。駅からの道のりは、あなたを新たな冒険へと導いてくれることでしょう。周辺には、歴史ある文化やアートを楽しむ場も点在し、日々の生活に彩りを加えます。散歩をしながら、街の賑わいや静けさを同時に味わえるのは、このパークアクシス東陽町 806だけの特権です。
あなたの新しい生活の舞台となるパークアクシス東陽町 806は、まさに日常を豊かに彩る宝石のような存在です。さあ、ここでの新たな生活を始める準備はできていますか?あなたの物語は、ここから始まります。心を通わせる空間で、毎日が特別な瞬間に満ちることでしょう。あなたの物語を、この素晴らしい空間で紡いでいってください。
東京都江東区塩浜2-29-10の地に位置するこの物件は、北の風を感じることができる心地よい環境に恵まれています。周囲に広がる静かな街並みは、歴史と文化が織りなす…パークアクシス東陽町 806は、あなたのライフスタイルに洗練された美を添える、まるで一篇の詩のような住まいです。この特別な空間は、806という数字の持つ神秘的な響きを纏い、日々の生活がまるで映画のワンシーンに変わる瞬間を提供いたします。
東京都江東区塩浜2-29-10の地に位置するこの物件は、北の風を感じることができる心地よい環境に恵まれています。周囲に広がる静かな街並みは、歴史と文化が織りなす独特のムードを醸し出し、訪れる人々を魅了します。落ち着いた雰囲気を纏い、まるで時が止まったかのような体験ができることでしょう。
専有面積38.25㎡の空間には、すべてが精巧に設計された間取りが広がっています。6.1帖の洋室は、やわらかな光が優しく差し込み、昼下がりにはまどろみの世界へと誘います。あなたの好きな色合いのカーテンを揺らしながら、穏やかな午後のひと時を楽しむ姿が目に浮かびます。続いて、7.4帖のダイニングキッチンは、料理の香りで満ち、あなたの大切な人たちとの思い出を紡ぐ舞台です。美味しい料理を共に楽しむ時間は、まるで星空の下で乾杯するかのように、特別な思い出として心に留まります。
パークアクシス東陽町 806は、24時間管理のもとで、安心と安全をその身に宿しています。オートロックやTVモニターホンがあなたのプライバシーを守り、まるで優れたガーディアンのように活動してくれます。共用施設も充実しており、宅配ボックスやバイク置場、駐輪場がその利便性を高め、一歩外に出れば、人生を彩る発見が待っています。エレベーターで軽やかに移動し、日々の忙しさを優雅に切り離す感覚は、まるで空を飛ぶ雲のようです。
また、この地域は東京メトロ東西線東陽町駅から徒歩8分という好立地にあります。駅からの道のりは、あなたを新たな冒険へと導いてくれることでしょう。周辺には、歴史ある文化やアートを楽しむ場も点在し、日々の生活に彩りを加えます。散歩をしながら、街の賑わいや静けさを同時に味わえるのは、このパークアクシス東陽町 806だけの特権です。
あなたの新しい生活の舞台となるパークアクシス東陽町 806は、まさに日常を豊かに彩る宝石のような存在です。さあ、ここでの新たな生活を始める準備はできていますか?あなたの物語は、ここから始まります。心を通わせる空間で、毎日が特別な瞬間に満ちることでしょう。あなたの物語を、この素晴らしい空間で紡いでいってください。
バイブルスコア
バイブルスコア: 26.5
平均的なスコアです。
※バイブルスコア詳細はこちら
バイブルスコアとは独自のAI機械学習技術を利用した物件評価システムで、物件のおすすめ度を示します。最高得点は100点で、スコアが高いほど、よりおすすめの物件と評価されています。
写真
契約条件
| 賃料 | 予想金額:126,000〜146,000円程度 | 管理費 | 予想金額:6,000〜10,000円程度 |
| 礼金 | 非公開(アーカイブ) | 敷金 | 非公開(アーカイブ) |
| フリーレント | なし | 平米数 | 38.25㎡ |
| 間取り | 1DK | 大型収納 | |
| 契約期間 |
| 方角 | 北 |
| 更新料 | 契約形態 | 普通賃貸借契約 | |
| 取引態様 | 媒介 | 内見状況 | 入居中 |
| 入居時期 | 入居中 | SOHO・事務所 | |
| ペット | ペット可 | 間取り内訳 | 洋:6.1 DK:7.4 |
| キャンペーン情報・備考 | 本情報は賃料改定交渉の資料作成、収益物件の利回り試算、周辺エリアや最寄り駅の坪単価分析、次回募集開始時期の予測などにご活用いただけます。 | ||
※「どの不動産に頼めばいいのか分からない」「信頼できる営業マンの話を聞きたい」「一番親切な会社と契約したい」とお悩みの方におすすめなのが「高級賃貸バイブル」です。
高級賃貸バイブルは業界10年以上の熟練スタッフ群がお客様ファーストで対応します。
下記ボタンから、まずは無料でご相談下さい。
※内覧をご希望の際には、どうぞ物件のエントランス前にてお待ち合わせくださいませ。ご内覧後は、同じ場所でお別れとさせていただきます。お客様のご都合に合わせたスムーズなご案内を心がけておりますので、ご質問等がございましたら何なりとお申し付けください。 物件概要
地図
物件までの道のりは、「拡大地図を表示」をクリックしてナビ機能をご利用ください。
部屋設備















建物設備

24時間管理

TVモニターホン

エレベーター

オートロック

バイク置場

宅配ボックス

敷地内ゴミ置場

管理人

駐車場平置き

駐車場機械式

駐輪場
パークアクシス東陽町の現在募集中のお部屋
- パークアクシス東陽町 1303 - 間取り: 1LDK+WIC - 賃料: 16.3万円
- パークアクシス東陽町 202 - 間取り: 2DK - 賃料: 16.2万円
- パークアクシス東陽町 501 - 間取り: 1LDK - 賃料: 15.9万円
- パークアクシス東陽町 1405 - 間取り: 1LDK - 賃料: 15.7万円
- パークアクシス東陽町 1305 - 間取り: 1LDK - 賃料: 16.4万円






























