
| 賃料 | 予想金額:104,000〜124,000円程度 | 管理費 | 予想金額:13,000〜17,000円程度 |
| 礼金/敷金 | 非公開(アーカイブ) | 平米数 | 25.3㎡ |
| 初期費用概算(参考) | 目安:66,000〜166,000 円 | みなし賃料(月額・参考) | 121,417〜141,417 円 |
| 備考 | 本ページは過去募集のアーカイブです。表示の金額は周辺相場・過去募集を踏まえた参考レンジであり、実際の契約金額・条件ではありません。 | ||
※上記みなし賃料(月額)は仲介手数料割引・無料&キャッシュバックを加味した高級賃貸バイブル限定の金額です。一般的なみなし賃料とは異なります。
【建物ページ】ルフォンプログレ清澄白河プレミアの詳細・最新空室はこちら▶▶選ばれる理由
仲介手数料無料・キャンペーン情報(毎月15名様限定)
〇引っ越しお祝い金114000円プレゼント(キャッシュバック)
〇フリーレント1か月キャンペーン
〇仲介手数料無料キャンペーン
ルフォンプログレ清澄白河プレミア 912の口コミ・レビュー
ルフォンプログレ清澄白河プレミア 912は、まるで静寂の中に佇む一片の宝石のような存在です。この美しい物件は、東京都江東区白河2-23-7に位置し、南向きの窓からは心を打つ日の出の光が差し込み、毎朝あなたを優しく迎え入れます。そんなこの部屋に一歩足を踏み入れると、まるで特別な映画のワンシーンに迷い込んだかのような感覚に包まれます。
部屋の広さは25.3㎡、1Kという巧妙な設計は、あなたのライフス…ルフォンプログレ清澄白河プレミア 912は、まるで静寂の中に佇む一片の宝石のような存在です。この美しい物件は、東京都江東区白河2-23-7に位置し、南向きの窓からは心を打つ日の出の光が差し込み、毎朝あなたを優しく迎え入れます。そんなこの部屋に一歩足を踏み入れると、まるで特別な映画のワンシーンに迷い込んだかのような感覚に包まれます。
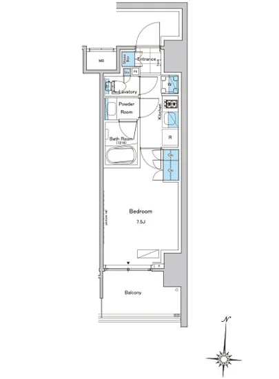
部屋の広さは25.3㎡、1Kという巧妙な設計は、あなたのライフスタイルをダンスのように自由に表現する舞台です。洋室は7.5帖のスペースを確保しており、暖かな木の香りが漂うフローリングが、あなたの足元をそっと支えます。目を閉じれば、音楽の旋律が響き渡るような、心地よい静けさを感じられます。この空間での生活は、まるで日の光に包まれた森の中で、小鳥のさえずりを聞くかのように穏やかで、優雅な瞬間が流れていくのです。
ルフォンプログレ清澄白河プレミア 912には、TVモニターホンやオートロックなど、現代の生活に不可欠な設備が整っていますが、それらは決して目立つことはありません。まるで大切な宝物を守るために、静かにあなたの暮らしを支えている隠れた名脇役のようです。エレベーターで上る度に、まるで貴族の館に向かうかのような優雅な気分が高まり、周囲の喧騒から離れた静謐な世界が広がります。
この物件は、文化と歴史が息づく場所、清澄白河に位置しています。近隣のアートスペースやギャラリーは、あなたの感性を刺激し、日々の生活に彩りを加えてくれるでしょう。地元のカフェから漂う焼きたてのパンの香り、古書店のページをめくるときの独特な触感、そして静かに咲き誇る美しい花々の景色が、あなたの五感を満たします。バルコニーから見える夕暮れ時の空は、まるで画家が描いた絵画のようで、あなたの心をつかんではなさないことでしょう。
また、ルフォンプログレ清澄白河プレミア 912の周辺には、バイク置場や駐車場も完備されています。週末には愛車でのドライブが楽しめ、心の奥に眠る冒険心を呼び起こしてくれます。管理人による細やかなサポートも、日常生活を支える大きな力となります。宅配ボックスが配置されているため、大切な荷物を安心して受け取ることができるのも、この物件ならではの魅力です。
ルフォンプログレ清澄白河プレミア 912は、ただの住まいではなく、あなたの心に寄り添い、日々の生活を豊かにするパートナーです。ここで過ごす時間は、まるで大切な映画のワンシーンのように、あなたにとっての特別な物語を紡いでいくことでしょう。あなたの新しい生活が、この特別な場所で始まるのを心よりお待ちしております。
部屋の広さは25.3㎡、1Kという巧妙な設計は、あなたのライフス…ルフォンプログレ清澄白河プレミア 912は、まるで静寂の中に佇む一片の宝石のような存在です。この美しい物件は、東京都江東区白河2-23-7に位置し、南向きの窓からは心を打つ日の出の光が差し込み、毎朝あなたを優しく迎え入れます。そんなこの部屋に一歩足を踏み入れると、まるで特別な映画のワンシーンに迷い込んだかのような感覚に包まれます。
部屋の広さは25.3㎡、1Kという巧妙な設計は、あなたのライフスタイルをダンスのように自由に表現する舞台です。洋室は7.5帖のスペースを確保しており、暖かな木の香りが漂うフローリングが、あなたの足元をそっと支えます。目を閉じれば、音楽の旋律が響き渡るような、心地よい静けさを感じられます。この空間での生活は、まるで日の光に包まれた森の中で、小鳥のさえずりを聞くかのように穏やかで、優雅な瞬間が流れていくのです。
ルフォンプログレ清澄白河プレミア 912には、TVモニターホンやオートロックなど、現代の生活に不可欠な設備が整っていますが、それらは決して目立つことはありません。まるで大切な宝物を守るために、静かにあなたの暮らしを支えている隠れた名脇役のようです。エレベーターで上る度に、まるで貴族の館に向かうかのような優雅な気分が高まり、周囲の喧騒から離れた静謐な世界が広がります。
この物件は、文化と歴史が息づく場所、清澄白河に位置しています。近隣のアートスペースやギャラリーは、あなたの感性を刺激し、日々の生活に彩りを加えてくれるでしょう。地元のカフェから漂う焼きたてのパンの香り、古書店のページをめくるときの独特な触感、そして静かに咲き誇る美しい花々の景色が、あなたの五感を満たします。バルコニーから見える夕暮れ時の空は、まるで画家が描いた絵画のようで、あなたの心をつかんではなさないことでしょう。
また、ルフォンプログレ清澄白河プレミア 912の周辺には、バイク置場や駐車場も完備されています。週末には愛車でのドライブが楽しめ、心の奥に眠る冒険心を呼び起こしてくれます。管理人による細やかなサポートも、日常生活を支える大きな力となります。宅配ボックスが配置されているため、大切な荷物を安心して受け取ることができるのも、この物件ならではの魅力です。
ルフォンプログレ清澄白河プレミア 912は、ただの住まいではなく、あなたの心に寄り添い、日々の生活を豊かにするパートナーです。ここで過ごす時間は、まるで大切な映画のワンシーンのように、あなたにとっての特別な物語を紡いでいくことでしょう。あなたの新しい生活が、この特別な場所で始まるのを心よりお待ちしております。
バイブルスコア
バイブルスコア: 42.6
条件のいい物件です、引っ越しが2か月以内の場合は仮申し込みを検討すべき物件です。
※バイブルスコア詳細はこちら
バイブルスコアとは独自のAI機械学習技術を利用した物件評価システムで、物件のおすすめ度を示します。最高得点は100点で、スコアが高いほど、よりおすすめの物件と評価されています。
写真
契約条件
| 賃料 | 予想金額:104,000〜124,000円程度 | 管理費 | 予想金額:13,000〜17,000円程度 |
| 礼金 | 非公開(アーカイブ) | 敷金 | 非公開(アーカイブ) |
| フリーレント | 1ヶ月 | 平米数 | 25.3㎡ |
| 間取り | 1K | 大型収納 | |
| 契約期間 |
| 方角 | 南 |
| 更新料 | 契約形態 | 普通賃貸借契約 | |
| 取引態様 | 媒介 | 内見状況 | 入居中 |
| 入居時期 | 入居中 | SOHO・事務所 | |
| ペット | 間取り内訳 | 洋:7.5 | |
| キャンペーン情報・備考 | 本情報は賃料改定交渉の資料作成、収益物件の利回り試算、周辺エリアや最寄り駅の坪単価分析、次回募集開始時期の予測などにご活用いただけます。 | ||
※「どの不動産に頼めばいいのか分からない」「信頼できる営業マンの話を聞きたい」「一番親切な会社と契約したい」とお悩みの方におすすめなのが「高級賃貸バイブル」です。
高級賃貸バイブルは業界10年以上の熟練スタッフ群がお客様ファーストで対応します。
下記ボタンから、まずは無料でご相談下さい。
※内覧をご希望の際には、どうぞ物件のエントランス前にてお待ち合わせくださいませ。ご内覧後は、同じ場所でお別れとさせていただきます。お客様のご都合に合わせたスムーズなご案内を心がけておりますので、ご質問等がございましたら何なりとお申し付けください。 物件概要
| 物件名 |
| 築年月 |
|
|---|---|---|---|
| 所在地 | |||
| 交通 | |||
| 総戸数 |
| 総階数 |
|
| 構造 |
| ||
地図
物件までの道のりは、「拡大地図を表示」をクリックしてナビ機能をご利用ください。
部屋設備











建物設備

TVモニターホン

エレベーター

オートロック

バイク置場

ラウンジ

宅配ボックス

敷地内ゴミ置場

管理人

駐車場平置き

駐車場機械式

駐輪場
ルフォンプログレ清澄白河プレミアの現在募集中のお部屋
- No rooms found for this property.



























