
| 賃料 | 予想金額:112,000〜132,000円程度 | 管理費 | 予想金額:13,000〜17,000円程度 |
| 礼金/敷金 | 非公開(アーカイブ) | 平米数 | 26.84㎡ |
| 初期費用概算(参考) | 目安:192,000〜292,000 円 | みなし賃料(月額・参考) | 129,500〜149,500 円 |
| 備考 | 本ページは過去募集のアーカイブです。表示の金額は周辺相場・過去募集を踏まえた参考レンジであり、実際の契約金額・条件ではありません。 | ||
※上記みなし賃料(月額)は仲介手数料割引・無料&キャッシュバックを加味した高級賃貸バイブル限定の金額です。一般的なみなし賃料とは異なります。
【建物ページ】ルフォンプログレ清澄白河プレミアの詳細・最新空室はこちら▶▶選ばれる理由
仲介手数料無料・キャンペーン情報(毎月15名様限定)
〇引っ越しお祝い金122000円プレゼント(キャッシュバック)
〇仲介手数料無料キャンペーン
ルフォンプログレ清澄白河プレミア 205の口コミ・レビュー
ルフォンプログレ清澄白河プレミア 205は、東京の喧騒を忘れさせてくれる、隠れ家のような魅力をまとった邸宅です。205という番号は、まるでこの特別な空間の「おもてなし」を象徴しているかのよう。ふとした瞬間、静寂の中にあなたの心がほっと安らぐのを感じることでしょう。
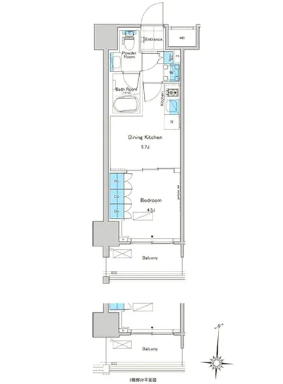
この物件の心臓部、リビングダイニングキッチンは、5.7帖の広さで、まるで心を開かせる名曲のように、あなたを優しく包み込みます。窓の外…ルフォンプログレ清澄白河プレミア 205は、東京の喧騒を忘れさせてくれる、隠れ家のような魅力をまとった邸宅です。205という番号は、まるでこの特別な空間の「おもてなし」を象徴しているかのよう。ふとした瞬間、静寂の中にあなたの心がほっと安らぐのを感じることでしょう。
この物件の心臓部、リビングダイニングキッチンは、5.7帖の広さで、まるで心を開かせる名曲のように、あなたを優しく包み込みます。窓の外には、南向きの柔らかな陽射しが浸透し、微かに香る新緑の風が味わえます。それはまるで春の目覚めのメロディー。空気に漂うのは、都会の喧騒を背負っていたあなたを解き放つための特別なエッセンスなのです。
入居後の日々は、まるで映画のワンシーンのように展開していきます。朝、キッチンに立てば、おいしいコーヒーの香りが漂い、陽光がダンスをするかのようにキッチンを照らします。朝食を摂りながら、エレガントなダイニングスペースでのんびりと時間を楽しむ姿が、まるで贅沢なひとときの中にいるかのようです。夕方になると、窓の外の風景がどこか美術館の一角のように彩りを添え、食卓に並ぶ料理がアート作品のように感じられることでしょう。
そして、静かな夜が訪れれば、4.3帖の洋室はまるで秘密の隠れ家。お気に入りの本を手にし、柔らかな光の中でページをめくるたび、心が満たされていくのを感じます。ベッドに横たわると、外の街の音が心地よいささやきになり、まるで夢の世界へ誘うように、あなたを優しく包み込みます。まるで星空の下で眠りにつくかのように。
交通の便も申し分なく、東京メトロ半蔵門線の清澄白河駅まで徒歩3分の距離。日常の喧騒から少し離れたこの場所で、心地よい音楽に耳を傾け、静かなひとときを楽しむ。周囲には歴史的な名所も多く、時間を忘れて巡ることのできる街並みが広がっています。その土地の文化や芸術に触れながら、新しい発見と感動に出会うことでしょう。
このルフォンプログレ清澄白河プレミア 205が、あなたにとっての新しい舞台となるよう、静かに語りかけてきます。生活の一瞬一瞬を大切にし、心を豊かにする場所として、あなたの物語を彩ることでしょう。日常が特別なものに変わる、そんな素敵なライフスタイルがここには広がっています。是非、あなた自身の目で、この魅力的な住まいを体感してみてください。
この物件の心臓部、リビングダイニングキッチンは、5.7帖の広さで、まるで心を開かせる名曲のように、あなたを優しく包み込みます。窓の外…ルフォンプログレ清澄白河プレミア 205は、東京の喧騒を忘れさせてくれる、隠れ家のような魅力をまとった邸宅です。205という番号は、まるでこの特別な空間の「おもてなし」を象徴しているかのよう。ふとした瞬間、静寂の中にあなたの心がほっと安らぐのを感じることでしょう。
この物件の心臓部、リビングダイニングキッチンは、5.7帖の広さで、まるで心を開かせる名曲のように、あなたを優しく包み込みます。窓の外には、南向きの柔らかな陽射しが浸透し、微かに香る新緑の風が味わえます。それはまるで春の目覚めのメロディー。空気に漂うのは、都会の喧騒を背負っていたあなたを解き放つための特別なエッセンスなのです。
入居後の日々は、まるで映画のワンシーンのように展開していきます。朝、キッチンに立てば、おいしいコーヒーの香りが漂い、陽光がダンスをするかのようにキッチンを照らします。朝食を摂りながら、エレガントなダイニングスペースでのんびりと時間を楽しむ姿が、まるで贅沢なひとときの中にいるかのようです。夕方になると、窓の外の風景がどこか美術館の一角のように彩りを添え、食卓に並ぶ料理がアート作品のように感じられることでしょう。
そして、静かな夜が訪れれば、4.3帖の洋室はまるで秘密の隠れ家。お気に入りの本を手にし、柔らかな光の中でページをめくるたび、心が満たされていくのを感じます。ベッドに横たわると、外の街の音が心地よいささやきになり、まるで夢の世界へ誘うように、あなたを優しく包み込みます。まるで星空の下で眠りにつくかのように。
交通の便も申し分なく、東京メトロ半蔵門線の清澄白河駅まで徒歩3分の距離。日常の喧騒から少し離れたこの場所で、心地よい音楽に耳を傾け、静かなひとときを楽しむ。周囲には歴史的な名所も多く、時間を忘れて巡ることのできる街並みが広がっています。その土地の文化や芸術に触れながら、新しい発見と感動に出会うことでしょう。
このルフォンプログレ清澄白河プレミア 205が、あなたにとっての新しい舞台となるよう、静かに語りかけてきます。生活の一瞬一瞬を大切にし、心を豊かにする場所として、あなたの物語を彩ることでしょう。日常が特別なものに変わる、そんな素敵なライフスタイルがここには広がっています。是非、あなた自身の目で、この魅力的な住まいを体感してみてください。
バイブルスコア
バイブルスコア: 41.1
条件のいい物件です、引っ越しが2か月以内の場合は仮申し込みを検討すべき物件です。
※バイブルスコア詳細はこちら
バイブルスコアとは独自のAI機械学習技術を利用した物件評価システムで、物件のおすすめ度を示します。最高得点は100点で、スコアが高いほど、よりおすすめの物件と評価されています。
写真
契約条件
| 賃料 | 予想金額:112,000〜132,000円程度 | 管理費 | 予想金額:13,000〜17,000円程度 |
| 礼金 | 非公開(アーカイブ) | 敷金 | 非公開(アーカイブ) |
| フリーレント | なし | 平米数 | 26.84㎡ |
| 間取り | 1DK | 大型収納 | |
| 契約期間 |
| 方角 | 南 |
| 更新料 | 契約形態 | 普通賃貸借契約 | |
| 取引態様 | 媒介 | 内見状況 | 入居中 |
| 入居時期 | 入居中 | SOHO・事務所 | |
| ペット | 間取り内訳 | 洋:4.3 DK:5.7 | |
| キャンペーン情報・備考 | 本情報は賃料改定交渉の資料作成、収益物件の利回り試算、周辺エリアや最寄り駅の坪単価分析、次回募集開始時期の予測などにご活用いただけます。 | ||
※「どの不動産に頼めばいいのか分からない」「信頼できる営業マンの話を聞きたい」「一番親切な会社と契約したい」とお悩みの方におすすめなのが「高級賃貸バイブル」です。
高級賃貸バイブルは業界10年以上の熟練スタッフ群がお客様ファーストで対応します。
下記ボタンから、まずは無料でご相談下さい。
※内覧をご希望の際には、どうぞ物件のエントランス前にてお待ち合わせくださいませ。ご内覧後は、同じ場所でお別れとさせていただきます。お客様のご都合に合わせたスムーズなご案内を心がけておりますので、ご質問等がございましたら何なりとお申し付けください。 物件概要
| 物件名 |
| 築年月 |
|
|---|---|---|---|
| 所在地 | |||
| 交通 | |||
| 総戸数 |
| 総階数 |
|
| 構造 |
| ||
地図
物件までの道のりは、「拡大地図を表示」をクリックしてナビ機能をご利用ください。
部屋設備











建物設備

TVモニターホン

エレベーター

オートロック

バイク置場

ラウンジ

宅配ボックス

敷地内ゴミ置場

管理人

駐車場平置き

駐車場機械式

駐輪場
ルフォンプログレ清澄白河プレミアの現在募集中のお部屋
- No rooms found for this property.



























