
| 賃料 | 予想金額:107,000〜127,000円程度 | 管理費 | 予想金額:8,000〜12,000円程度 |
| 礼金/敷金 | 非公開(アーカイブ) | 平米数 | 25.41㎡ |
| 初期費用概算(参考) | 目安:34,260〜134,260 円 | みなし賃料(月額・参考) | 118,755〜138,755 円 |
| 備考 | 本ページは過去募集のアーカイブです。表示の金額は周辺相場・過去募集を踏まえた参考レンジであり、実際の契約金額・条件ではありません。 | ||
※上記みなし賃料(月額)は仲介手数料割引・無料&キャッシュバックを加味した高級賃貸バイブル限定の金額です。一般的なみなし賃料とは異なります。
【建物ページ】リビオメゾン新大橋の詳細・最新空室はこちら▶▶選ばれる理由
仲介手数料無料・キャンペーン情報(毎月15名様限定)
〇引っ越しお祝い金142740円プレゼント(キャッシュバック)
〇フリーレント1か月キャンペーン
〇仲介手数料無料キャンペーン
リビオメゾン新大橋 306の口コミ・レビュー
リビオメゾン新大橋 306。ここは、まるで都会の喧騒から一歩離れた隠れ家のように、静謐な時間が流れる場所です。東京都江東区新大橋に位置し、306という数字は、あなたにとって特別な物語の扉を開く合図であるかのように響きます。この空間は、25.41㎡の専有面積を持ちながら、心を包み込むような温もりを与えてくれます。
この物件は、あなたの新しい生活の舞台として、見事に配置された2.9帖の洋室と6.8帖…リビオメゾン新大橋 306。ここは、まるで都会の喧騒から一歩離れた隠れ家のように、静謐な時間が流れる場所です。東京都江東区新大橋に位置し、306という数字は、あなたにとって特別な物語の扉を開く合図であるかのように響きます。この空間は、25.41㎡の専有面積を持ちながら、心を包み込むような温もりを与えてくれます。
この物件は、あなたの新しい生活の舞台として、見事に配置された2.9帖の洋室と6.8帖のDKが、あなたの日常を豊かに彩ります。あたかも、薄明かりの中で見つめる朝日が、そっと目を覚まさせてくれるような感覚を覚えることでしょう。窓の外に広がる西の景色は、日が沈むにつれて色彩が溶け合い、まるでキャンバスに描かれた絵画のように、あなたの心を奪います。
リビオメゾン新大橋 306に住むあなたにとって、毎日が映画の一シーンになることでしょう。柔らかな香り立つコーヒーを淹れると、キッチンから漂うその香ばしさは、愛する人と過ごす朝の幸せを感じさせてくれます。オートロックのある玄関を開けて、まるで特別な日常に迎え入れられるような感覚を味わうことでしょう。
また、TVモニターホンは、あなたの目の前に立つ全ての人々の笑顔を見逃さないような優しさをもたらしてくれます。エレベーターに乗り、緊張から解放されていくあの瞬間も、あなたの心に安堵感を与えてくれることでしょう。宅配ボックスやバイク置場、駐輪場などの便利な設備は、忙しい毎日を支える黒子のように、あなたの生活を陰で支えてくれています。
周辺には、時代を超えて息づく文化と歴史が息づいています。江東区新大橋は、古き良き町並みが残り、街の脈々とした歴史を感じさせる場所です。街を歩けば、江戸情緒が漂うお店やアートギャラリーが点在し、あなたの感性を刺激してくれることでしょう。美しいアートや歴史的な建物は、あなたの心の中で新たなインスピレーションを育むサプリメントのように感じられます。
リビオメゾン新大橋 306は、ただの住居ではなく、あなたが特別な瞬間を紡いでいくための舞台です。都会の喧騒を背に、あなた自身の物語をここで描き始めてみませんか。心が震える瞬間が、多くの感覚を刺激するその場所で、待っています。あなたの運命を決める新しい章がここに開かれているのです。
この物件は、あなたの新しい生活の舞台として、見事に配置された2.9帖の洋室と6.8帖…リビオメゾン新大橋 306。ここは、まるで都会の喧騒から一歩離れた隠れ家のように、静謐な時間が流れる場所です。東京都江東区新大橋に位置し、306という数字は、あなたにとって特別な物語の扉を開く合図であるかのように響きます。この空間は、25.41㎡の専有面積を持ちながら、心を包み込むような温もりを与えてくれます。
この物件は、あなたの新しい生活の舞台として、見事に配置された2.9帖の洋室と6.8帖のDKが、あなたの日常を豊かに彩ります。あたかも、薄明かりの中で見つめる朝日が、そっと目を覚まさせてくれるような感覚を覚えることでしょう。窓の外に広がる西の景色は、日が沈むにつれて色彩が溶け合い、まるでキャンバスに描かれた絵画のように、あなたの心を奪います。
リビオメゾン新大橋 306に住むあなたにとって、毎日が映画の一シーンになることでしょう。柔らかな香り立つコーヒーを淹れると、キッチンから漂うその香ばしさは、愛する人と過ごす朝の幸せを感じさせてくれます。オートロックのある玄関を開けて、まるで特別な日常に迎え入れられるような感覚を味わうことでしょう。
また、TVモニターホンは、あなたの目の前に立つ全ての人々の笑顔を見逃さないような優しさをもたらしてくれます。エレベーターに乗り、緊張から解放されていくあの瞬間も、あなたの心に安堵感を与えてくれることでしょう。宅配ボックスやバイク置場、駐輪場などの便利な設備は、忙しい毎日を支える黒子のように、あなたの生活を陰で支えてくれています。
周辺には、時代を超えて息づく文化と歴史が息づいています。江東区新大橋は、古き良き町並みが残り、街の脈々とした歴史を感じさせる場所です。街を歩けば、江戸情緒が漂うお店やアートギャラリーが点在し、あなたの感性を刺激してくれることでしょう。美しいアートや歴史的な建物は、あなたの心の中で新たなインスピレーションを育むサプリメントのように感じられます。
リビオメゾン新大橋 306は、ただの住居ではなく、あなたが特別な瞬間を紡いでいくための舞台です。都会の喧騒を背に、あなた自身の物語をここで描き始めてみませんか。心が震える瞬間が、多くの感覚を刺激するその場所で、待っています。あなたの運命を決める新しい章がここに開かれているのです。
バイブルスコア
バイブルスコア: 26.5
平均的なスコアです。
※バイブルスコア詳細はこちら
バイブルスコアとは独自のAI機械学習技術を利用した物件評価システムで、物件のおすすめ度を示します。最高得点は100点で、スコアが高いほど、よりおすすめの物件と評価されています。
写真
契約条件
| 賃料 | 予想金額:107,000〜127,000円程度 | 管理費 | 予想金額:8,000〜12,000円程度 |
| 礼金 | 非公開(アーカイブ) | 敷金 | 非公開(アーカイブ) |
| フリーレント | 1.0ヶ月 | 平米数 | 25.41㎡ |
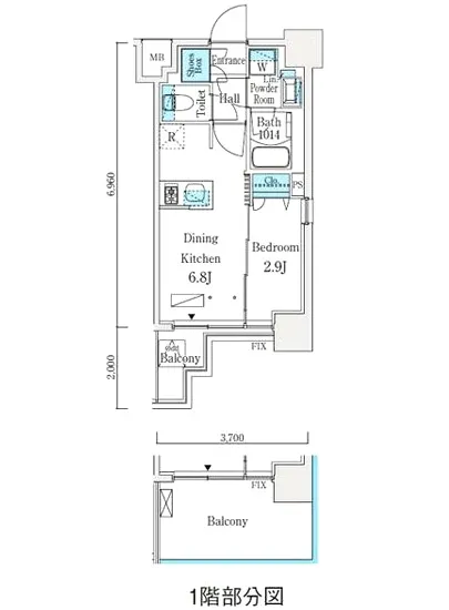
| 間取り | 1DK | 大型収納 | |
| 契約期間 |
| 方角 | 西 |
| 更新料 | 契約形態 | 普通賃貸借契約 | |
| 取引態様 | 媒介 | 内見状況 | 入居中 |
| 入居時期 | 入居中 | SOHO・事務所 | |
| ペット | ペット可 | 間取り内訳 | 洋:2.9 DK:6.8 |
| キャンペーン情報・備考 | 本情報は賃料改定交渉の資料作成、収益物件の利回り試算、周辺エリアや最寄り駅の坪単価分析、次回募集開始時期の予測などにご活用いただけます。 | ||
※「どの不動産に頼めばいいのか分からない」「信頼できる営業マンの話を聞きたい」「一番親切な会社と契約したい」とお悩みの方におすすめなのが「高級賃貸バイブル」です。
高級賃貸バイブルは業界10年以上の熟練スタッフ群がお客様ファーストで対応します。
下記ボタンから、まずは無料でご相談下さい。
※内覧をご希望の際には、どうぞ物件のエントランス前にてお待ち合わせくださいませ。ご内覧後は、同じ場所でお別れとさせていただきます。お客様のご都合に合わせたスムーズなご案内を心がけておりますので、ご質問等がございましたら何なりとお申し付けください。 物件概要
| 物件名 |
| 築年月 |
|
|---|---|---|---|
| 所在地 | |||
| 交通 | |||
| 総戸数 |
| 総階数 |
|
| 構造 |
| ||
地図
物件までの道のりは、「拡大地図を表示」をクリックしてナビ機能をご利用ください。
部屋設備













建物設備

TVモニターホン

エレベーター

オートロック

バイク置場

宅配ボックス

敷地内ゴミ置場

管理人

駐輪場
リビオメゾン新大橋の現在募集中のお部屋
- No rooms found for this property.



