
| 賃料 | 予想金額:89,000〜109,000円程度 | 管理費 | 予想金額:8,000〜12,000円程度 |
| 礼金/敷金 | 非公開(アーカイブ) | 平米数 | 25.2㎡ |
| 初期費用概算(参考) | 目安:227,220〜327,220 円 | みなし賃料(月額・参考) | 104,775〜124,775 円 |
| 備考 | 本ページは過去募集のアーカイブです。表示の金額は周辺相場・過去募集を踏まえた参考レンジであり、実際の契約金額・条件ではありません。 | ||
※上記みなし賃料(月額)は仲介手数料割引・無料&キャッシュバックを加味した高級賃貸バイブル限定の金額です。一般的なみなし賃料とは異なります。
【建物ページ】ディームス東陽町2の詳細・最新空室はこちら▶▶選ばれる理由
仲介手数料無料・キャンペーン情報(毎月15名様限定)
〇引っ越しお祝い金21780円プレゼント(キャッシュバック)
〇フリーレント1か月キャンペーン
〇仲介手数料無料キャンペーン
ディームス東陽町2 903の口コミ・レビュー
ディームス東陽町2 903が、あなたの新たな家となる準備を整えています。この特別な空間は、東京都江東区南砂2-2-8に位置し、まるで心のオアシスのように、日々の喧騒から逃れるための大切な refugium(レフュジウム)です。903号室は、特に北向きの窓から差し込む柔らかな自然光が、まるで画家が用いる絵筆のように、あなたの日常を彩ります。
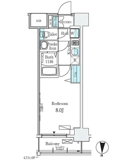
この1Kの間取りは、25.2㎡の空間に凝縮された贅沢を感…ディームス東陽町2 903が、あなたの新たな家となる準備を整えています。この特別な空間は、東京都江東区南砂2-2-8に位置し、まるで心のオアシスのように、日々の喧騒から逃れるための大切な refugium(レフュジウム)です。903号室は、特に北向きの窓から差し込む柔らかな自然光が、まるで画家が用いる絵筆のように、あなたの日常を彩ります。
この1Kの間取りは、25.2㎡の空間に凝縮された贅沢を感じさせます。生活は広々とした洋室8帖から始まり、心地よい風が通り抜ける瞬間を心から楽しむことができます。大きな窓からの視界は、青空と雲の流れを捉え、日々のストレスを洗い流すかのようです。思わず深呼吸し、空気の中に溶け込んだ季節の香りを感じることでしょう。春には花々の香り、夏には青々とした草木の息吹、秋には落ち葉の香りに包まれ、冬には清々しい冷気が、毎日の生活を豊かに彩ります。
ディームス東陽町2 903は、ただの住まいではありません。ここは、心に響く音楽が流れ、静寂の中にこそ深い感動が潜む空間です。TVモニターホンから響く心地よい音は、まるで扉を開ける瞬間の期待感を高め、オートロックで守られた安心感は、まるで強固な城壁のように、あなたを包み込んでくれます。エレベーターで上がる度に少しドキドキし、毎日が冒険のように感じられることでしょう。
この物件の周囲には、歴史的な文化と現代の洗練が見事に融合しています。近くの東陽町駅は、東京メトロ東西線が通っており、都心へのアクセスがとてもスムーズです。街を散策すれば、豊かな緑に包まれた公園や、地元のアートシーンを体感できるギャラリーが点在し、まるで映画のワンシーンのように心を奪われることでしょう。夕暮れ時の散歩道では、風のさざめきとともに、地元の人々との温かい交流があなたを待っています。
この高級賃貸物件、ディームス東陽町2 903で新しい生活を始めることは、まるで新たな章の幕開けのようです。さあ、あなたの物語をこの特別な場所で紡いでください。新しい朝の訪れを、心地よい布団の中から感じ、目を覚ましたその瞬間から、豊かな生活があなたを待っています。毎日が映画のように、感動と発見に満ち溢れた日々が、ここで起こるのです。ディームス東陽町2 903で、あなたの新たな人生を築き上げてみてはいかがでしょうか。
この1Kの間取りは、25.2㎡の空間に凝縮された贅沢を感…ディームス東陽町2 903が、あなたの新たな家となる準備を整えています。この特別な空間は、東京都江東区南砂2-2-8に位置し、まるで心のオアシスのように、日々の喧騒から逃れるための大切な refugium(レフュジウム)です。903号室は、特に北向きの窓から差し込む柔らかな自然光が、まるで画家が用いる絵筆のように、あなたの日常を彩ります。
この1Kの間取りは、25.2㎡の空間に凝縮された贅沢を感じさせます。生活は広々とした洋室8帖から始まり、心地よい風が通り抜ける瞬間を心から楽しむことができます。大きな窓からの視界は、青空と雲の流れを捉え、日々のストレスを洗い流すかのようです。思わず深呼吸し、空気の中に溶け込んだ季節の香りを感じることでしょう。春には花々の香り、夏には青々とした草木の息吹、秋には落ち葉の香りに包まれ、冬には清々しい冷気が、毎日の生活を豊かに彩ります。
ディームス東陽町2 903は、ただの住まいではありません。ここは、心に響く音楽が流れ、静寂の中にこそ深い感動が潜む空間です。TVモニターホンから響く心地よい音は、まるで扉を開ける瞬間の期待感を高め、オートロックで守られた安心感は、まるで強固な城壁のように、あなたを包み込んでくれます。エレベーターで上がる度に少しドキドキし、毎日が冒険のように感じられることでしょう。
この物件の周囲には、歴史的な文化と現代の洗練が見事に融合しています。近くの東陽町駅は、東京メトロ東西線が通っており、都心へのアクセスがとてもスムーズです。街を散策すれば、豊かな緑に包まれた公園や、地元のアートシーンを体感できるギャラリーが点在し、まるで映画のワンシーンのように心を奪われることでしょう。夕暮れ時の散歩道では、風のさざめきとともに、地元の人々との温かい交流があなたを待っています。
この高級賃貸物件、ディームス東陽町2 903で新しい生活を始めることは、まるで新たな章の幕開けのようです。さあ、あなたの物語をこの特別な場所で紡いでください。新しい朝の訪れを、心地よい布団の中から感じ、目を覚ましたその瞬間から、豊かな生活があなたを待っています。毎日が映画のように、感動と発見に満ち溢れた日々が、ここで起こるのです。ディームス東陽町2 903で、あなたの新たな人生を築き上げてみてはいかがでしょうか。
バイブルスコア
バイブルスコア: 37.8
平均的なスコアです。
※バイブルスコア詳細はこちら
バイブルスコアとは独自のAI機械学習技術を利用した物件評価システムで、物件のおすすめ度を示します。最高得点は100点で、スコアが高いほど、よりおすすめの物件と評価されています。
写真
現在写真が登録されていません契約条件
| 賃料 | 予想金額:89,000〜109,000円程度 | 管理費 | 予想金額:8,000〜12,000円程度 |
| 礼金 | 非公開(アーカイブ) | 敷金 | 非公開(アーカイブ) |
| フリーレント | 1.0ヶ月 | 平米数 | 25.2㎡ |
| 間取り | 1K | 大型収納 | |
| 契約期間 |
| 方角 | 北 |
| 更新料 | 契約形態 | 普通賃貸借契約 | |
| 取引態様 | 媒介 | 内見状況 | 入居中 |
| 入居時期 | 入居中 | SOHO・事務所 | |
| ペット | ペット可 | 間取り内訳 | 洋:8 |
| キャンペーン情報・備考 | 本情報は賃料改定交渉の資料作成、収益物件の利回り試算、周辺エリアや最寄り駅の坪単価分析、次回募集開始時期の予測などにご活用いただけます。 | ||
※「どの不動産に頼めばいいのか分からない」「信頼できる営業マンの話を聞きたい」「一番親切な会社と契約したい」とお悩みの方におすすめなのが「高級賃貸バイブル」です。
高級賃貸バイブルは業界10年以上の熟練スタッフ群がお客様ファーストで対応します。
下記ボタンから、まずは無料でご相談下さい。
※内覧をご希望の際には、どうぞ物件のエントランス前にてお待ち合わせくださいませ。ご内覧後は、同じ場所でお別れとさせていただきます。お客様のご都合に合わせたスムーズなご案内を心がけておりますので、ご質問等がございましたら何なりとお申し付けください。 物件概要
| 物件名 |
| 築年月 |
|
|---|---|---|---|
| 所在地 | |||
| 交通 | |||
| 総戸数 |
| 総階数 |
|
| 構造 |
| ||
地図
物件までの道のりは、「拡大地図を表示」をクリックしてナビ機能をご利用ください。
部屋設備













建物設備

TVモニターホン

エレベーター

オートロック

バイク置場

宅配ボックス

敷地内ゴミ置場

管理人

駐車場平置き

駐輪場
ディームス東陽町2の現在募集中のお部屋
- ディームス東陽町Ⅱ 615 - 間取り: 1LDK - 賃料: 15万円
- ディームス東陽町Ⅱ 710 - 間取り: 1LDK - 賃料: 15.1万円
- ディームス東陽町Ⅱ 215 - 間取り: 1LDK - 賃料: 15.1万円
- ディームス東陽町Ⅱ 712 - 間取り: 1LDK - 賃料: 15.1万円
