
| 賃料 | 予想金額:96,000〜116,000円程度 | 管理費 | 予想金額:8,000〜12,000円程度 |
| 礼金/敷金 | 非公開(アーカイブ) | 平米数 | 25.19㎡ |
| 初期費用概算(参考) | 目安:137,180〜237,180 円 | みなし賃料(月額・参考) | 107,691〜127,691 円 |
| 備考 | 本ページは過去募集のアーカイブです。表示の金額は周辺相場・過去募集を踏まえた参考レンジであり、実際の契約金額・条件ではありません。 | ||
※上記みなし賃料(月額)は仲介手数料割引・無料&キャッシュバックを加味した高級賃貸バイブル限定の金額です。一般的なみなし賃料とは異なります。
【建物ページ】ジオエント大塚の詳細・最新空室はこちら▶▶選ばれる理由
仲介手数料無料・キャンペーン情報(毎月15名様限定)
〇引っ越しお祝い金129320円プレゼント(キャッシュバック)
〇仲介手数料無料キャンペーン
ジオエント大塚 101の口コミ・レビュー
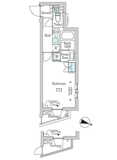
「ジオエント大塚 101」は、穏やかな東の光に包まれる住まいです。その部屋は、まるで貴族の隠れ家のように、落ち着きと優雅さが漂い、あなたを新しい世界へと導いてくれる場所です。広さ25.19㎡という限られた空間に、7.7帖の洋室が独自の芸術性をもたらしています。あなたは、その空間に足を踏み入れるたびに、静かに心を解放し、日常の喧騒から離れた夢の中へ迷い込むことでしょう。
この部屋は、ただの居所では…「ジオエント大塚 101」は、穏やかな東の光に包まれる住まいです。その部屋は、まるで貴族の隠れ家のように、落ち着きと優雅さが漂い、あなたを新しい世界へと導いてくれる場所です。広さ25.19㎡という限られた空間に、7.7帖の洋室が独自の芸術性をもたらしています。あなたは、その空間に足を踏み入れるたびに、静かに心を解放し、日常の喧騒から離れた夢の中へ迷い込むことでしょう。
この部屋は、ただの居所ではなく、心の拠り所であり、出発点です。朝日がカーテン越しに優しく差し込み、光と影の戯れが心地よい静寂を紡ぎます。目を閉じると、外の世界とのつながりを感じ、鳥のさえずりや風のざわめきが微かに耳に届きます。この部屋に住むことは、まるで毎日が映画のワンシーンのように、心に残る瞬間を演出することと同義です。
「ジオエント大塚 101」の魅力は、その贅沢な設備にも宿っています。オートロックや宅配ボックスは、あなたの日常をすっきりと整え、安心感を提供します。管理人の存在は、まるでお隣さんのように親しみを感じられ、心の拠り所となることでしょう。エレベーターがあなたを優雅に空へ運び、駐輪場での自転車をそっと迎え入れる様は、まるで名優のような仕草です。
周囲には歴史の香りが漂い、文化と芸術が交錯する豊島区南大塚の街があります。新大塚駅から徒歩7分という位置は、あなたにとっての足元をしっかりと支える存在です。ここでは日常生活の中に、地域のアートやイベントが溶け込み、五感を刺激する素敵な体験が待っています。散策すると、街角に佇む小さなギャラリーや、アーティストが営むカフェが出迎えてくれるでしょう。地元の味が詰まった料理を楽しむことで、食のセンサーも研ぎ澄まされ、新しい発見が日常の中に織り交ぜられます。
「ジオエント大塚 101」は、ただの住まいではありません。そこは、あなたの生き様が詰まったストーリーの舞台であり、夢を実現するための大切な場所です。毎日の暮らしが、心に残るような美しいシーンのように彩られ、この空間があなたに語りかけてくることでしょう。あなた自身の物語を紡ぎながら、ぜひこの場所で新しい生活を始めてみてください。その一歩が、あなたの未来を輝かせる大きな転機となることを信じています。
この部屋は、ただの居所では…「ジオエント大塚 101」は、穏やかな東の光に包まれる住まいです。その部屋は、まるで貴族の隠れ家のように、落ち着きと優雅さが漂い、あなたを新しい世界へと導いてくれる場所です。広さ25.19㎡という限られた空間に、7.7帖の洋室が独自の芸術性をもたらしています。あなたは、その空間に足を踏み入れるたびに、静かに心を解放し、日常の喧騒から離れた夢の中へ迷い込むことでしょう。
この部屋は、ただの居所ではなく、心の拠り所であり、出発点です。朝日がカーテン越しに優しく差し込み、光と影の戯れが心地よい静寂を紡ぎます。目を閉じると、外の世界とのつながりを感じ、鳥のさえずりや風のざわめきが微かに耳に届きます。この部屋に住むことは、まるで毎日が映画のワンシーンのように、心に残る瞬間を演出することと同義です。
「ジオエント大塚 101」の魅力は、その贅沢な設備にも宿っています。オートロックや宅配ボックスは、あなたの日常をすっきりと整え、安心感を提供します。管理人の存在は、まるでお隣さんのように親しみを感じられ、心の拠り所となることでしょう。エレベーターがあなたを優雅に空へ運び、駐輪場での自転車をそっと迎え入れる様は、まるで名優のような仕草です。
周囲には歴史の香りが漂い、文化と芸術が交錯する豊島区南大塚の街があります。新大塚駅から徒歩7分という位置は、あなたにとっての足元をしっかりと支える存在です。ここでは日常生活の中に、地域のアートやイベントが溶け込み、五感を刺激する素敵な体験が待っています。散策すると、街角に佇む小さなギャラリーや、アーティストが営むカフェが出迎えてくれるでしょう。地元の味が詰まった料理を楽しむことで、食のセンサーも研ぎ澄まされ、新しい発見が日常の中に織り交ぜられます。
「ジオエント大塚 101」は、ただの住まいではありません。そこは、あなたの生き様が詰まったストーリーの舞台であり、夢を実現するための大切な場所です。毎日の暮らしが、心に残るような美しいシーンのように彩られ、この空間があなたに語りかけてくることでしょう。あなた自身の物語を紡ぎながら、ぜひこの場所で新しい生活を始めてみてください。その一歩が、あなたの未来を輝かせる大きな転機となることを信じています。
バイブルスコア
バイブルスコア: 38.2
平均的なスコアです。
※バイブルスコア詳細はこちら
バイブルスコアとは独自のAI機械学習技術を利用した物件評価システムで、物件のおすすめ度を示します。最高得点は100点で、スコアが高いほど、よりおすすめの物件と評価されています。
写真
現在写真が登録されていません契約条件
| 賃料 | 予想金額:96,000〜116,000円程度 | 管理費 | 予想金額:8,000〜12,000円程度 |
| 礼金 | 非公開(アーカイブ) | 敷金 | 非公開(アーカイブ) |
| フリーレント | なし | 平米数 | 25.19㎡ |
| 間取り | 1K | 大型収納 | |
| 契約期間 |
| 方角 | 東 |
| 更新料 | 契約形態 | 普通賃貸借契約 | |
| 取引態様 | 媒介 | 内見状況 | 入居中 |
| 入居時期 | 入居中 | SOHO・事務所 | |
| ペット | 間取り内訳 | 洋:7.7 | |
| キャンペーン情報・備考 | 本情報は賃料改定交渉の資料作成、収益物件の利回り試算、周辺エリアや最寄り駅の坪単価分析、次回募集開始時期の予測などにご活用いただけます。 | ||
※「どの不動産に頼めばいいのか分からない」「信頼できる営業マンの話を聞きたい」「一番親切な会社と契約したい」とお悩みの方におすすめなのが「高級賃貸バイブル」です。
高級賃貸バイブルは業界10年以上の熟練スタッフ群がお客様ファーストで対応します。
下記ボタンから、まずは無料でご相談下さい。
※内覧をご希望の際には、どうぞ物件のエントランス前にてお待ち合わせくださいませ。ご内覧後は、同じ場所でお別れとさせていただきます。お客様のご都合に合わせたスムーズなご案内を心がけておりますので、ご質問等がございましたら何なりとお申し付けください。 物件概要
| 物件名 |
| 築年月 |
|
|---|---|---|---|
| 所在地 | |||
| 交通 | |||
| 総戸数 |
| 総階数 |
|
| 構造 |
| ||
地図
物件までの道のりは、「拡大地図を表示」をクリックしてナビ機能をご利用ください。
部屋設備














建物設備

TVモニターホン

エレベーター

オートロック

宅配ボックス

敷地内ゴミ置場

管理人

駐輪場
ジオエント大塚の現在募集中のお部屋
- No rooms found for this property.
