
| 賃料 | 予想金額:124,000〜144,000円程度 | 管理費 | 予想金額:10,000〜14,000円程度 |
| 礼金/敷金 | 非公開(アーカイブ) | 平米数 | 35.04㎡ |
| 初期費用概算(参考) | 目安:176,020〜276,020 円 | みなし賃料(月額・参考) | 140,709〜160,709 円 |
| 備考 | 本ページは過去募集のアーカイブです。表示の金額は周辺相場・過去募集を踏まえた参考レンジであり、実際の契約金額・条件ではありません。 | ||
※上記みなし賃料(月額)は仲介手数料割引・無料&キャッシュバックを加味した高級賃貸バイブル限定の金額です。一般的なみなし賃料とは異なります。
【建物ページ】パークアクシス駒込ヒルトップの詳細・最新空室はこちら▶▶選ばれる理由
仲介手数料無料・キャンペーン情報(毎月15名様限定)
〇引っ越しお祝い金163480円プレゼント(キャッシュバック)
〇フリーレント1か月キャンペーン
〇仲介手数料無料キャンペーン
パークアクシス駒込ヒルトップ 405の口コミ・レビュー
パークアクシス駒込ヒルトップ 405。貴方自身がこの特別な空間に足を踏み入れた瞬間、まるで時が止まったかのような心地よい感覚に包まれることでしょう。ここ、東京都北区中里に佇むこの高級賃貸物件は、ただの住まいではなく、人生の舞台となる場所なのです。南西に面し、柔らかな陽射しが優雅に差し込むこの住居は、あなたの日々をより豊かに彩ることでしょう。
部屋に一歩入ると、さまざまな感覚が心を満たします。広々…パークアクシス駒込ヒルトップ 405。貴方自身がこの特別な空間に足を踏み入れた瞬間、まるで時が止まったかのような心地よい感覚に包まれることでしょう。ここ、東京都北区中里に佇むこの高級賃貸物件は、ただの住まいではなく、人生の舞台となる場所なのです。南西に面し、柔らかな陽射しが優雅に差し込むこの住居は、あなたの日々をより豊かに彩ることでしょう。
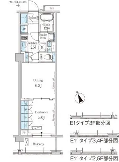
部屋に一歩入ると、さまざまな感覚が心を満たします。広々とした洋室5帖は、窓からの風を感じながら、まるで自然があなたの友達であるかのように、穏やかな会話を交わします。続いて、ダイニングスペース6.3帖には、心温まる家族の笑い声や友人たちとの楽しい食事が響き渡ることでしょう。ふとした瞬間、あなたの指先を神秘的な木のテーブルの面でなぞれば、その温もりが心に安心感を与えるのです。キッチン2.5帖では、新鮮な食材の香りが漂い、料理の喜びがあなたを誘います。まるで料理の魔法にかかったかのように、あなたの手が自由に動き、食卓に美味なる作品を生み出すことができるのです。
パークアクシス駒込ヒルトップ 405は、ただの住居ではない、貴方の人生の舞台であり、感情を揺さぶるところなのです。静かな夜には、心地よいラウンジでの読書が、まるで映画のワンシーンのように心に刻まれ、日常の喧騒を忘れさせてくれます。そして、管理人の温かな視線と24時間の管理により、安心感が漂い、身を委ねることができるのです。
この物件は、駒込駅から徒歩8分というアクセスの良さも魅力のひとつ。東京の歴史ある街並みが、あなたを迎え入れてくれます。周辺には古き良き文化が息づき、趣のある店やカフェが立ち並び、まるで一枚の絵画を描いているかのようです。朝の散歩では、心地よい鳥のさえずりを聞きながら、かすかに漂うコーヒーの香りを楽しむことができるでしょう。
そして、この物件が持つデザイナーズの魅力は、あなたの心をくすぐります。オートロックや宅配ボックス、駐輪場といった便利な設備は、生活に必要な安心感を提供し、さらに低層での穏やかな生活は、ストレスを忘れさせてくれます。バイク置場や駐車場も完備され、あなたのライフスタイルをより豊かにします。
パークアクシス駒込ヒルトップ 405での生活は、心豊かな物語の始まりです。感じること、楽しむこと、受け入れることが、ここでの日々を特別なものにしてくれることでしょう。この空間に住むということは、ただの居住ではなく、人生の喜びを追求する旅の始まりなのです。どうぞ、この特別な場所での生活を味わい、貴方自身の物語を紡いでください。
部屋に一歩入ると、さまざまな感覚が心を満たします。広々…パークアクシス駒込ヒルトップ 405。貴方自身がこの特別な空間に足を踏み入れた瞬間、まるで時が止まったかのような心地よい感覚に包まれることでしょう。ここ、東京都北区中里に佇むこの高級賃貸物件は、ただの住まいではなく、人生の舞台となる場所なのです。南西に面し、柔らかな陽射しが優雅に差し込むこの住居は、あなたの日々をより豊かに彩ることでしょう。
部屋に一歩入ると、さまざまな感覚が心を満たします。広々とした洋室5帖は、窓からの風を感じながら、まるで自然があなたの友達であるかのように、穏やかな会話を交わします。続いて、ダイニングスペース6.3帖には、心温まる家族の笑い声や友人たちとの楽しい食事が響き渡ることでしょう。ふとした瞬間、あなたの指先を神秘的な木のテーブルの面でなぞれば、その温もりが心に安心感を与えるのです。キッチン2.5帖では、新鮮な食材の香りが漂い、料理の喜びがあなたを誘います。まるで料理の魔法にかかったかのように、あなたの手が自由に動き、食卓に美味なる作品を生み出すことができるのです。
パークアクシス駒込ヒルトップ 405は、ただの住居ではない、貴方の人生の舞台であり、感情を揺さぶるところなのです。静かな夜には、心地よいラウンジでの読書が、まるで映画のワンシーンのように心に刻まれ、日常の喧騒を忘れさせてくれます。そして、管理人の温かな視線と24時間の管理により、安心感が漂い、身を委ねることができるのです。
この物件は、駒込駅から徒歩8分というアクセスの良さも魅力のひとつ。東京の歴史ある街並みが、あなたを迎え入れてくれます。周辺には古き良き文化が息づき、趣のある店やカフェが立ち並び、まるで一枚の絵画を描いているかのようです。朝の散歩では、心地よい鳥のさえずりを聞きながら、かすかに漂うコーヒーの香りを楽しむことができるでしょう。
そして、この物件が持つデザイナーズの魅力は、あなたの心をくすぐります。オートロックや宅配ボックス、駐輪場といった便利な設備は、生活に必要な安心感を提供し、さらに低層での穏やかな生活は、ストレスを忘れさせてくれます。バイク置場や駐車場も完備され、あなたのライフスタイルをより豊かにします。
パークアクシス駒込ヒルトップ 405での生活は、心豊かな物語の始まりです。感じること、楽しむこと、受け入れることが、ここでの日々を特別なものにしてくれることでしょう。この空間に住むということは、ただの居住ではなく、人生の喜びを追求する旅の始まりなのです。どうぞ、この特別な場所での生活を味わい、貴方自身の物語を紡いでください。
バイブルスコア
バイブルスコア: 25.0
平均的なスコアです。
※バイブルスコア詳細はこちら
バイブルスコアとは独自のAI機械学習技術を利用した物件評価システムで、物件のおすすめ度を示します。最高得点は100点で、スコアが高いほど、よりおすすめの物件と評価されています。
写真
契約条件
| 賃料 | 予想金額:124,000〜144,000円程度 | 管理費 | 予想金額:10,000〜14,000円程度 |
| 礼金 | 非公開(アーカイブ) | 敷金 | 非公開(アーカイブ) |
| フリーレント | 1.0ヶ月 | 平米数 | 35.04㎡ |
| 間取り | 1DK | 大型収納 | |
| 契約期間 |
| 方角 | 南西 |
| 更新料 | 契約形態 | 普通賃貸借契約 | |
| 取引態様 | 媒介 | 内見状況 | 入居中 |
| 入居時期 | 入居中 | SOHO・事務所 | |
| ペット | ペット可 | 間取り内訳 | 洋:5 D:6.3 K:2.5 |
| キャンペーン情報・備考 | 本情報は賃料改定交渉の資料作成、収益物件の利回り試算、周辺エリアや最寄り駅の坪単価分析、次回募集開始時期の予測などにご活用いただけます。 | ||
※「どの不動産に頼めばいいのか分からない」「信頼できる営業マンの話を聞きたい」「一番親切な会社と契約したい」とお悩みの方におすすめなのが「高級賃貸バイブル」です。
高級賃貸バイブルは業界10年以上の熟練スタッフ群がお客様ファーストで対応します。
下記ボタンから、まずは無料でご相談下さい。
※内覧をご希望の際には、どうぞ物件のエントランス前にてお待ち合わせくださいませ。ご内覧後は、同じ場所でお別れとさせていただきます。お客様のご都合に合わせたスムーズなご案内を心がけておりますので、ご質問等がございましたら何なりとお申し付けください。 物件概要
| 物件名 |
| 築年月 |
|
|---|---|---|---|
| 所在地 | |||
| 交通 | |||
| 総戸数 |
| 総階数 |
|
| 構造 |
| ||
地図
物件までの道のりは、「拡大地図を表示」をクリックしてナビ機能をご利用ください。
部屋設備
















建物設備

24時間管理

TVモニターホン

エレベーター

オートロック

バイク置場

ラウンジ

宅配ボックス

敷地内ゴミ置場

管理人

駐車場平置き

駐車場機械式

駐輪場
パークアクシス駒込ヒルトップの現在募集中のお部屋
- パークアクシス駒込HILLTOP 103 - 間取り: 2LDK+WIC+SIC - 賃料: 24.9万円
- パークアクシス駒込HILLTOP 502 - 間取り: 2LDK+WIC+SIC - 賃料: 26万円



