
| 賃料 | 予想金額:85,000〜105,000円程度 | 管理費 | 予想金額:8,000〜12,000円程度 |
| 礼金/敷金 | 非公開(アーカイブ) | 平米数 | 26.24㎡ |
| 初期費用概算(参考) | 目安:123,100〜223,100 円 | みなし賃料(月額・参考) | 98,606〜118,606 円 |
| 備考 | 本ページは過去募集のアーカイブです。表示の金額は周辺相場・過去募集を踏まえた参考レンジであり、実際の契約金額・条件ではありません。 | ||
※上記みなし賃料(月額)は仲介手数料割引・無料&キャッシュバックを加味した高級賃貸バイブル限定の金額です。一般的なみなし賃料とは異なります。
【建物ページ】パークアクシス駒込ヒルトップの詳細・最新空室はこちら▶▶選ばれる理由
仲介手数料無料・キャンペーン情報(毎月15名様限定)
〇引っ越しお祝い金115900円プレゼント(キャッシュバック)
〇フリーレント1か月キャンペーン
〇仲介手数料無料キャンペーン
パークアクシス駒込ヒルトップ 111の口コミ・レビュー
パークアクシス駒込ヒルトップ 111。この美しい名前が紡ぐストーリーは、まるで一冊の詩集のような魅力を秘めています。東京都北区中里3-18-4に佇むこの物件は、その名の通り、都心の喧騒から少し離れた高台に位置し、静けさと優雅さを兼ね備えた空間です。111号室という特別な番号は、あなたを新たな生活の旅へと誘う扉を開く特権を象徴しています。
想像してみてください。朝日がカーテンを透かして、柔らかい光…パークアクシス駒込ヒルトップ 111。この美しい名前が紡ぐストーリーは、まるで一冊の詩集のような魅力を秘めています。東京都北区中里3-18-4に佇むこの物件は、その名の通り、都心の喧騒から少し離れた高台に位置し、静けさと優雅さを兼ね備えた空間です。111号室という特別な番号は、あなたを新たな生活の旅へと誘う扉を開く特権を象徴しています。
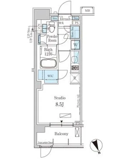
想像してみてください。朝日がカーテンを透かして、柔らかい光が部屋を満たします。専有面積26.24㎡の空間には、洋8.5帖の広々とした心地よい空間が広がり、そこはあなたのクリエイティブな思考を刺激する小宇宙となります。朝食の香ばしい匂いが立ち込め、トーストが焼ける音が心の中に響きわたります。その瞬間、住まいはただの空間ではなく、味わい深い生活の場へと変わります。
パークアクシス駒込ヒルトップ 111の特筆すべき点は、そのデザイン性にあります。洗練されたデザイナーズ空間は、どの角度から見ても美しさを保ち、心が豊かになるような感覚を与えてくれます。静かな夜、すべての電気を消して、窓辺に腰を下ろしたなら、星空がまるであなたのために用意されたかのように瞬いています。周囲の自然と調和し、四季の移ろいを感じさせるような恵まれた環境が、心に安らぎをもたらしてくれるでしょう。
また、24時間管理体制が整っているこのマンションは、安心感を提供します。オートロックやTVモニターホンといった設備は、あなたの日常にセキュリティを加え、快適な暮らしを実現してくれます。生活に必要なものがすべて揃い、宅配ボックスや駐輪場、さらには駐車場も完備されていますので、心配ごとは一切不要です。
そして、パークアクシス駒込ヒルトップ 111は、ただの住まいではなく、文化と歴史が交差する街の一部でもあります。徒歩8分で行ける駒込駅を利用すれば、東京の文化芸術を楽しむ拠点としても最適です。美術館やギャラリー、歴史ある建物など、まさにアートの宝庫が身近に広がっています。周囲の街を散策しながら、あなたの感性を磨く旅が始まります。
この特別な場所での生活は、まるで映画のワンシーンのように、心に残る思い出を数多く作り上げることでしょう。パークアクシス駒込ヒルトップ 111での新しい生活が、あなたの人生に豊かさと色彩を添える瞬間を、心からお待ちしております。あなたの新しい物語がこの場所から始まるのです。
想像してみてください。朝日がカーテンを透かして、柔らかい光…パークアクシス駒込ヒルトップ 111。この美しい名前が紡ぐストーリーは、まるで一冊の詩集のような魅力を秘めています。東京都北区中里3-18-4に佇むこの物件は、その名の通り、都心の喧騒から少し離れた高台に位置し、静けさと優雅さを兼ね備えた空間です。111号室という特別な番号は、あなたを新たな生活の旅へと誘う扉を開く特権を象徴しています。
想像してみてください。朝日がカーテンを透かして、柔らかい光が部屋を満たします。専有面積26.24㎡の空間には、洋8.5帖の広々とした心地よい空間が広がり、そこはあなたのクリエイティブな思考を刺激する小宇宙となります。朝食の香ばしい匂いが立ち込め、トーストが焼ける音が心の中に響きわたります。その瞬間、住まいはただの空間ではなく、味わい深い生活の場へと変わります。
パークアクシス駒込ヒルトップ 111の特筆すべき点は、そのデザイン性にあります。洗練されたデザイナーズ空間は、どの角度から見ても美しさを保ち、心が豊かになるような感覚を与えてくれます。静かな夜、すべての電気を消して、窓辺に腰を下ろしたなら、星空がまるであなたのために用意されたかのように瞬いています。周囲の自然と調和し、四季の移ろいを感じさせるような恵まれた環境が、心に安らぎをもたらしてくれるでしょう。
また、24時間管理体制が整っているこのマンションは、安心感を提供します。オートロックやTVモニターホンといった設備は、あなたの日常にセキュリティを加え、快適な暮らしを実現してくれます。生活に必要なものがすべて揃い、宅配ボックスや駐輪場、さらには駐車場も完備されていますので、心配ごとは一切不要です。
そして、パークアクシス駒込ヒルトップ 111は、ただの住まいではなく、文化と歴史が交差する街の一部でもあります。徒歩8分で行ける駒込駅を利用すれば、東京の文化芸術を楽しむ拠点としても最適です。美術館やギャラリー、歴史ある建物など、まさにアートの宝庫が身近に広がっています。周囲の街を散策しながら、あなたの感性を磨く旅が始まります。
この特別な場所での生活は、まるで映画のワンシーンのように、心に残る思い出を数多く作り上げることでしょう。パークアクシス駒込ヒルトップ 111での新しい生活が、あなたの人生に豊かさと色彩を添える瞬間を、心からお待ちしております。あなたの新しい物語がこの場所から始まるのです。
バイブルスコア
バイブルスコア: 35.4
平均的なスコアです。
※バイブルスコア詳細はこちら
バイブルスコアとは独自のAI機械学習技術を利用した物件評価システムで、物件のおすすめ度を示します。最高得点は100点で、スコアが高いほど、よりおすすめの物件と評価されています。
写真
契約条件
| 賃料 | 予想金額:85,000〜105,000円程度 | 管理費 | 予想金額:8,000〜12,000円程度 |
| 礼金 | 非公開(アーカイブ) | 敷金 | 非公開(アーカイブ) |
| フリーレント | 1ヶ月 | 平米数 | 26.24㎡ |
| 間取り | 1R | 大型収納 | WIC |
| 契約期間 |
| 方角 | 北 |
| 更新料 | 契約形態 | 普通賃貸借契約 | |
| 取引態様 | 媒介 | 内見状況 | 入居中 |
| 入居時期 | 入居中 | SOHO・事務所 | |
| ペット | ペット可 | 間取り内訳 | 洋:8.5 |
| キャンペーン情報・備考 | 本情報は賃料改定交渉の資料作成、収益物件の利回り試算、周辺エリアや最寄り駅の坪単価分析、次回募集開始時期の予測などにご活用いただけます。 | ||
※「どの不動産に頼めばいいのか分からない」「信頼できる営業マンの話を聞きたい」「一番親切な会社と契約したい」とお悩みの方におすすめなのが「高級賃貸バイブル」です。
高級賃貸バイブルは業界10年以上の熟練スタッフ群がお客様ファーストで対応します。
下記ボタンから、まずは無料でご相談下さい。
※内覧をご希望の際には、どうぞ物件のエントランス前にてお待ち合わせくださいませ。ご内覧後は、同じ場所でお別れとさせていただきます。お客様のご都合に合わせたスムーズなご案内を心がけておりますので、ご質問等がございましたら何なりとお申し付けください。 物件概要
| 物件名 |
| 築年月 |
|
|---|---|---|---|
| 所在地 | |||
| 交通 | |||
| 総戸数 |
| 総階数 |
|
| 構造 |
| ||
地図
物件までの道のりは、「拡大地図を表示」をクリックしてナビ機能をご利用ください。
部屋設備
















建物設備

24時間管理

TVモニターホン

エレベーター

オートロック

バイク置場

ラウンジ

宅配ボックス

敷地内ゴミ置場

管理人

駐車場平置き

駐車場機械式

駐輪場
パークアクシス駒込ヒルトップの現在募集中のお部屋
- パークアクシス駒込HILLTOP 103 - 間取り: 2LDK+WIC+SIC - 賃料: 24.9万円
- パークアクシス駒込HILLTOP 502 - 間取り: 2LDK+WIC+SIC - 賃料: 26万円



