
| 賃料 | 予想金額:90,000〜110,000円程度 | 管理費 | 予想金額:8,000〜12,000円程度 |
| 礼金/敷金 | 非公開(アーカイブ) | 平米数 | 25.6㎡ |
| 初期費用概算(参考) | 目安:229,500〜329,500 円 | みなし賃料(月額・参考) | 105,823〜125,823 円 |
| 備考 | 本ページは過去募集のアーカイブです。表示の金額は周辺相場・過去募集を踏まえた参考レンジであり、実際の契約金額・条件ではありません。 | ||
※上記みなし賃料(月額)は仲介手数料割引・無料&キャッシュバックを加味した高級賃貸バイブル限定の金額です。一般的なみなし賃料とは異なります。
【建物ページ】パークアクシス駒込ヒルトップの詳細・最新空室はこちら▶▶選ばれる理由
仲介手数料無料・キャンペーン情報(毎月15名様限定)
〇引っ越しお祝い金22000円プレゼント(キャッシュバック)
〇フリーレント1か月キャンペーン
〇仲介手数料無料キャンペーン
パークアクシス駒込ヒルトップ 210の口コミ・レビュー
パークアクシス駒込ヒルトップ 210は、まるで心の故郷を見つけたかのような瞬間をもたらす、高級賃貸のかけがえのない存在です。東京都北区中里3-18-4にそっと佇むこの素敵な居所は、あなたを優雅な生活へと誘う静かな入口のようです。北東の方角からは、朝日が柔らかく差し込み、穏やかなエネルギーで次の一日の始まりを告げます。
この物件の魅力は、その洗練されたデザインと、まるでアートのような空間に宿る静け…パークアクシス駒込ヒルトップ 210は、まるで心の故郷を見つけたかのような瞬間をもたらす、高級賃貸のかけがえのない存在です。東京都北区中里3-18-4にそっと佇むこの素敵な居所は、あなたを優雅な生活へと誘う静かな入口のようです。北東の方角からは、朝日が柔らかく差し込み、穏やかなエネルギーで次の一日の始まりを告げます。
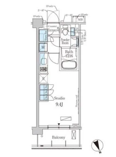
この物件の魅力は、その洗練されたデザインと、まるでアートのような空間に宿る静けさにあります。専有面積は25.6㎡、1Rというシンプルな間取りの中にも、心地よさと機能性が見事に融合しています。洋室は9.1帖で、ふんわりとした温もりに包まれ、柔らかいラベンダーの香りが漂います。心のこもったインテリアを思い描き、香り高いコーヒーを嗅ぎながら、リラックスした時間を楽しむ姿が目に浮かびます。
エレガントなライフスタイルは、24時間管理やオートロック、TVモニターホンといった先進のセキュリティシステムによって支えられています。まるで、家があなたを守るために見張っているかのように感じることでしょう。エレベーターのドアが静かに開くたびに、毎日の小さな冒険が始まります。ラウンジは、あなたと友人たちが過ごすための秘密の隠れ家のようであり、落ち着いた雰囲気の中で会話が弾むことでしょう。
また、日常の利便性を追求した設備も揃っており、宅配ボックスや敷地内のゴミ置場など、生活をスムーズに進めるための工夫が施されています。駐車場やバイク置場も完備されているため、アクティブなライフスタイルを持つ方にも最適です。
パークアクシス駒込ヒルトップ 210の周辺は、歴史と文化が交差する特別な場所です。東京メトロ南北線の駒込駅まで徒歩わずか8分の距離で、利便性と閑静な住宅街の両方を享受することができます。この場所は、古き良き文化と現代の洗練が見事に調和しており、那須高原の豊かな緑が、まるで画布に描かれたように心を癒やしてくれます。
映画のワンシーンのように、あなたの生活がここで展開されることを想像してみてください。朝の光が差し込む中で、ゆっくりと目覚め、自分だけのスタイルで朝食を楽しむ姿。そして、仕事や趣味に向かう日常の中で、この特別な空間がいつもあなたを支えています。パークアクシス駒込ヒルトップ 210は、あなたの人生に新たな物語を紡ぐ場所であり、住む人の心に寄り添う、愛おしい仲間となることでしょう。ここでの生活は、まるで時が止まったかのような贅沢な瞬間の連続なのです。
この物件の魅力は、その洗練されたデザインと、まるでアートのような空間に宿る静け…パークアクシス駒込ヒルトップ 210は、まるで心の故郷を見つけたかのような瞬間をもたらす、高級賃貸のかけがえのない存在です。東京都北区中里3-18-4にそっと佇むこの素敵な居所は、あなたを優雅な生活へと誘う静かな入口のようです。北東の方角からは、朝日が柔らかく差し込み、穏やかなエネルギーで次の一日の始まりを告げます。
この物件の魅力は、その洗練されたデザインと、まるでアートのような空間に宿る静けさにあります。専有面積は25.6㎡、1Rというシンプルな間取りの中にも、心地よさと機能性が見事に融合しています。洋室は9.1帖で、ふんわりとした温もりに包まれ、柔らかいラベンダーの香りが漂います。心のこもったインテリアを思い描き、香り高いコーヒーを嗅ぎながら、リラックスした時間を楽しむ姿が目に浮かびます。
エレガントなライフスタイルは、24時間管理やオートロック、TVモニターホンといった先進のセキュリティシステムによって支えられています。まるで、家があなたを守るために見張っているかのように感じることでしょう。エレベーターのドアが静かに開くたびに、毎日の小さな冒険が始まります。ラウンジは、あなたと友人たちが過ごすための秘密の隠れ家のようであり、落ち着いた雰囲気の中で会話が弾むことでしょう。
また、日常の利便性を追求した設備も揃っており、宅配ボックスや敷地内のゴミ置場など、生活をスムーズに進めるための工夫が施されています。駐車場やバイク置場も完備されているため、アクティブなライフスタイルを持つ方にも最適です。
パークアクシス駒込ヒルトップ 210の周辺は、歴史と文化が交差する特別な場所です。東京メトロ南北線の駒込駅まで徒歩わずか8分の距離で、利便性と閑静な住宅街の両方を享受することができます。この場所は、古き良き文化と現代の洗練が見事に調和しており、那須高原の豊かな緑が、まるで画布に描かれたように心を癒やしてくれます。
映画のワンシーンのように、あなたの生活がここで展開されることを想像してみてください。朝の光が差し込む中で、ゆっくりと目覚め、自分だけのスタイルで朝食を楽しむ姿。そして、仕事や趣味に向かう日常の中で、この特別な空間がいつもあなたを支えています。パークアクシス駒込ヒルトップ 210は、あなたの人生に新たな物語を紡ぐ場所であり、住む人の心に寄り添う、愛おしい仲間となることでしょう。ここでの生活は、まるで時が止まったかのような贅沢な瞬間の連続なのです。
バイブルスコア
バイブルスコア: 24.6
平均的なスコアです。
※バイブルスコア詳細はこちら
バイブルスコアとは独自のAI機械学習技術を利用した物件評価システムで、物件のおすすめ度を示します。最高得点は100点で、スコアが高いほど、よりおすすめの物件と評価されています。
写真
契約条件
| 賃料 | 予想金額:90,000〜110,000円程度 | 管理費 | 予想金額:8,000〜12,000円程度 |
| 礼金 | 非公開(アーカイブ) | 敷金 | 非公開(アーカイブ) |
| フリーレント | 1ヶ月 | 平米数 | 25.6㎡ |
| 間取り | 1R | 大型収納 | SIC |
| 契約期間 |
| 方角 | 北東 |
| 更新料 | 契約形態 | 普通賃貸借契約 | |
| 取引態様 | 媒介 | 内見状況 | 入居中 |
| 入居時期 | 入居中 | SOHO・事務所 | |
| ペット | ペット可 | 間取り内訳 | 洋:9.1 |
| キャンペーン情報・備考 | 本情報は賃料改定交渉の資料作成、収益物件の利回り試算、周辺エリアや最寄り駅の坪単価分析、次回募集開始時期の予測などにご活用いただけます。 | ||
※「どの不動産に頼めばいいのか分からない」「信頼できる営業マンの話を聞きたい」「一番親切な会社と契約したい」とお悩みの方におすすめなのが「高級賃貸バイブル」です。
高級賃貸バイブルは業界10年以上の熟練スタッフ群がお客様ファーストで対応します。
下記ボタンから、まずは無料でご相談下さい。
※内覧をご希望の際には、どうぞ物件のエントランス前にてお待ち合わせくださいませ。ご内覧後は、同じ場所でお別れとさせていただきます。お客様のご都合に合わせたスムーズなご案内を心がけておりますので、ご質問等がございましたら何なりとお申し付けください。 物件概要
| 物件名 |
| 築年月 |
|
|---|---|---|---|
| 所在地 | |||
| 交通 | |||
| 総戸数 |
| 総階数 |
|
| 構造 |
| ||
地図
物件までの道のりは、「拡大地図を表示」をクリックしてナビ機能をご利用ください。
部屋設備
















建物設備

24時間管理

TVモニターホン

エレベーター

オートロック

バイク置場

ラウンジ

宅配ボックス

敷地内ゴミ置場

管理人

駐車場平置き

駐車場機械式

駐輪場
パークアクシス駒込ヒルトップの現在募集中のお部屋
- パークアクシス駒込HILLTOP 103 - 間取り: 2LDK+WIC+SIC - 賃料: 24.9万円
- パークアクシス駒込HILLTOP 502 - 間取り: 2LDK+WIC+SIC - 賃料: 26万円



