
| 賃料 | 予想金額:117,000〜137,000円程度 | 管理費 | 予想金額:10,000〜14,000円程度 |
| 礼金/敷金 | 非公開(アーカイブ) | 平米数 | 31.8㎡ |
| 初期費用概算(参考) | 目安:294,060〜394,060 円 | みなし賃料(月額・参考) | 133,522〜153,522 円 |
| 備考 | 本ページは過去募集のアーカイブです。表示の金額は周辺相場・過去募集を踏まえた参考レンジであり、実際の契約金額・条件ではありません。 | ||
※上記みなし賃料(月額)は仲介手数料割引・無料&キャッシュバックを加味した高級賃貸バイブル限定の金額です。一般的なみなし賃料とは異なります。
【建物ページ】プレミスト板橋の詳細・最新空室はこちら▶▶選ばれる理由
仲介手数料無料・キャンペーン情報(毎月15名様限定)
〇引っ越しお祝い金27940円プレゼント(キャッシュバック)
〇仲介手数料無料キャンペーン
プレミスト板橋 802の口コミ・レビュー
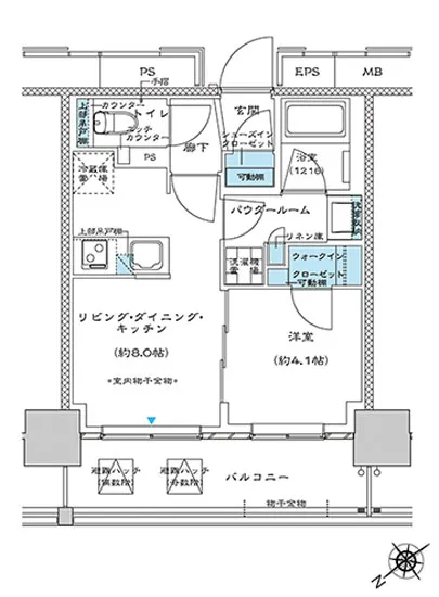
「プレミスト板橋 802」。この美しい物件はまるで貴族の邸宅のように、あなたを優雅な生活へと導いてくれることでしょう。802という数字は、まるで特別な秘密の部屋の入り口を示すかのように、心躍る響きを持っております。専有面積31.8㎡の空間は、一見、コンパクトに思えるかもしれませんが、あなたの想像力によって、その限りない可能性が広がっていくのです。
この物件には、洗練されたデザインのLDKが8帖、…「プレミスト板橋 802」。この美しい物件はまるで貴族の邸宅のように、あなたを優雅な生活へと導いてくれることでしょう。802という数字は、まるで特別な秘密の部屋の入り口を示すかのように、心躍る響きを持っております。専有面積31.8㎡の空間は、一見、コンパクトに思えるかもしれませんが、あなたの想像力によって、その限りない可能性が広がっていくのです。
この物件には、洗練されたデザインのLDKが8帖、そして洋室が4.1帖、どちらも心地よい光が差し込み、住む人の心を温かく包み込みます。窓の外には、まるで映画のワンシーンのように、四季折々の移ろいが映し出され、日々の生活に彩りを添えてくれることでしょう。北西向きの窓から盛大に広がる景色は、朝の静けさを感じながらのコーヒータイムに、夕暮れ時の華やかなひと時に、あなたの心を、そして体をも癒してくれるはずです。
「プレミスト板橋 802」はただの住まいではなく、生活の舞台です。エレベーターがあなたを優雅に運び、オートロックが安心の盾となり、日々の暮らしを支える設備が整っています。TVモニターホンで顔を確認しながら、インターホンの音が心に着実に安心感をもたらします。さらに、宅配ボックスの存在は、現代人のライフスタイルに不可欠な友と言えるでしょう。
この物件の周辺には、歴史ある街並みが息づいており、文化の香りが漂っています。板橋区役所前駅から歩いてわずか5分という好立地には、古くから続く商店街や、アートが溢れるギャラリーが点在し、住む人を魅了してやみません。毎日の散歩も、まるでアートツアーのように、周囲の風景を楽しむことができる特権を持っています。
想像してみてください。夜の静寂の中、自宅のバルコニーでワインを片手に星空を見上げ、甘美な香りを感じながら高級チョコレートを味わう。優雅に流れる時間の中で、あなたの心と体が一つになり、日常から解放される瞬間が訪れます。まるで映画の主人公になったかのような、特別なひとときを演出してくれるのが「プレミスト板橋 802」です。
この物件は単なる住まいではなく、あなたの人生に対する新たなアプローチを示す舞台なのです。さあ、「プレミスト板橋 802」にあなたの新しいストーリーを刻みつける時が来ました。日々の生活に、贅沢な感覚と豊かな感情を与えるこの場所で、あなた自身の物語を紡いでみませんか。
この物件には、洗練されたデザインのLDKが8帖、…「プレミスト板橋 802」。この美しい物件はまるで貴族の邸宅のように、あなたを優雅な生活へと導いてくれることでしょう。802という数字は、まるで特別な秘密の部屋の入り口を示すかのように、心躍る響きを持っております。専有面積31.8㎡の空間は、一見、コンパクトに思えるかもしれませんが、あなたの想像力によって、その限りない可能性が広がっていくのです。
この物件には、洗練されたデザインのLDKが8帖、そして洋室が4.1帖、どちらも心地よい光が差し込み、住む人の心を温かく包み込みます。窓の外には、まるで映画のワンシーンのように、四季折々の移ろいが映し出され、日々の生活に彩りを添えてくれることでしょう。北西向きの窓から盛大に広がる景色は、朝の静けさを感じながらのコーヒータイムに、夕暮れ時の華やかなひと時に、あなたの心を、そして体をも癒してくれるはずです。
「プレミスト板橋 802」はただの住まいではなく、生活の舞台です。エレベーターがあなたを優雅に運び、オートロックが安心の盾となり、日々の暮らしを支える設備が整っています。TVモニターホンで顔を確認しながら、インターホンの音が心に着実に安心感をもたらします。さらに、宅配ボックスの存在は、現代人のライフスタイルに不可欠な友と言えるでしょう。
この物件の周辺には、歴史ある街並みが息づいており、文化の香りが漂っています。板橋区役所前駅から歩いてわずか5分という好立地には、古くから続く商店街や、アートが溢れるギャラリーが点在し、住む人を魅了してやみません。毎日の散歩も、まるでアートツアーのように、周囲の風景を楽しむことができる特権を持っています。
想像してみてください。夜の静寂の中、自宅のバルコニーでワインを片手に星空を見上げ、甘美な香りを感じながら高級チョコレートを味わう。優雅に流れる時間の中で、あなたの心と体が一つになり、日常から解放される瞬間が訪れます。まるで映画の主人公になったかのような、特別なひとときを演出してくれるのが「プレミスト板橋 802」です。
この物件は単なる住まいではなく、あなたの人生に対する新たなアプローチを示す舞台なのです。さあ、「プレミスト板橋 802」にあなたの新しいストーリーを刻みつける時が来ました。日々の生活に、贅沢な感覚と豊かな感情を与えるこの場所で、あなた自身の物語を紡いでみませんか。
バイブルスコア
バイブルスコア: 31.4
平均的なスコアです。
※バイブルスコア詳細はこちら
バイブルスコアとは独自のAI機械学習技術を利用した物件評価システムで、物件のおすすめ度を示します。最高得点は100点で、スコアが高いほど、よりおすすめの物件と評価されています。
写真
現在写真が登録されていません契約条件
| 賃料 | 予想金額:117,000〜137,000円程度 | 管理費 | 予想金額:10,000〜14,000円程度 |
| 礼金 | 非公開(アーカイブ) | 敷金 | 非公開(アーカイブ) |
| フリーレント | なし | 平米数 | 31.8㎡ |
| 間取り | 1LDK | 大型収納 | WIC+SIC |
| 契約期間 |
| 方角 | 北西 |
| 更新料 | 契約形態 | 普通賃貸借契約 | |
| 取引態様 | 媒介 | 内見状況 | 入居中 |
| 入居時期 | 入居中 | SOHO・事務所 | |
| ペット | ペット可 | 間取り内訳 | 洋:4.1 LDK:8 |
| キャンペーン情報・備考 | 本情報は賃料改定交渉の資料作成、収益物件の利回り試算、周辺エリアや最寄り駅の坪単価分析、次回募集開始時期の予測などにご活用いただけます。 | ||
※「どの不動産に頼めばいいのか分からない」「信頼できる営業マンの話を聞きたい」「一番親切な会社と契約したい」とお悩みの方におすすめなのが「高級賃貸バイブル」です。
高級賃貸バイブルは業界10年以上の熟練スタッフ群がお客様ファーストで対応します。
下記ボタンから、まずは無料でご相談下さい。
※内覧をご希望の際には、どうぞ物件のエントランス前にてお待ち合わせくださいませ。ご内覧後は、同じ場所でお別れとさせていただきます。お客様のご都合に合わせたスムーズなご案内を心がけておりますので、ご質問等がございましたら何なりとお申し付けください。 物件概要
| 物件名 |
| 築年月 |
|
|---|---|---|---|
| 所在地 | |||
| 交通 | |||
| 総戸数 |
| 総階数 |
|
| 構造 |
| ||
地図
物件までの道のりは、「拡大地図を表示」をクリックしてナビ機能をご利用ください。
部屋設備

















建物設備

TVモニターホン

エレベーター

オートロック

バイク置場

宅配ボックス

敷地内ゴミ置場

管理人

駐車場平置き

駐車場機械式

駐輪場
プレミスト板橋の現在募集中のお部屋
- プレミスト板橋 1405 - 間取り: 1LDK+WIC+SIC - 賃料: 15.8万円
- プレミスト板橋 1005 - 間取り: 1LDK+WIC+SIC - 賃料: 15.1万円
