
| 賃料 | 予想金額:150,000〜170,000円程度 | 管理費 | 予想金額:8,000〜12,000円程度 |
| 礼金/敷金 | 非公開(アーカイブ) | 平米数 | 31.59㎡ |
| 初期費用概算(参考) | 目安:616,500〜716,500 円 | みなし賃料(月額・参考) | 170,552〜190,552 円 |
| 備考 | 本ページは過去募集のアーカイブです。表示の金額は周辺相場・過去募集を踏まえた参考レンジであり、実際の契約金額・条件ではありません。 | ||
※上記みなし賃料(月額)は仲介手数料割引・無料&キャッシュバックを加味した高級賃貸バイブル限定の金額です。一般的なみなし賃料とは異なります。
【建物ページ】アーバネックス神保町の詳細・最新空室はこちら▶▶選ばれる理由
仲介手数料無料・キャンペーン情報(毎月15名様限定)
〇仲介手数料割引キャンペーン
アーバネックス神保町 602の口コミ・レビュー
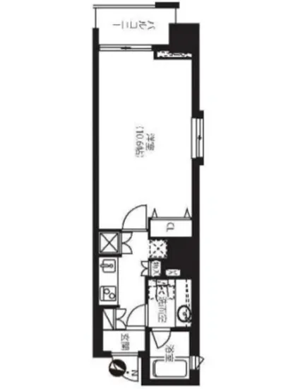
アーバネックス神保町 602。この地は、ただの住まいではなく、まるで心の拠り所のような、特別な空間が広がっています。602号室の扉を開けた瞬間、あなたを包み込むのは、洗練されたデザインと、心地よい静寂のハーモニー。31.59㎡の空間の中で、あなたは新たな物語を紡ぎ始めるのです。
まず、窓の外から差し込む柔らかな光が、南西と北西からの視界を楽しませてくれます。朝は爽やかな日差しが、昼は穏やかな光が…アーバネックス神保町 602。この地は、ただの住まいではなく、まるで心の拠り所のような、特別な空間が広がっています。602号室の扉を開けた瞬間、あなたを包み込むのは、洗練されたデザインと、心地よい静寂のハーモニー。31.59㎡の空間の中で、あなたは新たな物語を紡ぎ始めるのです。
まず、窓の外から差し込む柔らかな光が、南西と北西からの視界を楽しませてくれます。朝は爽やかな日差しが、昼は穏やかな光が、心に静けさをもたらします。この602号室では、日常がまるで映画のワンシーンのように展開されます。あなたが朝のコーヒーを一杯取るためにキッチンに立つと、香ばしい豆の香りが漂い、キッチンの存在がまるであなたのパートナーのように感じられるでしょう。
この部屋は、ただの間取りではありません。洗練されたデザインが、洋室10.6帖の空間に優雅さを与え、心を豊かにします。訪れる人々は、あなたのセンスを感じ取ることでしょう。オートロックやTVモニターホンが施された安心感の中で、プライバシーが守られ、まるで自分だけの秘密の隠れ家にいるような錯覚を味わえます。
エレベーターが待つ廊下を通り抜けるごとに、まるで高級ブランドのストアを訪れるような気持ちになっていきます。あなたの前に広がるのは、神保町という文化が息づく街。徒歩4分の距離には、知的な魅力が溢れる書店やカフェが点在し、歴史の香りが漂ってきます。思わず足を止め、古書に手を伸ばせば、その一冊があなたの人生を変えるかもしれません。
このアーバネックス神保町 602では、単に住むだけではなく、あなた自身の人生を彩る舞台を提供します。宅配ボックスや駐輪場、バイク置場といった便利な設備が整っており、忙しい日常にも柔軟に対応。これらの設備は、あなたの自由なライフスタイルを支え、心に余裕をもたらす存在です。
夜が訪れれば、602号室の窓から見える幻想的な夜景が、あなたの心を魅了します。都会の喧騒を忘れさせてくれる静かなひととき、そんな特別な瞬間を、この空間で味わえるのです。あなたが大切にしたい時間を、このアーバネックス神保町 602で育んでください。美しさ、安心、便利さ、そして心の豊かさが織りなすこの場所は、あなたにとっての真の家となることでしょう。ここでの生活は、あなたの感性を磨き、日常を特別なものに変えていくのです。
まず、窓の外から差し込む柔らかな光が、南西と北西からの視界を楽しませてくれます。朝は爽やかな日差しが、昼は穏やかな光が…アーバネックス神保町 602。この地は、ただの住まいではなく、まるで心の拠り所のような、特別な空間が広がっています。602号室の扉を開けた瞬間、あなたを包み込むのは、洗練されたデザインと、心地よい静寂のハーモニー。31.59㎡の空間の中で、あなたは新たな物語を紡ぎ始めるのです。
まず、窓の外から差し込む柔らかな光が、南西と北西からの視界を楽しませてくれます。朝は爽やかな日差しが、昼は穏やかな光が、心に静けさをもたらします。この602号室では、日常がまるで映画のワンシーンのように展開されます。あなたが朝のコーヒーを一杯取るためにキッチンに立つと、香ばしい豆の香りが漂い、キッチンの存在がまるであなたのパートナーのように感じられるでしょう。
この部屋は、ただの間取りではありません。洗練されたデザインが、洋室10.6帖の空間に優雅さを与え、心を豊かにします。訪れる人々は、あなたのセンスを感じ取ることでしょう。オートロックやTVモニターホンが施された安心感の中で、プライバシーが守られ、まるで自分だけの秘密の隠れ家にいるような錯覚を味わえます。
エレベーターが待つ廊下を通り抜けるごとに、まるで高級ブランドのストアを訪れるような気持ちになっていきます。あなたの前に広がるのは、神保町という文化が息づく街。徒歩4分の距離には、知的な魅力が溢れる書店やカフェが点在し、歴史の香りが漂ってきます。思わず足を止め、古書に手を伸ばせば、その一冊があなたの人生を変えるかもしれません。
このアーバネックス神保町 602では、単に住むだけではなく、あなた自身の人生を彩る舞台を提供します。宅配ボックスや駐輪場、バイク置場といった便利な設備が整っており、忙しい日常にも柔軟に対応。これらの設備は、あなたの自由なライフスタイルを支え、心に余裕をもたらす存在です。
夜が訪れれば、602号室の窓から見える幻想的な夜景が、あなたの心を魅了します。都会の喧騒を忘れさせてくれる静かなひととき、そんな特別な瞬間を、この空間で味わえるのです。あなたが大切にしたい時間を、このアーバネックス神保町 602で育んでください。美しさ、安心、便利さ、そして心の豊かさが織りなすこの場所は、あなたにとっての真の家となることでしょう。ここでの生活は、あなたの感性を磨き、日常を特別なものに変えていくのです。
バイブルスコア
バイブルスコア: 13.7
高級な物件でない場合は割高な物件です。。
※バイブルスコア詳細はこちら
バイブルスコアとは独自のAI機械学習技術を利用した物件評価システムで、物件のおすすめ度を示します。最高得点は100点で、スコアが高いほど、よりおすすめの物件と評価されています。
写真
契約条件
| 賃料 | 予想金額:150,000〜170,000円程度 | 管理費 | 予想金額:8,000〜12,000円程度 |
| 礼金 | 非公開(アーカイブ) | 敷金 | 非公開(アーカイブ) |
| フリーレント | なし | 平米数 | 31.59㎡ |
| 間取り | 1K | 大型収納 | |
| 契約期間 |
| 方角 | 南西 / 北西 |
| 更新料 | 契約形態 | 普通賃貸借契約 | |
| 取引態様 | 媒介 | 内見状況 | 入居中 |
| 入居時期 | 入居中 | SOHO・事務所 | 事務所(SOHO)可 |
| ペット | 間取り内訳 | 洋:10.6 | |
| キャンペーン情報・備考 | 本情報は賃料改定交渉の資料作成、収益物件の利回り試算、周辺エリアや最寄り駅の坪単価分析、次回募集開始時期の予測などにご活用いただけます。 | ||
※「どの不動産に頼めばいいのか分からない」「信頼できる営業マンの話を聞きたい」「一番親切な会社と契約したい」とお悩みの方におすすめなのが「高級賃貸バイブル」です。
高級賃貸バイブルは業界10年以上の熟練スタッフ群がお客様ファーストで対応します。
下記ボタンから、まずは無料でご相談下さい。
※内覧をご希望の際には、どうぞ物件のエントランス前にてお待ち合わせくださいませ。ご内覧後は、同じ場所でお別れとさせていただきます。お客様のご都合に合わせたスムーズなご案内を心がけておりますので、ご質問等がございましたら何なりとお申し付けください。 物件概要
| 物件名 |
| 築年月 |
|
|---|---|---|---|
| 所在地 | |||
| 交通 | |||
| 総戸数 |
| 総階数 |
|
| 構造 |
| ||
地図
物件までの道のりは、「拡大地図を表示」をクリックしてナビ機能をご利用ください。
部屋設備
















建物設備

24時間管理

TVモニターホン

エレベーター

オートロック

バイク置場

宅配ボックス

敷地内ゴミ置場

管理人

駐車場平置き

駐車場機械式

駐輪場
アーバネックス神保町の現在募集中のお部屋
- アーバネックス神保町 804 - 間取り: 1SLDK - 賃料: 23.7万円
- アーバネックス神保町 1204 - 間取り: 1SLDK - 賃料: 24.1万円





























