
| 賃料 | 予想金額:125,000〜145,000円程度 | 管理費 | 予想金額:8,000〜12,000円程度 |
| 礼金/敷金 | 非公開(アーカイブ) | 平米数 | 31.59㎡ |
| 初期費用概算(参考) | 目安:325,500〜425,500 円 | みなし賃料(月額・参考) | 140,010〜160,010 円 |
| 備考 | 本ページは過去募集のアーカイブです。表示の金額は周辺相場・過去募集を踏まえた参考レンジであり、実際の契約金額・条件ではありません。 | ||
※上記みなし賃料(月額)は仲介手数料割引・無料&キャッシュバックを加味した高級賃貸バイブル限定の金額です。一般的なみなし賃料とは異なります。
【建物ページ】アーバネックス神保町の詳細・最新空室はこちら▶▶選ばれる理由
仲介手数料無料・キャンペーン情報(毎月15名様限定)
〇引っ越しお祝い金13500円プレゼント(キャッシュバック)
〇仲介手数料無料キャンペーン
アーバネックス神保町 402の口コミ・レビュー
アーバネックス神保町 402。ここは、ただの住まいではなく、人生の舞台装置であり、平穏のひとときを提供するために生まれた場所です。南西および北西の光が舞い込むこの特別な空間は、まるで一つの物語が始まる劇場のようです。スイッチを入れると、光の調べが心地よく響き渡り、その瞬間からあなたの日常は特別なものに変わるのです。
この住まいは、優雅なデザインの中で、多様な感覚を刺激してくれます。例えば、玄関の…アーバネックス神保町 402。ここは、ただの住まいではなく、人生の舞台装置であり、平穏のひとときを提供するために生まれた場所です。南西および北西の光が舞い込むこの特別な空間は、まるで一つの物語が始まる劇場のようです。スイッチを入れると、光の調べが心地よく響き渡り、その瞬間からあなたの日常は特別なものに変わるのです。
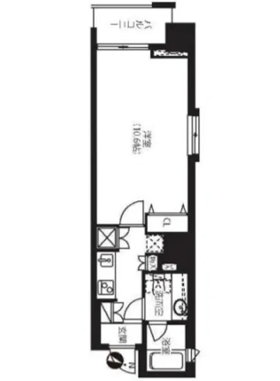
この住まいは、優雅なデザインの中で、多様な感覚を刺激してくれます。例えば、玄関のドアを開けた瞬間、あなたは洗練された空間に迎え入れられ、香ばしいコーヒーの香りに心がほぐれていくのを感じることでしょう。アーバネックス神保町 402の洋室は10.6帖の広さを誇り、その中に溢れる自由な空気は、あなたの創造性を解き放ち、まるで歴史ある街並みを歩く時のような高揚感を与えてくれます。
この場所から、東京メトロ半蔵門線の神保町駅まで徒歩わずか4分。神保町は古書店やカフェが軒を連ね、まるで時を超えた文化の交差点のようです。その洗練された街の雰囲気に触れながら、アーバネックス神保町 402に帰るたび、まるで自分の物語の中にいるような感覚を抱くことでしょう。
さらに、アーバネックス神保町 402では、24時間管理の行き届いた安心感も手に入ります。オートロックの扉を通り抜けた先に待っているのは、まるであなたの秘密の隠れ家に足を踏み入れたかのような心地よさ。エレベーターが静かに上下し、あなたの居場所へと導いてくれます。
駐車場や駐輪場、バイク置場も完備されており、アーバネックス神保町 402での生活は、まるで映画のワンシーンのようにスムーズです。また、宅配ボックスの存在は、忙しい日々の中でも、愛する人との大切な贈り物が電話一本で届く魔法のような体験を提供してくれます。
この住まいは、ただのインフラではありません。周囲の歴史や文化に溶け込み、あなたの人生の一部として存在します。特に神保町の文化的な深みは、あなたに刺激を与え、生活を豊かにします。アーバネックス神保町 402に住むことで、日常がより色鮮やかに、より豊かになることでしょう。
この物件は自己表現の場であり、あなたの生活に新たな物語を加えるためのキャンパスです。アーバネックス神保町 402で、あなた自身の物語を紡いでみませんか。上品で洗練されたこの空間が、あなたに新たなインスピレーションを与えてくれることでしょう。ここから始まる新しい人生の章が、あなたを待っています。
この住まいは、優雅なデザインの中で、多様な感覚を刺激してくれます。例えば、玄関の…アーバネックス神保町 402。ここは、ただの住まいではなく、人生の舞台装置であり、平穏のひとときを提供するために生まれた場所です。南西および北西の光が舞い込むこの特別な空間は、まるで一つの物語が始まる劇場のようです。スイッチを入れると、光の調べが心地よく響き渡り、その瞬間からあなたの日常は特別なものに変わるのです。
この住まいは、優雅なデザインの中で、多様な感覚を刺激してくれます。例えば、玄関のドアを開けた瞬間、あなたは洗練された空間に迎え入れられ、香ばしいコーヒーの香りに心がほぐれていくのを感じることでしょう。アーバネックス神保町 402の洋室は10.6帖の広さを誇り、その中に溢れる自由な空気は、あなたの創造性を解き放ち、まるで歴史ある街並みを歩く時のような高揚感を与えてくれます。
この場所から、東京メトロ半蔵門線の神保町駅まで徒歩わずか4分。神保町は古書店やカフェが軒を連ね、まるで時を超えた文化の交差点のようです。その洗練された街の雰囲気に触れながら、アーバネックス神保町 402に帰るたび、まるで自分の物語の中にいるような感覚を抱くことでしょう。
さらに、アーバネックス神保町 402では、24時間管理の行き届いた安心感も手に入ります。オートロックの扉を通り抜けた先に待っているのは、まるであなたの秘密の隠れ家に足を踏み入れたかのような心地よさ。エレベーターが静かに上下し、あなたの居場所へと導いてくれます。
駐車場や駐輪場、バイク置場も完備されており、アーバネックス神保町 402での生活は、まるで映画のワンシーンのようにスムーズです。また、宅配ボックスの存在は、忙しい日々の中でも、愛する人との大切な贈り物が電話一本で届く魔法のような体験を提供してくれます。
この住まいは、ただのインフラではありません。周囲の歴史や文化に溶け込み、あなたの人生の一部として存在します。特に神保町の文化的な深みは、あなたに刺激を与え、生活を豊かにします。アーバネックス神保町 402に住むことで、日常がより色鮮やかに、より豊かになることでしょう。
この物件は自己表現の場であり、あなたの生活に新たな物語を加えるためのキャンパスです。アーバネックス神保町 402で、あなた自身の物語を紡いでみませんか。上品で洗練されたこの空間が、あなたに新たなインスピレーションを与えてくれることでしょう。ここから始まる新しい人生の章が、あなたを待っています。
バイブルスコア
バイブルスコア: 37.3
平均的なスコアです。
※バイブルスコア詳細はこちら
バイブルスコアとは独自のAI機械学習技術を利用した物件評価システムで、物件のおすすめ度を示します。最高得点は100点で、スコアが高いほど、よりおすすめの物件と評価されています。
写真
契約条件
| 賃料 | 予想金額:125,000〜145,000円程度 | 管理費 | 予想金額:8,000〜12,000円程度 |
| 礼金 | 非公開(アーカイブ) | 敷金 | 非公開(アーカイブ) |
| フリーレント | なし | 平米数 | 31.59㎡ |
| 間取り | 1K | 大型収納 | なし |
| 契約期間 | 2年 | 方角 | 南西 / 北西 |
| 更新料 | 1ヶ月 | 契約形態 | 普通賃貸借契約 |
| 取引態様 | 媒介 | 内見状況 | 入居中 |
| 入居時期 | 入居中 | SOHO・事務所 | 事務所(SOHO)可 |
| ペット | 不可 | 間取り内訳 | 洋:10.6 |
| キャンペーン情報・備考 | 本情報は賃料改定交渉の資料作成、収益物件の利回り試算、周辺エリアや最寄り駅の坪単価分析、次回募集開始時期の予測などにご活用いただけます。 | ||
※「どの不動産に頼めばいいのか分からない」「信頼できる営業マンの話を聞きたい」「一番親切な会社と契約したい」とお悩みの方におすすめなのが「高級賃貸バイブル」です。
高級賃貸バイブルは業界10年以上の熟練スタッフ群がお客様ファーストで対応します。
下記ボタンから、まずは無料でご相談下さい。
※内覧をご希望の際には、どうぞ物件のエントランス前にてお待ち合わせくださいませ。ご内覧後は、同じ場所でお別れとさせていただきます。お客様のご都合に合わせたスムーズなご案内を心がけておりますので、ご質問等がございましたら何なりとお申し付けください。 物件概要
| 物件名 |
| 築年月 |
|
|---|---|---|---|
| 所在地 | |||
| 交通 | |||
| 総戸数 |
| 総階数 |
|
| 構造 |
| ||
地図
物件までの道のりは、「拡大地図を表示」をクリックしてナビ機能をご利用ください。
部屋設備
















建物設備

24時間管理

TVモニターホン

エレベーター

オートロック

バイク置場

宅配ボックス

敷地内ゴミ置場

管理人

駐車場平置き

駐車場機械式

駐輪場
アーバネックス神保町の現在募集中のお部屋
- アーバネックス神保町 804 - 間取り: 1SLDK - 賃料: 23.7万円
- アーバネックス神保町 1204 - 間取り: 1SLDK - 賃料: 24.1万円





























